
目前一些中小项目和住宅项目还在采用传统的吊顶施工作业法,如使用木龙骨、阻燃板、密度板、木工板等基层。
但随着新工艺、新材质的出现,大家对设计效果、工艺、施工、消防等的要求也越来越高,因此建筑、设计公司所要掌握技术核心也要不断更新。
本文就轻钢龙骨吊顶的相关知识进行详细讲解,主要解决以下问题:
1、 轻钢龙骨吊顶具体的施工工艺
2、 轻钢龙骨吊顶的空调风口、检修口、伸缩缝等细部工程
01.轻钢龙骨吊顶施工工艺

工艺流程:定标高、龙骨排版弹线→安装吊杆、主龙骨、副(次)龙骨、横撑龙骨→隐蔽工程验收→封板→螺钉防锈处理、补板缝、贴防裂带→刷乳胶漆→卫生清理→分项验收。
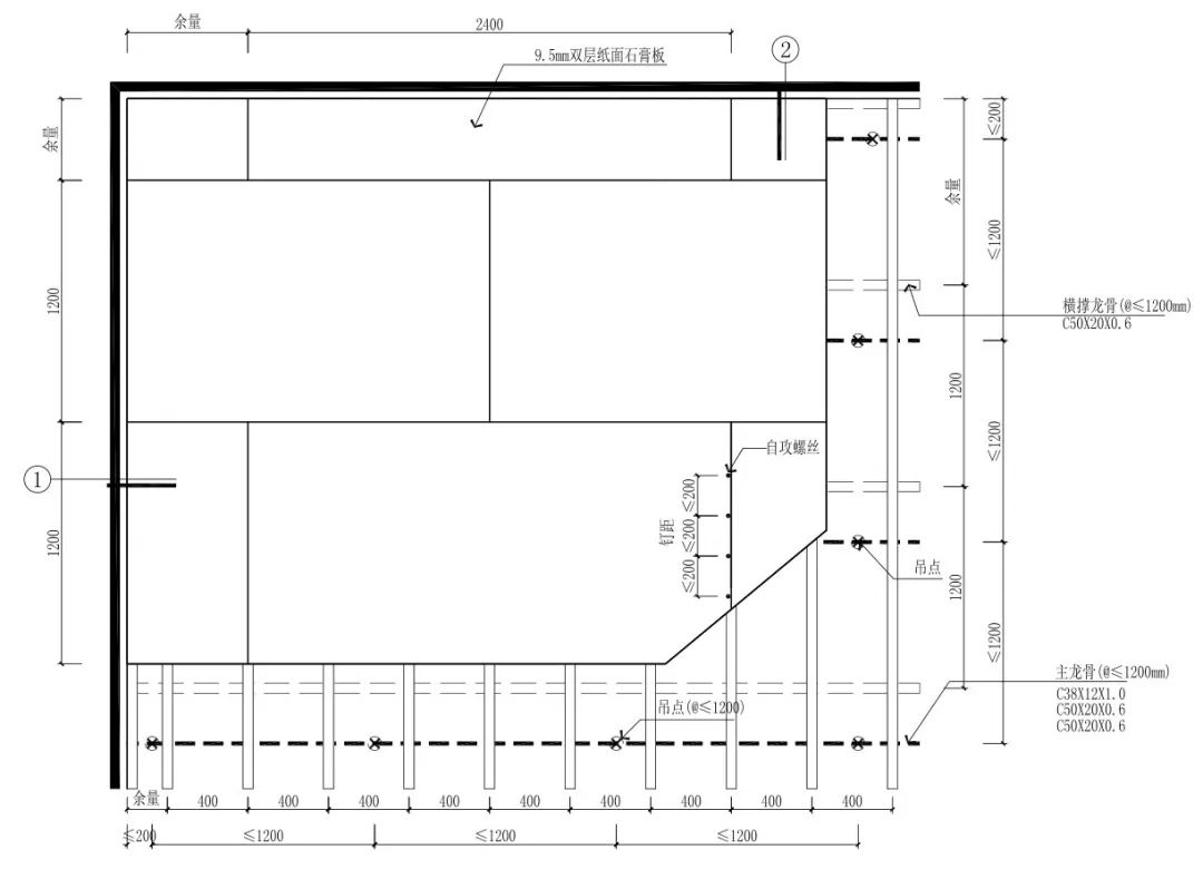
1、 定标高、龙骨排版弹线
安装龙骨前,应按设计要求对房间净高、洞口标高和吊顶内管道、设备及其支架的标高进行交接检验,并根据吊顶的设计标高在四周墙上弹线,并进行龙骨排版弹线,位置准确清晰。

△轻钢龙骨吊顶平面图
2、 吊杆、龙骨安装
金属预埋件、钢筋吊杆、型钢吊杆安装前应进行防锈处理,当然若是平时使用的木吊杆、木龙骨、木饰面则必须进行防潮、防腐、防蛀、防火处理。

上人龙骨使用Ø8钢筋(M8全牙吊杆)+C60主龙骨(C60X27X1.2)+C50副龙骨(C50x20X0.6);
不上人龙骨则采用Ø6或Ø8钢筋(M6、M8全牙吊杆)+C38主龙骨(C38X12X1.0)/C50主龙骨(C50X20X0.6)+C50副龙骨(C50X20X0.6)。
(具体标准请参考《建筑用轻钢龙骨》GB/11981-2008及《建筑用轻钢龙骨配件》JC/T558-2007)

△轻钢龙骨吊顶示意图
在安装主龙骨时,间距应小于1.2m,主龙骨与墙体间距不得大于300mm,主龙骨连接处应增设吊杆加强。
主龙骨吊点间距应小于1.2m,吊杆应通直,距主龙骨端部距离不得超过300mm,当吊杆与设备相遇时,应调整吊点构造或增设吊杆。
副(次)龙骨间距一般不大于400mm ,在潮湿地区和场所,间距宜为300~400mm,相邻的次龙骨应错开连接。

△轻钢龙骨吊顶剖面图

△轻钢龙骨吊顶剖面
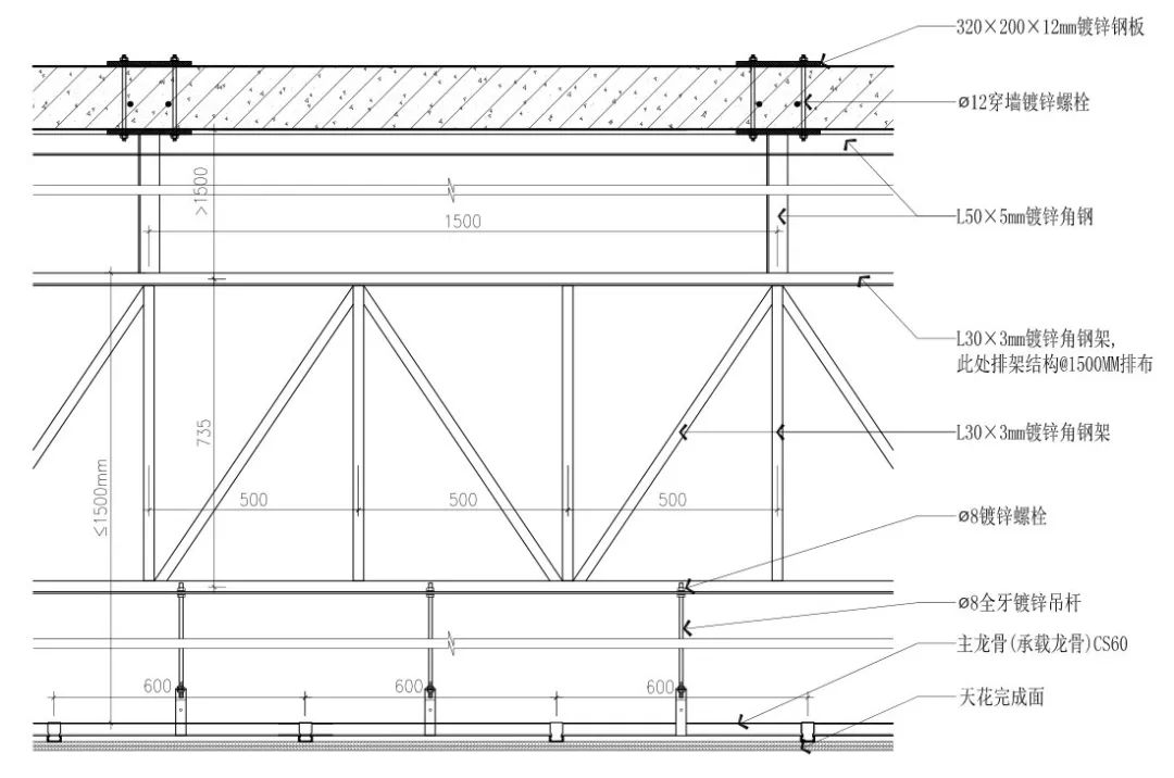
3、 吊顶反支撑设置

△反支撑示意图
1)当吊杆长度超过1.5m且小于3m时,由于吊筋的稳定性不足会有安全隐患,为保证稳固性需设置反支撑,做法是在CS60主龙骨横撑底边每隔两主龙骨间距打孔;M8全牙吊杆穿过,位置确定后上下用螺母固定。
CS60主龙骨斜撑每隔两倍主龙骨间距相向设置,当吊杆长度超过1.5m且小于2m时,适合采用CS50主龙骨。

△吊顶反支撑节点详图
2)当吊顶内部空间大于3m时,则需要设置型钢结构转换层来进行吊顶的反支撑。

△吊顶反支撑节点详图
4、 封板处理
封板处理是对基层板和饰面板进行安装,需要注意的是安装前必须进行隐蔽工程验收,并完成吊顶内管道和设备的调试和验收后才能开始施工。
板材应在自由状态下进行安装,固定时应从板的中间向板的四周固定。纸面石膏板螺钉与板边距离:纸包边宜为10~15mm,切割边宜为15~20mm,水泥加压板螺钉与板边距离宜为8~15mm。
板周边钉距宜为150~170mm,板中钉距不得大于200mm,螺钉应进行防锈处理。

△石膏板吊顶节点图
安装双层面板时,上下层板的接通应错开,不得再同一根龙骨上接缝,相邻两块板之间应错缝拼接安装。
饰面板缝需进行防裂处理,而且板缝要顺直、宽窄一致、两板间缝隙为4~7mm,不同材质交接处或板材间交接处需要进行防开裂措施。

△防锈处理、贴防裂带
5、 乳胶漆工程
饰面层乳胶漆需要进行涂刷两遍腻子,每层腻子都需要进行打磨光滑,之后刷底漆和面漆建议一遍底漆两遍面漆。

△刷乳胶漆示意图
02.
吊顶细部工程

1、 吊顶检修口

吊顶检修口应在第一层石膏板安装完成后安装成品检修口,检修口上部应在四周附加一圈主龙骨,挂件等需从楼板直接固定,下口应根据检修开口大小增设副(次)龙骨,以增加其稳固性,检修口安装高度应考虑批灰层厚度,应低于石膏板面2~3mm。

△成品检修口

△天花检修口节点图(上开)
检修口一般为定制成品石膏检修口,分为活动板和套口2部分。当检修口是在有水蒸气的空间使用,则需要改为防水石膏板和防水乳胶漆。
检修口开启处需要有铝合金护角设置,需要注意的是检修口洞口尺寸不能小于450X450mm。

△下开成品检修口

△成品检修口天花节点图(下开)
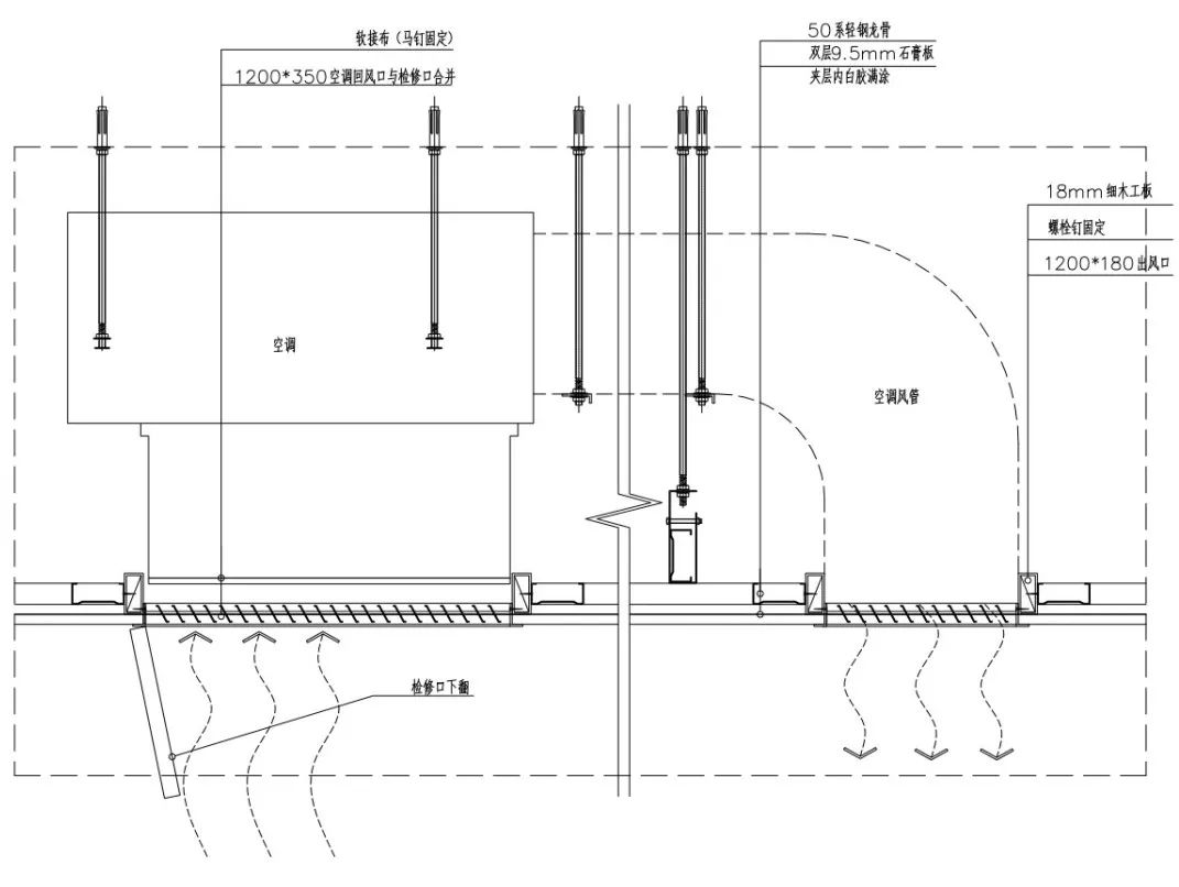
2、 空调风口

空调回风口、出风口、换气扇等处要求设置木边框,以便于风口及设施安装。出、回风百页的尺寸须根据机电安装单位风量计算,间距要符合空调性能要求。

△空调风口安装示意图(侧出底回)

△空调风口安装示意图(底出底回)
3、 吊顶伸缩缝
吊顶单边距离超过12 m时应设置伸缩缝,双层石膏板天花需留10~20mm的伸缩缝,交接长度为30~50mm,伸缩缝边沿至吊筋间距不大于300mm。
单层石膏板吊顶上衬细木工板(防火处理)与边龙骨连接,下口留10~20mm缝。

△吊顶伸缩缝施工节点
天花四周设计为凹槽(阴角槽),石膏板与墙面连接处定制石膏线安装收口,需要设置5mm 缝内嵌模型石膏。

△吊顶阴角槽施工示意图
本文主要讲解了轻钢龙骨吊顶的施工流程:定标高、龙骨排版弹线→安装吊杆、主龙骨、次龙骨、横撑龙骨→隐蔽工程验收→封板→螺钉防锈处理、补板缝、贴防裂带→刷乳胶漆;施工注意事项,以及吊顶细部工程(检修口、空调风口、伸缩缝)的设置。
关于轻钢龙骨吊顶,小伙伴们还有哪些疑问和见解呢?可在下方留言,大家一起探讨学习~