
dop设计原创
作者丨dop设计
编辑丨丽子
技术指导丨迪亚爱柯
新时代高质量的发展对装饰材料提出了更高的要求,也引发了大家对饰面材料应用的思考。越来越多的新型材料在性能上打破传统材料的局限性,在保证饰面效果的基础上,使得设计获得更多的可能性。
今天,我们就从以下几个方面来一起谈谈三种新型的建筑墙面饰面材料:
1、UHPC超高性能混凝土的性能、工艺及案例
2、预拌型无机饰面砂浆的性能、工艺及案例
3、轻质柔石的性能、工艺及案例
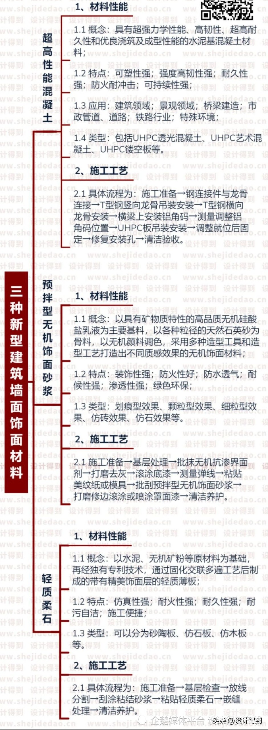
01. UHPC超高性能混凝土

1、材料特性
a、概念组成
超高性能混凝土(简称UHPC),是指一种具有超强力学性能、高韧性、超高耐久性和优良浇筑及成型性能的水泥基混凝土材料。UHPC通过选用高活性的微细材料,采用最紧密积和纤维增强技术配制而成。

source:DIARD ECO
通常会采用硅酸盐水泥、硅灰、石英粉、细硅砂、高效减水剂、水、钢或有机纤维等高强度韧性材料为原料。

source:DIARD ECO
b、材料特点
① 可塑性强
密度大、表面光洁度高、质地细腻,有温润如玉之感,加上其优异的物理性能,且可塑性极强,可以实现更多复杂多变的造型。

source:DIARD ECO
② 强度高韧性强
高抗压抗弯折(可做悬空屋面)、低收缩、背栓抗拔性能高,同时总重量轻,强度高,无需另加结构支撑,可做大规模板。具有超高的韧性,实现了抗压强度和抗折强度的有效平衡。

source:google.cn
③ 耐久性强
具有超高密实度和超高耐久性,在氯离子侵蚀、硫铝酸盐侵蚀等条件下,能长时间阻止有害物质渗透,还具有较强的自愈能力,防水抗渗抗污效果非常好。


source:google.cn
④ 防火耐冲击
具有较强的防火、抗爆和抗冲击能力,UHPC可广泛用于军事工程、银行金库等薄壁工程,适当配筋和钢结构性能相当。

source:DIARD ECO
⑤ 可持续性强
具有较强的可持续性,UHPC能够降低建筑能耗,实现安全文明施工,提高建造速度和缩短建筑周期。

source:google.cn
c、材料应用
UHPC的材料应用范围十分地广泛,主要涵盖建筑领域、景观领域、桥梁建造、市政管道、道路、铁路行业、特殊环境等。

source:DIARD ECO
① 建筑领域
包括建筑外装饰幕墙,建筑外围护结构、结构构件,结构加固,隔音楼板,大跨度屋顶,预制构件等。

source:zhulong.com
② 景观领域
包括家具、雕塑、公园小品等。

source:google.cn
③ 桥梁建造
包括预制装配式桥梁、钢桥面铺装、预制桥梁构件、钢混组合桥、旧桥加固、景观人行桥、大桥特殊区域及预制桥板系统所采用的接缝填充等。

source:google.cn
④ 市政管道、道路
包括预制雨污水管道、预制盖板、预制管廊节段、混凝土路面、道路平侧石等。

source:google.cn
⑤ 铁路行业
包括预制构件、轨道板自密实混凝土、隧道加固工程等。

source:google.cn
⑥ 特殊环境
包括沿海及海上工程、极寒地区、干燥地区等特殊环境的沿海桥梁、房建等。

source:google.cn
d、规格类型
超高性能混凝土标准板的常用参数如下:
尺寸规格
标准版通常为1600mm×3000mm,可实现规格尺寸900mm×1200mm等递增排版。

source:DIARD ECO
△ UHPC标准板(部分材料示例)

source:DIARD ECO
UHPC标准板具有极高的耐污性、高抗压抗弯折(可做悬空屋面)、低收缩、背栓抗拔性能高 、高白度及高光度、并可做大规模板、纯无机材料可达到顶级防火。
裂而丝连,UHPC标准板断后在纤维的作用下不会直接掉落,安全性拉满。

source:google.cn
技术参数

source:DIARD ECO
(以上为市面上大部分产品材料常用参数,仅供参考)
表面呈现方式
表面呈现方式如亮面、麻面、喷砂面、火烧面、异形加工等石材表面方式都能与其匹配,还可根据使用环境进行定制化的服务。

source:google.cn
△ 表面呈现方式示例(部分示例)
材料类型
UHPC常见的材料类型有UHPC透光混凝土、UHPC艺术混凝土、UHPC镂空板等。



source:DIARD ECO
△ UHPC透光混凝土(部分材料示例)

source:DIARD ECO
△ UHPC艺术混凝土(部分材料示例)

source:DIARD ECO
△ UHPC镂空板(部分材料示例)
2、施工工艺
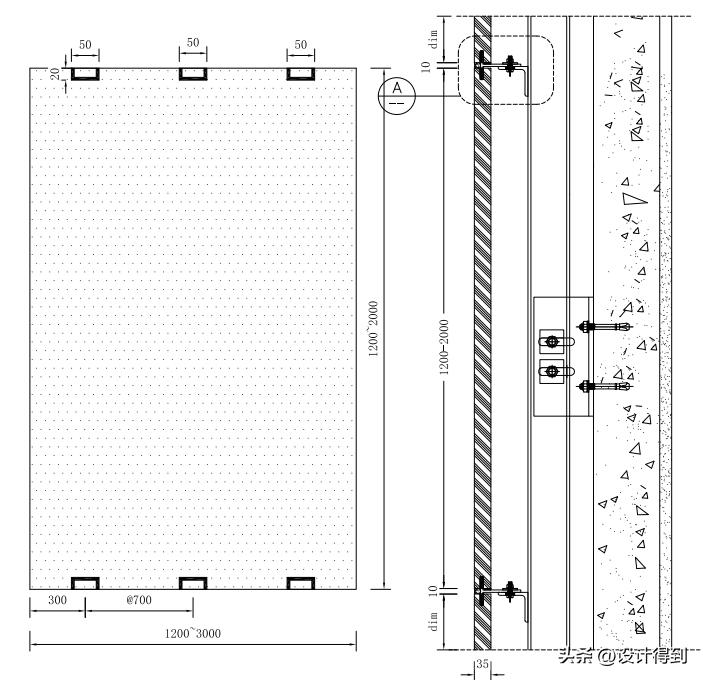
超高性能混凝土在室外墙面工程中最为常用,下面就以外墙干挂工艺为例,聊一聊它的施工工艺,具体流程为:
施工准备→钢连接件与龙骨连接→T型钢竖向龙骨吊装安装→T型钢横向龙骨安装→横梁上安装铝角码→测量调整铝角码位置→UHPC板吊装安装→调整就位后固定→修复安装孔→清洁验收

source:DIARD ECO
△ 施工过程示例


source:DIARD ECO
△ 节点详图示意
3、案例应用
UHPC在建筑、景观、桥梁、市政工程等项目中广泛应用,其最大亮点在建筑幕墙的应用,让建筑的表皮立面可以实现超高穿孔率,还可以得到传统材料难以达到的造型及图案。

source:google.cn
a、法国马赛塔大楼
法国马赛塔大楼的立面是由UHPC的遮阳结构组成,主要采用了3850个超高性能混凝土预制板作为建筑立面的栅栏遮阳构件,其细腻的质感和优异的耐候性成为地中海强烈的日光和海风侵蚀最佳的材料选择。


b、法国巴黎Jean Bouin体育场
法国巴黎Jean Bouin体育场采用了23000平方米的UHPC超高性能混凝土做表皮,主要应用于三大部分:立面采用自承重镂空面板,立面与屋面之间的交界处的镂空面板,以及600块嵌入玻璃的屋面面板。


c、法国巴黎路易威登基金会纪念馆
路易威登基金会博物馆早前于2014年底建成开幕,使用了UHPC板作为幕墙,位于巴黎近郊的这座建筑的外立面至今仍然保持着洁净和完好的状态,让这座博物馆看上去始终焕发着独特个性。


02. 预拌型无机饰面砂浆

1、材料特性
a、概念组成
预拌型无机饰面砂浆,是指以具有矿物质特性的高品质无机硅酸盐乳液为主要基料,以各种粒径的天然石英砂为骨料,以无机颜料调色,采用多种造型工具和造型工艺打造出不同质感效果的无机饰面材料。

source:DIARD ECO
适合作为外墙或内墙的装饰层,可作为普通基层或外墙外保温系统的外饰面层,有效保护建筑物结构及原质地。
b、材料特点
① 装饰性强
在色彩及纹理效果上,可以通过不同的施工方法达到丰富多彩的艺术造型。在光影效果上,不同的光线会产生不同的视觉感受。

source:google.cn
② 防火性好
防火等级可以达到*级A**,在火烧过程中,无刺 激性气味散发,不会产生浓烟。在高温燃烧后固化,不会产生有毒物质。
③ 防水透气
饰面砂浆特有的孔隙尺寸只允许单个分子出入,而无法让分子团进出,从而形成独特的憎水透气性能,是很好的建筑外墙材料。

source:google.cn
④ 耐候性强
性能稳定,不会粉化,耐擦洗,能够历经日晒雨淋而不褪色,持色性强,耐久性好。涂层厚度为1~3mm,能有效保护建筑物不受外力侵袭及气候的影响。

source:DIARD ECO
⑤ 渗透性强
饰面砂浆用无机基料会随水分渗入基面0.5mm以下,并与矿物质基底结合,形成一种抗碱的硅石,附着强度非常的优异,不易出现涂膜爆皮、脱落等情况。

source:DIARD ECO
⑥ 绿色环保
采用的无机材料为自然界中天然矿物质,资源保有量巨大,环保无毒。同时在生产和使用过程中,对环境和生活基本无污染。

source:google.cn
source:DIARD ECO
c、饰面样式
预拌型无机饰面砂浆的饰面样式主要有:划痕型效果、颗粒型效果、细粒型效果、仿砖效果、仿石效果等,颜色种类更是丰富多彩。

source:DIARD ECO
△ 部分饰面样式示例

source:DIARD ECO
△ 部分颜色种类示例
2、施工工艺
预拌型无机饰面砂浆在室外墙面工程中最为常用,下面就以仿砖效果为例,聊一聊其施工工艺,具体流程为:
施工准备→基层处理→批抹无机抗渗界面剂→打磨去灰→滚涂底漆→测量弹线→粘贴美纹纸或模具→批刮预拌型无机饰面砂浆→打磨修边滚涂或喷涂罩面漆→清洁养护

source:DIARD ECO
△ 施工过程示例
3、案例应用
预拌型无机饰面砂浆在建筑内外墙均可作为饰面材料使用,其色彩质感自然、视觉柔和,为现代建筑物内外墙装饰开辟了一条新的途径。
a、上海华山路425号改造项目


source:张虔希
b、上海泰晤士小镇


source:google.cn
c、拉萨瑞吉度假酒店


source:google.cn
03. 轻质柔石

source:DIARD ECO
1、材料特性
a、概念组成
轻质柔石,是以水泥、无机矿粉等原材料为基础,再经独有专利技术,通过固化交联多遍工艺后制成的带有精美饰面层的轻质薄板。

source:CLZX
它主要由水泥基底层、防水抗碱高强的致密层、抗紫外线纳米无机矿粉装饰层、耐酸耐碱耐候的氟碳树脂防护层组成。

source:DIARD ECO
b、材料特点
① 仿真性强
拥有陶板、石材、木板等数百种纹理,其图案、花纹、质感等非常逼真。很多品种根据天然石材又融入艺术创造,装饰性极强。

source:CLZX
② 耐火性强
主材选用无机矿粉、彩砂、水泥等无机物制造,其防火等级为*级A**。可应用于商业、学校、医院等公共建筑、高层住宅的内外墙装饰。

source:CLZX
③ 耐久性强
饰面采用无机矿粉融入优质氟碳树脂,高温交联固化,色泽恒久如新。饰面与板材一次性成型,浑然一体,耐酸耐破耐冻融。

④ 耐污自洁
拥有光洁亮丽的饰面,有超强的耐污能力,表面不吸水、不易污染。同时轻质柔石具有很强的自洁能力,一场大雨就可焕然一新。

source:CLZX
⑤ 施工便捷
自重轻,兼具刚性与柔性,不易形变,易于存放,易于裁切,可以大大降低工人的劳动负荷,提升劳动效率。
c、规格类型
轻质柔石可以分为砂陶板、仿石板、仿木板,其常用参数如下:
尺寸规格
砂陶板
100mm×300mm,100mm×600mm

source:DIARD ECO
△ 砂陶板(部分材料示例)
仿石板
300mm×1200mm,600mm×1200mm

source:DIARD ECO
△ 仿石板(部分材料示例)
仿木板
200mm×1200mm,300mm×1200mm,600mm×1200mm

source:DIARD ECO
△ 仿木板(部分材料示例)
厚度
通常为5mm~16mm
(以上为市面上大部分产品材料常用参数,仅供参考)
2、施工工艺
轻质柔石在室内外墙面工程中最为常用,具体施工流程为:
施工准备→基层检查→放线分割→刮涂粘结砂浆→粘贴轻质柔石→嵌缝处理→清洁养护

source:DIARD ECO
△ 施工过程示例
3、案例应用
轻质柔石适用于内外墙的装饰,美观、安全、耐久、防火、防霉、耐污、环保,是墙体瓷砖、石材等材料的新型替代品。
a、广西玉林育辉高级中学


b、成都天府国际


c、宁波象山宝龙东望项目


小结.
好了,本期的dop干货就到这儿,如有帮助,评论区扣“日拱一卒”,支持一下dop~
最后一张图,总结全文,拜了个拜~

△点击保存,欢迎转发分享
原创声明,本文为dop设计原创内容,首发证明:3种设计师必知的新型墙面材料!
转载请联系小编或者注明来源与原作者,原创不易,感谢理解。
- End -