项目地址 | 中建之星
项目面积 | 160平米
设计风格 | 新中式
主案设计 | 吴建雄

原始户型图

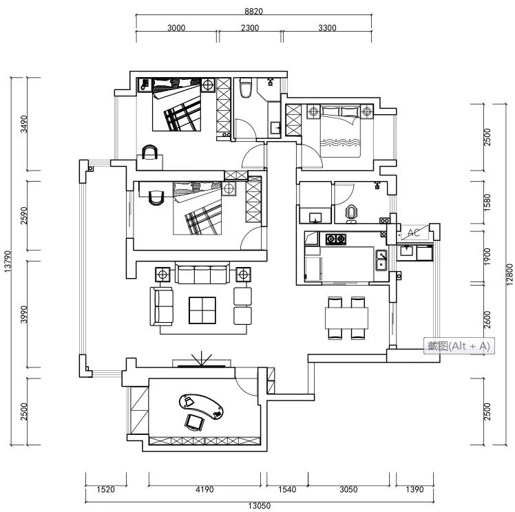
平面布置图
客厅的总体色调选择清新的东方高级灰,沙发用的是一组线十足的新中式家具,摒弃了满屋传统的中规中矩,以素雅的色彩,简洁的线条,融合东方美学,又不乏时尚休闲。

餐厅与客厅分而不割,互相渗透,在自由的空间中形成家庭社交空间。无隔断设计使空间关系更紧密生活场景丰富多彩,带给一家人舒适优雅的用餐环境与社交体验。

书房的设计,整体空间从结构上呈现出新中式独特的对称美,给人以庄重大气、有条不紊的视觉享受。中式的美,是超越了一切的物质而到达的一种精神境界的追求,它宁谧自然,清幽静美,像一股清泉般静静地流淌在空间里。

主卧延续整体室内空间的设计基调,清雅韵味。全房索菲亚定制柜子,卧室选用蓝色点缀,温度与质感并存,以含蓄的现代方式诠释东方意境,陈设置景,简凝诗意。

次卧注重实用性和功能性。装饰质朴淡雅、低调沉稳,内敛的色调与安静的场景营造创造出一方安宁的休憩场所,适量植物点缀也给室内带来一抹生机。

儿童房以简单纯粹的粉色作为主色,象征孩子澄澈的世界。床背全部采用软包,床上用品皆采用丝缎般轻柔的面料,给孩子最贴心的呵护,在不经意间将温柔缓缓凝聚。每个小女孩几乎都对一间粉色系公主房毫无抵抗之力。粉色与白色相互交织,让小女孩能够专心致志的经营生活的烂漫。


湖北龙剑装饰•首席设计师
吴建雄
毕业院校
天津工业大学环境与艺术专业
设计理念
室内是建筑的灵魂,是人与环境的联系,是人类艺术与物质文明的结合,人可以改变环境,环境可以影响人,而设计则可以改变人和环境
主要作品
城中金谷 江山风华 凡尔赛花园 保利时代 美岸观邸
半岛花园 香溪郡 中建之星 天玺 城中半岛等