参考造价:暂未填写| 空间:餐饮空间| 面积:1500平米
案例简介 Case description
金楼阁茶室Location |项目地点:四川省成都市—郭家桥西街8号Project area|项目面积1500m²(室内+室外)Design company|设计公司成都赤橙设计有限公司Chief Designer | 主创设计师姜巍庆Soft decoration designer | 软装设计师林丰Photographer | 摄影师季光


悠闲的下午马路边,树荫下一壶茶,三五好友这是一个关于 成都老茶店的“回归市井”之作 也是一个“老楼改造”项目


这是一个关于成都老茶店的“回归市井”之作,也是一个老楼改造项目,而关于成都的记忆总是少不了盖碗茶及藤编椅---悠闲的下午,马路边,树荫下,一壶茶,三五好友……然而这些已然逐渐变成了回忆,最后也仅仅是回忆而已。现在茶店逐渐搬进了商业综合体,同时也失去了原来的“味道”。本次设计是一种回归,一种关于“味道”的回归。This is a work about "returning to the market" of the old tea shop in Chengdu, and it is also an old building reconstruction project. The memory of Chengdu is always full of cups of tea and rattan chairs --- a leisurely afternoon, beside the road, under the shade of trees, a pot of tea, three or five friends However, these have gradually become memories, and finally only memories. Now the tea shop gradually moved into the commercial complex, but also lost the original "taste". This design is a kind of regression, a kind of regression about "taste".


这种味道不是“有形”的元素或空间,而是“无形”的生活方式,而这样一种生活方式才是老茶室的“本质”。项目的选址是在郭家桥西街,重新回归于市井街边店,回归马路边,回归树荫下……这才是记忆中的“味道”。This kind of taste is not a "tangible" element or space, but an "invisible" way of life, which is the "essence" of the old teahouse. The site of the project is located in guojiaqiao West Street, returning to the street side store, returning to the road side, returning to the shade of trees This is the "taste" in memory.既然是回归,照搬传统的东西是没有意义的,就像是一位留学后回到故乡的学者,他出身市井,又回到市井,他已不是原来的“他”,但他还是原来的“他”。Since it's a return, it's meaningless to copy the traditional things. It's like a scholar who returned to his hometown after studying abroad. He came from the marketplace and returned to the marketplace. He is not the original "he", but he is still the original "he"



回到市井,回到了马路边重新回到市井,回到马路边,只要抓住传统茶店的“本质”所在,“味道”就不会丢失,在此基础上,用现代的东西去诠释它。Back to the market and the road, as long as we grasp the "essence" of the traditional tea shop, "taste" will not be lost. On this basis, use modern things to interpret it..

设计中用到了大量的金属和玻璃,这些材料是现代的,优势也是显而易见的,我们要敢于运用,发挥他们应有的左右,主题的色调是孔雀蓝,搭配金属色做为点缀:外立面垂吊的绿色金属装置,它的灵感源自于风中摇曳的竹,在风吹动下,彼此碰撞发出清脆的声音,与周围环境形成味觉上的互动。A large number of metal and glass are used in the design. These materials are modern and their advantages are obvious. We should dare to use them and give full play to their right and left. The theme is peacock blue, which is decorated with metal color. The green metal device hanging from the facade is inspired by the swaying bamboo in the wind. Under the wind, they collide with each other and make a crisp sound , the interaction with the taste of the surrounding environment.


属于茶的实验室首先进入茶室之后,视觉第一焦点落于中心点的是一个类似于实验室的操作中心,承载着各种泡茶、制茶设备,这里是整个茶室的灵魂,是金楼阁的灵魂所在。而往右边行走,通过两个竖向造型的分割,是一个金楼阁店中店,于此,在斑驳岁月的老砖墙上承载着茶、礼、品、器4个说明。After first entering the tea room, the first visual focus is on the center point, which is similar to the operation center of the laboratory, carrying all kinds of tea making and tea making equipment. Here is the soul of the whole tea room and the soul of the Golden Pavilion. Walking to the right, through the division of two vertical models, is a gold Pavilion Shop. Here, on the old brick walls of mottled years, there are four descriptions of tea, gift, product and utensil.



同时,此处还有试饮区、茶具展示和茶礼购买,通过色彩、造型构成吸引人前去,再加上一些文字的指导,让人产生购买冲动,往左边行走,就是饮茶区域,开放的座位设置,有序的空间构成让顾客安静的坐在每一个位置品茶,前后通透,竖向线条分割每一个区域。在进入庭院与卫生间的中央,是一整个空间的中心点,通向二楼。At the same time, there are trial drinking area, tea set display and tea ceremony purchase here. Through color and modeling, people will be attracted to go forward. With the guidance of some words, people will have an impulse to buy. Walking to the left is the tea drinking area. Open seats are set, and orderly space structure makes customers sit quietly in each position to taste tea. The front and back are transparent, and the vertical lines divide each area 。In the center of the courtyard and toilet, it is the center of the whole space, leading to the second floor.




设计选材,用户体验地面采用10年前流行的水磨石作为回归材料,墙面造型极简,大面积乳胶漆加一些钢质材料,保留了很多老建筑上的红砖,加一些通透的超白玻璃,成本造价控制的极有性价比,打造出一个经典,不易过时的空间。The terrazzo that was popular 10 years ago is used as the return material for the ground. The wall is very simple in shape. A large area of emulsion paint is added with some steel materials. Many red bricks on the old buildings are preserved, and some transparent ultra white glass is added. The cost cost control is very cost-effective, creating a classic and not easily outdated space.

茶室的一股清流,区别传统的茶室、网红的茶室,它带给人的是另外的一种情怀,安静内敛,空间设计取材于中间的传统文化,回归于东方美学,是一种全新的茶饮空间,东方的美学新的材料、新的造型表达,在一个老街区,又和附近的店完全不相同,是一种新的消费体验。A stream of tea rooms, different from traditional tea rooms and net red tea rooms, brings people another feeling. It is quiet and introverted. The space design is based on the traditional culture in the middle and returns to oriental aesthetics. It is a new tea drinking space. The new materials and new modeling expressions of Oriental Aesthetics are totally different from those of nearby shops in an old block, which is a new one Consumer experience.



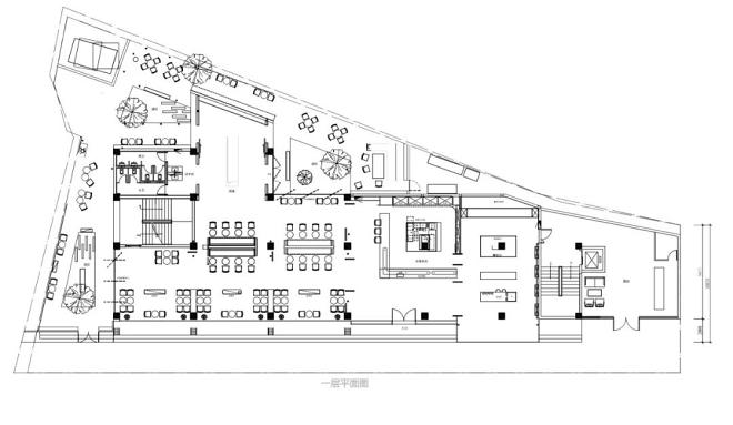
平面图1F

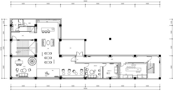
2F

-1F

收藏

姜巍成都赤橙设计合伙人赤橙设计,RED ORANGE DESIGE,以当代的感官体验为设计视角,进行设计研究与实践,强调空间里的文化与功能,在符合当代审美需求的前提下,通过设计来造就更好的生活形式,借用设计的语言来表达我们的世界观。提供符合现代商业趋势下“ 新生态”文化内容的建筑、室内、景观、灯光、艺术产品设计等服务。我们拥有一支集建筑、室内、艺术、品牌策划等复合型专业团队,服务于酒店、民宿、商业空间、企业品牌服务等领域,致立于建立完整的设计服务链。