这房子放的不是一般的久了哦,为了能找到心怡的装饰公司没少费心。欧式风一直是我和老公最爱的装修风格,打定装修的时候也就一直想着整个大气 奢华 明亮舒服的家,如今看到效果的一刻,还是满满的感动哦!
设计师:江楠
楼 盘:中大紫都
城 市:南昌
房 型:复式
面 积:223 平米
风 格:欧式
造 价:30万(不含主材)
设计说明:
本案设计以奢华欧式风格为主,整体围绕“致力打造纯正欧式”理念为主去做设计.在与业主交流中,业主一再强调在保证美观大气前提下,功能实用性与储物空间要做到充分发挥,所以在整体设计中,着重考虑这一块的要求.在本案设计中,设计师把功能实用性与效果美观性整体考虑,以硬装软装结合搭配,尽心尽力去为业主打造一个整体实用,欧式奢华,空间明亮大气的一套豪宅!

客厅

餐厅

主卧

小孩房

书房

楼梯间

老人房

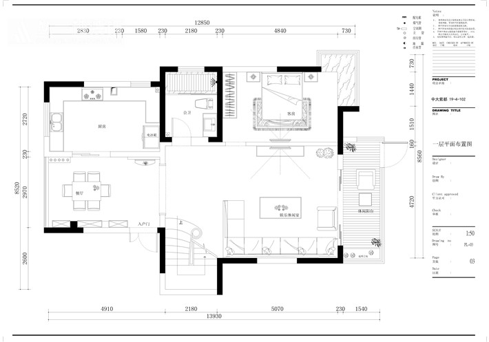
一楼平面布置图

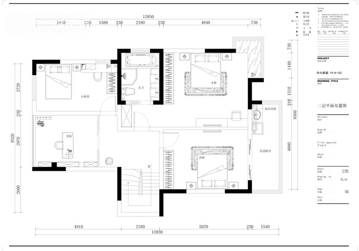
二楼平面布置图

一楼原始结构图

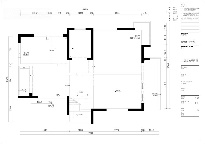
二楼原始结构图
以下更多关键词内容,亲直接戳“丛一楼装饰”头条号内容查看
关键词:红谷滩新区 | 西湖区 | 东湖区| 青山湖 | 高新开发区 | 青云谱| 经济开发区 | 新建县 | 南昌县| 别墅 | 写字楼 | 商铺| 一居 | 二居 | 三居 |空间 | 客厅 | 卧室 | 餐厅 | 厨房 | 卫生间 阳台 |书房 |玄关 | 过道 | 儿童房 |衣帽间 | 花园 |局部 | 背景墙 |吊顶 |隔断 |窗帘 |飘窗 |榻榻米 | 橱柜 |博古架 | 阁楼 |隐形门 |吧台 | 酒柜 |鞋柜 | 衣柜 |窗户 |相片墙 楼梯 | 窗台 | 罗马柱 | 垭口 |壁橱 | 门口/大门 | 落地窗 |其它 | 风格 |简约 |现代 | 中式 欧式 |美式 |田园 |新古典 | 混搭 | 地中海 | 东南亚 |日式 |宜家 |北欧 | 简欧 | 巴洛克 复古
需要看实景工地的亲,欢迎咨询
-------我是华丽丽的分隔线--------
如果你正打算装修,咨询装修问题和报价,设计师微信号:13870823590(仅限南昌),觉得在手机上看图不舒服?联系我给你全套大图。做装修我们是认真的!