
现代风设计
整个风格色调选用灰白色+原木色搭配

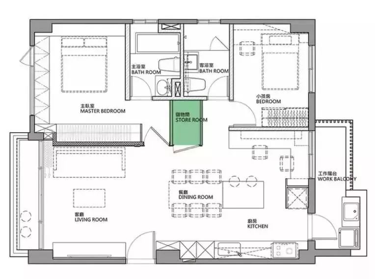
原始户型是一个三房两厅的格局
经过设计师的重新布置
加大了主卧面积
并把原有走道空间变成了储藏室
还将书房的墙面拆除
设计成厨房中岛

平面图

轴测图
客厅使用水泥墙面
铁件+木材的电视柜让整体看上去简洁又大气

暖色调的沙发与灰色墙面形成对比
黑色的铁艺吊灯与壁灯
很好的渲染了整体氛围

在沙发旁边
隐藏着通往卧室的门和储藏室的入口
融为一体的设计很受屋主喜爱

拆除了隔墙后
书房变成了开放式设计
简单的木头书桌+铁艺书架
搭配从窗外透进来的阳光
显得格外舒适

室内也能看到窗外的绿植
在这里办公、看书很是惬意

因为整个空间的基调偏冷色系
所以设计师在厨房中使用大量白色橱柜
让整体看起来更宽阔
也富有活力

厨房与书房之间隔着岛台与餐桌
洞洞墙将侧面空间完全利用
墙后还放着冰箱
靠近书房的一边则做成了书架

虽然是开放式设计
收纳空间却很多

餐桌连接着白色的岛台
清新的色调搭配上木质餐椅
清新感十足

顶部延伸的天花板界定了区域
再利用三盏吊灯照明
温馨又浪漫

淋浴区用玻璃隔开
做干湿分离设计
墙上的小窗户用来通风换气
很是方便

窗户下方做了小的卧榻
能当座位使用
底部还有储物空间
实用性十足
文章来源:室内设计联盟
新开微信公众号:【软装学堂】
软装色彩专业知识分享者
充分交流,请加软装色彩创建人
/私人微信:huixiaomian
/备注:软装设计师