
TSING HORSE DESIGN
丨青马别墅空间设计最新案例丨

PROJECT
INFORMATION
建筑户型 ︱ 别墅
设计风格 丨 现代
项目名称 ︱ 龙湖天宸
施工面积 ︱ 300平米
全案产品 丨 斯米克瓷砖、高仪卫浴、宾图木门、老板电器、大金空调、怡口净水、集美科地暖、华为智能、林内热水器、西蒙照明、欧派橱柜、克劳嫩堡美缝、施耐德开关、艾尔西软装等

PROGRAMME
设计方案
-
本案300平方米别墅
南北通透,通风、采光良好,户型较为方正
设计通过简约的造型与质朴的材料
结合舒适温馨的氛围
置身其中令人神韵闲适又轻松
回归到家庭它不需要太大,但一定要宁静舒适
by-本案设计师 付必正 寄语
-


-
一楼客厅以环保的设计思维出发
没有用过多的材料推砌
以原木色镂空开架增加空间的储物空间
餐厅以一副素色的装饰画点缀空间
穿透力和空气感给空间带来艺术享受
光影之美漫进屋颇具悠扬画卷意境
-



-
打造一方雅致茶室
追求精神世界的绝对纯洁与干净
营造一方能让人静下来的居所
且能承载日常迸发的有趣灵感
品茗与时光缓慢并行
这里流转着静谧舒适的韵味
-


-
负一楼安排多功能娱乐室
男主人归家后从地下车库进来
坐下来小酌怡情,把玩收藏的茶具
另一边是一家人休闲娱乐影音室
观看最新影片亦或高歌一曲 好不惬意
简净的日常生活不繁复难懂,洽谈而又其乐融融
-


-
巧妙运用采光井增加地下室采光、通风
打造出自然通透的娱乐环境
通过材质的纹理增添自然气息
棋牌室以简单的装饰品点缀
从空间出发,通过整体风格烘托细节的质感与美感
舒适之间藏着细腻与美感,优雅至极
-
ANALYSIS DIAGRAM
分析图
-

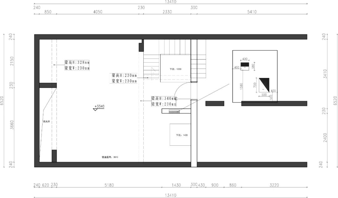
-1F原始平面图

-1F平面布局图

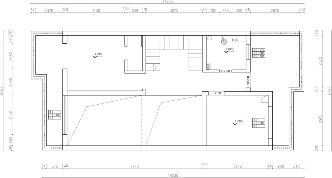
1F原始平面图

1F平面布局图

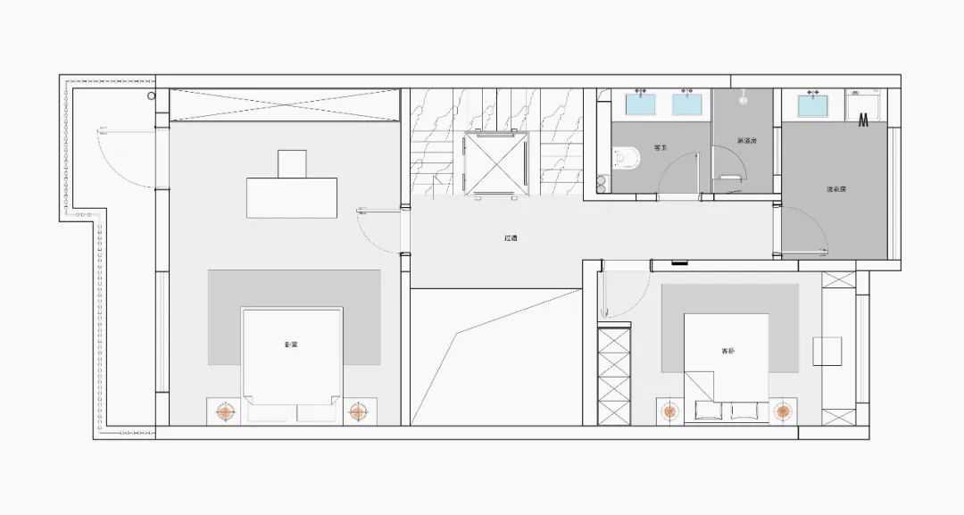
2F原始平面图

2F平面布局图

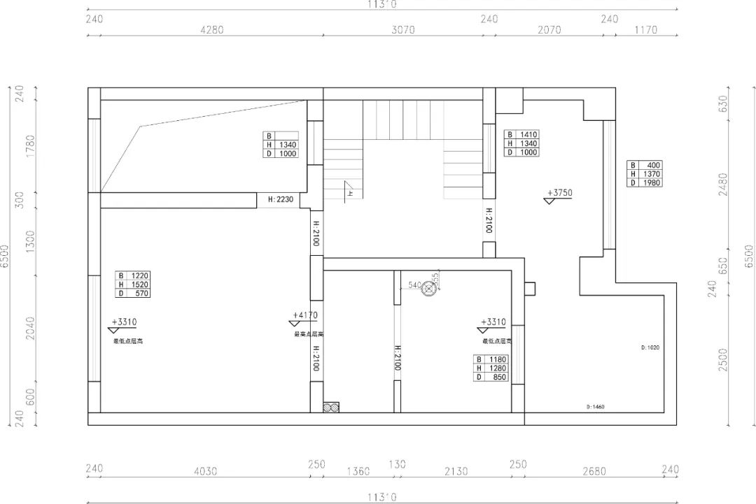
3F原始平面图

3F平面布局图
INFO
- 主案设计 -
付必正
- 工程管家 -
刘强
-客户经理 -
陈茜羽
- 设计公司 -
青马别墅设计
-
DESIGNER
主创设计
-

付必正
青马设计主创设计师
毕业于西安美术学院环境艺术设计系室内装饰行业
室内装饰行业从业16年以上,专属大宅全案设计
资质
中国室内装饰协会注册设计师
国际ICDA室内设计师协会会员
设计理念
设计的目的是营造一个适合、实用、美观的享受空间!家的本质在于恒久的内涵和温馨舒适的气韵!
殊荣
2008年中国室内设计新秀选拔赛优秀奖;
2009年中国十大设计新锐大奖赛三等奖;
2009年中国西安“阿姆瑞特家具”设计大赛优秀奖;
2010年首届三亚环境艺术设计入围奖;
2011年西安优秀设计师;
2012年第二届中国原点国际家具文化设计大赛优秀奖;
2013年中国筑巢装饰设计奖银奖;
2018年西安建筑设计奖银奖;
西安广播电台91.6 98.8装修栏目特邀嘉宾
案例
湖城大境、金地芙蓉世家、曲江六号、国熙台、红枫林、龙湖紫都城、逸翠园、中海泊宫、高山流水星币传说、中铁尚都城等、就掌灯、龙湖璟城、中海铂宫、翰林府...