
第一节通风空调工程施工方案
1、风管施工工艺
施工程序

1.1 风管制作
1.1.1 通风管道加工说明
根据设计要求,为确保施工质量 ,方便业主现场监督检查 ,在现场布置一个小型风管加工车间。风管制作前选料将严格遵守设计要求和国家施工验收规范之规定。镀锌版不能有锈蚀斑点, 折方及咬口后镀锌层不得有脱皮现象; 加工风管及管件咬口不得开裂, 铆法兰不得有漏铆及铆钉脱落现象; 角钢法兰刷油均匀, 三通、四通、弯头、圆管上装的风口嘴子处不得有透光孔洞,法兰口要求方正,角钢不得塌腰或弯曲,法兰翻边外接缝处不得有双层,各种阀件开关要灵活。
1.1.2 施工技术措施
为保证风管加工质量,根据设计要求和国家施工验收规范有关规定,对各施工工序说明如下:

5)矩形风管长边大于 630MM 或保温风管边长大于 800MM,段长大于 1250MM
或单边平面积大于 1.2m2,沿管道中心按下表要求设加强筋加强:

6)保证风管的严密性符合设计及施工验收规范之要求,根据施工经验,在施工
中重点处理好以下几个节点问题:
A、咬口缝;
B、风管接口连接时的缝隙;
C、铆法兰及翻边时出现的漏洞(死角洞) ;
D、法兰及加固筋等的铆钉处;
E、风管不正常碰撞破裂和扎孔等。其中E 项可在施工中尽量避免发生,一旦发生,我们将采取锡焊封堵的方法进行补救。 其它四项施工中均在所难免, 施工中我们将通过在接缝处加入 1*10 橡胶条或 KS 密封胶的方法进行预防和补救。
根据设计图纸与现场实际测量情况绘制通风系统分解图,按施工进度制定风管及零部件加工制作计划, 编制明细表和制作清单交制作车间实施。 要求选定的风管供方按照提供的生产计划,保质、保量地为本工程供应风管。生产过程中,我单位将派专业工程师赴生产一线进行过程抽检,做好过程控制工作。

1.1.3 金属风管的加工工艺
1.1.3.1板材的切割
切割时,必须进行划线的复核工作,防止因下料造成浪费。剪切后,应做到板材的切口整齐, 直线平直, 曲线圆滑。 剪切可根据施工条条件采用手工工具或剪板机械进行。
1.1.3.2金属薄板的连接
用金属薄板制作的通风管道及附件, 可根据板材的厚度及设计的要求, 分别采用咬口连接,铆钉连接及焊接等方法进行板材之间的连接。
1.1.3.3咬口连接
通风、空调工程中,咬口连接是最常用而简单的连接方式,一般适用于:厚度小于 1.2mm 的普通薄钢板和镀锌薄钢板, 厚度小于 1.5mm 的铝板;厚度小于300.8mm 的不锈钢板。
(1)咬口种类:根据钢板接头的构造,分为单咬口、双咬口、按扣式咬口、联合角咬口、转角咬口;根据钢板接头的外形,分为平咬口、立咬口;根据钢板接头的位置,分为纵咬口、横咬口
(2)咬口宽度和留量:咬口宽度按制作管件的板厚和咬口机械的性能而定,一般来说,对于单平咬口、单立咬口、单角咬口的的咬口留量等于三倍咬口宽。联合角咬口的留量等于四倍咬口宽,咬口应根据咬口需要,分别留在两边。
(3)咬口的加工:板材咬口连接的加工过程,主要是折边和咬合压实。折边的质量应能保证咬口工缝的严密及牢固, 折边宽度一致。 平直或咬口合压实时不能出现半咬口和张缝等现象。 咬口的加工可用手工或机械进行, 手工加工的咬口易出现咬口缝不严密, 折边度度不一致, 半咬口或张缝等现象, 即耗时又不能保证质量,本工程采用机械加工,即节约了资金又提高了效率。
1.1.3.4铆钉连接
板材间的铆接, 在通风、空调工程中一般是在设计要求或镀锌钢板厚度超过咬口机械的加工性能时才使用。 铆接除用于板之间的连接外, 还常用于风管与法兰的连接。铆接前,应根据板厚来选择铆钉直径、 铆钉长度及铆钉之间的间距等。铆钉的直径 d=2s(s 为板厚)但不小于 3mm;铆钉长度 L=2s+1.5d 。铆钉之间的间距 A 一般为 40—100mm,严密性要求较高时,其间距应小一些,铆钉孔中心到板边的距离 B=(3—4)d。铆接时,必须使铆钉中心垂直于板面,铆钉帽应把板材压紧, 使板缝密合, 并且铆钉排列应整齐, 板材铆接可采用手工铆接和机械铆接两种。
1.1.3.5焊接
板材之间的连接, 除采用咬口连接和铆钉连接外, 对于管道密封要求较高或板材较厚不能采用咬口连接时, 采用焊接。 风管及部件制作时应根据板材的厚度和材质,采用氧气一乙炔焊、二氧化碳气体保护焊、氩弧焊、电焊及接触焊等,也可用锡焊来焊接一般薄钢板或镀锌钢板的咬口缝隙。焊接时,焊缝表面应平整,不应有裂缝、烧穿、结瘤等现象。焊接形式可根据板材的厚度、材质、密封要求,采用对接焊缝、角焊缝、搭31接缝及搭接角焊缝。
1.1.3.6板材的卷圆和折方
板材的卷圆,板材的卷圆可采用手工或机械方法进行。
手工卷圆:将经过咬口折边的板材,把咬口附近板边在钢管上用方尺拍圆,然后先用手后用方尺进行卷圆。使咬口能相互扣合,并把咬口打紧打实。接头再找圆,找圆时方尺用力应均匀,不宜过大,以免出现明显的痕迹,直到风管的圆弧均匀为止。
机械卷圆:一般应用卷圆机进行,操作时应先把咬口附近的板边,在钢管上用手工拍圆, 再把板材送入卷圆机的上下辊之间, 辊子带动板材转动, 板材即成圆形。
1.1.3.7板材的折方
折方可用手工或机械进行
手工折方:折方前板材应先划好折曲线,再把板材放左作台上,使折曲线和槽钢边对齐, 一般较长的风管由两人操作, 两人分别站在板材两端, 一手把板材压在工作台上,不使移动;一手把板材向下压成90o直角然后用木方尺进行修整,直到打出棱角,使板材平整为止。机械折方:机械折方可用手动折边机,也可用SAF—9 型折主机。其操作方法和板制角咬口立折边相同。
1.1.4 通风系统部件制作
1.1.4.1各类风口制作
风口常用类型是装有网状或条形栅格的矩形回风口,没有联动调节装置。其他类型的风口都设有联动调节装置, 空调工程中最常有的 135型风口,调节范围达 135o,分单层、双层、三层三种形式,可根据精度要求选用。净化工程各种形式的散流器(平送散流器,盘式散流器,直片式散流器和流线型散流器)都规定具体制作质量标准。
1)风口表面应平整与设计尺雨寸允许偏差不应大于2mm。矩形风口两对角线之差不应大于 3mm,圆形风口任意正交两直径的允许偏差不应大于2mm。
2)风口的转动调节部分应灵活,叶片应平直,周边框不得磨擦。
3)插板式及活动篦板式风口,其插板,篦板应平整,边缘光滑,抽动灵活。活动篦板式风口组装后应能达到完全开启和封合。
4)百叶式风口的叶片间距均匀,两端轴的中心应在同一直线上。手动式风口叶片与边框铆接下来应松紧适应。
5)散流器的扩散环和调节环应同轴,轴向间距离分布详均匀。
6)孔板式风口,孔口不得有毛刺,孔径和孔距应符合设计要求。
7)旋转式风口,活动件应轻便灵活。风口加工时应注意部位的尺寸,如内部叶片与外框的尺寸应正确,相互配合时应适度,不得有叶片与外框磨擦的现象。另外,活动部分如轴,轴套的配合尺寸应松紧适度。装配好后应加注润滑油,以免生锈。喷漆最好在装置前进行。
1.1.5 风阀的制作
通风与空调工程常用的阀门有:插板阀、蝶阀、多叶调节阀,离心式通风机圆形瓣式启动阀,空气处理室中旁通阀、防火阀和止回阀等。制作通风与空调工程各种阀门时,应特别注意制动装置动作要灵活,以避免阀门卡涩而不能开闭。空调系统总风管上的调节阀,由于安装位置高,调节不便,空调系统停止运行一段时间后再使用时,阀门往往不能开启,如果强力扳动,会把手柄板断,因此转轴大小应适当,制作时应采取防腐措施;阀门的轴和轴承的材质用铜或铜锡合金制造,这样就可以保证阀门调节灵活。
阀门制作具体要示如下:
1)阀门的制作应牢固,调节和制动装置应准确、灵活、可靠,并标明阀门启闭方向。
2)多叶阀叶片应能贴合,间距均匀,搭接一致。
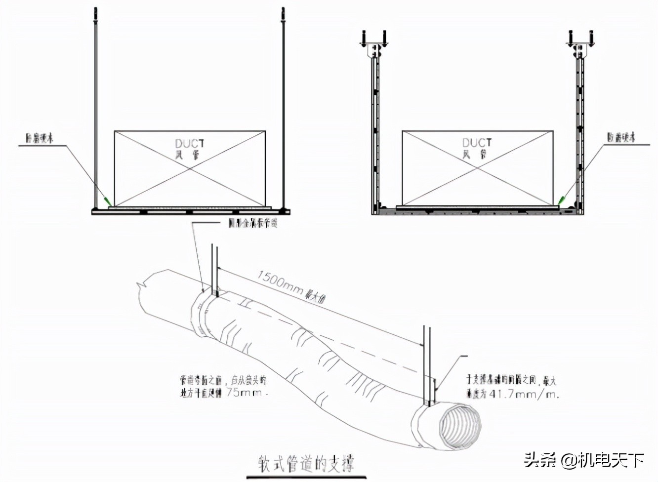
3)防火阀应符合下列要求:外壳应能防止失火时变形失效,其厚度不应小于2mm;转动部件在任何时候都应转动灵活,并应采用耐腐蚀的材料制作。1.2 风管支吊架制作安装
(1) 风管支、吊架的安装要做到牢固、可靠,支吊架的间距按规范执行;支吊架位置按风管中心线确定, 其标高要由风管设计的标高来确定, 支吊架不得设在系统风口、风阀、栓视门和测定孔等部位。

(2) 定位、测量和制作加工指定专人负责,既要符合规范标准的要求,又要与水电管支吊架协调配合、互不防碍。
(3) 风管支、吊架制作前,首先要对型钢进行矫正,矫正的方法有冷矫和热矫两种;小型钢材一般采用冷矫正, 较大的型钢须加热到 900℃左右后进行矫正。矫正的顺序为先矫正扭曲后矫正弯曲。
(4) 风管支、吊架的型式、材质、加工尺寸、安装间距、制作精度、焊接等应符合设计要求, 不得随意更改, 开孔必须采用台钻或手电钻, 不得用氧乙炔焰开孔。
(5) 支、吊架的焊接应外观整洁,要保证焊透、焊牢,不得有漏焊、欠焊、裂纹、咬肉等缺陷。
(6) 吊杆圆钢应根据风管安装标高适当截取。套丝不宜过长,丝扣末端不宜超出托架最低点 , 不应妨碍装饰吊顶的施工。
(7) 风管支、吊架制作应符合下列规定:
a. 支、吊架的形式和规格宜按本标准或有关标准图集与规范选用,直径大于2m 或边长大于 2.5m 的超宽、超重特殊风管的支、吊架应按设计规定。
b. 支、吊架的下料宜采用机械加工, 采用气焊切割口应进行打磨处理。 不应采用电气焊开孔或扩孔。
c. 吊杆应平直,螺纹应完整、光洁。吊杆加长可采用以下方法拼接:
d. 采用搭接双侧连续焊,搭接长度不应小于吊杆直径的6 倍;
e. 采用螺纹连接时,拧入螺母的螺杆长度应大于吊杆直径, 并有防松动措施。
(7) 矩形金属水平风管在最大允许安装距离下,吊架的最小规格应符合下表
规定:

(8) 密封垫材料
洁净空调系统风管采用 PE垫片,厚度为 6mm,宽度视风管法兰宽度而定。排烟系统风管采用玻璃纤维垫片,厚度为3mm,宽度视风管法兰宽度而定。
(9) 法兰夹安装
法兰夹的安装间距一般为150mm-200mm,安装时应尽量使螺栓朝向和间距一致,并注意使法兰夹平整,减少法兰的变形。严格按规范规定的要求拆模,严禁为抢工期、节约材料而提前拆模。
1.3 风管安装
风管安装无特殊要求, 可采用与角钢法兰风管相似的安装方法, 风管可在地面组装后规模吊装。 由于这种形式的风管容易变形, 需在安装前后对风管进行调整。400mm以上管径的风管可以先吊装后加法兰夹而不会有明显变形,但若锁紧法兰角螺栓则风管中间法兰不能贴合,这种安装顺序对洁净风管的施工是不利的,需加法兰夹。 350mm以下管径的风管则需在吊装前安装法兰夹,否则,水平35管弯曲形变比较明显。

1.4 阀门安装
如需在共板法兰风管中安装角钢法兰的阀门,可直接在共板法兰上配孔, 用螺栓连接; 如果阀门也为共板法兰形式, 则可直接用法兰夹相连。 由于共板法兰强度不如角钢法兰, 因此较重的阀门需单独悬吊, 如防排烟阀等; 一般的手动对开多叶调节阀可选择另加一副吊架。
1.5 风管配件安装
风帽安装
A.风帽安装高度超过屋面 1.5mm,应设拉索固定,拉索的数量不应少于 3 根,且设置均匀、牢固。
B.不连接风管的筒形风帽, 可用法兰直接固定在混凝土或木版底座上。当排送湿度较大的气体时,应在底座设置滴水盘并有排水措施。
风口安装
A.各类风口安装应横平、竖直、严密、牢固,表面平整。
B.带风量调节阀的风口安装时,应先安装调节阀框,后安装风口的叶片框。同一方向的风口,其调节装置应设在同一侧。
C.散流器风口安装时, 应注意风口预留孔洞要比喉口尺寸大, 留出扩散板的安装位置。

D.洁净系统的风口安装前, 应将风口擦拭干净, 其风口边框与洁净室的顶棚或墙面之间应采用密封胶或密封垫料封堵严密,不能漏风。
E.球型旋转风口连接应牢固,球型旋转头要灵活,不得空阔晃动。
F.排烟口与送风口的安装部位应符合设计要求, 与风管或混凝土风道的连接应牢固、严密。
风阀安装
A.风阀安装前应检查框架结构是否牢固, 调节、制动、定位等装置是否准确灵活。
B.风阀的安装同风管的安装, 将其法兰与风管或设备的法兰对正, 加上密封垫片,上紧螺栓,使其与风管或设备连接牢固、严密。
C.风阀安装时, 应使阀件的操纵装置便于人工操作。 其安装方向应与阀体外壳标注的方向一致。
D.安装完的风阀, 应在阀体外壳上有明显和准确的开启方向、 开启程度的标志。
E.防火阀的易熔片应安装在风管的迎风侧,其熔点温度应符合设计要求。
2、空调设备安装

2.1 材料设备检查
A.设备与材料应具有出厂合格证及质量证明文件。37
B.设备、材料的名称、型号和规格应符合设计要求。
C.设备及其零、部件应无缺损、锈蚀、变形。
D.其他安装时使用的相关材料应符合设计要求,且不得有质量缺陷
2.2 作业条件
A.施工前应具备设计和设备的相关技术文件。 认真熟悉图纸,编制施工方案。若属大型设备, 应单独编制设备运输吊装施工方案。 冷水机组等大型设备的吊运方案,按规定审核、批准后施工。完成技术安全交底,做好施工技术准备工作。
B.对运输所经过的道路进行清理, 核实预留的运输孔洞尺寸, 主要材料和机具及劳动力等,有充分准备,并已做出合理安排。
C.利用建筑结构作为起吊、 搬运设备的承力点时, 应对结构的承载力进行核算,必要时应经设计单位的同意方可利用。
D.建筑物屋面、外墙、门窗和内部粉刷等工程应基本完工,有关的基础、沟道等工程应已完工,其混凝土强度不应低于设计强度的75%;安装施工地点及附近的建筑材料、泥土、杂物等,已清除干净
2.3 设备现场运输
A.大型设备的现场运输按施工方案的要求进行,未经审批不得修改施工方案。
B.设备水平运输时尽量使用小拖车, 如使用滚杠需采用保护措施, 防止设备磕碰。
C.设备垂直运输时, 对于裸装设备应在其吊耳或主梁上固定吊绳,整装设备根据受力点选好固定位置将吊绳稳固在外包装上起吊,吊装时应采取措施, 保证人员及设备的安全。
2.4 设备就位调整
A.设备置于基础上后, 根据已确定的定位基准面、 线或点,对设备进行找正、调平。复检时亦不得改变原来测量的位置。 当设备技术文件无规定时, 宜在设备的主要工作面确定。
B.组合式空调机组在安装前先复查机组各段体与设计图纸是否相符,各段体内所安装的设备、部件是否完整无损,配件应安装齐全。
C.分段组装的组合式空调机组安装时, 因各段连接部位螺栓孔大小、 位置均38相同,故需注意段体的排列顺序必须与图纸相符,安装前对各功能段进行编号,不得将各段位置排错,空调机组分左式和右式。

D.对于有表冷段的空调机组组装时应从空调设备上的一端开始,逐一将各段体抬上基座校正位置后加衬垫,将相邻的两段用螺栓连接严密牢固。
E.对于有喷淋段的空调机组组装时, 首先安装喷淋段, 再组装两侧的其它功能段。
F.风机单独运输的情况下,先安装风机段空段体,再将风机装入段体。

G.空调机组与供、回水管的连接应正确,且应符合产品技术说明的要求。
H.密闭检视门及门框应平正、 牢固,无滴漏,开关灵活;凝结水的引流管(槽)畅通,冷凝水排放管应有水封,与外管路连接应正确。
I. 组合式空调机组各功能段之间的连接应严密,连接完毕后无漏风、渗水、凝结水排放不畅或外溢等现象出现,检查门开启应灵活

2.5 风机盘管安装
安装风机盘管时,位置应准确,吊装牢固,并使其便于拆卸和维修;风机盘管与风管、 回风室及风口连接处应严密; 供回水管上的截止阀应安装在滴水盘上方,滴水盘内应无积水现象;凝结水管坡向、坡度应正确,保证凝结水畅通地流到指定位置,严防逆坡现象发生。在供、回水管与风机盘管对接前,应安分支环路进行系统吹污,直至污物吹净为止。水压试验的压力为工作压力的1.5 倍。

1)风机盘管安装前进行单机三速试运转及水压试验。试验压力为系统工作压力的确 1.5 倍,不漏为合格。
2)风机盘管就位前,应按照设计要求的形式、型号及接管方向进行复核,确认无误后才能安装。
3)对于暗装的风机盘管, 在安装过程中应与室内装饰工作密切配合,防止在施工中损坏装饰的顶棚和墙面。
4)与风机盘管连接的冷冻、冷却水管,按供水和回水的连接位置安装(即下送上回),以提高空气处理的热工作性能。
5)风机盘管的支吊架做好除锈防腐,安装点便于拆卸和维修。
6)凝结水排水坡度应坡向排水管, 防止反坡而造成冷凝水盘内的水外溢。 供、回水阀门靠近风机盘管安装。
2.6 水冷分离式空调机组安装
2.6.1水冷分离式空调器的主要结构由三部分组成:
1)市内机组:包括蒸发机、风机、毛细管及电器控制部分。
2)市外机组:包括压缩机、冷凝器及冷凝风机。
3)连接管;包括制冷剂液管和吸气管。
2.6.2水冷分离式空调机组的安装:
1)根据室内机组接管的位置, 来确定墙上的钻孔位置, 按照说明书上的要求的钻孔尺寸钻孔,并将随机带来的套管插入墙上钻的孔洞内,套管应长于墙孔10mm 为宜。
2)展开连接管: 安装前须将连接管慢慢的一次一小段的展开,不能猛拉连接管,应防止由于猛拉而将连接管损坏。
3)按预定管路走向来弯曲连接管, 并将管端对准市内外机组的接头。 弯曲时应小心操作, 不得折断或弄弯管道, 管道弯曲半径应尽量大一些, 其弯曲半径不小于 100mm。
4)室内外机组的连接管采用喇叭口接头形式。 连接前应在喇叭口接头处低入少量的冷冻油,然后连接并紧固。
5)室内外机组连接后应排除管道内空气, 排除空气时可利用市内机组或室外机组截止阀上的辅助阀。
6)连接管内的空气排除后,可开足截止阀进行检漏。确认制冷剂无泄漏,再用制冷剂气体检漏仪进行检漏。
7)以上工作完成后,即可在管螺母接头处包上保温材料。
2.7 组合式空调机安装
1)组合式空调机各段在施工现场组装时, 坐标位置应正确并找平找正, 连接处要严密、牢固可靠。凝结水的引流管应该畅通,凝结水不得外溢。凝结水接头应安装水封,防止空气调节器内空气外漏或室外空气进入空气调节器内。
2)空气调节器的设备基础应采用混凝土平台基础,基础的长度及宽度应按照设备外形尺寸向外加大100mm,基础的高度应考虑到凝结水排水管的坡度不小于 100mm。设备基础平面必须水平,对角线水平误差应不超过5mm。
3)设备安装前应检查各零部件的完好性,对有损伤的部件应修复,对破坏严重的要予以更换。 对表冷器中碰歪碰扭的翅片应予以校正, 各阀门启闭灵活, 阀叶应平直。对各零部件上的防锈油脂、积尘应擦除。
4)表冷器应有合格证书,在技术文件规定期限内,外表面无损伤,安装前可不做水压试验,否则应做水压试验。试验压力等于系统最高工作压力的1.5 倍,不得低于 0.4Mpa,试验时间为 2~3min,压力不得下降。
5)对于有表冷段的空气调节器,也可由左向右或由右向左进行组装。在风机单独运输的情况下,先安装风机段空段体,然后在将风机装入段体内。
6)表冷器与框架的缝隙,应用耐热垫片拧紧,避免漏风而短路。
7)冷凝水管按设计要求做“ U”型弯水封。
2.8 整体式空调机安装
1)整体式空调机组安装前,应认真熟悉图纸、设备说明书及有关技术文件。
2)机组安装时,吊装式安装时应保证机组安装平稳,减震吊架座牢固可靠,以减少机组运转时的振动。机组安装的坐标位置应正确,并对机组找平找正。
3)机组的电气装置及自动调节仪表的接线,应参照电气、自控平面敷设电线管、穿线,并参照设备技术文件接线。
4)冷冻水管连接保证严密无渗漏,排水顺畅。
5)冷凝水管设计要求做“ U”型弯水封。
2.9 通风机安装42
1)通风机应按设计图纸要求,安装在混凝土基础、通风机平台上。
2)由于通风机比较重,搬运和吊装应注意以下事项:
3)整体安装的风机,绳索不能捆缚在转子和机壳或轴承盖的吊环上。
4)与机壳边接触的绳索, 在棱角处应垫好软物, 防止绳索受力被棱边切断。
5)输送特殊介质的通风机转子和机壳内涂敷的保护层,应严加保护,不能损坏。
6)通风机的减震将采用弹簧减震器减震,弹簧减震器安装平整,使各组减震器承受的压缩量均匀。
2.10 冷却塔安装
1)冷却塔的搬运和吊装将根据施工现场的具体情况做详细的方案报业主及监理审批。
2)冷却塔安装时,应根据施工图纸的坐标位置就位,并找平找正,设备要稳定牢固,冷却塔的出水管口及喷嘴方向、位置正确。
3)冷却塔各部件的安装将根据生产厂家提供的技术资料进行安装。安装完成
后,对整体进行检验,确保无误后对设备进行整体试运转。安装注意要点
a、 基础应水平不能倾斜,冷却塔中心线垂直,否则影响电机工作。
b、按设备基础图,首先测量基础预埋否正确,基础是否水平坚固,。
c、做好水盆、水缸的防漏工作。
d、下框架脚板与相应基础板调校后焊牢。
e、安装结束前应调整各面水平,各立柱垂直铁框组合长、宽、高、对角线符合给定尺寸,然后收紧所有螺丝。
f 、最后安装风机、电机,并仔细调校直至达到设计要求。
2.11 制冷机安装
(1) 设备安装前的检查
设备应进行安装前的检查,并应符合下列规定:
a、核对设备的型号、规格和技术参数是否符合设计要求,并具有产品合格证书、产品性能检验报告。
b、设备外形应规则、平直,圆弧形表面应平整无明显偏差,结构应完整,焊缝应饱满,无缺损和孔洞。
c、金属结构的外表面的色调应一致,且无明显的划伤、锈斑、伤痕、气泡和剥落现象;
d、 设备的进出口应封闭良好,随即的零部件,应齐全无缺损;
e、 设备就位前的基础应进行验收。设备基础混凝土标号应不低于C20,其中地脚螺栓预留孔灌注混凝土标号应不低于C25。核对其地脚螺栓尺寸,设备基础表面必须平整,平面找平误差应符合该设备的要求。
(2)离心式冷水机组安装
1 基础检查
a. 基础的长度允许偏差≤ 20mm;机组主要轴线间尺寸允许偏差≤ 5mm。
b. 混凝土强度应达 70 以上。
c. 检查和调整基础。
2 确认搬运通道,起吊重量和起吊高度。3 机组的起吊就位设备采用滚筒配合卷扬机的水平运输方式, 设备吊点为设备规定点。 起点时尽量保持机组水平,设备倾斜时最大允许倾斜20°。
4 设备安装允许偏差及检查方法应符合下表规定

5 设备安装其机身纵、横向水平度允许偏差均为1/100,并应符合设备水平文件的规定。测量时应在机座或指定的基准面上用水平仪或水准仪等检测。
6 采用减振动措施的制冷设备,其隔振器安装位置应符合设备技术文件的要求;各个隔振器的压缩量应均匀一致,偏差不应大于2mm. 设置弹簧隔振的机44组,安装时应设防止机组运行时水平位移的定位装置。
2.12 泵的安装
(1)、安装程序和要求
本工程施工方法采用国家现行标准《机械设备安装工程施工及验收通用》、《压缩机、风机、泵安装工程施工及验收规范》 ,其安装程序和要求如下:
a. 设备开箱检查:
(a). 设备包装质量是否符合要求;
(b). 设备附件及技术资料是否齐全;
(c). 设备外观有无损坏;
b. 放线、基础验收
(a).以设备平面布置图给定的轴线为准, 放出泵安装位置的纵横向中心线,允许偏差± 20mm。
(b).以纵横向中心线为基准, 以设备基础图为依据, 划出设备基础的预留孔中心线及不同标高部位的轮廓线。
c).用水准仪以土建给定的标高基准线为基准,划出设备基础标高线 (用基础标高减 50-100mm在基础侧面划水平线)。
(d).以上述轮廓线、 中心线和标高线为准, 检查设备基础位置和几何尺寸,其质量应符合现行国家标准 《钢筋混凝土工程施工及验收规范》 的规定,必要时,纵、横向中心线在不影响管道安装的前提下,可做某些调整,但成排泵安装时,其横向基准线应在同一条直线上。
c. 设备就位、初平、灌浆
(a). 泵搬运就位用叉车进行。 搬运、就位过程中不得使设备有任何损坏或变形。泵就位平面位置允许偏差为±10mm,标高允许偏差为10mm。
(b). 泵初平精度、纵、横向水平度允许偏差控制在0.5/1000 左右,在泵出口法兰加工面上测量。
(c). 垫铁参数的选择和组数的确定, 依据泵体的大小, 按国家现行标准《机械设备安装工程施工及验收通用规范》的规定执行。本工程中 0.5t 以下的泵每个地脚螺栓设一组斜2B和平 2 垫铁, 0.5t 以上的泵, 每个地脚螺栓设两组斜 1A和平 1 垫铁。且垫铁间距超过 800mm时, 中45间还应再加一组垫铁。 斜垫铁应成对使用。 粗平后用电焊点固. 放置垫铁组的基础面应铲平。
(d).设备粗平后, 灌浆前请质检员、 监理公司的代表共同检查预留孔和地脚螺栓、垫铁设置情况,合格后方可灌浆并填写“隐蔽工程检查记录”。
(e).设备灌浆采用比设备基础高一级标号的细石混凝土。灌浆前,预留孔洞内应用清水冲洗干净并撒一层水泥粉, 而后灌浆。灌浆时应将混凝土捣实并不得影响设备的粗平精度。混凝土强度达 75%以上时方可精平。
d. 设备精平
(a) 泵精平的纵、横向水平度允许偏差应符合规范要求,在泵出口法兰加工面上测量。
(b) 精平后的地脚螺栓应紧固,各螺栓的紧固力距应一致,各垫铁组受力应均匀。
(c) 泵精平后,应立即进行二次灌浆。 二次灌浆时接触面应用清水冲刷洁净,设备底座内外应饱满。
e. 泵安装工程中对其他有关问题的要求
(a) 与泵连接的管道安装时,其中心线应自然对中,不得与泵强行连接。管道安装完成后,要复测泵的精度;
(b) 在泵试运转前,应检查设备的轴承及加注点(箱)是否洁净,如果不洁净应清洗后加油(脂) ;
(c) 泵的试运转应在各附属管路系统单独试验、吹洗合格后进行;
(d) 泵必须在有介质的情况下进行试运转,试运转介质或代用介质应符合设计要求。
(2) 、离心泵的安装及试运转
a. 整体安装的离心泵,纵向安装水平度偏差不应大于0.1/1000 ,横向安装水平度偏差不应大于 0.2/1000 。
b. 泵试运转应做好下面几项准备工作:
(a). 点动电动机,电动机的转向应与泵的转向一致;
(b). 检查各紧固部位应无松动;
(c). 各压力表,安全保护装置及电控装置已试验完毕,均灵敏、准确、可46靠;
(d). 润滑油箱(点) 检查或清洗完毕, 并按规定加注润滑油(脂) 。
c. 试运转
(a). 起动前应打开进口阀门,关闭排气阀门,吸入管路应充满清水;
(b). 点动离心泵,无异常后,正式启动并快速通过喘振区,转速正常后应打开出口阀门,并将泵调节到设计工况,不得在设计曲线驼峰处运转;
(c). 泵在额定工况下试运转时间不应少于2h。
d. 离心泵试运转应达到下列要求为合格:
(a). 转子及各运转部件运转平稳,无异常声响和磨擦声;
(b). 滚动轴承温度不应高于 80°c;
(c). 润滑状态良好,油温正常;
(d). 泵的安全保护、电控装置及各部分仪表工作灵敏、正确、可靠;
(e). 泵的泄漏量应符合国家现行标准《压缩机、风机、泵安装工程施工及
验收规范》的规定。
e. 试运转停泵后,应做好下列工作:
(a). 停泵后又暂时不用的,应及时将泵内积水放净,防止锈蚀和冻裂;
(b). 试运转期间,检查员应会同监理人员对设备试运转情况进行检查,
试运转合格应填写“机械设备试运转记录” ;
2.13 排风风机安装
墙体轴流风机的安装: 先根据风机的安装高度, 制作一个高架活动小车, 以高架小车为工作平台,进行安装。
3、空调系统水管的安装与焊接
(1) 管道的安装
a、对管道组成件及管道支承件的检验管道组成件及管道支承件必须有制造厂的质量证明书,其质量不得低于国家现行标准的规定。管道组成件及管道支承件材质、 ?规格、型号、质量应符合设计文件的规定,并应按国家现行标准进行外观检验,不合格者不得使用。对阀门按总量的 10%进行抽检, ?进行阀门*压打**试验,壳体试验压力不得小47于公称压力的 1.5 倍,试验时间不得少于 5 分钟,以壳体填料无渗漏为合格; 密封试验宜以公称压力进行,以阀瓣密封不漏为合格。阀门试验员应持证上岗。管道安装前进行人工除锈、并涂防锈漆。
b、管道切割
对于小于 DN50的碳钢管,一般应用管割刀或砂轮切割机进行切割, 对大于DN50的碳钢管可用气割切割。
管子切口质量要求:
管子切口表面平整,不得有裂纹、毛剌、凹凸,缩口熔渣等应予以清除。切口平面倾斜允许偏差不应大于管子直径的1%,且不得超过 3mm,用角尺测量。
c、管道安装
a)步骤
以土建给定的标高基准为准, 将需安装管线的墙壁、 基柱上打上标高基准线;按图纸及编号安装管道支架、 吊架;按管道安装图及管道预制编号,进行管道安装;调正、调平管道坡度,固定管支座,将管道定位。
b)要求
管道的坡向、 坡度应符合设计要求;管道的坡度,可用支座下的金属垫板进行调节, 吊架可用吊杆螺栓进行调整;垫板应与预埋件或钢结构进行焊接,不得夹于管道和支座之间。法兰、焊缝及其它连接件的设置应便于检修, 不得紧贴墙壁、楼板或管架上。管道穿越楼板时应架保护套管,保护管应高出地面50mm。支吊架形式、 标高应符合图纸的规定,固定位置和固定方法应和设计相符且平整、牢固。成排水平或垂直管道应整齐,成排管道上的阀门安装位置应一致。
c) 安装
管线安装分系统和分片进行, ?先主干管,后分支管,从主干管上引分支管应在主干管定位后再进行;与设备连接的管道必须在设备精平后进行。法兰连接应与管道同心、法兰间应保持平行,其偏差不大于法兰外径的1.5 %,且不大于 2mm,其螺栓孔应保证螺栓自由穿入,不得用强制方法使螺栓穿入。垫片两平面应平整、洁净,不能有径向划痕。法兰连接应采用同一规格螺栓, ?安装方向一致,需加垫圈时,每个螺栓不应超过一个,紧固后的螺栓与螺母宜平齐。
d)焊缝位置,在管道安装时要求焊缝距支吊架净距不小于50mm,在管道焊缝上不得开孔,有加固圈的对接焊缝应与管子的纵向焊缝错开,其间距不小于100mm。
d、阀门安装
法兰或螺纹连接的阀门应在关闭状态下安装,安装阀门前应按设计核对其型号, 并按介质流向,确定其安装方向,水平管上的阀门,其阀杆一般应安装在上半周范围内,阀门安装位置应美观,便于检修和操作。法兰阀门安装时, ?法兰之间应平行、同心,螺栓紧固力矩均匀、适度、避免因强力连接或受力不均造成损坏。
e、管道检验、检查
a)由质检人员对施工质量进行全面检验并填写有关记录。
b)应对各种管道组成件、 管道支承件进行检验, 并对整个施工过程进行检验。管道组成件及管道支承件, 管道加工件、 坡口加工及组对, 管道安装的检验数量和标准应符合《工业金属管道工程施工及验收规范》的规定。
c) 焊缝在焊完后立即除去渣皮、 飞溅,并应将焊缝表面清理干净, 进行焊缝外观检验。
f 、管道压力试验
a)试验范围内管道安装工程除保温外, 已按设计图纸全部完成, 安装质量符合有关规定。
b)压力试验
首先用盲板使系统与设备分离, ?在系统最高处开设放气孔,然后向整个系统注入清水, 用*压打**泵进行升压。升压速度不能过快,达到工作压力时,应停止升压, ?检查有无泄漏,若有则应做好标记,放水处理。如无泄漏,可继续升压,当试验压力达到设计压力的1.5 倍时,保压时间 30 分钟。以压力表压力不下降为合格。
c) 试验结束后,应及时拆除盲板,排除积液,并防止形成负压,当试验过程49中发现泄漏时,不得带压处理。消除缺陷后,应重新进行试验。
g、管道系统吹扫
管道在压力试验合格后, 应进行吹扫工作。 水系统应用蒸汽进行吹扫, 不允许吹扫的设备进行隔离。 蒸汽吹扫前,应进行暖管,及时排水并检查管道热位移。蒸汽吹扫应按加热-冷却-再加热的顺序,循环进行。
(2) 管道的焊接
碳钢管道焊接执行国家现行规范《现场设备、工业管道焊接工程施工及验
收规范》。
a、焊接材料
焊接材料依据设计文件选定, ?焊接材料应具备出厂质量合格证书或质量复验报告,焊材包装应完整,电焊条有防潮层,焊条药皮无脱落。焊接材料必须置于干燥通风的架子上保管,距地面300mm以上。
b、焊接方法
本系统管道采用电弧焊焊接。参加管道焊接的焊工持证上岗。
c、焊前准备
坡口加工可采用机械方法,可用气割加工,但要用角砂轮机将氧化层去掉并将坡口平整。焊前应将坡口表面及坡口边内外侧不小于10mm范围内的油漆等清除干净,坡口处不得有裂纹、夹层等缺陷。壁厚相同的管子、管件的组对,间隙应为 1-2mm,内壁错边量不大于 2mm,管子与平焊法兰组对时, 必须将管子伸进法兰内口, 管子端面与法兰端面的距离应为 3-4mm,管子组对后应及时点固,点固点应均匀分布在焊口周围,并有足够的强度,不致使焊口脱开,在坡口内点焊时,点焊焊缝尺寸不能太小。
d、焊接
管道应尽量采用水平转动焊接,以保证质量提高效率。为了使根部容易焊透, ?运行范围宜选择在立焊部位,操作手法宜采用直线式稍加摆动的小月牙形。 转动焊的外层焊接, ?运条范围宜选择在平焊部位, 即焊条垂直中心线的两边 15-20°范围内,而焊条与垂直中心线成 30°角。为了消除底层焊缝中存在的隐蔽缺陷, ?在其外层施焊时,选用较大电流,并适当控制50运条,底层宜薄。为了使焊缝成型美观,?当焊接外部第二道焊缝时,在仰焊部位运条要快,使成型形成厚度较薄, 中部下凹的焊缝,平焊位运行要缓慢,使其形成略为肥厚而中央稍有凸起的焊缝。
4、保温、防腐工程
I.保温
(1)水管保温必须在试压、冲洗合格后进行。
(2)本工程空调风管、冷水管道保温,采用橡塑保温材料,保温层厚度按设计规定,蒸汽管道采用离心玻璃棉,外敷镀锌铁皮。
(3)立管保温应自下而上进行。
(4)冷水保温管与金属支、吊或托架间垫以与保温层厚度相等的木垫,以防止产生“冷桥”, 木垫块应刷沥青漆作防腐处理。 管道上阀门、 法兰处的保温层应能单独拆卸,保温层的端部均应封闭处理。
II. 防腐要求
保温水管、设备等表面除锈后,刷防锈底漆二遍,金属支吊架除锈后,刷防锈底漆和调和面漆各二遍。面漆颜色根据设计要求或甲方要求。
5、调试阶段
照明器具试运行:
1、电气照明器具应以系统进行通电试运行,系统内的全部照明灯具均得开启,同时投入运行,运行时间为24 小时。
2、全部照明灯具通电运行开始后,要及时测量系统的电源电压负荷电流,并做好记录。试运行过程中每隔8 小时还需测量记录一次,直到24 小时运行守为止。上述各项测量的数值要填入试运行记录表内。
配电柜的试运行:
1、配电柜试运行前, 检查配电柜内有无杂物, 安装是否符合质量评定标准。相色、铭牌号是否齐全。
2、在未关闭主开关时,直投柜要校相。
3、将开关柜内各分开关处于断开位置。 当主开关闭合后, 逐个合上分开关。
4、在空载情况下,检查各保护装置的手动、自动是否灵活可靠。51
5、在负载运行的情况下,切断弱电系统中的线路,测弱电端子,感应电是否符合厂家要求。
6、送电空载运行 24 小时,无异常现象,经监理工程师及业主检查确认后,
向监理公司及业主各报一份存档。
电机调试:
1、调试准备
a. 电机试运行前,应做好检查。
b. 土建工程结束,现场清扫整理完毕。
c. 电机本体安装检查结束。
d. 冷却、调速、润滑等附属系统安装完毕, 验收合格,分部试运行情况良好。
e. 电机保护、控制、测量、信号、励磁回路调试完毕,动作正常。
f. 电刷与换向器或滑环的接触良好。
g. 盘动电机转子时,转动灵活,无碰卡现象。
h. 电机引出线相位正确、固定牢固、连接紧密,接线与铭牌一致。
i. 电机外壳油漆完整,接地良好。
j. 照明、通风、消防装置齐全。
2、电动机的第一次启动在空载下运行,首先点动,无问题时,空载运行时间 2 小时,开始运行及每隔 1 小时要测量并记录其电源电压和空载电流、温升、转达速等。电动机在运行时进行电机的转向、换向器、滑环及电刷工作情况,电机 温升等的检查。交流电动机的带负荷连续启动次数,如生产厂家无规定时,
可按下列规定 :
a. 在冷态时,可连续启动二次;
b. 在热态时,可连续启动一次。
c. 启动多台电动机时,应按容量从大到小逐台启动,不能同时启动。
管道水压试验:
1、室内生活冷热水给水管道:给水总管(水泵出水管)工作压力为1.6MP,按设计要求试验压力 P=1.6+0.4=2.0MP;各个分区的给水工作压力为1.0Mpa,试验压力为其工作压力的 1.5 倍,给水管道在试验压力下观测10min,压力降不应大于 0.02MPa,然后降到工作压力进行检查,应不渗不漏。热交换器应以最大工作压力的1.5 倍作水压试验。检验方法:试验压力下,保持10min 压力不下降。
2、灌水试验
排水管道在封闭前进行灌水试验。 灌水高度应不低于底层卫生器具的上边缘或底层地面高度。检验方法:满水 15min 水面下降后,在灌满观察5min,液面不降,管道及接口无渗漏为合格。安装在室内的雨水管道安装后应做灌水试验, 灌水高度必须到每根立管上部的雨水斗。检验方法:灌水试验持续1h,不渗不漏。水箱满水试验检验方法:满水试验静置 24h 观察,不渗不漏。
3、系统冲洗
生活给水系统管道在交付使用前必须冲洗和消毒,并经有关部门取样检验,符合国家《生活饮用水标准》 方可使用。 给水管道以系统最大设计流量或不小于1.5m流速进行管路冲洗, 直至出口处的水色和透明度与入口处目测一致为合格。消毒使用每升水中含有 20~30 游离氯的水灌满管道进行消毒,含氯水在管中应滞留 24 小时以上。消毒后在进行冲洗。
4、通水试验
给水系统:按设计要求同时开放的最大数量的配水点,全部达到额定流量。
排水系统:按给水系统的 1/3 配水点同时开放, 检查各排水点是否畅通, 接口处有无渗漏。
5、通球试验
排水主立管及水平干管管道均应做通球试验,通球率必须达到100%。
试验用球:外径为试验管径 2/3 的硬质空心塑料小球。
试验方法:立管;在立管顶端将球投入管道,在底层立管检查口处观察,小
球顺利通过。水平干管;在水平干管始端将球投入、冲水,将球冲入引出管末端排出,在室外检查井中将球捡出。空调通风和控制系统的试验与调试:
1、风量测定的方法和步骤
1.1 (方法)空调系统风量的测定内容包括测定送风量,新风量,各干支风量风量和送风口的风量等,一般采用常用的风速乘断面积法。L=3600*F*{(V1+V2+, + Vn)/n }M3/N其中 V(风速)可直接用热球风速仪测出, 也可用微压计与毕托管测, F(风管断面积) 可用尺子丈量后计算而得, 所测风量套用上式便计算而得, 使用风速乘断面积法的关键在于测定截面位置的选择,基本原则如下; 首先,测定截面的位置应选择在气流比较均匀平稳的地方即尽可能选在远离产生涡流的局部阻力的地方,一般都选在产生局部阻力之后4~5 倍管(或风管大边尺寸)径以及局部阻力之前 1.5 ~2倍风管直径(或风管大边尺寸)的直径管段上,按气流前进方向。其次,测定截面内测点的位置和数目的正确划分与否将直接影响平均速度值的准确性。
1.2 (步骤)首先,绘制风管系统草图,在草图上标明风管尺寸,测定截面位置风口的位置、送风口位置以及各种设备规格、型号。其次,实际丈量计算的测定截面处的风管面积及风口外框面积再次,用倾斜式微压计测出该截面处的动压(Ppd). 并将动压值直接换算成微压计读数。最后,套用公式 V=(2ξPPD/G)1/2M/S 和 L=3600FVm3/h即可算出测定风量 L- -平均风量ξ- - 皮托静压管校准系数G - - 空气密度PPD- - 风管内的平均动压
1.3 对于送回风口风量的测定常采用下述简化方法
A 用尺丈量计算出风口外框面积Fw(M2)
B 用定点测量法测出风口的平均风速V=(V1+V2+, + VN)/N M/S,采用热球风速仪。
C 将实测后, V带入公式 L=3600*V*K*Fw M3/H即可求得风口的风量。式中: L - - 实测风口的风量 M3/H 54V - - 风口的平均风速 m/sK—装饰风口的修正系数,一般取为0.7 ~1.0 。F—风口外框面积, M2
2、通风机性能的测定
通风机性能的测定大体可分为两步来进行, 第一步是在试运转之后, 就是将空调系统所有干、 支风道和送风口处的调节阀全部打开, 而空气混合阀和分配阀处于中间位置上,在整个系统阻力最小情况下测得的风量是通风机的最大风量,其目的是考核该通风机所能提供的最大出力,作为系统风量调整的参考。 第二步是在各个支、 风道和送风口的风量调整到符号设计要求后,测出空调系统在实际工作条件下通风机的风压和风量。从此作为对通风机本身进行调整的依据。在一般情况下, 只需测出风机的风量、 风压和转速就可以了, 在特殊情况下(比如风机性能达不到设计要求,须查明原因)。还要测出它的轴功率,进而求出效率。并同产品样本特性曲线作比较。
A.风压的测定
风机的压力通常均以全压表示, 因此必须分别测出压出端和吸入端测出截面上的全压平均值,然后按公式Pqt=∣PQY∣+∣PQX∣计算而得。风机压出端的测出截面应尽可能选在靠近通风机出口而气流比较稳定的直管段上,如风机测出截面离风机口较远时, 应将测定截面上所测得的全压值加上从该至风机出口处这段风管的理论压力损失。风机吸入端的测定截面位置应尽可能靠近风机的吸入口处,对于单面进风的风机。在风机吸入端帆布短管或它前面的直管处打测孔。用皮托管测量小室外面放一台微压计,将橡皮管设法拉倒小室内,一人扶持皮托管,一个看仪器读数,对双面进风的风机一般直接装设在空调机内,测吸入端风压时, 用环形风速仪彻底风机两个面吸入口处的平均风速, 从而求出动压值;便是吸入端的全压绝对值。
B.风量的测定 :
通风机的风量应分别在其压出端和吸入端进行测定,在测吸入端风量时, 可在风机吸入口安全网处用环形风速仪来进行,一般选取上、下、左、右和间五个点进行测量。平均风量 L=(LX+LY)/2 (M3/H),式中: LX—通风机吸入端风量 M3/H 55LY—通风机压出端风量 M3/H
C.转速的测量
使用转速表可直接测量通风机或电动机的转速。
D.轴功率的测定
风机的轴功率, 也就是电动机的输出功率可用功率表直接测出。最后将实测的、风机风压风量和轴功率代入式Y=L(Pat/102 ×3600×Yst×N)可求得风机效率。式中: L—实测风机风量, M3/HPat—实测通风机风压 Pa。Yst—电动机的输出功率。
3、系统风量的调整方法
根据处测数据在每一支干管上选一只实测的设计最小的为基准风口,从最远的干管开始用两台仪表分别测出基准风口与最远一只风口的风量并调整使其风量比值与设计比值接近, 然后再测基准风口与第二位最远的风口风量, 逐个调整。
4、空调机风量的测定与调整;
A.新风风量;在新风阀门进口处用叶轮机风速仪测量,在离风阀10~20 厘米处放风速仪, 并使它与气流流向垂直, 将故整个风门划分成 9 个方格,定点测其中心速度,求平均值。
B.测量回风量(在回风管上测得) ,以及室外新风量,并测出空调机的出风量,二者应与新风量相等,系统风量可用阀门的开启来调整。
5、室内正压的测定与调整:
空调房间常须保持正压,当过渡季节使用新风是,室内正压不得大于5PA
6、系统的联合运行
A.准备工作:仔细检查电源、水源,冷热源是否有误,所有风门位置是否动过。风量有无变化,自动调节仪表的整定是否整定在要求规定数值上。
B.运行步骤:
先启动送风风机调节供回水电磁阀将能量转化趋于稳定按实际情况投入水泵运行56将各环节自动调节系统投入运行。
C.测点步骤:
送风温点的测点布置在送风机出风口处。敏感元件处的测点布置在自动调节系统确定的敏感元件安装位置附件,它的读数用来衡量室温允许波动范围是否满足规定要求。房间相对湿度的测定布置在除气流死区以外的任意位置上,但每次测量时须在一位置上进行。
D.测点地面高度,如果用水银温度计测量, 所有温度计温包离地面相等,悬挂在 0.8 ~1.2 米的高处宜,若要是使用热电偶测量时,测点的平面位置和高度不应偏移。
7、空调系统噪音测定
A.测量对象以及噪音标准( NC)曲线规定:门廊、走廊、盥洗室、设备房10 英尺以内空间: NC-40。车间: NC-45。其他场所: NC-35。
B.测点选择:在现场中,声源多,测量环境有一定限度,进行躁声测量是是测点的选择直接决定测量的准确程度。故要慎重选择。对于风机、点机、水泵等最好选择在距离机器 1 米,高 1.5 米处对于消声器前后噪音可在风管内测量, 在空调房间内选取适当的数量的测点进行测量,测点地面约1.5 米左右。测量数据的整理和远算; 用声计级测出躁声级分贝, 按能量选加规律应用加法计算。
注意事项:
测量记录标明测点位置,注明使用仪器型号,写明被策设备的工作状态。注意避免本底躁音的干扰,当声源躁音与本底躁音相差不到10 分贝,应扣除因本底躁音声干扰的修正量,其扣除量为;当二者差6~9 分贝,从测得值中减去 1 分贝;当二者差 4~5 分贝市,从测得值减去 2 分贝,当二者相差 3 分贝时,从测得值中减去 3 分贝。应注意反射声的影响,须使传声尽量离开发射面( 2~3 米以上)。还须注意风、电磁场、振动、温度、湿度等的影响,以免带来测量误差。
来源:机电天下微信公众号(id:mepbbs)整理,版权归原作者所有仅供交流学习如有侵权请联系作者删除!