随着南通区划调整,以后再聊到港闸的时候,都得加个"原"字。港闸区的前身是原南通市郊区,1991年经国务院批准,将郊区更名为港闸区,1993年设立港闸经济开发区。仔细算来港闸区也是个90后,30年时间,如果发展用房价来衡量,那真的是如日中天。

细数港闸区的发展,北大街是最能看见成绩的地方。时间回到5年前10年前,想在港闸区买房的人都会被朋友嘲笑两句:"前不着村后不着店,半夜走在路上都吓人,多想不开才买那里哟。"
当初被嘲笑想不开的人,现在的生活都过得相当便利,以后出门就有地铁,商业广场一个接着一个逛;当初扎推的房源:华润悦景湾、雨润星雨华府、万科公园里、尚海城、银洲皇家花园、华强城,如今都成了抢手的二手房,价格直逼三万。
最近,北大街商圈内几乎无地块出让,新盘项目屈指可数,绿城VS融创,北大街商圈两大纯新楼盘battle,同一区位内一决雌雄,谁更胜一筹?小编实采绿城桂语江南&融创时代中心,一探究竟。

精装2.7万/㎡,绿城品牌即住房品质
绿城桂语江南售楼处位于学贤路,世上本没有路,卖地盖房子也就铺了路。每一个售楼处的保安小哥哥和前台小姐姐就是门面,亲切和善,第一印象就是棒!作为"封顶销售"的楼盘,工程进展也相当快,封顶在即。

据了解,绿城桂语江南占地4.4万方,地上总建面7.3万方,规划建设14栋楼(1#2#为9F洋房,其余为11F),共计538户,1#、2#户型面积为109㎡三室两厅两卫,3#-6#、10#户型面积为130㎡三室两厅两卫,7#-8#、12#-14#户型面积为143㎡四室两厅两卫,9#户型面积为180㎡四室两厅三卫。整个项目全部实现人车分流,连电动车都有专门地下入口,不会出现在地面上,充分保证了路面行人安全。

整个项目容积率为1.66,楼间距达到1:1.2,窗地比达到0.26,比一般楼盘高出5%,采光通风的优势相当明显,整体居住舒适度非常高。小区以中央水景为中心辐射,通过十字双轴线串联住区。内部配有无边镜面泳池、中心水景、阳光草坪、智能跑道、全龄活动空间、果树采摘区,甚至还有专门的宠物乐园。4#、7#、8#、9#的架空层未来将设置为老人活动空间、健身房、儿童活动区域、会客空间、书吧。

高端项目的贴心真的体现在每一个细节之处,小区WIFI全覆盖,小区里科技感、智能感十足。

桂语江南3.1米层高,在南通市场上就已经很罕见,加上绿城建造,品质不言而喻。本次项目公开130㎡和143㎡两个样板间。


其中130㎡三开间朝南、客餐厅一体化设计,南向双阳台+北阳台,又是令人心动的通风采光,无论是利用率还是通透感,130㎡都是一个不错的选择。

143㎡的户型也是亮点十足,四开间朝南、南向双阳台+北阳台,主卧为套房设计,真的是超级赞了,空间感和实用度一个都不落下。

另外,绿城还贴心地准备了无软装样板间,以后的家到底是什么样子,都可以一目了然。

项目将于7月底8月初开盘,首开9栋洋房分别是1#、2#、3#、5#、6#、7#、8#、10#、14#,共计368套房源,首开户型仅109㎡、130㎡以及143㎡,最大户型180㎡暂时不开,放风均价2.7万/㎡。

北大街核心,融创南通首座TOP综合体
北大街的另一个纯新楼盘,前不久刚刚案名公开,融创·时代中心。据官方资料介绍,此项目为融创中心系产品,集商业、写字楼、星级酒店、高端住宅于一体的城市综合体。住宅+商业+酒店,全业态,是南通首个地铁上盖的TOD项目。


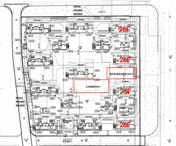
就住宅部分来看,该项目规划打造4栋26F高层,户型面积为92㎡、109㎡两种;11栋17F小高层,户型面积为116㎡、127㎡、143㎡三种;共计1053户。

预计八月份样板间公开,首开十月份左右,首开3栋高层(3#、5#、6#)以及5栋小高层(12#、13#、16#、17#、20#),大约600多户,放风价2.5万/㎡左右。
小区整体容积率为2.38,设有4500㎡的公共绿地和1053㎡的室外体育活动场地,整体绿地率超50%,楼间距46-101米。

5种户型面积段,同时满足了刚需和改善的需求。从户型图上来看,116㎡户型的餐厅略显鸡肋,且为进深较长。所有户型均有南向双阳台,房间带飘窗。





商业部分,规划建设一家希尔顿五星级酒店,高度将达到92.6米。此外,还有商务写字楼、轻奢公寓、精品商业等多种业态。北大街商圈未来也将酒店林立,不再是绿洲一家独大,希尔顿、威斯汀后来者的大品牌也将加大市场竞争。

竞争自土地时期开始,从未停止
两大品牌房企之间的battle从置业顾问的咨询开始,"绿城看过了吗?"
选择在区域内置业的购房者也在内心深处将二者互为替代品,"我外甥女准备买绿城,如果抢不到,我打算让她来看看融创,到时候两家一起买,可以做邻居。"一位可爱的舅舅在融创售楼处外做着美好的畅想。
2019年年底,绿城鏖战99轮以10.9亿元,成功拿下永怡路南、友谊路东地块,成交楼面价14898元/㎡。
2020年年初,江苏盛和+融创斥资14.55亿元,联合拿下永达路南、北大街西地块,成交楼面价7542元/㎡。
绿城地块与融创地块相距仅1.5公里,两个项目的竞争关系从彼此还是土地的时候就已经注定,说来都是缘分。
同位于北大街商圈,配套相当
近年来,北大街商圈先后引进了大润发、万象城、圆融 堤调 、百安谊家进口馆等大型商业中心,商业资源丰富。



绿城南侧就是江海大道高架,靠近地铁2号线永怡路站;融创北侧是火车站,旁边是地铁2号线 长岸 站。
绿城桂语江南北侧一路之隔是北城小学,东侧一路之隔是北城中学,家门口的学校,上课都不怕迟到;融创时代中心东侧1.3公里就是南通市第六人民医院,仅需穿过两个路口。

经过多年发展,北大街商圈居住氛围日渐醇熟,生活便利程度不输任何一个区位,而这两个项目也各有各的优势。位置佳,数量少,从目前去两大售楼处咨询的人来看,未来购房者的竞争力也不小,能否买到心仪的房子,或许还要拼一点点小运气。