一套房子要经历怎样的过程才会变成您想要的家?装修的过程您是否也有以下这些 困扰 :
❶ 怎样的设计才能既美观又实用,还能保证至少10年不过时?
❷ 怎样施工才会安全可靠使用起来不糟心?
❸ 怎样选择建材才能确保物美价廉又品质可靠?
❹ 怎样搭配软装才能凸现品位又健康环保?
看完以下文章,相信一定会对您有所帮助!

游走于静谧
Wandering in silence
01 / 项 目 信 息
项目地址 / 江南院子
Location / Jiang nan yuan zi
设计风格 / 现代原木
Design style / Mordern Log style
项目面积 / 170 ㎡
Project Area / 170 ㎡
设计+施工团队 / 丹姐设计团队
Design & Builder / Danjie design team
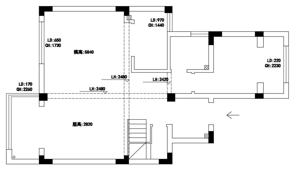
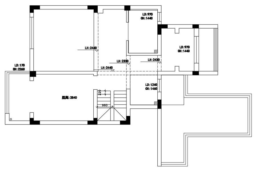
02 / 户 型 布 局(原始、平面)
▽ 1F

▽ 2F

户型改造解析:
■ 玄关: 进门处原空间看起来比较局促,于是设计师将右边墙体以及一层楼梯口下面突出墙体打掉,在两侧做储物柜设计,不仅增大家里的收纳空间,视觉上也变得更加宽敞舒适。
■ 客厅: 将客厅通往阳台墙体全部拆除,做成一个大空间,未来业主一家居住起来会更舒服。
■ 厨房: 厨房和卫生间共用一个外扩阳台,设计师将外扩阳台一分为二给两个空间使用,扩大厨房与卫生间空间。原卫生间空间非常小,经设计师小改造之后体验感会更好。
■ 二层: 业主是一家四口居住,有两个男孩,因此二楼保留原始三房设计,北阳台被规划为家中晾晒空间,生活井然有序。
03 / 效 果 赏 析
玄 关
Sitting Room
Before▽

After▽

温暖的原木色是空间的主基调,每天回家推开门就能感受到满满的治愈气息。经改造后入户处做了玄关柜设计,方便一家四口的鞋子收纳。沿着进门动线还设计了一处洗手台,回家洗手十分便捷,呵护健康。
客 厅
Sitting Room
Before▽

After▽

被打通后的客厅空间,看起来通透明亮也非常清爽,原木色茶几搭配亚麻沙发,家居氛围温馨,长时间看也不会觉得审美疲劳。一抹绿意带来生机与活力,宽敞的区域未来也能为两个孩子提供充足娱乐空间。
餐 厅
Dining Room
Before▽

After▽

餐厅并无繁冗装饰,造型简约的餐桌搭配几张原木餐椅,便将家的温暖感构筑出来。墙面定制整排餐边柜,烤箱、蒸箱,冰箱都被完美嵌入,设计感十足更显美观,充分利用现有空间拓展了家的收纳能力。
卧 室
Bedroom
Before▽

After▽

主卧同样以原木色为主,质感十分温润,打造繁华都市里的一隅宁静。设计中保留原木材质的天然肌理,又融入现代元素,或粗糙、或细腻、或纯净。我们期待通过这样的设计让居住者的内心回归自然。
男孩房
Boy's room

男孩房色调十分清爽自然,原木色则作为空间的点缀。纯色墙面与两幅装饰画相映成趣,充满趣味性。卧室一侧为孩子设计独立学习区域,定制书柜可以用来摆放书籍,再养几盆自己喜欢的植物,小小天地充满童趣。