项目名称:临江一楼
设计团队:意向东方(北京)设计顾问有限公司
设计师:刘宁 郭晨希
项目地址:安徽·黄山
项目面积:6000平米
清溪清我心,水色异诸水。借问新安江,见底何如此。
---李白
徽州,远眺的山川,缥缈的云,朦胧的雾,隐藏了山黛,淡去了苍劲的松柏;徽州,以厚重的历史底蕴而闻名于世。
徽派建筑是中国古建筑最重要的流派之一,以黛瓦、粉壁、马头墙为表型特征。徽派设计自然古朴,隐僻典雅。与大自然保持和谐,以大自然为依皈。


▲临江一楼位于安徽省黄山市黎阳水街,是一家综合性餐饮。建筑原是独栋建筑,现由一楼食业集团投资重新改造,是徽派元素与现代设计手法的结合,总体有着朴素的色彩观,体现着天地融合、纯净自然的质朴之美。




▲以灰和白为基准色调,运用黑、白、灰的色彩层次及浅彩色、无彩色的装饰,主要材质为钢板、肌理漆、老青砖、榆木、灰瓦、地砖。本设计以徽州建筑元素为依托,以“写意徽州”为主题,通过现代设计反映出质朴的古典韵味。利用丰富的徽州文化资源,有意识地对传统元素进行提炼、加工、抽象、变形简化、重新组合,在继承中进行创新变化。





▲设计师在设计中充分利用了空间复杂多变的特点,将难点转为优势,利用楼梯,天桥将各个空间进行了串联和贯通,采取虚实结合的方式,形成了室外建筑室内化的特色。在室内形成,街、巷、院、坊、楼的不同形态的空间形式,让徽派建筑的意象得到了艺术化的表现。





▲配饰陈设设计上,汲取黄山自然景观与徽州人文景观的元素,公共区域用、松、山、石、竹、花等自然元素让空间得到了,一步一景,步移景移的效果;内部陈设上,采取了徽州民居文化的元素,用字、画、瓷器、摆设,将徽州砖雕、木雕、石雕进行重新装帧,融入其中,用现代的装饰手法体现传统的文化韵味。




▲整个空间雅而不奢、简而不陋,整中有别,以现代的设计手法将徽州的古韵与现代的审美做了全新的诠释,表现出了写意徽州意蕴。




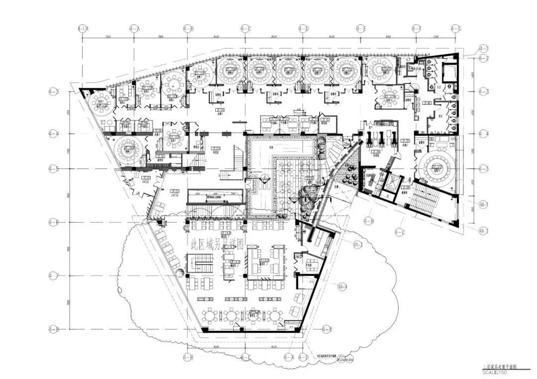
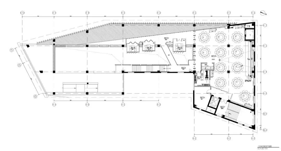
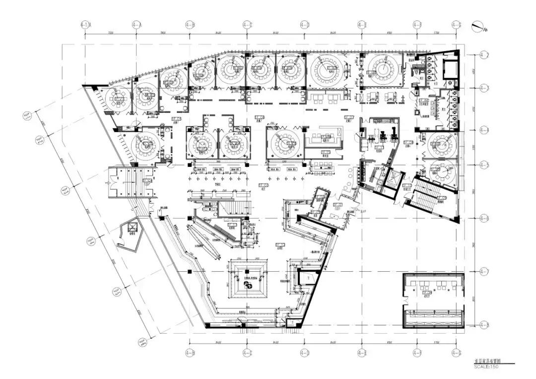
▲平面图
文字以及图片来源:意向东方(北京)设计顾问有限公司