因为工作的原因,所以很多次从中州大道经过,最早的时候看到这个项目的时候我觉得万科做的真失败,为什么就一栋楼了还在后面墨迹,又不是楼王位置。
后来才知道,原来这个项目跟万科美景龙堂真的没有半毛钱关系。脱了N久的项目终于要开盘了,不少人问这个项目能不能买,今天我们就来说说这个项目,是不是和你买还是你说了算。

项目位置
一、项目介绍
无论如何说,这个项目属于郑州绝大多数小开发商小项目的特色:地块小,位置好,产品一般偏上,重点是刚需和部分投资客户为主。
该地块位于中州大道与石化路,东侧为万科美景龙堂,龙堂9号楼西侧,总占地9.79亩,规划一栋32层住宅,两梯四户,只有两种户型,89㎡三房和75㎡两房,毛坯交付;还有一栋是五层的商业,开发商自持,不对外销售。
去年市场火热的时候,本来有机会入市清盘的,不知道什么原因一直在拖,就拖到了今天,对外释放的信息也一直不清不楚,推了多次。

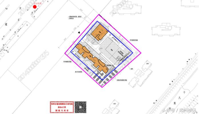
项目的具体规划

具体平面图
二、产品参数
售楼地址:中州大道与航海路交叉口东300米
占地面积:6529.03平方米
建筑面积:32187.3平方米
总户数:248
容积率:3.49
产权年限:70年
装修情况:毛坯
建筑类别:板塔结合、高层
开发商:河南兴忠置业有限公司
停车位:266
入住时间:2018年6月30日

楼栋以及车位具体参数
三、具体配套
1、交通
这个算得上是这个项目最大的优势了,没办法,紧挨着中州大道,距离航海路不远;距离地铁4号线和5号线比较近,属于地铁房。无论是公交、自驾、地铁,出行都算是方便。
2、商业
项目不大,而且本身有一栋5层商业自持,据了解下面两层为业主便民服务商店,上面三层是物业办公用房,应该够用了,考虑到周边成熟的富田*阳城太**、万科等楼盘,尽管方便性一般,但是问题也不大。

5层商业的位置
3、开发商及物业
据了解,开发商是信阳本土开发商来郑州首个项目,开发商是河南兴忠集团旗下子公司,做建筑起家,承建过正商蓝钻、金色港湾和碧桂园天玺等项目。
但是做建筑和做开发商是两回事儿,整个项目的节奏走的并不是多顺。
物业说是万科的物业但是一直没有得到求证,有了解的可以评论给大家看看。
4、户型
一栋32层住宅,两梯四户,只有两种户型,89㎡三房和75㎡两房。定位设计可以说是极其精准,准客户也不用纠结怎么选择了。



整体设计一般,最受欢迎的89㎡入门正对干湿分离卫生间的门,有点别扭。
5、教育
教育上管城区外国语小学、启元国际小学和腾飞路小学,贝斯特外语幼儿园/小学等距离不远,距离项目1500米的有个63中;但是说到教学质量,整个管城区的情况相信大家也是心里有数的。
四、近况
多次认筹升级之后,目前有个两房交五千享八千,三房交一万享一万五优惠,9月23日开盘。首次开盘预计推出西单元约120多套房源,预计2018年年底交房。

项目透视图
五、总结
优势:
1、临近十八里河,河边的景观还不错;
2、有地铁;距离5号线一万米以内;
3、周边交通方便;中州大道、航海路、石化路、绕城高速等;
4、层高达到了3米;
5、配备有商业,周边居住氛围比较浓厚,多成熟小区;
6、价格;

项目透视图
劣势:
1、项目不到10亩地,没有像样的社区空间;
2、开发商一般,物业有待考验;
3、开盘时间一再推迟,耽误了不少业主上车;
4、与中州大道只有50米的绿化带相隔,车辆行驶的噪音会带来不小的影响;
5、目前距离最近的商业在富田,奖金六百米还要穿过中州大道,不方便;
6、周边的医疗资源不够充分;

圈出来的该项目与周边万科美景项目的位置图
综合来说,这个项目又是不少但是问题同样也很多,个人认为购房者还是要根据自己的需求选择,比较适合在东区和南区,以及经开区的上班族和刚需用户,以及手里有闲钱的投资客。
同时,由于拖延时间比较久和蓄客充足,推盘数量偏小,抢到房的概率可能会不高。建议大家不要勉强,做好预算,瞄准需求,认清形势。