做你认为对的事情,然后,坚持。
——佚名
17年8月7日,我们接到委托,为刘先生设计他的私宅。
项目位于秦皇岛汤河铭筑社区,为平层户型。



1
项目概况
建筑面积:199㎡
设计范围:内装修
建筑结构:高层钢混
主要材料:哑光地砖;木地板;硬包;木饰面;金属扣钢;镜面;壁纸等
设计周期:20天
设计单位:易堂事务所—林帅、夏博识
2
前期布局
“汤河铭筑的户型还不错”——客户的反馈以及业内人士的一个共识。
拿这套房型来看。

房型原貌
一梯两户,此户型为西室户型,套型为四室两厅一厨三卫。
四居室格局,南北通透。除次主卧卫生间(因为是两套型间墙)与主卧室衣帽间为暗室外,其他均可采光通风。公共与私密空间面积比≈ 1:1,举架2.9m,前庭后室,动线规划很清晰。
理论上来看是套不错的房子。
底子蛮好,按正常家庭需求来看,格局不错,没有调整的必要。
业主需求介入:
长住人口3人,有老人居住,增加收纳空间。假期会有家庭聚会,人数较多。中年及老年居住,色调舒适沉稳。
根据这次沟通,我们调整了这套房子的格局。

平面布局
得到以上布局:
客厅阳台墙垛去除,客厅整体南移。打开原主卧衣帽间,变为8人圆形餐台的餐厅。
原餐厅阳台增设橱柜电器柜作为西餐厅,厨务分流。
原北侧中部卧室改动墙体变为整屋衣帽间,扩大收纳空间。
3
中期配饰
平面布局通过,设计进入中期阶段。
调子上我们分析业主的喜好,选择了偏现代的手法。
在新中式与港式间,选择了后者。硬装营造整体性,墙不露白,选择质感材质:墙布、墙纸、木饰面。
在材料及配饰上也进行了一些设定。
【材料类】

【配饰类】

【灯饰类】

没错,依然是全案。
4
立面效果
经过半个月的深化,我们确定了各空间的硬装方案。
(部分效果图)

进门与沙发一侧

电视一侧

过道及餐厅

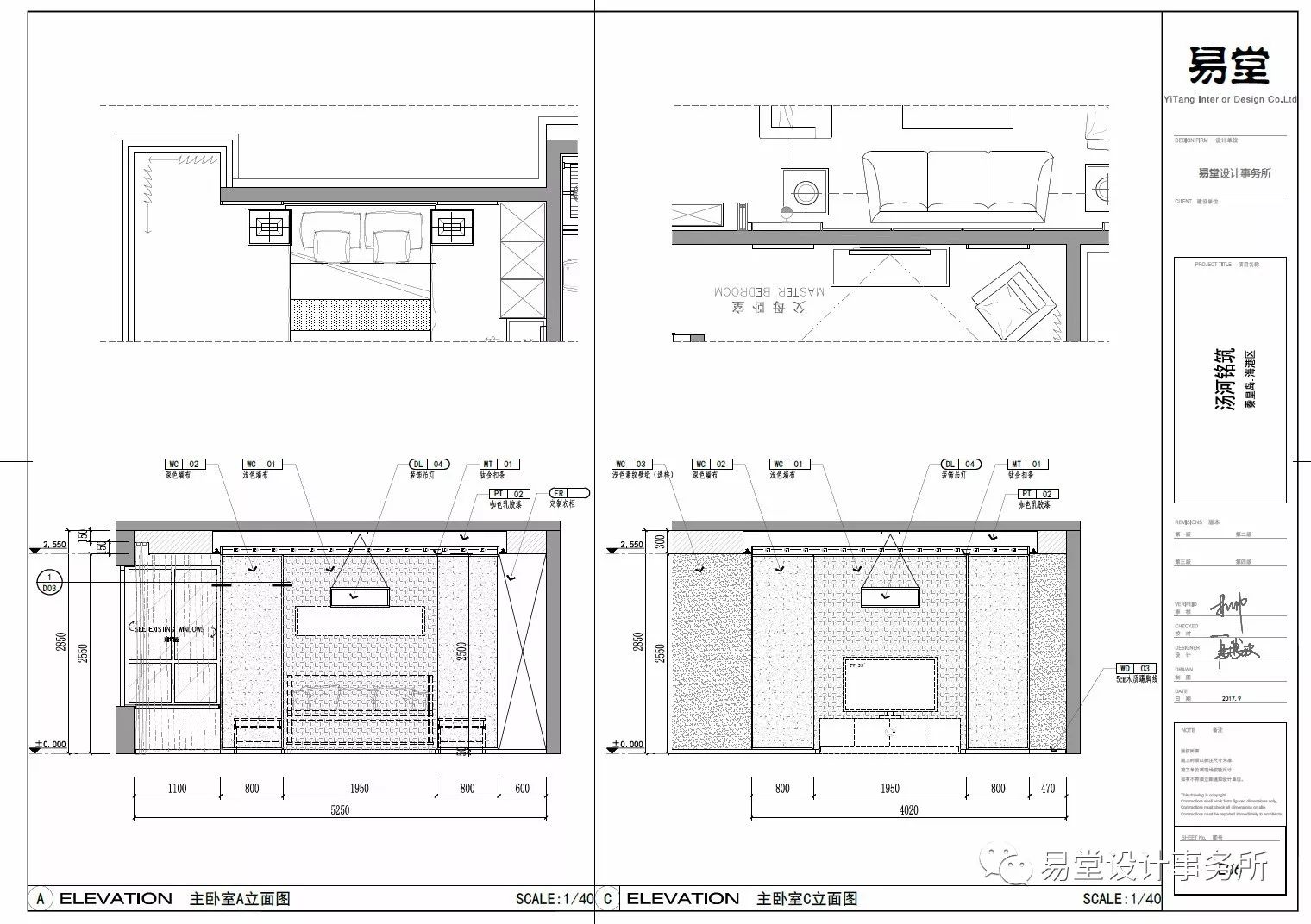
主卧

次主卧
5
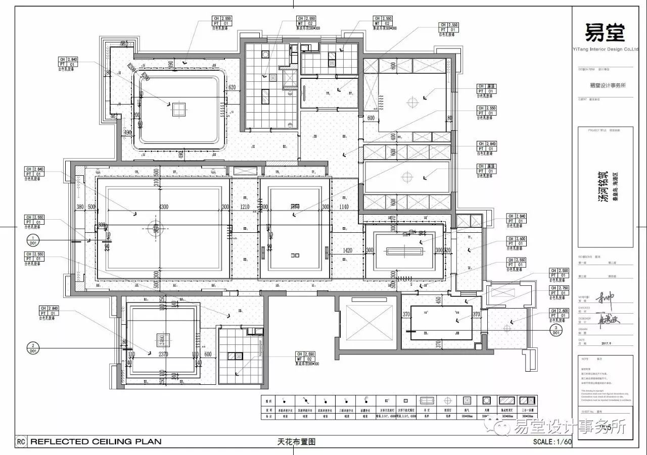
图纸深化
按照国标《内装修图纸规范SJ803》;《房屋建筑制图标准GB/T50001》;《易堂设计事务所制图范本》制作施工图纸,周期为一周。


以下为部分平面图纸:




以下为部分立面图纸:



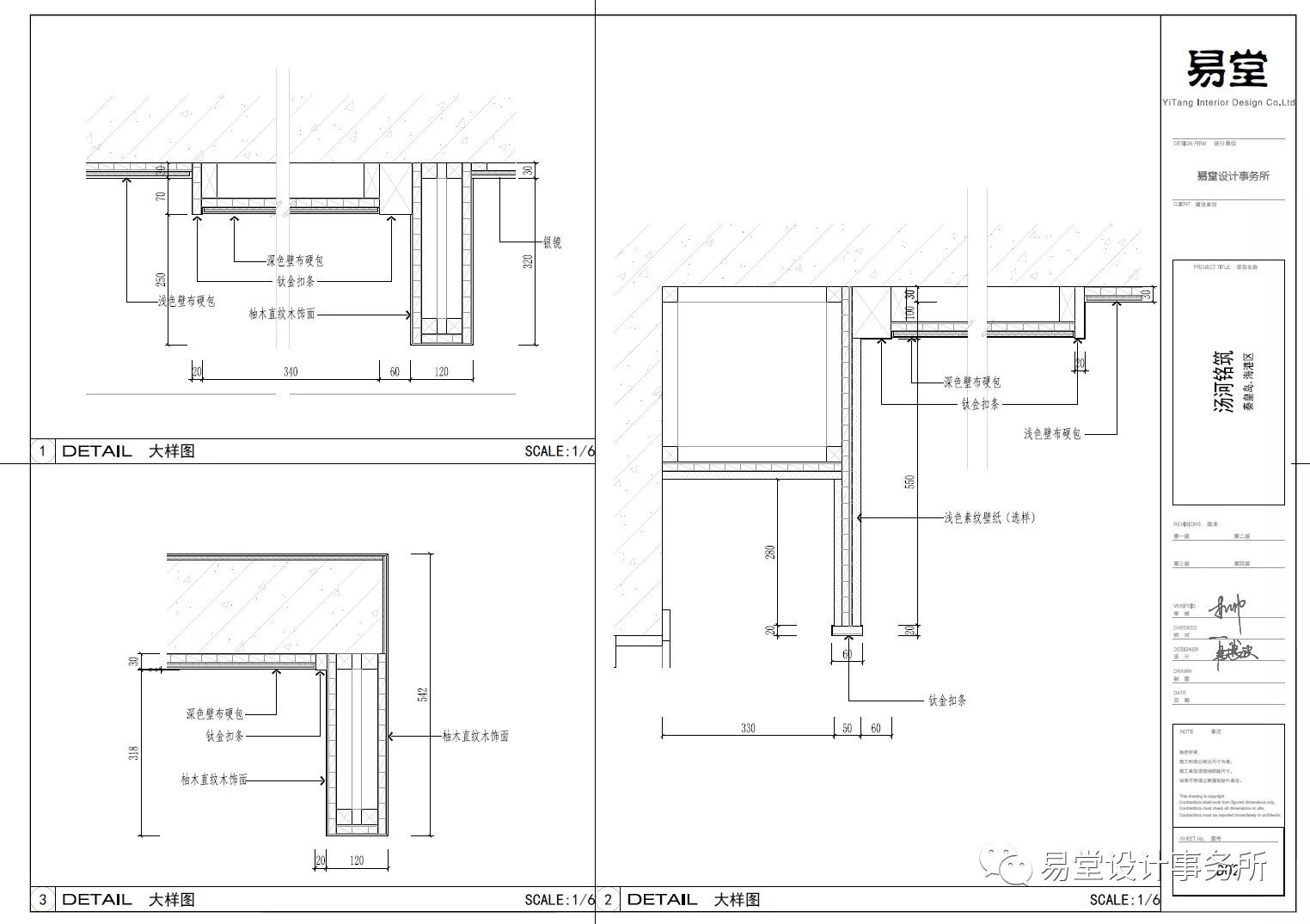
以下为部分详图:


[后记]
为期20天的设计结束,而营造才刚刚开始。
志亮同志担当本次的施工方监理。拥有参与众多大型项目的行业资历,使我们无比安心。
每一个案子坚持去做全案,设计的本质就是计划,将前期工作完善,才会拿出满意的答卷交付所信任我们的业主。
后面我们会陆续整理出完工的实景照片,为大家展示出来。
END