
设计机构:JORYA玖雅
设计师:安宇
设计面积:71㎡
房屋位置:朝阳区远洋一方
户型:两室一厅
装修花费:33w(硬装7w+主材16w+软装10w)
整屋格局
这是一套71㎡的两室一厅,二人一猫。
1 . 房子整体闭塞拥挤
房子的整体格局还算规整,但业主东西比较多,整个家被塞得满满当当,几乎没什么多余的活动空间,看起来很闭塞,不通透。

改造前后对比

改造前后对比
因此,扩大使用面积、增加储物空间成了他们对改造后房子的最大诉求。
2 . 餐厨作为重点改造空间
设计师和业主夫妇第一次见面时,了解到他们喜欢宅家,日常做做饭、自制一些饮品,对餐厨的使用率还是很高的。于是建议将餐厨部分作为着重发力点,进行稍大规模的面积扩充,其它部分做细节辅助和支持,业主夫妇一致赞同。
(Ps:夫妇二人都喜欢蓝色,你往下看就会发现,房子的每一处几乎都有蓝色的元素~)
原始平面图:

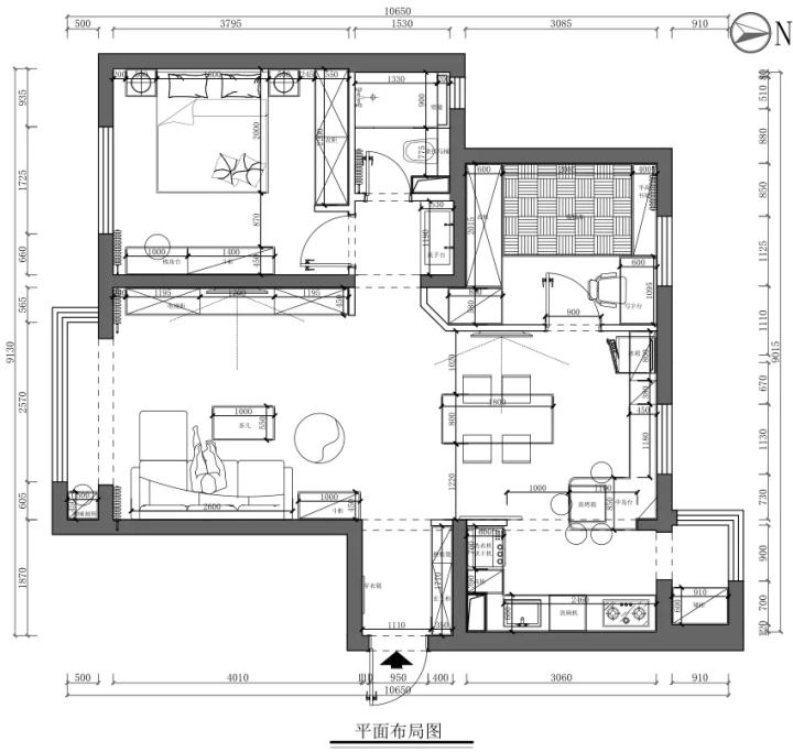
最终平面布局图如下:


以上平面图可以看到最明显的两处变化:
1、餐厅往次卧方向上移535mm,借此餐厅面积扩大;
2、厨房由封闭变开放,增加吧台。
改造效果
1 . 厨房——封闭变开放


厨房由封闭式改成开放式,吧台1m高,下方嵌入蒸烤箱,站在吧台方向还能随时看到客厅的动向,一边操持厨务一边和家人互动。

增加透明长虹玻璃推拉门,巧妙地阻挡油烟进入客厅,颜色上增加了大面积的蓝,既是业主的心头爱,又为相对单调的灰白空间加了一笔活泼。

将近4m的一字型操作台,足够容纳全部餐厅用具。

右侧还为洗衣机烘干机留出了位置,并将侧面剩余空间做了零食柜(现在业主们对零食柜的需求也越来越多了),整体利用率超高。
2. 餐厅——增加功能区,预留电视

与吧台无缝衔接的是位于餐厅靠窗方向的餐边柜,长1180mm、进深450mm,旁边嵌入冰箱和酒水柜,与餐桌相对,不管是招待客人朋友还是自家小酌,都是一件美事~

前面就提到,业主夫妇平时很喜欢研究做菜,有很多时间是在厨房和餐厅度过的,所以设计师在正对厨房的墙上预留了另外一部电视,这样,即使吃着早餐看电视、或者包饺子看电视都不成问题,可比单纯埋头做菜有趣多了。
3. 次卧——书房客房二合一

由于近几年房子都是两个人住,所以次卧的起居属性并非必要,偶尔充当客房即可,收纳+办公才是重点。

于是占用一扇柜门做成大容量推拉书柜,拉开是满柜子的书,关上则与衣柜平齐,丝毫不影响美观。书籍存放在这边,也为客厅节省了不少空间。
以上是本次设计中较为亮眼突出的部分,这套房子还有其他小心思也很值得推敲:

客厅整面白色电视柜,储物空间提升,视觉上还显大。

卫生间改造成干湿分离后,给脸池预留了1190mm的长度,两个脸池会拥挤,可一个又会略大,所以干脆这里预留了一池两人位的水龙头,两个人站位完全够用。

主卧床尾增加了斗柜➕梳妆台一体定制柜,薄款柜子不占用空间还能解决用处。

全屋无主灯设计,让顶面更加简洁干净,视觉上显得层高更高,光线更加均匀,还可以配合壁灯、落地灯、台灯、小吊灯等不同的灯来营造不同的照明氛围。

客厅墙上的背景画,是爱德华·霍普《海边的房间》,这是业主很喜欢的一幅画,他觉得画里的阳光与画外的阳光重合在一起,仿佛望向窗外就能看见广袤的海洋。
合影

从左到右依次是杨林工长、业主、安宇设计师。本期案例介绍完毕感谢观看~
附上带尺寸的完整平面格局图

最后,再附上业主的随手记部分装修花费,供大家参考。

- End -
~版权归作者JORYA玖雅所有
~如需转载本文请联系“JORYA玖雅”账号