资料来源、版权所有:深圳华汇设计

湘江智谷AI科技中心位于长沙湘江新区的人工智能科技城,杨柳公园内。作为服务片区的城市客厅,建筑将集合室内外展览、会议交流、接待及园区服务等多重意义的功能,成为未来前沿科技学习与探索的中心,同时与公园环境相结合,成为休闲活动的目的地。

◎ 总平面图

◎ 方案阶段模型照片

◎ 场地鸟瞰-逐步建设中的公园

◎ 科技中心全景
建构多重尺度在这里,包含了两重命题,一是建筑如何融入公园尺度,形成更多层次的空间环境,另外就是建筑如何通过不同尺度的空间与体量,为功能赋形,形成能容纳不同类型目的性活动的场地,因此这里所说的功能,更多的是面向未来的“空”间,而这些单元更倾向于被定义成大、中、小。

◎ 不同的方形体量形成功能的集合

◎ 由环廊、方体与庭院构成的空间集合

◎ 四个象限形成四个不同主题的院落

◎ 一层平面图
折板环廊
科技中心由一个椭圆形半开放的环廊界定出场所,为群落感的建筑赋予更整合的形态。环廊采用8mm厚的钢进行弯折,形成6个不同的单元,沿椭圆一周,形成疏密不同的“折墙”。关联室外展览场地的片段,靠近街角广场,人群进出较多,折板的密度较低,透过性更强,突出边界内外的联系。关联社交活动场地的片段,折板密度更高,突出内向的围合。围绕不同的场所特征,形成不同的“显”“隐”关系。

◎ 广场与环廊

◎ 从广场看建筑

◎ 阳光透过折板在地面形成光束

◎ 从公园看建筑

◎ 建筑局部

◎ 虚实体量之间的交织

◎ 廊子与院子
主题化院落
建筑与环廊之间的室外场地分成4个象限,并通过景观的方式赋予不同的特质,形成水院、光院、竹院、展院等。水景位于门厅和园区服务两个模块界定的象限内,提供观赏性的景观。承载社交活动的庭院则是位于多功能厅和园区服务厅的一侧,作为室内功能向外的拓展与延伸。展厅一侧以围合形成的广场为主,未来可提供户外展示的场地。展厅与展廊构成的象限内,是一处功能转换的节点,我们在这里提供了一处充满绿意的休闲空间。

◎ 水院:树池在水中形成绿岛

◎ 水院:镜面般的浅水

◎ 水院:倒影建筑与天空

◎ 玻璃亭

◎ 风院:公园服务中心一侧的室外活动场地


◎ 展院:展厅外空阔的庭院可作为室外展场

◎ 竹院:成簇的竹子构成的景观空间

◎ 竹院
面向西南侧的绿植和百叶能形成遮阳效果,位于东南侧的水体在蒸发过程中吸热降温,并在东南季风的作用下,将冷空气吹入建筑。在夏季炎热的长沙,这些被动式的景观与建筑措施,一定程度上提升了空间的舒适性。

◎ 光院:位于多功能厅外西向由遮阳铝板覆盖的光影庭院
功能集合
我们在环廊内布置了边长为31.5m,22.5m,16.5m,13.5m,6m的几个方体空间,它们在立面上由1.5m宽幅标准工业制成品的阳极氧化铝板和平板玻璃构成,不仅形成了完成的方形母题,也降低了废材率。基于现阶段的功能需求和场地关系将门厅、展厅、多功能厅、接待服务厅和设备等功能模块置于不同的体量之内,各个部分既有相对独立的入口,同时也能通过“门厅”模块被整合为一个完整的建筑。

◎ 形态与空间的整合

◎ 建筑鸟瞰

◎ 标准化的外墙系统

◎ 展厅外部

◎ 体量之间

◎ 分布于水院之中的各个体量
人工智能展厅位于31.5m*31.5m*12m的体量中,基于AI科技数字化展示的特点,大部分空间采取人工照明的方式,首层部分空间结合静态展品展示的需求,通过落地玻璃向庭院打开,融入室外景观,引入自然采光,观众在整个观展路径中能感受到不同的空间氛围,并在策展内容的引导下获得多样化的参与体验。

◎ 科技发展背景展示

◎ 产品展间

◎ 大数据指挥中心展示平台

◎ 智慧交通展间

◎ 二层平面图

◎ 台阶展厅
园区服务模块包含多功能厅与接待洽谈两个基本功能,多功能厅提供175个坐席,可举办产品发布,路演,学术报告及行业交流等活动。此外,我们在水庭院之中,放置了一个方形的玻璃亭,特殊时期作为科技大作的展间,平日则是一处休憩交谈的空间。

◎ 多功能厅

◎ 办公区

◎ 水中的玻璃亭
不同功能模块之间,是开放性的、非功能性的空间,既承担多入口的作用,也起到交通组织的功能,在尺度上赋予其被灵活使用的可能性,例如与水吧,展廊,秀场等相结合。南侧的廊,7.5m宽,可作为变换主题的展览区,它伸出环廊,以桥的形式跨过公园的河道,将廊与桥糅合成为一个特殊的空间元素,形成看与被看的两重视觉表现关系。

◎ 公共休息活动区

◎ 从室内看水院

◎ 跨过水面的桥(实施中)
面对充满不确定性与可能性的科学研究与创新环境,我们与其说是在设计一栋建筑,不如说是提供了一套具有多重尺度意义的开放性空间构架。我们希望建筑在满足当下使用同时,还能有效应对未来的需求,不同于完全标准化工业化的建构体系,我们希望通过精营巧造,为这个科学风暴的中心赋予更丰富的人文意涵和长效的空间品质。

◎ 夜景
技术图纸

◎ 一层平面图

◎ 二层平面图

◎ 剖面图

◎ 立面图

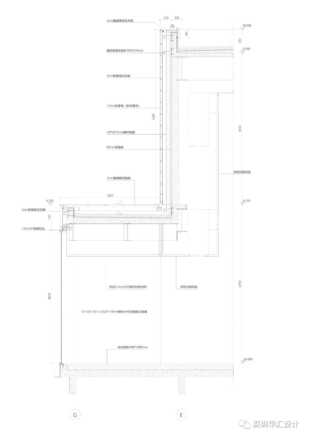
◎ 大样图
项目名称:智谷AI科技中心
建筑设计:深圳华汇设计
主创建筑师:肖诚
建筑师: 印实博 石睿 蔡东洛 张晓明 董若静(实习)
结构设计:徐牧 赵婷婷 黎昌发
项目地点:长沙市湘江新区
设计时间: 2019年
竣工时间: 2020年
总建筑面积:3433.5平方米
结构材料:钢结构,钢筋混凝土
主要材料:阳极氧化铝,白色氟碳喷涂钢板, Low-e玻璃
业主:长沙湘江新区管委会
代建单位:碧桂园湖南区域
建筑施工图设计:GT建筑
幕墙设计:科源幕墙
室内设计:共和设计
展陈设计:丝路蓝
景观设计:创翌善策
建筑摄影:张超 夏至