一、項目簡介
【用地信息】占地面積4.83萬㎡,容積率2.8,绿化率34%
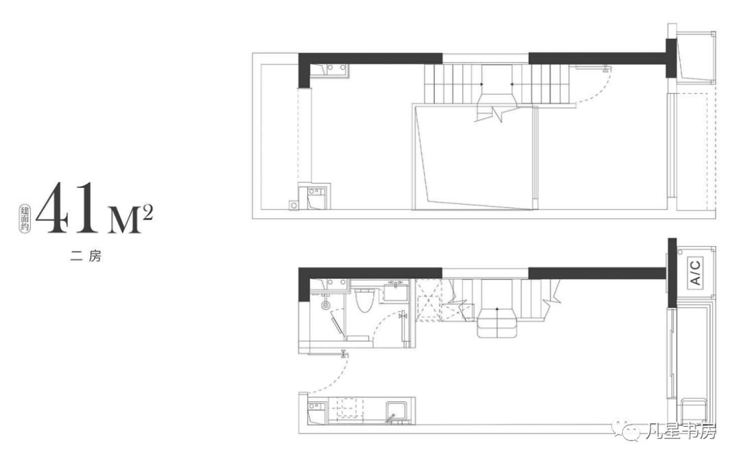
【在售户型】30-64㎡商务公寓
【停車位數】約856個小車車位
【装修情况】精装修
【物業公司】中海物業
【物業管理费】:住宅2.88元/㎡/月、商务公寓3.6元/㎡/月
【户型分布】1-3棟公寓 14-16棟住宅
【交樓時間】全現樓

中山中海世纪荟_ 最新资讯-预约看房/咨询详情热线:400-096-1568
(安排楼盘内场置业顾问一对一接待服务!让你买的放心,住的舒心)
二、項目價值
1【區域價值】世界灣區之首,粤港澳大灣區西岸核心支點--中山(全國生態城市,中国最具幸福感城市)


2【交通價值】深中通道--预計2023年建成通車,全程約24km,项目距第4出口僅約800米

项目位干城北新城區,交通路網樞紐,3公裹内通達城軌,高鐵,高速站點;距深中通道港口出入口以南約800米;高鐵中山北站3公裹輻射,四站到深圳。咨询热线:15012627238 蔡经理

3【配套價值】下樓即達保利國際廣場購物shoppingmall百米可達五星級艾美酒店 港匯城商業街(萬民匯)、上乘世紀公園商業街

4.【生活價值】项目周邊有華師附屬小學、華師附屬中學、港口中心小學、民主小學;市政配套環繞,港口體育館、中山濕地公園、保利公園、中山市第二人民医院、港口医院(具體学区學位政策以政府公示爲准)

三、户型解讀



2【社區實景】寧静舒適 度假級體驗




如有问题欢迎咨询,专业一对一热情服务,让您用专业眼光去买房