每个细部节点按材料、工具、工序、工艺方法、控制要点、质量要求、做法详图及实例图八个部分进行描述,达到图文并茂、直观明了、便于理解,实用性和可操作性强的目的。
主要内容包括:概论、地基基础、结构工程、屋面工程、装饰装修工程、安装工程共6部分。
结构工程
一、地基与基础工程
1、基础筏板后浇带留置
1.材料:钢板止水带、钢板网、木模板、钢筋。
2.工具:电焊机、铁皮剪子、电锯。
3.工序:焊接附加钢筋→安装止水钢板 → 裁剪、 安装钢板网 → 安装、加固模板。
4.工艺方法:根据筏板厚度、止水带位置,沿止水钢板长度方向中心点焊Φ12附加钢筋,间距300~500mm。
将附加钢筋与筏板上下层钢筋连接以固定止水钢板,止水钢板槽口应朝向迎水面。根据止水钢板位置及筏板厚度裁剪钢板网,在止水钢板的上下部位安装钢板网,钢板网位于附加钢筋内侧并与筏板钢筋绑扎。
在钢板网的外侧支设模板,模板上口根据钢筋间距锯出槽口,控制好钢筋保护层厚度及钢筋间距,支撑加固方木间距不大于500mm。
5.控制要点:止水钢板、钢板网的安装,模板支撑。
6.质量要求:后浇带宽度允许偏差±10mm。止水钢板固定顺直。
7.做法详图:

图筏板后浇带留置施工示意图
8.实例图

图筏板后浇带留置实例图
2、地下室外墙新型止水螺杆

5.控制要点:加固、浇筑、清孔、填塞、防水。
6.质量要求:螺栓孔端头填塞密实,防水处理到位。
7.做法详图:

螺栓孔封堵剖面示意图

新型螺杆实物图

螺栓孔封堵实例图


8.实例图

4、剪力墙后浇带预制盖板封堵

板表面采用防水砂浆抹压密实平整。
防水附加层施工完大面积进行防水层施工。
防水满足要求后进行基坑周边回填土施工。
5.控制要点:预制盖板厚度、宽度、防水。
6.质量要求:预制盖板安装牢固,防水可靠。
7.做法详图:


8.实例图

5、超大面积混凝土基础底板跳仓法施工

求,控制温度差在250C以内。
5.控制要点:分仓分层、挑打、浇筑时间。
6.质量要求:混凝土振捣密实,无裂缝现象
7.做法详图:


8.实例图

基础筏板跳仓施工实例图



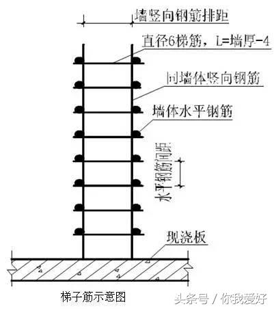
二、钢筋工程
1、墙钢筋定位

7.做法详图:


8.实例图:


2、钢筋滚轧直螺纹连接
1.材料:钢筋、连接套筒、保护帽。
2.工具:直螺纹滚丝机、扳手、砂轮切割机。
3.工序:钢筋下料→ 滚丝→ 丝头检验→ 直螺纹套筒连接。
4.工艺方法:根据钢筋料单采用砂轮切割机对钢筋切割下料,切口的端面平整并与轴线垂直。要求加工好的钢筋螺纹的丝头、牙形、螺距等必须与连接套筒一致,螺牙应无裂纹、无断牙及其他缺陷,丝头加工长度为标准型套筒长度的1/2(选用套筒规格应符合表2-1),及时在套丝端安装塑料保护帽。套筒连接时,将钢筋丝头拧入经型式检验合格的连接套筒,用扳手拧紧,使钢筋丝头在套筒中央位置相互顶紧,再用扭力扳手校核拧紧力矩,标准型接头安装后的外露螺纹不大于两个完整丝扣。

5.控制要点:切割下料、螺纹加工、钢筋连接。
6.质量要求:切割端头平整、与轴线垂直,丝头长度公差为+2P,钢筋连接牢固。
7.做法详图:

8.实例图

3、外墙螺栓孔封堵
1.材料:干硬性水泥砂浆、防水砂浆、膨胀剂、水泥基防水涂料。
2.工具:柱形刷、抹子、捣棍、灰板、木塞等。
3.工序:清孔→干硬性砂浆填堵 → 刷防水涂料抹防水砂浆→ 刷防水涂料。
4.工艺方法:用柱形刷清理孔内杂物,并在施工前3小时喷水湿润。孔内侧用圆锥形木塞堵紧,填塞微膨胀干硬性砂浆至距表面30mm处,凝固后涂刷水泥基防水涂料,孔口抹防水砂浆,与墙面齐平,表面再刷一道水泥基防水涂料,洒水养护不少于3天。
5.控制要点:清孔、填塞、防水。
6.质量要求:填塞密实,防水处理到位。
7.做法详图:

8.实例图:




8.实例图

2、现浇板混凝土收面
1.材料:混凝土、2m长300mm宽镜面竹胶板、线绳。
2.工具:振动棒、平板振动器、刮杠、木抹子、抹光机、棕刷等。
3.工序:刮杠刮平→ 搓毛 →抹光机收面 → 拉细毛。
4.工艺方法:混凝土浇捣后按标高控制线用刮杆刮平,木抹搓毛,终凝前(人站在砼面上脚印深度不超过5mm时)用抹光机收压抹面后,用棕刷拉细毛。拉毛时脚下移垫2m长300mm宽镜面竹胶板交替后退施工,竹胶板中心间距为500~600mm,拉毛深度、方向一致。
5.控制要点:收抹时间。
6.质量要求:混凝土表面平整,拉毛宽度、间距均匀,方向一致。
7.做法详图:

8.实例图:

四、砌体工程
1、构造柱马牙槎砌筑

造柱的砖孔应封堵,防止漏浆。
5.控制要点:马牙槎高度、斜口、海绵条、螺栓孔。
6.质量要求:构造柱马牙槎进退位置尺寸偏差±5mm。
7.做法详图:


8.实例图:

2、砌体植筋

为止。植筋胶固化之前,不得扰动。
5.控制要点:植筋孔定位、清孔、注胶、植筋。
6.质量要求:定位准确,清孔干净,注胶到位,植筋牢固。
7.做法详图:

8.实例图

五、钢结构工程
1、梁柱对接焊接
1.材料:焊丝、焊条、衬板。
2.工具:电焊机、角磨机。
3.工序:梁、柱固定→ 衬板安装 → 清理焊接面 → 下翼缘焊接 → 上翼缘焊接 → 清理。
4.工艺方法:
梁柱采用栓焊连接时,先安装高强度螺栓,完成初拧;梁柱采用全焊接连接时,焊前梁柱应临时固定牢靠。梁端上下翼缘板上口宜开设45o(-5o,+10o)坡口,焊接前安装不小于6mm厚衬板,衬板两端宽出翼缘尺寸不小于50mm,兼做引、熄弧板。焊前对坡口清理打磨,去除铁锈及油污等。
5.控制要点:焊接顺序、焊接方向、焊接参数。
6.质量要求:焊缝均匀、平直、饱满,成形美观。焊缝余高0~3mm。
7.做法详图:

8. 实例图:

2、挠度观测点
1.材料:反光贴或油漆。
2.工具:抹布、钢尺、圆规、纸板、铅笔。
3.工序:位置确定→ 形式选择 → 设置标识。
4.工艺方法:挠度测试点设计无要求时,跨度大于24m时,一般在跨中及其四等分点处的下弦杆件上设置。根据现场条件可选用反光贴或油漆标识形式,尺寸宜为30mm×30mm。设置前需用抹布将标识位置构件表面清理干净,反光贴采用成品粘贴,油漆标示采用纸板镂刻法喷涂。
5.控制要点:位置、形式、尺寸。
6.质量要求:位置合理,标识准确,不易损坏,便于施测。
7.做法详图:

8. 实例

屋面工程
一、屋面细部
1、涂饰面层女儿墙
分格排版:



8.实例

2、面层分格缝嵌缝
耐候胶嵌缝:


8.实例

3、水簸箕
1.材料:石材、云石胶、耐候密封胶。
2.工具:切割机、磨光机、胶枪。
3.工序:造型确定→ 石材加工→拼装 → 打胶。
4.艺方法:水簸箕选用石材或饰面砖制作。石材或饰面砖加工时,棱角应倒角,云石胶或粘结剂拼装,应与墙面结合严密,并与水落口中心对应,底部石材宜内高外底,与墙面及屋面交接处应打胶封闭。
5.控制要点:形状、尺寸、安装。
6.质量要求:水簸箕造型应美观、协调,粘结牢固,胶缝均匀顺直。
7.做法详图:

8.实例图:

装饰装修工程
一、外墙面工程
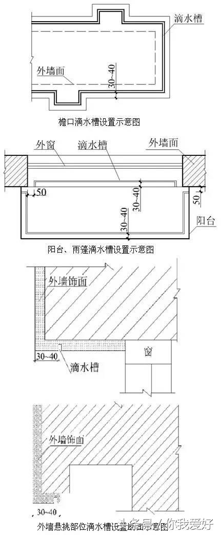
1、滴水槽


8.实例图:

3、饰面砖分格

水线(槽)。
7.做法详图:

8.实例图:


二、内墙饰面及吊顶工程
1、涂饰阴阳角



8.实例图:

2、饰面砖拼缝及阳角

浅一致。
7.做法详图:


8.实例图:

3、纸面石膏板吊顶

错开。收口条颜色宜与涂料颜色一致,槽内、槽侧模压光滑,边缘清晰,顺直。
5.控制要点:收口条、变形缝、居中、对称、成行成线、分布均匀。
6.质量要求:板面平整度不大于2mm,收口条顺直度不大于2mm,与墙面交接无裂纹、无污染。
7.做法详图:


8.实例图:



三、建筑地面
1、水泵基础导流槽

5.控制要点:粘结牢固、排水坡度、形状。
6.质量要求:导流槽固定牢固、坡度明显、边缘清晰、顺直。
7.做法详图:


8.实例图:

2、楼梯滴水线

7.做法详图:


8.实例图:


3、室外散水

7.做法详图:


8.实例图:

四、门窗工程
1、木质防火门
1.材料:门框、门扇、混凝土预制块、防火密封条、五金、美纹胶带、专用粘贴剂、防火合页、闭门器。
2工具:榔头、螺丝刀、钢卷尺、线锤、切割机、手工锯、刨子。
3.工序:门框安装→ 门框边塞缝 → 门扇安装 →五金安装 → 油漆。
4.工艺方法:门框安装在混凝土墙或混凝土块上,侧面及底端进行防腐涂刷应到位,每边固定点不小于3个,且固定点间距不大于1.2m,门框固定件距门角为150~200mm,中间间距不大于600mm),门框与洞口之间采用发泡剂连续填塞密实;钉帽应砸扁钉入木材表面1~2mm,并做防锈处理;门高大于2.1m时合页数量不少于3个,合页对应部位的门框和门扇上均应开槽,并采用“三拖二”固定,双面刻槽在框和扇上“三拖二”固定,螺丝帽应平正,“十字”宜相互上下对正;双开门上下应设插销,插销孔内应设金属套管;锁具中心距地面应为0.9~1.0m;在框两侧及顶面用专用胶粘剂将防火密封条整条粘贴完整,阴角接缝应严密;油漆前,木材面应光洁平整,对五金、玻璃、胶条应用美纹胶带包裹保护;门扇上下口应油漆,透气孔畅通,油漆应光洁、明亮、无刷纹和流坠。
5.控制要点:合页数量、位置、规格;胶条、门上下口油漆。
6.质量要求:门固定牢靠,门扇开启灵活,无走扇现象,五金安装正确,无污染。
7.做法详图:

8.实例图:

2、塑钢(铝合金)窗
1.材料:发泡剂、射钉、膨胀螺栓、耐侯密封胶、美纹胶带、肥皂水。
2.工具:射钉枪、胶枪、胶嘴、榔头。
3.工序:窗框安装→ 窗框塞缝 → 窗扇及玻璃安装 → 打胶 → 清理。
4.工艺方法:用射钉或膨胀螺栓将窗框固定在混凝土墙或混凝土预埋块上,框与基体固定连接件内外朝向应相互错开,固定点距上下两端150mm,中间间距不大于600mm,且错开中间用发泡剂连续填塞密实,砂浆收口抹面时镶嵌三合板条控制胶缝宽窄,缝深5~8mm,确保弹性连接;窗扇顶部防拆卸、底部两侧防碰撞配件应安装到位,泄水孔不少于两处,且不堵塞;玻璃密封胶条在角部应45°割角、点粘,应留有收缩余量;窗扇、纱扇立梃,在角部应45°拼接。密封胶应采用耐候胶密封,密封胶应采用耐候胶密封,窗框内外必需打胶,胶面应为45°斜面或凹弧面,直角宽度宜为6~10mm,打胶前缝口两侧要求贴美纹胶带,打胶时每边宜一次成型,若有接槎时用手指蘸肥皂水及时捋平,胶面要求平顺光滑,打完后及时撕去美纹胶带并清理干净。
5.控制要点:打胶、45°拼缝、配件安装、窗框安装牢固。
6.质量要求:窗扇开启灵活,关闭严密,五金及泄水孔到位,打胶平顺。
7.做法详图:

8.实例图:

安装工程
一、安装工程通用部分
1、设备间设备、管线综合布置
1.材料:电子版设计图纸、图纸会审纪要、设备技术参数资料。
2.工具:计算机、CAD软件或三维设计软件。
3.工序:安装电子版原设计图→ 各专业图纸叠加 → 找出管线碰撞点 → 调整管线空间位置消除碰撞 → 确定支架形式 → 绘制综合布置图 → 设计单位确认 → 施工。
4.工艺方法:
(1)在设备、管线参数确定后,设备间机电工程施工前完成深化设计;设备间安装工程施工前,经业主向原设计单位索要各专业电子版设计图纸,在计算机上安装CAD软件及电子版设计图纸。
(2)利用CAD或三维深化设计软件对安装各专业图纸进行叠加,找出管线、设备碰撞位置。
(3)对于碰撞的管线、设备,调整时应遵循下列原则:
①确定设备和设备相连的管、配件尺寸及管线进出口位置;
②排布达到设备的进出口,设备基础的中心线或外边沿、设备中心线或边沿、立管中心线、支架、仪表、阀门操作手柄等标高、朝向一致;
③管线宜靠近墙、梁集中合理布设。
(4)形成的深化图,提交原设计单位确认后实施;
(5)安装各专业统一按照深化设计图规定的空间位置进行设备间施工(距离弯头500mm范围内应设置支吊架)。
5.控制要点:成行成线、维护方便、按照综合管线布置图施工。
6.质量要求:设备、管线排列整齐,成行成排,部件标高、朝向一致。
7.做法详图:

8.实例图:

2、电气竖井
1.材料:电子版设计图纸、图纸会审纪要。
2.工具:钢卷尺、红外放线仪、计算机、CAD软件或三维设计软件
3.工序:核对预留孔洞→ 计算机排版 → 调整设备位置、标高 → 绘制布置图 → 根部处理 → 施工。
4.工艺方法:
(1)根据设计图纸、桥架容量及尺寸、配电箱尺寸,核对竖井管线设备位置及孔洞预留尺寸、位置,利用CAD或三维深化设计软件布置电井内设施;
(2)排布应遵循下列原则:
①强弱电分开,且相对集中;
② 配电箱应沿墙整齐排列,同范围箱体下沿标高一致。单独箱体安装时,箱体高度600mm以内,底边距地1.5m;箱体高度600~800mm,底边距地1.2m;箱体高度800~1000mm,底边距地1.0m;箱体高度1000~1200mm,底边距地0.8m;箱体高度1200mm以上落地安装;预留空间满足安全距离及检修空间要求;
③支架形式应统一,固定牢靠;
④电井内水平接地支线应敷设到所有管线设备就近位置,与设备连接可靠;
⑤电井应设门槛,桥架、插接母线在地面或穿楼板地面处有不低于50mm的挡水台,桥架、插接母线穿楼板处应做20~30mm防火封堵,顶部设置防火托板,加装饰圈。
5.控制要点:接地可靠、标识清晰、封堵严密。
6.质量要求:电气设备管线布局合理、安装牢固可靠。
7.做法详图:

8.实例图

3、管井
1.材料:电子版设计图纸、图纸会审纪要。
2.工具:CAD制图软件、三维制图软件。
3.工序:尺寸量测→ 计算机排版 → 确定支架形式 → 绘制布置图 → 施工。
4.工艺方法:
(1)管井安装施工前,根据设计图纸量测管井实际尺寸,用计算机排版。
(2)排布应遵循下列原则:
①沿墙整齐排列,以管道保温最终外形尺寸为依据,保持管道间距均匀;距墙距离以管道外缘为准,但应考虑空调冷冻水管道支架处绝热垫木的尺寸。
②优先采用共用支架;
③同规格管道支架形式、标高应统一;
(3)管道穿楼板根部应设套管或护墩,套管与管道之间应做防火封堵,顶部齐平光滑,设装饰圈;
(4)管道油漆应完整、均匀、光亮,保冷层牢固平顺严密,标识应清晰醒目;
5.控制要点:沿墙排布、整齐、合理、空间利用。
6.质量要求:管道排列整齐,标示齐全准确,支架标高一致。套管下设牢固、严密,标高一致,环缝均匀,封堵规范,表面密实平整,根部处理细腻。
7.做法详图:

8.实例图:

4、“U”型卡环、管夹
1.材料:成品“U”型卡环、扁钢、塑料软管、螺栓、圆头螺帽。
2.工具:扳手、电焊机、油漆刷。
3.工序:安装卡环→ 锁紧螺母 → 安装圆头螺帽。
4.工艺方法:选择与管径匹配的卡环,卡环安装固定螺栓孔应保证管道顺直且居卡环中间,卡环与管道应接触紧密。圆钢卡环与不锈钢管、铜管连接固定时,卡环应套塑料保护软管,管道与支架间接触面应垫与角钢同宽的隔离橡胶垫。扁钢卡环应与木托同宽,与螺杆应满焊连接;在与支架连接处应垂直,扁钢端部与支架宜留有5~8mm收缩余量,卡环端部外露支架的螺栓宜采用圆头螺帽收头,油漆涂刷应均匀。
5.控制要点:卡环规格、卡环的垂直度、保护软管。
6.质量要求:卡环保持垂直,卡环末端安装圆头螺帽,扁钢宽度同木托宽度。
7.做法详图:

8.实例图:




5、工厂化C型钢支架
1.材料:镀锌C型钢、六角螺栓、镀锌连接件(平面、转角、三维、Z型、U型、马鞍型)、固定件、单/双头板、膨胀螺栓。
2.工具:冲击钻、扳手、力矩扳手、钢卷尺、水平尺、红外线仪等。
3.工序:管线排布→ 确定支架形式 → 工厂化加工 → 现场安装。
4.工艺方法:
(1)结合图纸和现场实际确定管线排布走向、间距、标高等。
(2)根据支架承载管线的数量、规格、自重、介质、动静荷载效应等计算,确定支架的规格和形式。
(3)委托厂家根据确定规格和形式进行加工。
(4)在建筑基层上用膨胀螺栓固定单/双头板,在C型钢内卡紧弹簧螺母,将支撑立柱与单/双头板固定,立柱与横担采用连接件(平面、转角、三维、Z型、U型、马鞍型)、弹簧螺母、六角螺栓固定,用力矩扳手核查紧固力。
5.控制要点:管线排布、支架荷载计算,支架选型及安装。
6.质量要求:支架安装牢固,成排支架应排列成线、标高一致。
7.做法详图:

8.实例图

6、管道
1.材料:自喷漆或不干胶纸。
2.工具:剪刀、裁纸刀、钢板尺。
3.工序:图样设计→ 模板制作或图样制作 → 位置确定及清理 → 喷涂或粘贴。
4.工艺方法:
(1) 标识部位应选在宜观察部位。应设置在便于操作、观察的直线段上,避开管件等部位,成排管道标识应整齐一致。
(2)垂直管道宜标识在朝向通道侧管道轴线中心,成排管道以满足标识高度的直线段最短管道为基准,依次一致标识。
(3)水平管道轴线距地小于1.5m时,标识在管道正上方;在1.5m~2.0m时,标识在正视侧面;大于2.0m时,标识在正下方或侧面。
(4)标识内容应反映系统名称及编号、介质流向;标识形式包括颜色、色环、文字、箭头。
(5)标识所采用的颜色应根据管道面色确定,依照表3.1-1。

(6)采用色环标识时,请参照有关标准GB7231-2003标准的有关规定执行。
(7)文字统一采用黑体加粗字,管径在80mm~150mm时,文字大小为50mm~60mm宽;管径大于150mm时,文字大小为80mm~100mm宽。箭头与文字间、文字与文字间间距不大于1个文字宽度,成排管道标识字体大小应一致。
(8)单根管道文字置于箭尾;成排水平管道介质流向不一致时,介质流向标识统一放在文字左侧;垂直成排管道介质流向不一致时,介质流向标识统一放在文字上方。竖向文字方向应自上而下,水平文字方向应自左向右。
(9)箭头大小及形式见表3.1-2和图3.1-1。

(10)喷漆或粘贴前管道表面应清理干净、干燥。采用自喷漆时,喷涂应防止污染,周围应保护到位。
5.控制要点:标识颜色、大小、位置。
6.质量要求:喷涂或粘贴要牢固、清晰,喷涂无流坠,粘贴无翘边。
7.做法详图

8.实例图:


7.设备
1.材料:背胶纸、PVC板、尼龙扎带。
2.工具:剪刀、裁纸刀、钢板尺。
3.工序:标识图样设计 → 模版或图样制作 → 确定标识部位及表面清理 → 挂贴。
4.工艺方法:
(1)泵、主阀门、换热器、冷冻机组、空调机组、风机等均应采用贴(挂)牌标识。
(3)牌应采用背胶纸打印后粘贴在厚3~4mm的PVC板上。字体采用宽30mm的红色黑体加粗。
5.控制要点:标识内容、尺寸。
6.质量要求:标识牌挂(贴)牢固、内容完整。
7.做法详图:

8.实例图:

8、管道弯头保温层保护壳
1.材料:不锈钢板(镀锌钢板、彩钢板或铝板)、不锈钢自攻螺丝(镀锌自攻螺丝或抽芯铆钉)。
2.工具:剪刀、橡皮锤、直尺、咬口机、卷圆机、铆钉枪、螺丝刀、手电钻、划规。
3.工序:尺寸量测→ 放样 → 加工制作 → 安装。
4.工艺方法:测量保温面层直径及弧长,从距弧线端向外10~15mm处计算虾弯长度。根据管径不同,确定虾弯组成节数,按表4.6-1选用。

按照虾弯内弧总长度,平均分配,确定每个虾弯组成节的尺寸进行下料。安装时,每个虾弯从上到下或从左到右咬口方向应一致,虾弯要过渡自然、圆滑平顺,咬口严密无折皱,接缝应放在正视不明显位置,成排虾弯接缝方向一致,每个虾弯组拼节在接缝处不少于两个铆固点。
5.控制要点:虾弯组拼节数、咬口、接缝。
6.质量要求:虾弯过渡平滑、接缝咬口严密无折皱。
7.做法详图:

8.实例图:

二、给排水与采暖工程
1、管道穿楼板
1.材料:钢管、PVC管、钢套管、阻火圈、塑料装饰圈、油麻、防火胶泥、木楔、密封胶、油漆。
2.工具:钢卷尺、水平尺、榔头、捻凿、切割机、油漆刷。
3.工序:套管制作与安装→ 防火泥封堵 → 吊洞 → 安装装饰圈 → 刷漆。
4.工艺方法:先按管道规格及所穿楼板的厚度切割套管(套管比立管大1~2个管号, 套管间隙10~20mm为宜,套管高出装饰面层20~30mm,多水房间时应为50mm),套管规格应考虑管道保温或保冷层厚度,使保温或保冷层在套管内不间断,套管安装前内外刷防锈漆,按所需数量套入管道,调直固定好立管,用木楔把套管临时固定于洞口,用捻凿把油麻填塞于套管间隙的2/3处(多水房间时,钢套管应焊防水翼板。)调整套管与管道的同心度,套管与板底平齐,套管与管道之间的缝隙用石棉绳封堵严密。补洞砼浇筑完成后其余间隙填塞石棉绳,套管顶部打密封胶密封,密封胶要求与套管上部平齐,胶缝要求均匀,套管底部安装饰圈,板面上外露套管刷黑色或灰色油漆, 管道为PVC管,设计有阻火圈时,底部应加阻火圈。
5.控制要点:同心度、填塞、安装高度。
6.质量要求:套管间隙均匀,出地面高度,普通房间为20mm,多水房间为50mm,屋面套管为250mm。
7.做法详图

8.实例图:

2、设备地脚螺栓防水防腐保护
1.材料:UPVC管、黄油。
2.工具:钢卷尺、手锯。
3.工序:测量尺寸→ 套管制作安装 → 填塞黄油。
4.工艺方法:对室外和多水房间安装的设备地脚螺栓,根据设备地脚螺母大小及螺栓外露长度,确定套管的直径及高度,成排或同一区域内螺栓外露长度应一致,以确保套管高度一致且覆盖螺栓顶面5mm。套管直径与螺母直径匹配,套管安装后用黄油填塞套管与螺栓之间的间隙,上口与套管平齐。
5.控制要点:套管直径、高度。
6.质量要点:套管规格与螺栓匹配且同一区域内直径、高度、色泽一致,黄油密封严密,表面平齐。
7.做法详图

8.实例图:

三、建筑电气工程
1、成排开关插座盒安装
1.材料:穿筋盒子、钢筋、扎丝。
2.工具:水平尺、钢锯、钢卷尺、电工工具。
3.工序:测量定位→ 盒子组装 → 盒子固定。
4.工艺方法:根据结构500㎜线和结构墙面线,确定成排线盒的高度及位置,墙内主筋上做标记,上下用两根钢筋穿接线盒,两侧加短钢筋与结构立筋焊接定位,盒口与模板面应平齐,固定端正牢靠,间距均匀。
5.控制要点:安装高度、平整度。
6.质量要求:线盒安装端正,间距均匀,与模板接触紧密,成排盒子标高一致、品牌一致。
7.做法详图

8.实例图:

2、明配管进箱处理
1.材料:电气导管、镀锌螺栓、编织软铜线、圆钢、锁母、护口。
2.工具:电钻、开孔器、套丝工具、锉刀、弯管器。
3.工序:导管排列固定→ 箱体开孔 → 箱管连接 → 接地。
4.工艺方法:对于明配导管,距配电箱300mm处进行固定;箱体采用开孔器开孔,孔径与管径相一致,开孔间距均匀,边沿间距不小于20㎜;进入箱体的导管端部套丝,采用锁母固定,外露2~3扣丝;箱体与导管之间、箱体与装设电气部件的门之间采用编织软铜线进行接地连接,编织软铜线两端压接接线端子。
5.控制要点:管间距、导管入箱高度、接地。
6.质量要求:管口进箱高度不大于5mm,护口齐全,一管一孔,上下索母上紧。
7.做法详图:

8.实例图:



3、箱(柜)内接线
1.材料:接线端子、分色塑料带、尼龙扎带。
2.工具:压线钳、钢丝钳、螺丝刀、剥线钳、扳手。
3.工序:理线→ 扎线 → 接线 → 标识 → 接地。
4.工艺方法:先将线(缆)理顺,按照100~200mm的间距用尼龙扎带进行绑扎,拐角两侧30~50㎜及分支处应设扎带,按照黄色(L1 )、绿色(L2 )、红色(L3 )、淡蓝色(N)、黄绿相间色PE)分别接入A相、B相、C相、N线、PE线端子上,多股线应压接线端子;标识,应在N、PE端子排附近刻写或粘贴“N”、“PE”标识,进入配电盘的外部回路应扎回路牌,进入配电盘的控制线在导线套上号码管;接地,配电箱(柜)的接地螺栓、箱门上的接地螺栓、电源进线回路的PE线、配电箱馈出各个回路的PE线、与配电箱连接金属导管均应PE端子直接连接,导通良好。
5.控制要点:绑扎、相序、标识、接地。
6.质量要求:线(缆)绑扎牢固,相序正确,配线整齐,接地可靠,每个端子压线不多于2根。
7.做法详图:

8.实例图

4、桥架直线段连接
1.材料:电缆桥架、桥架连接片、螺栓、软铜线、专用垫片。
2.工具:扳手、合梯、活动平台、冲击钻、电钻、红外线测量仪。
3.工序:测量定位→ 支架安装 → 桥架安装 → 接地。
4.工艺方法:按图测量、放线、定位;支架安装时,应挂线或弹线找直,用水平尺找平,以保证成排支架安装后横平竖直;桥架用连接片连接(或连接段链接),垫圈、弹簧垫、螺母紧固,螺母应位于桥架外侧。除镀锌桥架外,相邻段桥架之间应采用不小于4mm2软铜线做接地跨接。在桥架外,沿桥架全长敷设不小于Φ8的圆钢或-25×4镀锌扁钢接地母线,每个支架和接地母线可靠跨接,接地母线刷黄绿相间油漆。桥架连接段连接的其优点是桥架底部无缝隙,整齐美观见效果图(图5.1-3)。
5.控制要点:水平度、垂直度、桥架、支架、接地。
6.质量要求:水平段平直度偏差不大于1.5mm/m,全长不大于10mm,相邻段之间缝隙不大于2mm。
7.做法详图:

8.实例图


5、伸缩节安装
1.材料:电缆桥架伸缩节、连接片、软铜线、螺栓、专用垫片。
2.工具:扳手。
3.工序:定位→ 支架安装 → 伸缩节安装 → 接地。
4.工艺方法:当桥架经过建筑物伸缩缝或桥架直线长度大于30m(铝合金及其它材料直线段长度大于15m)时,应设置伸缩节,伸缩节应设置在伸缩缝位置或直线长度的中间。伸缩节 两侧各设置一个支架,支架与伸缩节端部距离不大于500mm。
伸缩节补偿收缩衬板应设在伸缩节外侧,衬板螺栓孔应开成条形孔,衬板长度为两个连接板长度之和加30㎜,双螺母应位于桥架外侧,且不能拧紧,以保证自由伸缩。伸缩节两端桥架应采用软铜线做接地跨接,接地线中间应留有余量。
5.控制要点:松连接、接地。
6.质量要求:桥架伸缩节安装与其它段桥架平直,内壁光滑,连接顺直,伸缩自如。
7.做法详图:

8.实例图:

6、配电室接地母线
1.材料:-40×4镀锌扁钢、黄绿油漆、接地螺栓、蝴蝶螺母、防松垫片。
2.工具:电焊机、刷子、钢卷尺、电钻、电锤、扳手。
3.工序:支架制安→母线安装→ 螺栓安装→ 标识。
4.工艺方法:用扁钢制作接地母线支架,支架末端加工成燕尾形,埋设深度不小于50mm,出墙平直端长度为10~15mm,上弯立面长度为40mm。支架安装间距为1m,离地高度为300mm。
接地母线应先调直或煨弯后焊接在支架上,接地母线搭接长度大于等于扁钢宽度的2倍且三面施焊。每房间设不少于2处的蝴蝶螺母作为临时接线柱,过门处暗敷埋设,转角用扁铁煨制圆弧型,煨弯半R≥100mm,穿墙板处加设保护套管保护。接地母线应刷45。斜向黄绿相间标识油漆,条纹间距100mm,临时接线柱两侧各留20mm宽度不刷漆。
5.控制要点:支架间距、搭接长度、蝴蝶螺母、标识。
6.质量要点:支架间距均匀,距墙距离一致,接地母线敷设顺直,油漆涂刷均匀,分色清晰。
7.做法详图:


8.实例图:

7、圆钢避雷带敷设
1.材料:φ12镀锌圆钢、三角夹板固定支架、圆弧夹板固定支架、不锈钢装饰圈、云石胶、耐候密封胶、电焊条。
2.工具:电焊机、鎯头、钢卷尺、冲击钻、钢筋扳手、钢锯。
3.工序:弹线定位→ 支架安装 → 避雷带安装 →引下线连接 → 调直调正。
4.工艺方法:
按设计位置弹线、定位,一般情况下,避雷带应居女儿墙(屋脊)中心,当女儿墙宽度大于300㎜时,支架布设于距外沿150㎜处,距变形缝、转弯300㎜处设支架,直线段支架均匀分布,间距不大于1m;支架埋深不小于80㎜,出女儿墙顶面不小于150㎜,调整、校正支架的垂直度,根部套不锈钢装饰圈并用耐候密封胶固定。圆钢调直后敷设在支架上,转弯、搭接、变形缝处圆钢煨弯加工。
转弯处煨弯半径为80~100㎜,搭接处一端钢筋煨“乙”字弯,与另一端圆钢上下搭接,搭接长度为100㎜,搭接点宜设在离支架不小于200mm位置处,双面施焊,焊缝连续饱满,焊渣清理干净,焊接点应先刷防锈漆,再刷银粉漆,防腐处理到位;变形缝处钢筋煨成向下半圆形。将防雷引下线可靠焊接在避雷带上。拉通线校正避雷带的高度、平直度。
4.控制要点:支架形式、搭接长度、双面焊、高度、平直度。
5.质量要求:支架固定牢固,避雷带敷设顺直,焊缝表面平整、饱满光滑。
6.做法详图:



7.实例图:

8、屋面金属透气管接地
1.材料:镀锌圆钢φ12、镀锌扁钢-25×4、抱箍、镀锌螺栓、编织软铜线10mm²。
2.工具:电焊机、电钻、扳手、鎯头。
3.工序:引接接地线抱箍安装 避雷针安装 标识。
4.工艺方法:采用镀锌扁钢自屋面避雷网从透气管根部引出,用抱箍沿透气管固定,距根部或装饰台间距300㎜,根部与接地线连接,搭接长度不小于100㎜,透气管的连接部位做接地跨接。
5.控制要点:避雷针形状、固定、搭接长度。
6.质量要求:接地可靠,避雷针安装垂直。
7.做法详图:

8.节点效果图

9、屋面金属体接地
1.材料:镀锌圆钢φ12、镀锌-25×4、螺栓、软铜线、铜端子、油漆。
2.工具:电钻、扳手、鎯头。
3.工序:接地线→ 连接 → 刷漆 → 标识。
4.工艺方法:用-25×4的镀锌扁钢从就近的避雷网引接地线,接地扁钢一端与避雷网连接,另一端在金属附近地面引出,应高于设备基础100~ 200㎜。
无振动设备在金属体上直接焊接,有振动设备和非碳钢金属体应用编织软铜线两端压端子跨接,编织软铜线外套黄绿双色热缩套管且热缩。伸出地面的接地母线应刷黄绿相间油漆。体积较大的金属体应做不少于2处的接地,高度高于避雷网时,应加避雷针保护。接地母线附近应做接地标识。
5.控制要点:端头连接,标识。
6.质量要求:接地可靠,标识规范明确。
7.做法详图:

8.实例图:

四、通风与空调工程
1、风管加固(不适用洁净系统)
大口径(b≥2500mm)镀锌钢板风管加固
1.材料:1.2mm厚镀锌钢板、ф4×8镀锌铆钉。
2.工具:剪板机、折方机、手电钻、榔头、垫铁。
3.工序:制作C型条 →画线 → 打眼 → 铆接 → 法兰安装。
4.工艺方法:利用1.2mm厚的镀锌钢板制作C型条,沿风管宽度方向将C型条按600~750mm间距铆接。铆钉按200~220mm间距铆接在风管内侧。加固完成后安装风管两端法兰。
5.控制要点:C型条加工顺直平整、铆接平整牢固。
6.质量要求:铆接平整且牢固,铆点间距宜为200-220mm且均匀分布,加固条间距宜为600-750mm且均匀分布。
7.做法详图

8.实例图:

2、玻璃纤维风管加固
1.材料:镀锌螺帽、Ø16KBG管、镀锌通丝螺杆、碟片。
2.工具:砂轮切割机、手电钻。
3.工序:定位打眼→ 加工安装KBG管 →固定。
4.工艺方法:矩形风管长边大于630mm时,顺长边方向中间应进行空间高度加固,按间距300~600mm在风管上确定加固KBG管的位置,加固点宜居中或均匀对称分布,上下孔应垂直对应。
KBG管加工长度为风管高度减两个碟片厚度,将KBG管及内侧两端碟片置于螺栓孔对应位置后,穿通丝螺杆,外侧加碟片及螺帽固定,并用圆头螺帽收头。
5.控制要点:KBG管长度、通丝螺杆长度、风管表面平整度。
6.质量要求:加固点成排成线间距均匀,风管表面无变形,加固杆固定牢靠。
7.做法详图:

8.实例图:

3、风管与风机软连接
1.材料:三防布、跨接线、镀锌螺栓、镀锌铁皮条、风管法兰。
2.工具:钢卷尺、水平尺、手枪钻。
3.工序:定位弹线→法兰及软接制作 → 软接连接 →接地跨接 。
4.工艺方法:确定风管与风机之间的距离和同心性,距离要求150~200㎜,风管、风机同心同径;制作软接两端法兰,中低压系统法兰螺栓孔间距120~150㎜,高压及净化系统孔距80~100㎜,软接长度为法兰间距加20~30㎜伸缩量,用铆钉将软接均匀平整的固定在法兰上,铆钉位置和法兰螺栓位置对应,风机法兰与风管法兰螺栓孔对应,螺栓朝向与介质流向一致,螺栓外露长度为2~3扣丝。屋面与防暴场所采用不小于4mm2的黄绿双色铜芯软线压接铜鼻子接地跨接。成排风机中心线应在一条线上。
5.控制要点:同心度、法兰及软接加工。
6.质量要求:风机、风管应同心,软接平顺,松紧适宜接口严密。
7.做法详图:

8.实例图:
