【楼盘名称】田心山庄
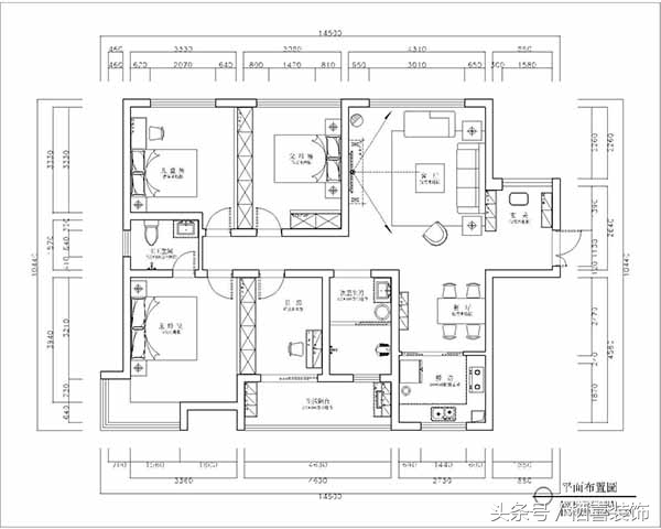
【装修面积】130㎡
【装修风格】美式风格
【装修费用】15万
【户型结构】三居室
【设 计 师】邹承霖

设计说明
美式风格根植于欧洲文化,将移民时代遗留的生活方式和装饰风格流传至今,加上美国国土辽阔,极大的放开了移民们对于尺寸的欲望,使得美式风格以宽大、舒适和杂糅各种风格而著称。

由于家庭成员较多,同时要兼顾一件书房的功能,就将原主卧区域隔成两间房,腾出一间房作为书房。

客厅
透过白色典雅的家具和古朴的巴洛克式吊灯,我们可以感受到深厚的欧洲遗风,在美式风格的装修中,处处可见这种因为历史原因形成的风格特点。但是那种不羁、自在和休闲式的浪漫只有美式风格中才有。柔软的毛绒地毯,舒服的躺椅,加上做旧的挂画,都是美式风格中常见的装饰和家具摆设。美国人钟情于有历史感的饰物,这也反应在了吊灯的选择上。

卧室
就整体而言,美式家具传达了单纯、休闲、有组织、多功能的设计思想,让家庭成为释放压力和解放心灵的净土。美式家具的最迷人之处在于造型、纹路、雕饰和色调细腻高贵,耐人寻味处透露亘古而久远的芬芳,最突出的特点就是笨重的实木风格,详见下方卧室效果图。

设计师 介绍

姓名:邹承霖
入行时间:3年
设计理念:设计以提高生活品质为理念,通过整体规划及细节设计改善业主的生活习惯,同时融入客户需求,打造专属的家。
更多装修案例请关注:栖喜装饰官网