
在讲内容之前,小编想问一下各位小伙伴: 什么是标准的施工图?
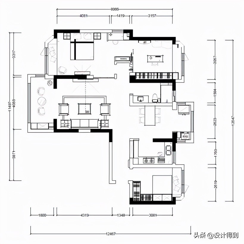
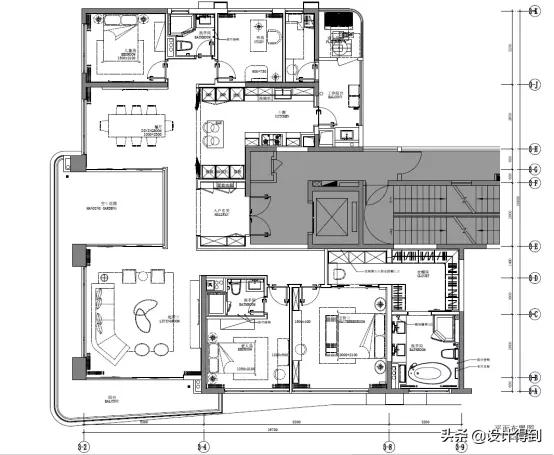
咱们先来看几张图纸:




对于以上图纸,大家能发现: 不同公司绘制的图纸,它的制图标准不一样,最后所呈现出来的效果也不一样。
可能每个施工图设计师心里对 图纸标准 有自己的看法和理解。就像莎士比亚曾说的 :“一千个人眼里有一千个哈姆雷特”。
那为何没有统一的标准呢?
可能有这几个原因: 地域区别、公司区别、人数水平的区别、公司选择绘图的标准 等,其实归根到底是因为 室内设计没有明确的制图规范约束。
而且室内设计的 多样性和特殊性 ,让每个公司都有各自的习惯与标准,以至于图纸标准并 不统一。
虽然规范不同,但图纸的标准还是有迹可循的,可从以下5个方面来做:
1. 标准模板文件
2. 图层的设置和使用
3. 文字和文字样式设置
4. 标注样式设置和使用
5. 绘图比例设置

标准模板文件
1、 首先问大家,何为模板?

模板是 根据公司的制图标准来制作的开图文件,不需要复制,可以直接在新建文件中,直接开始绘制施工图。
就是一个 dwt格式的图形样板文件,它里面包含了图层、图框、标注样式、文字、单位等相关信息。
模板可以让你开始画图后,不再需要拷贝一些信息,也避免了不同电脑因为复制问题出现的 单位、线型比例 等不统一的情况发生。
2、 标准模板放置的位置
操作步骤: OP打开选项面板→文件→样板设置里面。

设置完成后, 新建图层 会出现这个界面,选择你需要的 开图文件 ,点击打开即可。

其实每个公司基本上都有自己的 制图标准 ,但是可能大家不知道,比如说你们现在画这一套图,里面的 标注、模块、皮肤 等都是从上一套图拷贝复制过来的。
这其实也算是制图标准的一种,只不过这一种不是很好的方法,因为复制容易发生错误,如 线型比例不对、图层颜色不对、标注样式错误 等,都是有可能发生的。
所以这里建议大家根据 公司标准制作开图文件来使用 。

图层的设置和使用
除了标准的开图文件,图层的设置也是有标准的。
1、 图层设置
图层设置的合理性在布局空间绘图尤其重要, 通过布局的视口进行图层开关,可以显示需要的图层 ,简单来说就是 “图层管理” 。

△图层分类
想要图纸更清楚、规范,前提是把 图层 设置好。
a、 图层名称最好开头是英文缩写,尽量不要用中文。
为什么呢?理由很简单,就是 便捷 ,因为 开头设置成中文,你没有办法快速搜索出你要的图层,而英文是可以的 。

b、 进行图层归类,属于一类的图层,编写尽量在一起,可以适当减少图层。
大家可以看到下图中,图层的应用有很多种,它们可以归类在同一个图层,可以做到 同开同关 的图层状态,并且不会影响到图纸表达内容。

c、 立面图、节点图的图层可以通过颜色进行区分,而不需要创建很多个立面、节点图层。


在绘制立面图、节点图时,可以通过改变 线的颜色,从而达到不同颜色表达出来的物体不同的应用。
2、 图层使用
在绘制平面系统图时,可以使用 图层状态管理器(AS),来控制不同视口里面的图层显示,前提还是需要设置好里面需要显示的图层信息。
具体如何设置,这里就不赘述了,小伙伴们在 【 设计得到】官网或APP直接搜索 “图层状态管理器” ,就可以看到相应的讲解了。
下面举例说明一下


像图示中,是在尺寸定位图中进入视口内,双击点击天花布置图 。

大家可以看到天花布置图中 灯具、造型线、风口 等图层信息都会被打开 。
这就是图层设置的好处,咱们 提前做好了图层信息内容,也不用担心图层开关错误,还能提升效率 。

文字和文字样式设置
图层设置好后,接下来就是文字了。
1、 文字的使用
a、 字体使用过程中,尽量减少不常见的字体使用频次,使用常规通用字体样式。
b、 字体使用过程中,一套图建议不要超过4种以上字体样式。

2、 文字样式设置

设置字体名尽量使用 通用字(宋体、黑体) ,不要设置一些大字体。

这样 可以减少因为缺少字体的情况下,每次打开图纸,而出现的字体代替情况 。
3、 单行文字、多行文字使用
为什么要说这一点?
是因为 单行文字是不能进行换行的,如果文字多的情况下,分行只能再复制文字进行编辑,这样在绘制时会不方便。
如果需要把单行文字变成多行文字,输入命令 TXT2MTXT ,就可以进行换行操作了。


标注样式设置和使用
标注有 2种 方式: 在模型空间标注、在布局空间标注 ,至于不同空间标注的优劣势,就不在今天的内容里面进行阐述了,咱们主要讲如何设置:
1、 标注样式设置
输入命令 D, 调出 标注样式管理器 进行设置,需要修改以下几个面板里的参数设置:

a、 线
可以调整 尺寸线和尺寸界线的颜色 ,根据各自公司的 标注 来设置。
固定长度的尺寸界线 ,如果设置固定长度,那标注出来的尺寸界线都是一样的长度,会比较统一。

b、 符号和箭头
箭头可以根据 原有CAD里面自带的样式来运用,也可以根据自己制作的块来运用。

c、 文字
文字需要进行 文字样式设置 ,之前也说了用常规字体。
文字高度的使用与 图幅 有关联,不同的图幅使用的文字高度是不一样的, A3图幅常规使用2、2.5字高左右,A2图幅常规使用3字高左右,A1图幅常规使用3.5字高左右。

d、 调整
在布局中间标注, 全局比例改为1。

e、 主单位
舍入值一般设置为 0或5 ,标注比例因子根据标注来进行设置。

2、 标注样式使用
一般在大家公司的规范里面, 标注尺寸在布局空间,会根据不同的视口比例来设置不同的尺寸标注。

在布局空间标注经常会发现: 标注出来的尺寸与实际尺寸不相符, 可能是由以下2个问题导致的:
a、 标注比例与视口比例不相符,可能视口比例是1:50,但是当前标注样式是1:100,标注出来的尺寸肯定是不正确的。
b、 标注没有取消关联
解决方法: 在OP选项面板→用户系统配置→取消勾选使新标注可关联。


绘图比例的设置
图纸比例会因为 不同图纸的构成而大小不统一 ,平面类、立面类、放大类、节点类表达的图纸内容不一样,使用的比例也是不一样的。
1、 常见的室内施工图比例

2、 每个图纸比例并不是固定的,具体使用多大的比例,由该项目的具体情况而决定
需要保证的是:图纸比例的设定,要以 能够清晰合理的表达图纸内容为基础原则 ,同时需要 遵循常见比例的使用 ,不要有因为要把图纸撑满,而随意放置比例的情况发生。

就像上面这一张图,它是作为一张 总图 来表达的,不是分图索引,但图纸把 灯具定位的内容 也表达出来了,就导致看不清楚、也不清晰。
所以 不建议把图纸撑满,表达太多的东西,可以用分图的方式进行灯具定位。

另外,小编也不建议像上图一样,把一个立面单独放置在一张图上,因为图片版面过于空,不太合适。
所以,我们在设定比例时,先确定图幅的大小是多少,再去布局空间拉视口,尝试常用比例是否ok。
因为每个项目的体态形状是各不相同的,都需要自己尝试设置,最终来确定具体适当的比例。