把梦想中的房子变成现实!设计是什么?只是每个人对于家具、家居搭配美好的念想。Come on!在千万人的念想中,寻找属于你的家。

户型:三室
使用面积:111㎡
费用:42万

▲原始结构图

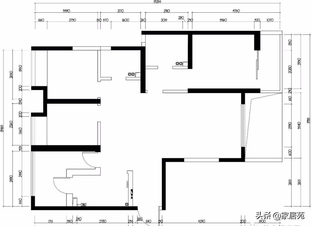
▲平面布局图
改造提示:
1.三室改为两室+多功能厅的结构,放弃了一间卧室,解决了客厅的采光和通风问题。
2.改变了客卫位置和布局,最大限度增加女儿房面积。
3.北阳台做了顶立面的搭建,打掉原墙体,打造了通透宽敞的厨餐厅。
4.改变主卧入口,增加了一个迷你洗衣区和卫浴收纳。

▲收纳示意图
整屋设计了超多储物空间,并且收纳系统的规划基本都在家务动线上的最佳位置,这样收纳才会井然有序。让我们一起看看这个家实际的样子吧。

一进门便能感知到家的温暖,玄关柜侧面专门留了一个小壁龛,方便进出门随手放置小物件。
换鞋凳下的墙面预留了感应开关,晚上回家开门的瞬间,玄关顶部和壁龛内部的射灯瞬间亮起。换完鞋离开,灯会自动熄灭,可以说非常好用了。

从餐厅角度看玄关,右边是入户门和换鞋区,玄关柜左边是复古冰箱,是整个餐厅的颜值担当。

玄关的穿衣镜可以看到餐厅一角和厨房。


整个家拆除了原厨房与阳台之间的墙体,重新组织除了玄关、餐厅岛台、中厨、洗衣区和小家电区。
随着现代生活方式的改变,餐厅正渐渐的成为家庭的核心活动区、交流区、工作区,变成了可以解决一个家50%功能的综合空间。

室内的门窗洞边缘都处理成小圆角,这样光线的转折处就变得很柔和,整个屋子的氛围也跟着温柔起来了。
全屋采用中央空调和新风系统,定制了隐形内嵌的加长风口,在尺寸和安装位置上,尽量弱化风口对顶面的影响。

复古开关颜值很高。

水磨石的岛台台面与地面相呼应,岛台上还巧妙的隐藏了原厨房的分水器。靠墙设置了超薄边柜,用来收纳餐具杯具等。
由于分水器位置的限制,岛台离超薄边柜距离只有70cm,所以用实木条凳代替餐椅,节省空间,也不会影响边柜柜门的开启。

从餐厅看向玄关,2100*730mm的台面使用了双出水的水龙头,生活用水和净水一步解决。

家里的卫生间比较小,所以在靠近厨房的位置,安放了洗衣机,上面的空间自然而然的形成了小家电操作台面,圆弧形的台面造型,实用且不占用空间。

从餐厅看向客厅,餐厅和客厅之间没有做任何隔断,而是通过拱门互相连通和开放。

拱门旁还开了一扇小窗,增加空间的通透感,窗台台面依然统一采用水磨石材质,搭配绿色的复古冰箱,成为了颜值超高的一角。

从餐厅看向多功能房的书架


原厨房和生活阳台合并后,新的厨房宽敞又明亮。


厨房采用U型布局,从右到左,储存、备菜、清洗、切菜、烹饪一气呵成。
由于屋主习惯用电磁炉和烤箱做饭,油烟较少,所以厨房没有贴砖,而是采用了防水乳胶漆。灶台处采用了橱柜同款实木颗粒板保护墙面。


原户型的小次卧拆除后,变成了半开放式的多功能室。多功能室和客厅连通,采光和通风都大大得到了改善。
多功能房一侧墙体向走廊部分压缩了30cm,压缩的部分既成全了内嵌书架,也给客卫争取了更多空间。


多功能室可以用来写字画画、看书、聊天品茶、瑜伽...这个房间的实木桌椅其实是屋主的旧物,摆在这个新家里一点也不违和。


充满人文气息的书籍和摆件也都是屋主的最爱。


客厅做了大组的收纳柜代替电视墙,对于面积没有很大的户型来说,要解决家中的公共大型物品,比如行李箱、户外运动物品等,客厅拥有储物柜真的非常实用。
收纳柜的吊顶里暗藏投影幕布,可以利用具有侧边投影功能的投影仪满足视听需要。

收纳柜在靠近窗边的位置预留了空间,做了四层抽屉+吊柜,方便收纳小件物品和书籍。吊柜下方安装了感应灯带,搭配绿丝绒的单人沙发,打造了方便阅读和休闲的一角。

沙发旁造型优雅的落地灯是设计师Poul Henningsen于1960年设计的经典之作。

沙发另一侧挂着几幅可爱的小画用来装饰。


原主卧阳台的是露天的,通过搭建把它并入了室内,拆掉了卧室与阳台的推拉门,扩大了卧室面积,天气好的时候,阳光洒进来能覆盖整张床。



坐在窗边的摇椅上,看着花花草草。晒着太阳,惬意极了。



次卧是上初中的女儿住的房间,原来的客卫移出去后面积扩大了很多,1.5宽的榻榻米连接着飘窗和书桌,可以留出更多活动空间。

榻榻米下方做了侧开的抽屉,增加储物功能并且方便拿取。

整体白色调的空间,干净耐看又舒适。



客卫虽小,也拥有足够的收纳,壁挂马桶杜绝了卫生死角,飞机头的复古台盆套装为客卫加分不少。

主卫充分考虑了舒适度,智能马桶,电热毛巾架一个都不少,墙顶面采用防水乳胶漆,节省贴砖占用的空间,还能随心所欲改变墙面颜色。
悬挂的浴室柜,墙出水龙头和花洒,台下盆,都可以减少卫生间的死角。
