日前,贵阳市城乡规划局发布了云城尚品幼儿园项目方案批前公示,这意味着云城尚品教育配套在快速完善中,建筑面积逾4000平方米的幼儿园将落成。

公示显示,云城尚品幼儿园项目已办理建设用地规划许可证、国有土地使用证、发改立项文件、环评报告、地灾报告手续等手续,依据相关法律法规,进行规划行政许可批准前公示。公示时间为2018 年7月2日至10 日,共计7个工作日。

项目区位图
项目申报单位为贵阳云城置业有限公司,项目用地位于贵阳市白云区白金大道西侧云城尚品A1地块幼儿园。

项目总平面图

幼儿园效果图
本次公示内容为A1-2地块内幼儿园,地块总建筑面积4226.07平方米,其中计容面积4150.67平方米,不计容面积75.40平方米,总层数3层,建筑高度14.50 米。

单体方案平面图·一层

单体方案平面图·二层

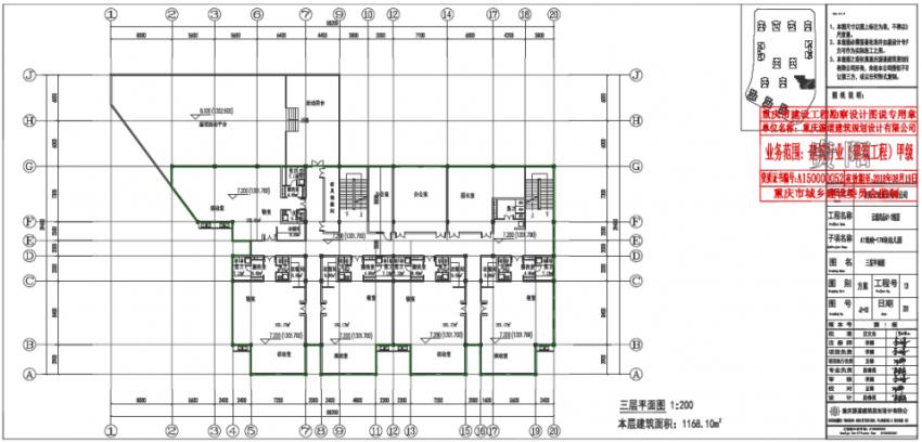
单体方案平面图·三层

单体方案平面图·屋顶

项目整体鸟瞰图
据了解,云城尚品项目位于白金片区,贵阳未来的城市中心,南邻贵阳会展中心,北邻高新区,东邻大数据走廊(白金大道),西邻白云公园,是连接白云、金阳、高新区的重要环节。
项目由国有企业贵阳白云城投置业有限公司投资开发,借由贵州大数据和金融产业的建设,将与贵阳一起向上,创造贵阳品质生活示范区。此外,多条公交线路、轻轨通达项目,交通优势明显,且有多所学校环绕,是不可多得的优居、便捷、幸福的生活圈。