
案例信息
房屋类型:老屋(屋龄20年)
户型格局:3室2厅2卫
空间面积:132㎡(室内)
常住人口:2人+1猫
设计风格:日式禅意
案例设计:长波空间设计
主要建材:柚木、桧木实木、栓木木皮、瓷砖、铁件、平条玻璃、不锈钢、超耐磨木地板、乳胶漆、定制柜

案例故事
“空间引导了行为,行为得到了生活经验。”
今天这对屋主来自台湾省台南市,他们的房子是一套屋龄20年两户打通的老公寓,套内面积132㎡,对于建筑面临的西晒问题,却一直是屋主最伤脑筋的地方。

这是为什么呢?业主吐槽说,他们是被开发商忽悠了,本以为两人1猫能住得宽敞又舒适,结果现实却是:房子朝向十分不合理,面临西晒。那一刻,他们悲愤交加,甚至恨不得马上转手卖掉……
不过,有时候理想与现实,只隔着一个优秀设计师的距离,我们来看看这场“化腐朽为神奇”的改造。
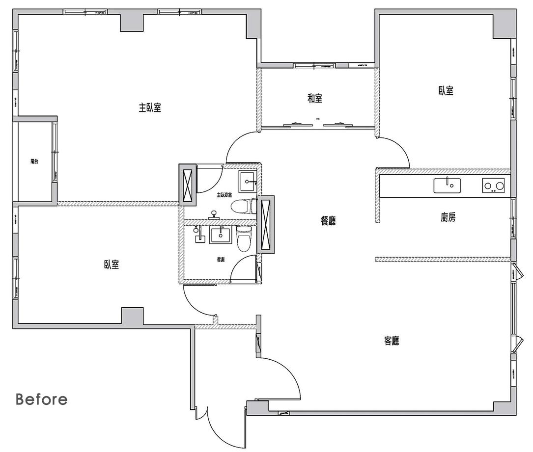
【户型资料】

▲以上为动态平面图
业主希望家是纯净而且有故事感的,温暖、通透、轻松,无需过多装饰,储物空间充足,并尽量扩大主卧的面积。
【屋主需求 】
* 想要一个浴缸。
* 厨房开放式设计。
* 增加合理收纳空间。
* 完美解决西晒问题。

业主希望的合理收纳也用心做了安排:全屋不仅有超大面积的收纳空间,并且都尽量规划在了动线上最便利的位置,动线和收纳并举,井然有序。
【设计师说】

一、设计要点
面对2人1猫,预计几年后家中会增添新成员的生活要求,设计师从太阳与住宅的关系、公共区域的串联、以及回字动线的设定出发,通过重新分配动线,有效的化解西晒问题、建立起2人 1猫良好互动关系且独享各自天地的格局,让空间完全满足10年内的生活弹性。
二、改造细节

“设计,其实从光照(朝向)通风之于室内的关系,开始考量。”
为解决西晒及室内的温度调节,从平面图上解构格局——由室内面向西晒方,左起客房、储藏室、主卫、更衣室,如此将适合干燥特质的卫浴、更衣区域规划在此,符合区域设定的属性与特质。这样的功能构成,也成为公私区域间完美阻隔阳光西晒的介质。

案例设计
【玄关设计】
一眼可见,是以超耐磨木地板、黑色瓷砖、还有自然材质的家具等设定的落尘区,打开门的瞬间,就感受到怀抱一样温暖休闲的家之味。

▲玄关实景图(左:改造前 右:改造后)
侧面的墙上悬挂了一个艺术花篮,美观又能装点心情,上方墙面预留了一盏简约白色壁灯,夜间归来时,暖色的灯光仿佛一位老朋友一般贴心了!

正前方通往公卫,入口以隐藏门方式设计,利用造型塑造出视觉端景效果,向左右分别进入书房、客厅区域。值得一提的是,设计师更以柚木实木格栅作为鞋柜及书房的门扇,既通透,又颜值在线 ,映出了入户美好的景象。

【储藏室设计】
只见以隐藏门方式规划的储藏空间动线开口,不仅美观整体,而且有效拉正了管道间。

▲储藏室实景图(左:改造前 右:改造后)
同时立面以隐藏、开放及造型表现出收纳、展示、端景等功能所在,别具巧思!

【客厅设计】
设计师将电视墙面以人体坐下沙发最舒适的视觉感受,不刻意做满,适度留白,设定书柜高度,一整面的收纳,方便摆放小件物品和书籍。傍晚时分,暖暖的灯光落下来,木色的单人休闲椅和淡黄色毛绒地毯,都会散发出一种时光沉淀的美丽,看着花花草草,与她谈天,惬意!

【餐厅设计】
思维观念的转变影响了生活方式,餐厅正逐渐成为家庭的核心活动区、社交区甚至是工作区,可以实现家庭50%的综合功能。

▲餐厅实景图(左:改造前 右:改造后)
设计师重新建立了一个超大的LDK区,中厨、岛台区、家电操作区都一一穿插其中,并且动线合理流畅。2米4长的岛桌,搭配圆形桧木榫接的定制餐桌,让整个空间的氛围显得愈加温柔。石英石岛台台面与地面呼应,既耐脏耐刮,颜值也是百看不厌,使用了双出水的龙头,生活用水和净水一步解决。

一旁设备柜则依居住者的活动、收纳习惯设定,在装上的那一刻觉得一切都值了,实力演绎什么是颜值与功能并存。

【主卫设计】
主卫采取干湿分离设计,将马桶与浴缸分开,干燥性够。洗脸台面柜体以不怕水的缅甸柚木搭配铁件、瓷砖、不锈钢收边,可以显著减少卫生死角,打造利落、朴质的生活感受。

由于,建筑本身的阳台间距过近,所以将洗衣机设计在室内,让卫浴空间的功能使用上更加完善。

案例规划
【动线设计】
由于屋主习惯回家办公,所以动线上的关系表现在从玄关进来,将客厅到书房、书房到主卧、主卧到更衣室、更衣室到卫浴彼此区域的动线以回字型方式设定,让生活拥有更加流畅的秩序感,空间更多趣味,也是一间很适合捉迷藏的房子。

【色彩计划】
整体以白色及实木颜色安排,且在区域之间以相同材质及色系串联,使在日常活动经验中,给予舒适的生活感受。

【收纳规划】
为了延续餐厨区域整洁视觉,因此将收纳安排于厅区左侧,量身定制符合屋主使用习惯的木质壁柜,整合电器与杯盘收纳需求,实现温润合一且开阔清爽的氛围。

Editor’s Comment
设计的走向,是让客户满意,还是超出客户的预期,高屋建瓴?基于对业主的深入了解和判断,设计师知道,这个家不仅要简约,还要有一些“特殊气质”,有时间轴线上的冲突和文化地域的融合。如此,让这个家多点“耐人寻味”,让夫妻两的生活多点浪漫的温度。
(以上为屋主依据自身需求装修的过程点滴,所有材料、时间、花费等皆为屋主能接受的范围,并非人人适用,仅供参考!若想追求更为讲究及细致的生活,建议找专业设计师处理,看更多老屋改造案例,请关注小胖,谢谢!)