两款绿地海珀兰轩案例装修效果,一款156平三室两厅现代简约风格装修,一款89美式乡村风格装修,都很美。
装修方式:全包+个性化
装修风格:现代简约
小区户型:156平三室两厅
装修造价:13万

客厅

电视背景墙

沙发背景墙

餐厅

厨房

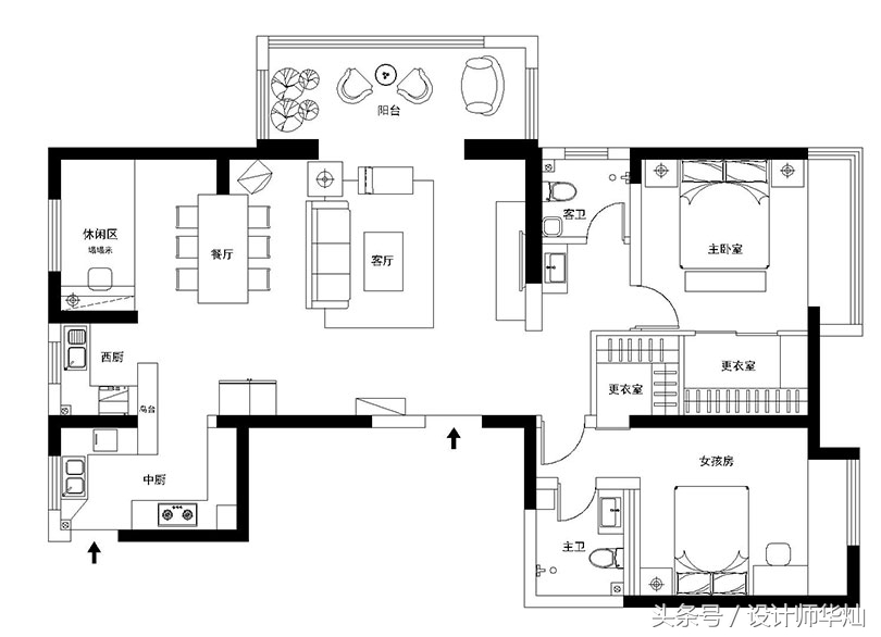
平面户型布局

卧室
装修方式:全包
装修风格:美式乡村
小区户型:89平两室两厅
装修造价:8万

沙发背景墙

电视背景墙

餐厅

平面户型布局

卧室
如果您喜欢这样风格装修,或者其他风格装修都可咨询:136-7365-7122 可加微信
套餐模式更省事,省钱。
服务范围:河南,北京,上海,杭州,湖州,合肥,福州,江门,济南。