——————————————————————
新区火盘华发紫薇中央首府,
即将加推,核心竞争力到底怎样?
———————————————————————
华发紫薇中央首府
华发紫薇中央首府,高新三期CID当红炸子鸡 。
-------作为一个新区热盘,它到底有什么不同?
项目名称:紫薇华发中央首府
【容积率】2.8,高层,小高层,洋房均有【绿化率】35%【车位配比】1:1.6【物业】华发物业【户型】两梯四户97、132平精装高层,两梯两户142平小高层,一梯两户168平精装洋房
【价格】高层均价1.78万,小高层均价1.9万,洋房均价2.1万
【项目地址】西太路国际医学中心南侧
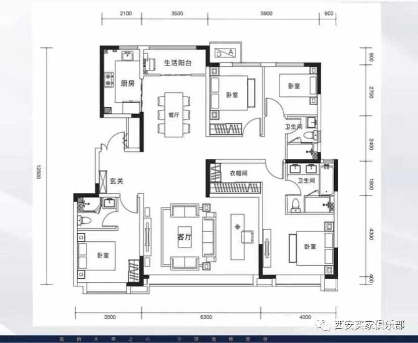
项目区位与规划图


中央首府主力户型




▍地段
该项目位于高新三期核心区CID板块。
这个板块是高新三期规划的核心区域,周围规划相当高大上。
CID板块未来之瞳规划的高端商务办公集群,兰桂坊等知名商业体,以及目前已经落地的高新国际医学中心等,无不透漏着这个区域高规格规划的贵气。
周围除了紫薇华发和中海地块,其余的新希望、碧桂园2020年下半年的高价土拍,使这个区域成了软件新城之外有一个万元地最集中的区域。
规划高大上,而且地王环绕,前景可期。但是,目前落地的只有刚刚开通的地铁六号线和高新国际医学中心,周围环境依然荒芜。
紫薇华发中央首府位于该板块核心区域,鉴于区域现状和未来发展前景,该项目地段我打8分。

▍价格
该项目目前备案待出售的高层均价1.78万,小高层均价1.9万,洋房均价2.1万。基本和首开价格持平。
作为CID板块首盘,周边暂无在售相仿项目,由于是新区,更没有可以参考的二手房价格。我们只能拿高新其他区域同档次楼盘进行对比。
更加成熟的保利天悦,精装高层的备案价预期2万以上;
软件新城新推项目由于地价的高企和产品类型的不同,价格基本都在2.5万朝上;
郭杜的中海熙峰里高层备案价在1.9万上下。
紫薇华发中央首府目前的高层备案价基本属于高新行政区内品牌新房的最低价。洋房和小高在区域内相对较少,价格也不算贵。
但是CID的发展进度相比较软件新城和保利天悦片区较晚。所以关于价格,我打相对保守的8分。
▍交通及配套
交通方面,项目距离刚刚开通的地铁6号线西安国际医学中心站1.5公里以内 。
商业方面,目前周边几乎没有什么拿的出手的商业,相对比较近的是阳光天地,距离也在5公里左右。
大家最关注的教育配套,按照就近原则,小学可能是高新第二十三小学,为西电附小的名校+,初中大概率为高新第五初中,属于逸翠园中学的名校+。
整体来说,该项目周边当下的配套,除了刚刚开通的地铁6号线和西安国际医学中心,而离医院确实很近,这到底是优势还是劣势仁者见仁。其他的配套还停留在纸面上,尚未落地,落地之后打几折,也无从知晓。所以,我目前只能打7分。
▍品质及物业
华发,珠海国企开发商。
紫薇,本地老牌国企开发商。
华发在珠海的口碑不错,但是规模上说不属于全国头部行列。
紫薇,西安本土为数不多的老牌开发商,多年前全国性品牌开发商未进入西安之前,有着较高的声誉 。这些年对比其他大品牌开发商来说,在口碑方面只能说中规中矩。
项目2.8的容积率,一个地块做了高层、洋房的高低配,一个做了小高层的规划。从容积率和每百亩户数上来说,属于比较典型的刚改+改善楼盘。
这个项目由华发操盘,开发和物业都是华发主导。华发在西安并无落地项目,此盘作为华发首秀,品质暂时无法准确评估。
但是通常来说,这两年本土开发商出地,寻找外地开发商合作,并由外地开发商操盘的项目,通常不会比本土开发商的开发水平低。
结合高于等于紫薇的品质与物业预期,以及由于限价问题修改的装标,品质及物业方面,相对保守的打7.5分。

▍户型
该项目户型,中规中矩。各个户型的功能区划分合理,无明显硬伤。
需要注意的是,不同产品类型的公摊,区别较大。
97平高层的套内面积为72.12平米,实得套内单价为2.4万左右 ;
130平高层的套内面积为97.28平米,实得套内单价为2.4万左右;
142平小高层的套内面积为110.82平米,实得套内单价为2.46万左右;
168平洋房套内面积超过140平米,实得套内单价小于2.45万。
值得注意的是,该项目的套内单价,其实无论高层、小高层、洋房的价格几乎没有什么差别,而套内单价作为一个黄金指标,从居住舒适度上来说,洋房的舒适度和性价比无疑更高!
说回项目户型,户型方面洋房和小高的四室户型在目前的市场环境下竞争力十足,高层中规中矩。但考虑到由于是新报建项目,无赠送面积,综合考虑,户型方面打8分。
▍租售比
本小区地属高新三期核心板块,租金后期可期。
但是目前多数生活配套还在纸上,所以目前谈租售比还为时过早,我打7分。
【综述】
总体,紫薇华发中央首府作为高新CID的首盘,各方面比较均衡。
我给出了总分76分的成绩。
小编有话:关于中央首府的打分评测,打分结束,得分并不亮眼。但是对于这个项目,小编确认为该项目仍然值得购买,原因何在?
这不得不说一说CID这个片区和高新的现状。
我们并不像其他自媒体一样,拿出宏伟无比的规划、愿景说事。
CID作为一个新区,和其他新区有着一样的通病,就是先画饼。
于是十几个新区的西安这两年出了很多梗,比如陆家嘴西安分嘴,大西安新中心之类的段子。
CID这个饼,当然也是巨大无比。至于规划什么时候落地?落地打几折?这个事情也许只有天知道。新区么,把地卖出去,钱到手再说。
我们对所有的新区,都非常谨慎。但是CID,又有什么不同呢?
这就必须说说高新的现状了。
众所周知,高新是西安的产业高地,年轻人巨多,有钱人巨多,购房需求巨大。
地铁三号线鱼化寨站下班人流高峰

高新的二手房,一期差不多的房子,例如高新、紫薇、天地源系列,很多带了学位,房龄超过十年的房子均价多在三万以上。
高新二期的品牌次新房源,也只有保利天悦、万科翡翠天誉、融创星美御这几个小区,房东们预期很高,目前二手价格也都至少在2.5万左右!
而深扒一下高新去年的新房供应了多少套?4000多套!这4000多套,除了本地土锤开发商开发的楼盘南飞鸿和天琴湾,更是少之又少!
偌大一个高新区,一年的购房需求何止4000套?即使增加十倍都不足为奇。
而高新近期的新房供应,除了软件新城和保利天悦附近,剩下的就是CID板块。
软件新城普遍价格已经在2.5万以上。保利天悦,即使限价严格,价格在2万出头,摇号也会非常激烈。
高新品牌次新二手房业主的镰刀也是磨刀霍霍!
对于被四面夹击的高新购房者,1.7万就可以入手高层,2万出头就可以买到洋房的中央首府,无疑是无法回避的选择。
而CID这个片区,也正是由于存在紫薇华发中央首府,中海寰宇天下这种地价不是太高的项目,在限价空前严格的情况下,倒是有极大的可能和高新其他区域的新房和同品质二手房有着明显的价差。
有价差,有地铁,有高新系公办学校。就会有大把的高新购房者争相流入。
所以,CID这个板块,虽然很多大项目并未落地,但是这个新区不同于其他新区的地方就在于:其他新区即使盖好了,人还不一定能流入;这个新区,特别是这个楼盘,很有可能即使配套没有完全落地,人却已经来了。
山高人为峰,人,才是一个城市最大的配套!人多的区域,特别是年轻人多的区域,没有配套起不来的!
该项目价格不高,有人口流入的预期,下限不会太低;又有着高规格的规划大饼,万一落地,上限较高。
所以,我认为,这个项目做为高新的自住,乃至是投资,还是值得选择的。
这就是我对它的看法。
还是那句话,不保证观点正确,但务求观点明确。
我是今天的测评师,Z。
下面,就请各位看官打出你们分数,在留言区发表对于他的看法!