▲ 千筑装饰·湖南十大主流品牌 衡阳装修首选
严把质量关
水电改造更放心

家装中水电改造设计的重要性,用俗语“磨刀不误砍柴工”来形容一点也不为过。
水电改造是指根据装修配置,家庭人口,生活习惯,审美观念对原有开发商使用的水路,电路全部或部分更换的装修工序。
水电改造又分为水路改造和电路改造。
衡阳·庆龙新视界10栋***水电线管布线施工中,在线即可预约看工地~
本案设计师:金城(千筑高级设计师)

设计年资:6年
毕业院校:湖南环境生物学院
擅长风格:现代简约、后现代、欧式、新中式、北欧……
设计理念:创造满足人们物质和精神生活需要的室内环境
代表作品:常宁自建别墅、江洲花苑、水映豪廷、愉景新城、庆龙新视界、华瑞园复式、高铁花苑,耀江花园...
金老师自2013年起从事家装设计行业,多年的设计实践中,积累了丰富的设计经验,对材料的运用及色彩的搭配,都有较高的熟悉和敏感度,对于出入施工现场工作更有丰富的实践经验和有较强的应对突发事件的能力,本着客户就是上帝的宗旨和独具创新的设计理念,多次受到客户的首肯和赞誉。
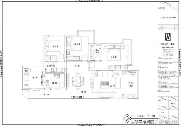
本案基本信息:
楼盘地址:庆龙新视界10栋***室
面 积:116+10.5㎡
户 型:四室两厅两卫
风 格:小美风
施工单位:千筑装饰
主案设计:金城

复古的地砖,清新的墙面,时尚的美式家具,墙面顶面的小造型,整体布置都是小美风格。以舒适实用为主导回归到大自然的感觉,稳重的家具有着岁月沧桑的气息。布艺沙发的摆放仿佛把你带进田园之中。背景墙的挂画颇有深意,意味着起帆远航,有乘风破浪的魄力,将蒸蒸日上。家具摆放上注重线型变化,形成直线和曲线的对比,主和圆的对比,横和直的对比,具有很强的形式美。以清秀雅致见长,以简练大方取胜。

装修进程观光梯:
1.验房
2.良辰吉日,开工大吉

3.墙体改造


4.水电定位、开槽



5.水电材料进展、验收、新建墙体



6.底盒安装、局部布线管



7.局部布线管
活管穿线工艺:地面新做电管,做好后用管卡固定,再用钢丝拉把电线拉进管道,做到地面所有电线都能拉得动。方便后期维修检查。不过这个也额外收了费用的。








水电改造注意事项:
一、水路改造部分
1、材料提示
根据公司报价材料选用符合国家标准的材料,进行施工(给水改造国家禁止使用镀锌管和UPVC管)。
2、施工注意事项
1.一般水改走顶不走地,各冷、热水出水水口必须水平,一般左热右凉,管路铺设需横平坚直。布局走向要安全合理。管卡位置及管道坡度等均应符合规范要求。各类阀门安装应位置正确且平正,便于使用和维修。
2.进水应设有室内总阀,安装前必须检查水管及连接配件是否有破损、砂眼、裂纹等现象。
3.水表安装位置应方便读数,水表、阀门离墙面的距离要适当,要方便使用和维修。
4.厨房内如加装软水机、净水机、小厨宝等应考虑预先留好上、下水的位置及电源位置。
5.冷、热水管均为入墙做法,开槽时需检查槽的深度,冷热水管不能同槽。
6.淋浴混水阀的左右位置正确,且装在浴缸中间(先确定浴缸尺寸),高度为浴缸上中150-200mm,按摩浴缸根据型号进行出水口预留。混水阀孔距一般保持在(暗装)150mm,(明装)100 mm,连杆式淋浴器要根据房高和业主个人需要来确定出水口位置。
7.坐便器的进水出口尽量安置在能被坐便器挡住视线的地方。连体坐便器要根据型号来确定出水口的位置,一般要留在马桶下水口正中左方200 mm处。
8.电热水器一般需固定在承重墙上,如情况特殊,固定在非承重墙上要做固定支架,且顶层要有足够位置做固定支架,需提前与热水器厂家进行沟通,以便确定热水器出水口的位置。
9.安装热水器进出水口时,进水的阀门和进气的阀门一定要考虑并应安装在相应的位置。
10.安装厨、卫管道时,管道在出墙的尺寸应考虑到墙砖贴好后的最后尺寸,即预先考虑墙砖的厚度。
11.设计水管时应考虑洗衣机的用水龙头安装位置,下水的布置。同时注意电源插座的位置是否合适。厨房厨柜内放滚筒洗衣机一定要确定好洗衣机和厨柜的尺寸,以便留好上下水的位置。
12.墙体内、地面下,尽可能少用或不用连接配件,以减少渗漏隐患点。连接配件的安装要保证牢固、无渗漏。
13.墙面上给水预留口(弯头)的高度要适当,既要方便维修,又要尽可能少让软管暴露在外,并且不另加接软管,给人以简洁、美观的视觉。对下方没有柜子的立柱盆一类的洁具,预留口高度,一般应设在地面上500-600mm左右。立柱盆下水口应设置在立柱底部中心或立柱背后,尽可能用立柱遮挡。壁挂式洗脸盆(无立柱、无柜子)的排水管一定要采用从墙面引出弯头的横排方式设置下水管(即下水管入墙)。
14.水改后出水口与洁具、热水器等连接,建议加装三角阀。
11.水路改造完毕要做管道压力实验,实验压力不应该小于0.6MPa。时间为20-30分钟。
二、电路改造部分:
1、材料提示:
1.管财选用符合国家标准的品牌产品。
2.材料必需与公司工程报价单所列品名相符
3.所用导线的截面规格为2.5mm2、4mm2、6mm2,不受拉力,包扎紧密不伤线芯,无扭结、死弯、绝缘层无破损等缺掐,所用电线颜色要分清。
2、临时用电
1.施工现场临时用电应有完整的插头、开关、插座、漏电断路器,临时用电必须使用电缆线。
2.进场时把空气开关的电线全部卸下来,然后从总进线接到临时配线电箱。工程队应自带配电箱,包括漏电开关、空气开关及带保护装置的插座,电缆线应完好无损。
3.包括切割机、角磨机、电据、手电钻、冲击钻等电动工具,经检验绝缘性能应完好无损,使用安全可靠,操作方法正确。
每一套房子都有每位业主的全部寄望,每一道工艺都有千筑人的真诚付出,严格要求自己,做最好的服务。
千筑国际装饰,14载品质装修,用实际工艺说话。

千筑装饰集团14载专注品质装修,对接国内外一线建材品牌厂家,比传统购买节省30%。在线预约千筑装饰,资深设计师将会上门量房,为您免费设计一份有美感、好品质的装修方案和效果图。
千筑装饰10000㎡整体家居体验馆
设计、环保辅材、施工工艺、主材产品
一站式家装服务平台
省时✓省心✓省力✓