后现代主义风格是一种在形式上对现代主义进行修正的设计思潮与理念,在设计风格上完全抛弃了现代主义的严肃与简朴,常常会体现具有一种历史隐喻性,放大充满大量的装饰细节。刻意制造出一种含混不清、令人迷惑的情绪,强调与空间的联系,形成有力量但不用生硬,有活力但不稚嫩的风格。

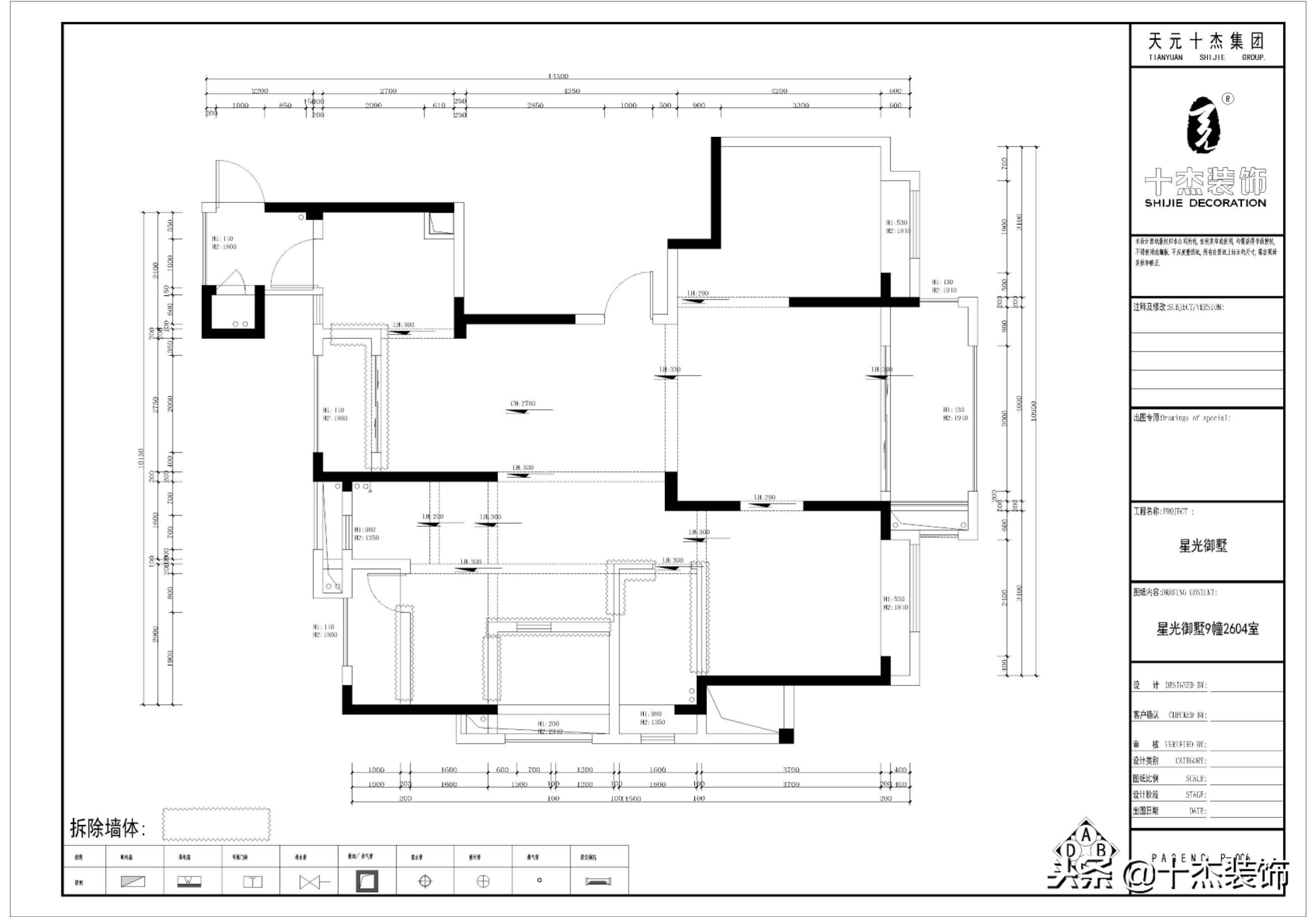
122㎡户型框架图
户型解析:
户型优点:户型方正、通透性强、视野宽广、观景效果好、四面均可采光、厨房朝南易招财。
户型缺点:外观比较方正,立体感设计感不强、空间利用率不高、中厅面积过大。

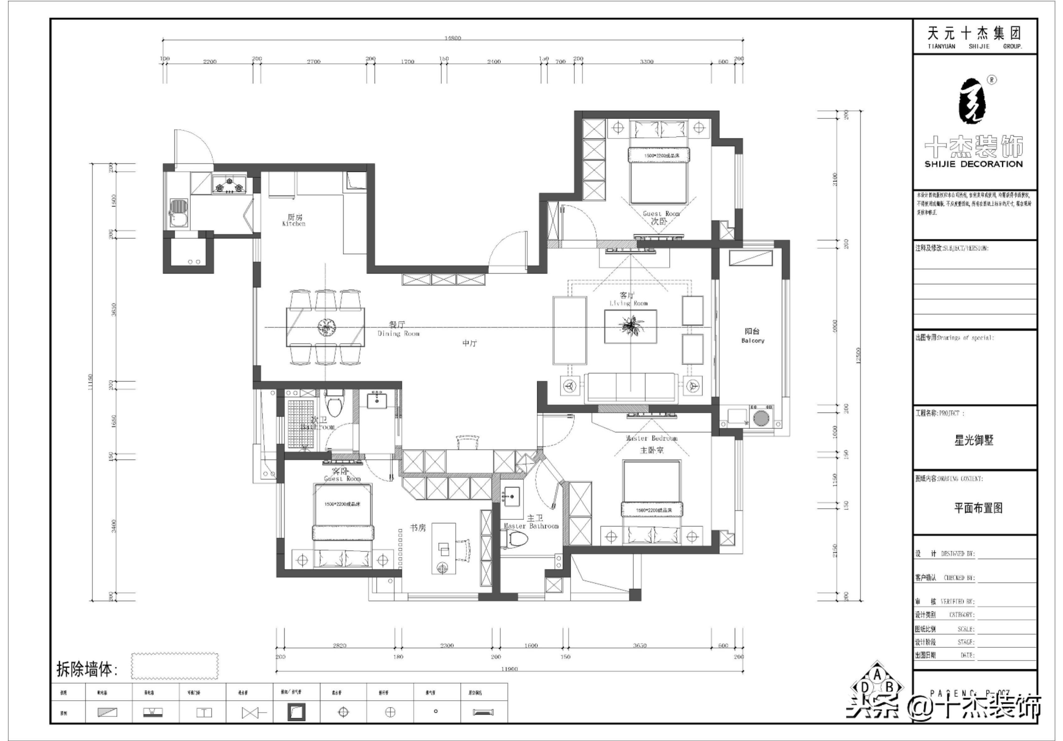
122㎡户型设计方案图
项目名称:星光御墅
装修户型:三室两厅两卫
项目面积:122㎡
项目地点:宁波·余慈
装修风格:后现代风格
设计施工单位:宁波爱家十杰装饰设计有限公司

“入门见厅”,中厅与玄关不同,中厅是位于户型内部的“室外空间”,即是大门与客厅的缓冲地带,营造一种与外部空间既隔离又融合的特有形式,适用于大平层或别墅群体。

中灯光的设计不失为整个空间的亮点,线条感十足,给人一种空间错位感,十分惊奇又时尚。而且男主人比较喜爱摄影,经常会淘一些相机配件,层次错落的柜体不失为一个展示爱好的地方。玻璃储物柜采用玻璃门的设计,增加空间的延伸感也可方便妻子在家练习瑜伽,侧面体现出主人“人生如镜,镜如人生”的生活心态。



黑色皮质现代简约L型沙发搭配橙色单人位沙发,在白色的空间下会产生很强烈的对比感,更容易吸引眼球,增加空间的活跃感。客厅以白色花纹大理石做背景,两旁延伸黑色线条做拘束,更显稳重大气。

餐厅的设计略为简单一些,大理石花纹长桌、褐色皮质靠椅、黑色夹丝玻璃隔断,三者相互映衬,舒适稳重又易于清洁。旁边大大的落地窗为整个空间增彩不少,用餐之后,眺望远方的风景,不失为一种惬意。


厨房分为开放式和封闭式,设计偏向于简洁、实用为主,功能划分也十分合理。白色烤漆橱柜加入黄色元素,为素雅的空间增加一丝调皮感,非常符合当代时尚女性的生活气息。

主卧整体风格偏向于新中式,山雾缭绕的灰色硬包背景墙、软皮床靠简约大床、白色衣柜在黑色线条的点缀下,柔和又刚劲,似有“闲云归去,山野重现”的悠闲之意。



客卧在功能划分上更偏向于储物或休闲娱乐场所,定制款可折叠大床、层板书架、储物柜、书桌合为一体,充分提高空间的利用率。有客人来时可当做休闲卧室,亦可将床折叠起来,将空闲处给孩子当作娱乐的场所等等。随心所欲的调整空间布局,有利于增加空间的灵动性。

次卧由于软装还未进场,整个空间看起来略显空洞一些,木纹地板搭配灰白亮色,时尚又简洁硬朗,处处彰显后现代风格的设计要素与设计理念。


卫生间大理石墙面既不会显得低廉,又相当好打理。白色柜体搭配黑色大理石,高贵又轻奢。LED智能浴室镜不仅可以免去开灯的烦恼,又能防止雾气,不失为一种提高生活品质的大众选择。
你喜欢这套装修案例吗?想了解更多装修资讯,记得关注"十杰装饰", 欢迎留言区和我们交流你对装修的一些想法,房子装修你最关心哪一方面呢~ 或私信小编,给您装修建议~