内容摘要:为落实市政府提升新城医疗服务水平的工作要求,青浦新城青浦大道东侧将原住宅等用地调整为医疗卫生用地,并在此新建一所三级甲等综合医院(中山医院),占地约12.37公顷,建筑体量约28.47万平方米。

地块区位图
近日,政府发布《上海市青浦区朱家角镇青浦新城QPC1-0004单元(四站大社区)控制性详细规划19、24、26街坊局部调整》公示。
调整背景
为落实市政府提升新城医疗服务水平的工作要求,同时提升青浦区医疗卫生设施服务水平与能级,完善青浦区医疗卫生设施布局,拟在青浦新城范围内一处三级甲等综合医院(中山医院)。因此开展本次规划调整。
调整范围
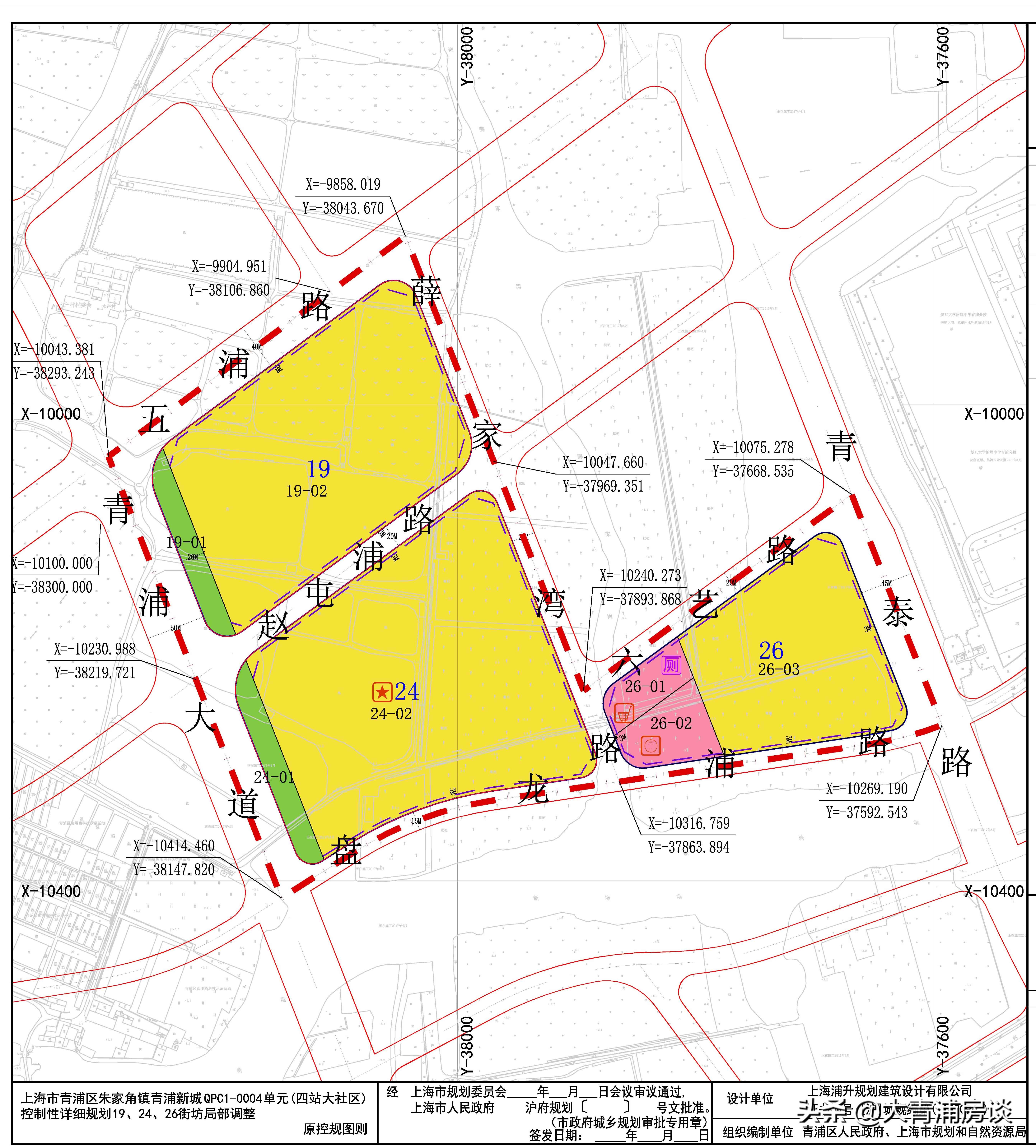
该规划地块位于青浦新城西侧,四至东至薛家湾路、青泰路,南至盘龙浦路,西至青浦大道,北至五浦路、六艺路(详见上图),总用地面积16.93公顷。
调整内容
19街坊:
19-02地块用地性质由三类住宅组团用地(Rr3)调整为医疗卫生用地(C5),用地面积4.18公顷,容积2.5,建设高度80米。
24街坊:
24-02地块用地性质由三类住宅组团用地(Rr3)调整为医疗卫生用地(C5),用地面积5.20公顷,容积2.2,建设高度60米。
26街坊:
将26-01、26-02、和26-03地块合并为26-01地块,调整合并后的26-01地块用地性质为医疗卫生用地(C5),用地面积2.99公顷,容积2.2,建设高度60米。
本次调整后:居住用地减少11.67公顷,社区级公共服务设施用地减少0.7公顷,医疗卫生用地增加12.37公顷,绿地面积不变为0.65公顷。
本次调整后:居住建筑面积减少23.35万平方米,社区级公共服务设施建筑面积0.7万平方米,医疗卫生建筑面积增加28.47万平方米。
调整后影响
本次调整后,有利于完善青浦区公共服务设施布局,提升医疗卫生设施服务水平,对道路交通、市政设施、环境卫生等方面均无负面影响,属于积极正向的调整。
调整后图则

调整后规划
调整后指标

调整后指标
调整前图则

调整前规划
调整前指标

调整前指标
往期精选(点击下方蓝色文字查阅):
规划图上出现“奥运预留地”,魔都是否申办2032奥运两年分晓
好消息,徐泾又将新建一所36班规模的九年一贯制学校
重磅,“远东第一监狱”提篮桥监狱将迁址青浦
我骄傲,有关青浦的这些事项上了2021年上海市政府工作报告
@大青浦房谈
感谢关注、点赞、分享、评论