步入新的工业4.0时代后,优秀的中国制造企业已经不满足于粗放型的经济增长模式,而转向于提高企业自身创新研发能力和打造资源整合优化的目标。因此,对于总部的打造也被提升至企业的战略高度上。

△ 正立面
均胜集团是一家全球化的汽车零部件优秀供应商。通过发展并购,整合了全球优秀的产业链,也拥有了来自全世界的员工。均胜上海总部基地位于莘庄,一个标准化无明显在地环境特征的工业园区,我们很难在场地中找寻到某种可与之形成对话的意象。于是,我们将设计的底层逻辑落笔于满足企业及使用者的功能需求,提高空间利用效率这样朴素的核心诉求上。

△ 侧立面
均胜希望这个建筑打造为集研发办公、开发试验和会议接待等功能需求于一体的全新总部,一个有利于身心健康的,宽容和谐生态的办公环境,激发员工的创造力和生产力。同时,打造一个具有标识性的建筑外观,使其更好地传递创新、高效、多元的企业精神。对于我们而言,在中国智造语境下,如何通过建筑和空间将企业的诉求在时代背景进行转译是设计的意义所在。

△ 屋顶花园
城市里的格律诗
看似是限制条件的60米基地限高,实际为我们打开了水平向延展的想象力。整体水平延展的体量不仅有助于形成标准化、单元化的办公空间模式,也有利于企业对空间规模的把握,以及灵活的组合应用。
裙房的二三层中布置为大空间的会议区、员工餐饮区和企业文化展览三个不同类型的空间。四五层,作为相对私密的客房区,可以满足企业内部来访客人等临时性的住宿需求。六至十四层塔楼区则均为研发办公区域。塔楼各层设置的水平向通廊平台,是员工休息交流的场所,超长尺度的平行横向线条,也为建筑塑造了秩序感的外观,宛如一首写在城市里的格律诗,既规整,又在平仄之间创造了独特的韵律,也同企业基因中简洁严谨的气质相契合。

△ 功能布局
院落精神与归属感营造
在东方文化中,院落不仅仅是物理的空间所在,更是人们的精神场所,是心灵的栖息之所。不论外部环境如何变化,人都可以在院子的方寸之间中,欣赏一草一木,感受着心与景和物的相互照映。我们在设计中也希望将庭院精神进行现代化的抽象演绎,为均胜总部的员工和使用者营造某种精神上的归属感。



△ 中庭
建筑整体以“L”型布局,南侧的多层裙房和北侧及东侧的高层塔楼,形成了半院落式的围合。再结合景观打造,形成了一方内在的中央庭院。

△ 中心庭院仰视
裙房区,通过体块的穿插,形成错叠式的露台空间,引入立体绿化、种植屋面和庭院绿化等方式,屋顶花园和小尺度的空中院落也自然散布其中。

△ 围绕庭院的连廊
庭院为均胜总部的内部创造了一方“领域感”,当员工在工作之余走到室外的平台进行休闲交流时,目光所及,均可欣赏到中央庭院的朝花夕落,随着日积月累的使用交互,建立起对建筑、对环境归属感。
首层大面积的架空处理,有利于景观的渗透产生联结的效应,也是将属于企业内部内的空间开放给周边,为城市创造更多邻里来往的空间。

△ 首层架空空间

△ 首层近景

△ 首层近景
材料的创新表达
建筑的外部立面上以白色的铝板打造硬挺的横向线条,结合玻璃打造了现代办公的利落高效之感,清新的白色也使得建筑从周边环境中立刻跳脱出来,十分具有识别性。

△ 立面细节
在裙房部分的二三层采用了金属编织网柔性材料包裹,给建筑外附上了一丝温柔的氛围;半透明质感的材料,营造出若隐若现的朦胧之感与丰富光影变化,为室内也增添了几分休闲舒适。

△ 水平延伸的线条

△ 金属编织网细节图
园区的底部架空层以柱廊材料选用清水混凝土,在城市近人尺度创造了拙朴、审慎的美学氛围,也与中央庭院相呼应。我们又用橙色的铝板吊顶有意地去打破了这份克制,跳跃的色彩丰富了界面的层次感,也为环境注入活力。

△ 材料色彩对比

△ 架空层近景

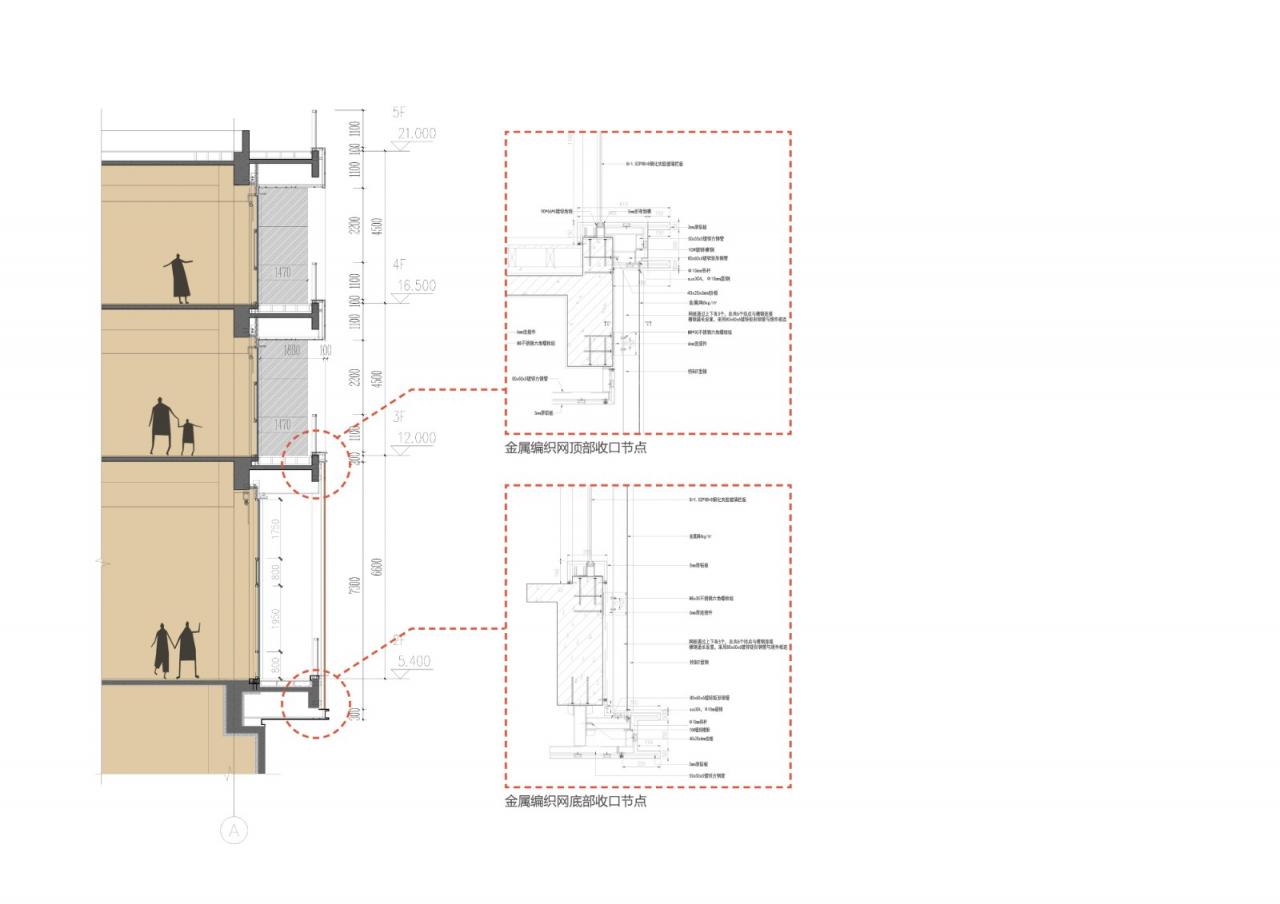
△ 金属编织网节点
结语
我们借由理性的设计逻辑和对现代材料的创新应用,在工业4.0时代,为这些企业重塑属于他们的时代面孔。让园区建筑不再是千人一面的玻璃和水泥的盒子

△ 沿河立面
通过空间的形塑,让工作场所重新回归于对人本主义价值的关注,也让建筑在城市里自然生长,与周遭的产生联结,最后成为其自然有机的一部分。

△ 沿街立面
技术图纸

△ 地库平面图

△ 首层平面图

△ 二层平面图

△ 三层平面图

△ 四层平面图

△ 五层平面图

△ 标准层平面图

△ 东立面图

△ 西立面图

△ 南立面图

△ 北立面图

△ A-A剖面图

△ B-B剖面图
项目信息
项目名称:均胜·上海闵行莘庄总部
设计方:DC国际
设计年份:2016.11
完成年份:2020.08
主创及设计团队:主创及设计团队
项目地址:上海莘庄工业区西区
建筑面积:48522㎡
摄影版权:寻美影视
客户:均胜集团
品牌: 清水混凝土-菊水化学工业株式会社;彩釉玻璃-台玻集团;白色铝板- 后肖宇虹
版权声明: 转载作品,本文来源于 DC国际 ,由( 创研社 ) 整编而成。
原文地址: DC国际, 如有转载请联系原作者,长期接受各类作品、资讯投稿。