砖砌体施工
一、一顺一丁砌法
1.示意图和现场照片
一顺一丁砌法示意图和现场照片分别见图4-1和图4-2。

图4-1 一顺一丁砌法示意图

图4-2 一顺一丁砌法现场照片
2.注意事项
①基础墙砌完后,未经有关人员复査之前,对轴线桩、水平桩应注意保护,不得碰撞。
②对外露或预埋在基础内的暖卫、电气套管及其他预埋件,应注意保护,不得损坏。
③抗震构造柱钢筋和拉结筋应保护,不得踩倒、弯折。
④基础墙回填土,两侧应同时进行,暖气沟墙不填土的一侧应加支撑,防止回填时挤歪挤裂。回填土应分层夯实,不允许向槽内灌水取代夯实。
⑤回填土运输时,先将墙顶保护好,不得在墙上推车,损坏墙顶和碰撞墙体。
3.施工做法详解
施工工艺流程:确定组砌方法→砖浇水→拌制砂浆→排砖撂底→砖基础砌筑→抹防潮层→留槎。
(1)确定组砌方法
组砌方法应正确,一般采用一顺一丁(满丁、满条)排砖法。砖砌体的转角处和内外墙体交接处应同时砌筑,当不能同时砌筑时,应按规定留槎,并做好接槎处理。基底标高不同时,应从低处砌起,并应由高处向低处搭接。
(2)砖浇水
砖应在砌筑前1~2d浇水湿润,烧结普通砖一般以水浸入砖四边15mm为宜,含水率10%~15%;煤矸石页岩实心砖含水率8%~12%,常温施工不得用干砖上墙,不得使用含水率达饱和状态的砖砌墙,冬期施工清除冰霜,砖可以不浇水,但应加大砂浆稠度。
(3)拌制砂浆
①干拌砂浆的强度等级必须符合设计要求。施工人员应按使用说明书的要求操作。
②干拌砂浆宜采用机械搅拌。如采用连续式搅拌器,应以产品使用说明书要求的加水量为基准,并根据现场施工稠度微调拌和加水量。如采用手持式电动搅拌器,应严格按照产品使用说明书规定的加水量进行搅拌,先在容器内放入规定量的拌合水,再在不断搅拌的情况下陆续加入干拌砂浆,搅拌时间宜为3~5min,静停10min后再搅拌不少于0.5min。
③不得自行添加某种成分来变更干拌砂浆的用途及等级。
④拌和好的砂浆拌合物应在使用说明书规定的时间内用完,在炎热或大风天气时应采取措施防止水分过快蒸发,超过初凝时间严禁二次加水搅拌使用。
⑤散装干拌砂浆应储存在专用储料罐内,储罐上应有标识。不同品种、强度等级的产品必须分别存放,不得混用。袋装干拌砂浆宜采用糊底袋,在施工现场储存应采取防雨、防潮措施,并按品种、强度等级分别堆放,严禁混堆混用。
⑥如在有效存放期内发现干拌砂浆有结块,应在过筛后取样检验,检验合格后全部过筛方可继续使用。
⑦砂浆的配合比应由试验室经试配确定。在砂浆中掺入有机塑化剂、早强剂、缓凝剂、防冻剂等,经检验和试配符合要求后,方可使用。有机塑化剂应有砌体强度的型式检验报告。
⑧砂浆配合比应采取重量比。计量精度:水泥±2%;砂、灰膏控制在±5%以内。
⑨水泥砂浆应采取机械搅拌,先倒砂子、水泥、掺和料,最后倒水。搅拌时间不少于2min。水泥粉煤灰砂浆和掺用外加剂的砂浆搅拌时间不得少于3min,掺用有机塑化剂的砂浆,应为3~5min。
⑩砂浆应随拌随用,水泥砂浆和水泥混合砂浆必须在拌成后3h和4h内使用完毕。当施工期间最高温度超过30℃时,应分别在拌成后2h和3h内使用完毕。超过上述时间的砂浆,不得使用,并不应再次拌和后使用。对掺用缓凝剂的砂浆,其使用时间可根据具体情况延长。
(4)排砖撂底(干摆砖样)
①基础大放脚的撂底尺寸及收退方法,必须符合设计图纸规定,如果是一层一退,里外均应砌丁砖;如果是两层一退,第一层为条砖,第二层砌丁砖。
②大放脚的转角处,应按规定放七分头,其数量为一砖墙放两块、一砖半厚墙放三块、二砖墙放四块,依此类推。
(5)砖基础砌筑
①砖基础砌筑前,基底垫层表面应清扫干净,洒水湿润。先盘墙角,每次盘角高度不应超过五层砖,随盘随靠平、吊直。
②砖基础墙应挂线,240mm墙反手挂线,370mm以上墙应双面挂线。
③基础大放脚砌到基础墙时,要拉线检查轴线及边线,保证基础墙身位置正确。同时要对照皮数杆的砖层及标高;如有高低差时,应在水平灰缝中逐渐调整,使墙的层数与皮数杆相一致。
④基础垫层标高不一致或有局部加深部位,应从深处砌起,并应由浅处向深处搭砌。
⑤暖气沟挑檐砖及上一层压砖,均应整砖丁砌,灰缝要严实,挑檐砖标高必须符合设计要求。
⑥各种预留洞、埋件、拉结筋按设计要求留置,避免后剔凿,影响砌体质量。
⑦变形缝的墙角应按直角要求砌筑,先砌的墙要把“舌头灰”刮尽;后砌的墙可采用缩口灰,掉入缝内的杂物随时清理。
⑧安装管沟和洞口过梁其型号、标高必须正确,底灰饱满;如坐灰超过20mm厚,应采用细石混凝土铺垫,两端搭墙长度应一致。
(6)抹防潮层
抹防潮层砂浆前,将墙顶活动砖重新砌好,清扫干净,浇水湿润,基础墙体应抄出标高线(一般以外墙室外控制水平线为基准),墙上顶两侧用木八字尺杆卡牢,复核标高尺寸无误后,倒入防水砂浆,随即用木抹子搓平,设计无规定时,一般厚度为20mm,防水粉掺量为水泥重量的3%~5%。
(7)留槎
流水段分段位置应在变形缝或门窗口角处,隔墙与墙或柱不同时砌筑时,可留阳槎加预埋拉结筋。沿墙高每500mm预埋ф6钢筋2根,其埋入长度从墙的留槎计算起,一般每边均不小于1000mm,末端应加180°弯钩。
4.施工总结
①砂浆配合比不准:散装水泥和砂都要车车过磅,计量要准确。搅拌时间要达到规定的要求。
②基础墙身位移:大放脚两侧边收退要均匀,砌到基础墙身时,要拉线找正墙的轴线和边线。砌筑时保持墙身垂直。
③皮数杆不平:抄平放线时,要细致认真;钉皮数杆的木桩要牢固,防止碰撞松动。皮数杆立完后,要复验,确保皮数杆标高一致。
④水平灰缝不平:盘角时灰缝要掌握均匀,每层砖都要与皮数杆对平,通线要绷紧穿平。砌筑时要左右照顾,避免接槎处接得高低不平。
⑤灰缝大小不均:立皮数杆要保证标高一致,盘角时灰缝要掌握均匀,砌砖时小线要拉紧,防止一层线松,一层线紧。
⑥埋入砌体中的拉结筋位置不准:应随时注意正在砌的皮数。保证按皮数杆标明的位置放拉结筋,其外露部分在施工中不得任意弯折;并保证其长度符合设计要求。
⑦留槎不符合要求:砌体的转角和交接处应同时砌筑,否则应砌成斜槎。
⑧有高低台的基础应先砌低处,并由高处向低处搭接,如设计无要求,其搭接长度不应小于基础扩大部分的高度。
二、梅花丁和三顺一丁砌法
1.示意图
三顺一丁示意图和梅花丁示意图分别见图4-3和图4-4。

图4-3 三顺一丁示意图

图4-4 梅花丁示意图
2.注意事项
①墙体拉结筋、抗震构造柱钢筋及各种预埋件、暖卫、电气管线等,均应注意保护,不得任意拆改或损坏。
②砂浆稠度应适宜,砌墙时应防止砂浆溅脏墙面。
③在吊放平台脚手架或安装大模板时,指挥人员和吊车司机应认真指挥和操作,防止碰撞已砌好的砖墙。
④在高车架进料口周围,应用塑料薄膜或木板等遮盖,保持墙面洁净。
⑤尚未安装楼板或屋面板的墙和柱,当可能遇到大风时,应采取临时支撑等措施,以保证施工中墙体稳定性。
⑥雨季前及时完成屋面工程和雨排水系统,防止污染清水墙面。
3.施工做法详解
施工工艺流程:确定组砌方法→砖浇水→拌制砂浆→排砖撂底→砖墙砌筑→抹防潮层→留槎。
(1)确定组砌方法
①梅花丁砌法,是指一面墙的每一皮中均采用丁砖与顺砖左右间隔砌成,每一块丁砖均在上下两块顺砖长度的中心,上下皮竖缝相错1/4砖长。该砌法砖缝整齐,外表美观,结构的整体性好,但砌筑效率较低,适用于砌筑一砖或一砖半的清水墙。当砖的规格偏差较大时,采用梅花丁砌法,有利于减少墙面的不整齐性。
②三顺一丁砌法是指一面墙的连续三皮中全部采用顺砖与一皮中全部采用丁砖上下间隔砌成,上下相邻两皮顺砖间的竖缝相互错开1/2砖长(125mm),上下皮顺砖与丁砖间竖缝相互错开1/4砖长。该砌法因砌顺砖较多,所以砌筑速度快,但因丁砖拉结较少,结构的整体性较差,在实际工程中应用较少,适用于砌筑一砖墙或一砖半墙。
(2)砖浇水
砖浇水的方法及步骤按一顺一丁砌法进行。
(3)拌制砂浆拌制砂浆的方法及步骤同一顺一丁砌法。
(4)排砖撂底(干摆砖样)
一般外墙第一层砖撂底时,两山墙排丁砖,前后檐纵墙排条砖。根据弹好的门窗洞口位置线,认真核对窗间墙、垛尺寸,按其长度排砖。窗口尺寸不符合排砖好活的时候,可以将门窗洞口的位置在60mm范围内左右移动。破活应排在窗口中间、附墙垛或其他不明显的部位。移动门窗洞口位置时,应注意暖卫立管安装及门窗开启时不受影响。排砖时必须做全盘考虑,前后檐墙排第一皮砖时,要考虑甩窗口后砌条砖,窗角上应砌七分头砖才是好活。
(5)砖墙砌筑
①选砖:砌清水墙应选棱角整齐,无弯曲、裂纹,颜色均匀,规格基本一致的砖。敲击时声音响亮,焙烧过火变色、变形的砖可用在不影响外观的内墙上。灰砂砖不宜与其他品种砖混合砌筑。
②盘角:砌砖前应先盘角,每次盘角不应超过五皮,新盘的大角,需及时进行吊、靠,如有偏差要及时修整。盘角时应仔细对照皮数杆的砖层和标高,控制好灰缝大小,使水平灰缝均匀一致。大角盘好后再复查一次,平整和垂直完全符合要求后,再挂线砌墙。
③挂线:砌筑砖墙厚度超过一砖半厚(370mm)时,应双面挂线。超过10m的长墙,中间应设支线点,小线要拉紧,每皮砖都要穿线看平,使水平缝均匀一致,平直通顺;砌一砖厚(240mm)混水墙时宜采用外手挂线,可照顾砖墙两面平整,为下道工序控制抹灰厚度奠定基础。
④砌砖:砌砖时砖要放平,里手高,墙面就要张;里手低,墙面就要背。砌砖应跟线,“上跟线,下跟棱,左右相邻要对平”。
⑤烧结普通砖水平灰缝厚度和竖向灰缝宽度一般为10mm,但不应小于8mm,也不应大于12mm;蒸压(养)砖水平灰缝厚度和竖向灰缝宽度一般为10mm,但不应小于9mm,也不应大于12mm。
⑥240mm厚承重墙的每层墙的最上一皮砖,砖砌体的台阶水平面上及挑出层,应整砖丁砌。
(6)留槎
①除构造柱外,砖砌体的转角处和交接处应同时砌筑,严禁无可靠措施的内外墙分砌施工。对不能同时砌筑而又必须留置的临时间断处应砌成斜槎,斜槎水平投影长度不应小于高度的2/3。槎子必须平直、通顺。
②施工洞口留设:洞口侧边离交接处外墙面不应小于500mm,洞口净宽度不应超过1m。施工洞口可留直槎。
③预埋混凝土砖、木砖:户门框、外窗框处采用预埋混凝土砖,室内门框采用木砖或混凝土砖。混凝土砖采用C15混凝土现场制作而成,和砖尺寸大小相同;木砖预埋时应小头在外,大头在内,数量按洞口高度确定。洞口高在1.2m以内,每边放2块;高1.2~2m,每边放3块;高2~3m,每边放4块。预埋砖的部位一般在洞口上边或下边四皮砖,中间均匀分布。木砖要提前做好防腐处理。
④预留孔:钢门窗安装、硬架支撑、暖卫管道的预留孔,均应按设计要求留置,不得事后剔凿。
⑤墙体拉结筋:墙体拉结筋的位置、规格、数量、间距均应按设计要求留置,不应错放、漏放。
⑥过梁、梁垫的安装:安装过梁、梁垫时,其标高、位置及型号必须准确,坐灰饱满。如坐灰厚度超过20mm时,要用细石混凝土铺垫。过梁安装时,两端支承点的长度应一致。
⑦构造柱做法:凡设有构造柱的工程,在砌砖前,先根据设计图纸将构造柱位置进行弹线,并把构造柱插筋处理顺直。砌砖墙时,与构造柱连接处砌成马牙槎。每一个马牙槎沿高度方向的尺寸不应超过300mm。马牙槎应先退后进。拉结筋按设计要求放置,设计无要求时,一般沿墙高500mm设置2根ф6水平拉结筋,每边深入墙内不应小于1m。
⑧有防水要求的房间楼板四周,除门洞口外,必须浇筑不低于120mm高的混凝土坎台,混凝土强度等级不小于C20。
(7)不得在下列墙体或部位设置脚手眼
①120mm厚墙和独立柱。
②过梁上与过梁成60°角的三角形范围及过梁净跨度1/2的高度范围内。
③宽度小于1m的窗间墙。
④砌体门窗洞口两侧200mm和转角处450mm范围内。
⑤梁或梁垫下及其左右500mm范围内。
⑥设计上不允许设置脚手眼的部位。
4.施工总结
①砂浆配合比不准:散装水泥和砂都要车车过磅,计量要准确,搅拌时间要达到规定的要求。
②墙面不平:一砖半墙必须双面挂线,一砖墙反手挂线;“舌头灰”要随砌随刮平。
③皮数杆不平:抄平放线时,要细致认真;钉皮数杆的木桩要牢固,防止碰撞松动。皮数杆立完后,要复验,确保皮数杆标高一致。
④水平灰缝不平:盘角时灰缝要掌握均匀,每层砖都要与皮数杆对平,通线要绷紧穿平;砌筑时要左右照顾,避免接槎处接得高低不平。
⑤灰缝大小不匀:立皮数杆要保证标高一致,盘角时灰缝要掌握均匀,砌砖时小线要拉紧,防止一层线松,一层线紧。
⑥埋入砌体中的拉结筋位置不准;应随时注意正在砌的皮数,保证按皮数杆标明的位置放拉结筋,其外露部分在施工中不得任意弯折,并保证其长度符合设计要求。
⑦留槎不符合要求:砌体的转角和交接处应同时砌筑,否则应砌成斜槎。
⑧砌体临时间断处的高度差过大;一般不得超过一步架的高度。
⑨清水墙游丁走缝:排砖时必须把立缝排匀,砌完一步架高,每隔2m间距在丁砖立楞处用托线板吊直弹线,二步架往上继续吊直弹线,由低往上所有七分头的长度应保持一致,对于质量要求较高的工程七分头宜采用无齿锯切割,上层分窗口位置时必同下窗口保持垂直。
⑩窗口上部立缝变活:清水墙排砖时,为了使窗间墙、垛排成好活,把破活排在窗口中间或不明显位置,在砌过梁上第一皮砖时,不得变活。
[插图]砖墙鼓胀:内浇外砌墙体砌筑时,在窗间墙上、抗震柱两边分上、中、下留出60mm×120mm通孔,在抗震柱外墙面上垫木模板,用花篮螺栓与大模板连接牢固。混凝土要分层浇筑,振捣棒不可直接触及外墙。楼层圈梁外三皮120mm砖墙也应认真加固。如在振捣时发现砖墙已鼓胀,则应及时拆掉重砌。
[插图]混水墙粗糙:“舌头灰”未刮尽,半头砖集中使用,造成通缝,半头砖应分散使用在墙体较大的面上。一砖厚墙背面偏差较大,砖墙错层造成螺丝墙。首层或楼层的一皮砖要查对皮数杆的标高及层高,防止到顶砌成螺丝墙。一砖厚墙应外手挂线。
[插图]构造柱处砌筑不符合要求:构造柱砖墙应砌成马牙槎,设置好拉结筋,从柱脚开始两侧都应先退后进;当退120mm时,宜上口一皮进60mm,再上一皮进60mm,以保证混凝土浇筑时上角密实。构造柱内的落地灰、砖渣杂物未清理干净,导致混凝土内夹渣。
三、多孔砖砌体施工
1.示意图和现场照片
多孔砖砌筑示意图和现场照片分别见图4-5和图4-6。

图4-5 多孔砖砌筑示意图

图4-6 多孔砖砌筑现场照片
2.注意事项
①墙体拉结筋、抗震构造柱钢筋、大模板混凝土墙体钢筋及各种预埋件、暖卫、电气管线等,均应注意保护,不得任意拆改或损坏。
②砂浆稠度应适宜,砌墙时应防止砂浆溅脏墙面。
③在吊放平台脚手架或安装大模板时,指挥人员和吊车司机应认真指挥和操作,防止碰撞已砌好的砖墙。
④在高车架进料口周围,应用塑料薄膜或木板等遮盖,保持墙面洁净。
⑤尚未安装楼板或屋面板的墙和柱,当可能遇到大风时,应采取临时支撑等措施,以保证施工中墙体的稳定性。
3.施工做法详解
施工工艺流程:确定组砌方法→砖浇水→拌制砂浆→排砖撂底→砖基础砌筑→抹防潮层→留槎。
(1)拌制砂浆
①干拌砂浆的强度等级必须符合设计要求。施工人员应按使用说明书的要求操作。
②干拌砂浆宜采用机械搅拌。如采用连续式搅拌器,应以产品使用说明书要求的加水量为基准,并根据现场施工稠度微调拌和加水量;如采用手持式电动搅拌器,应严格按照产品使用说明书规定的加水量进行搅拌,先在容器内放入规定量的拌和水,再在不断搅拌的情况下陆续加入干拌砂浆,搅拌时间宜为3~5min,静停10min后再搅拌不少于0.5min。
③不得自行添加某种成分来变更干拌砂浆的用途及等级。
④拌和好的砂浆拌合物应在使用说明书规定的时间内用完,在炎热或大风天气时应采取措施防止水分过快蒸发,超过初凝时间严禁二次加水搅拌使用。
⑤散装干拌砂浆应储存在专用储料罐内,储罐上应有标识。不同品种、强度等级的产品必须分别存放,不得混用。袋装干拌砂浆宜采用糊底袋,在施工现场储存应采取防雨、防潮措施,并按品种、强度等级分别堆放,严禁混堆混用。
⑥如在有效存放期内发现干拌砂浆有结块,应在过筛后取样检验,检验合格后全部过筛方可继续使用。
(2)普通砂浆的拌制
①砂浆的配合比应由试验室经试配确定。在砂浆中掺入有机塑化剂、早强剂、缓凝剂、防冻剂等,经检验和试配符合要求后,方可使用。有机塑化剂应有砌体强度的型式检验报告。
②砂浆配合比应采取重量比。计量精度:水泥2%,砂、灰膏控制在±5%以内。
③水泥砂浆应采取机械搅拌,先倒砂子、水泥、掺和料,最后倒水。搅拌时间不少于2min。水泥粉煤灰砂架和掺用外加剂的砂浆搅拌时间不得少于3min,掺用有机塑化剂的砂浆应为3~5min。
④砂浆应随拌随用,水泥砂浆和水泥混合砂浆必须在拌成后3h和4h内使用完毕。当施工期间最高温度超过3min时,应分别在拌成后2h和3h内使用完毕。超过上述时间的砂浆,不得使用,并不应再次拌和后使用。对掺用缓凝剂的砂浆,其使用时间可根据具体情况延长。
(3)砖墙砌筑
①砖墙排砖撂底(干摆砖样):一般外墙一层砖撂底时,两山墙排丁砖,前后檐纵墙排条砖。根据弹好的门窗洞口位置线,认真核对窗间墙、垛尺寸,按其长度排砖。窗口尺寸不符合排砖好活的时候,可以适当移动。破活应排在窗口中间、附墙垛或其他不明显的部位。排砖时必须做全盘考虑,前后檐墙排一皮砖时,要考虑窗口后砌条砖,窗角上应砌七分头砖。
②选砖:清水墙应选棱角整齐,无弯曲、裂纹,颜色均匀,规格一致的砖。焙烧过火变色、变形的砖可用在不影响外观的内墙上。
③盘角:砌砖前应先盘角,每次盘角不应超过五皮,新盘的大角,要及时进行吊、靠。如有偏差要及时修整。盘角时应仔细对照皮数杆的砖层和标高,控制好灰缝大小,使水平灰缝均匀一致。大角盘好后再复查一次,平整和垂直完全符合要求后,再挂线砌砖。
④挂线:砌筑砖墙应根据墙体厚度确定挂线方法。砌筑墙体超过一砖厚时,应双面挂线。超过10m的长墙,中间应设支线点,小线要拉紧,每皮砖都要穿线看平,使水平缝均匀一致,平直通顺;砌一砖厚混水墙时宜采用外手挂线,可照顾砖墙两面平整,为下道工序控制抹灰厚度奠定基础。
⑤砌砖:对抗震设防地区砌砖应采用一铲灰、一块砖、一挤压的砌砖法砌筑。对非抗震地区可采用铺浆法砌筑,铺装长度不得超过750mm;当施工期间最高气温高于30℃时,铺架长度不得超过500mm。砌砖时砖要放平,多孔砖的孔洞应垂直于砌筑面砌筑。里手高,墙面就要张;里手低,墙面就要背。砌砖应跟线,“上跟线,下跟棱,左右相邻要对平”。
⑥水平灰缝厚度和竖向灰缝宽度一般为10mm,但不应小于8mm,也不应大于12mm。水平灰缝的砂浆饱满度不得小于80%;竖向灰缝宜采用挤装或加浆方法,不得出现透明缝,严禁用水冲浆灌缝。
⑦为保证清水墙面主缝垂直,不游丁走缝,当砌完一步架高时,宜每隔2m水平间距,在丁砖立棱位置弹两道垂直立线,以分段控制游丁走缝。
⑧墙面勾缝应横平竖直、深浅一致、搭接平顺。勾缝时,应采用加浆勾缝,并宜采用细砂拌制的1:1.5水泥砂浆。当勾缝为凹缝时,凹缝深度宜为4~5mm。内墙也可用原浆勾缝,但必须随砌随勾,并使灰缝光滑密实。
⑨240mm厚承重墙的每层墙的最上一皮砖,砖砌体的阶台水平面上及挑出层,应整砖丁砌。
⑩留槎:除构造柱外,砖砌体的转角处和交接处应同时砌筑,严禁无可靠措施的内外墙分砌施工。对不能同时砌筑而又必须留置的临时间断处应砌成斜槎,斜槎水平投影长度不应小于高度的2/3。槎子必须平直、通顺。
11☛施工洞口留设:洞口侧边离交接处外墙面不应小于500mm,洞口净宽度不应超过1m。施工洞口可留直槎,但直槎必须设成凸槎,并须加设拉结钢筋,在后砌施工洞口内的钢筋搭接长度不应小于330mm。
12☛预埋混凝土砖、木砖:户门框、外窗框处采用预埋混凝土砖,室内门框采用木砖。混凝土砖采用C15混凝土现场制作而成,和多孔砖尺寸大小相同;木砖预埋时应小头在外,大头在内,数量按洞口高度确定。洞口高在1.2m以内,每边放2块;高1.2~2m,每边放3块;高2~3m,每边放4块。预埋砖的部位一般在洞口上边或下边四皮砖,中间均匀分布。木砖要提前做好防腐处理。
13☛预留槽洞及埋设管道:施工中应准确预留槽洞位置,不得在已砌墙体上凿孔打洞;不应在墙面上留(凿)水平槽、斜槽或埋设水平暗管和斜暗管。
(4)不得在下列墙体或部位设置脚手眼
①120mm厚墙和独立柱。
②过梁上与过梁成60°角的三角形范围及过梁净跨度1/2的高度范围内。
③宽度小于1m的窗间墙。
④砌体门窗洞口两侧200mm和转角处450mm范围内。
⑤设计上不允许设置脚手眼的部位。
4.施工总结
①砂浆配合比要准:散装水泥和砂都要车车过磅,计量要准确。搅拌时间要达到规定的要求。
②墙面要平:一砖半墙必须双面挂线,一砖墙反手挂线;“舌头灰”要随砌随刮平。
③皮数杆要平:抄平放线时,要细致认真;钉皮数杆的木桩要牢固,防止碰撞松动。皮数杆立完后,要复验,确保皮数杆标高一致。
④水平灰缝要平:盘角时灰缝要掌握均匀,每层砖都要与皮数杆对平,通线要绷紧穿平。砌筑时要左右照顾,避免接槎处接得高低不平。
⑤灰缝大小要匀:立皮数杆要保证标高一致,盘角时灰缝要掌握均匀,砌砖时小线要拉紧,防止一层线松,一层线紧。
⑥埋入砌体中的拉结筋位置要准,应随时注意正在砌的皮数。保证按皮数杆标明的位置放拉结筋,其外露部分在施工中不得任意弯折,并保证其长度符合设计要求。
⑦留槎要符合要求:砌体的转角和交接处应同时砌筑,否则应砌成斜槎。
⑧砌体临时间断处的高度差不能过大,一般不得超过一步架的高度。
⑨混水墙不能粗糙:“舌头灰”未刮尽,半头砖集中使用,造成通缝,半头砖应分散使用在墙体较大的面上。一砖厚墙背面偏差较大,砖墙错层造成螺丝墙。首层或楼层的一皮砖要查对皮数杆的标高及层高,防止到顶砌成螺丝墙。一砖厚墙应外手挂线。
⑩构造柱处砌筑要符合要求:构造柱砖墙应砌成马牙槎,设置好拉结筋,从柱脚开始两侧都应先退后进;当退120mm时,宜上口一皮进60mm,再上一皮进60mm,以保证混凝土浇筑时上角密实。构造柱内的落地灰、砖渣杂物未清理干净,导致混凝土内夹渣。
四、预留槽洞及埋设管道
1.示意图和现场照片
预留槽洞示意图和埋设管道现场照片分别见图4-7和图4-8。

图4-7 预留槽洞示意图
注:1—密封油膏;2—油膏嵌缝;3—套管;4—嵌缝材料

图4-8 埋设管道现场照片
2.注意事项
①不应在截面长边小于500mm的承重墙体、独立柱内埋设管线。
②不宜在墙体中穿行暗线或预留、开凿沟槽,无法避免时应采取必要的措施或按削弱后的截面验算墙体的承载力。
3.施工做法详解
施工工艺流程:选制模具和埋件→放线、标记→安装模具、下预埋件。
(1)选制模具和埋件
①根据设计图纸,参照预留尺寸表及位置图,选定形式、材质来制作模具木砖和铁件。
②墙上的木砖,按要求做好后,在木砖中心钉一个钉子,木砖一般用红、白松,椴木等木料制成。须刮出斜坡,满刷防腐油。
③混凝土捣制构件中各类管道预埋件及吊环,须按要求事先下料焊制成型后待用。
(2)放线、标记
①在钢筋绑扎前按图纸要求的规格、位置、标高,预留槽洞或预埋套管、预下铁件。
②在砖墙上预留孔洞或预留暗配槽、竖管槽时,应根据管的位置及标高,根据轴线量出准确位置,向砌砖工交代清楚由砌砖工留出,并校核尺寸,以免出错。
(3)安装模具、下预埋件
①在混凝土墙或梁、板上安装模具时,将事先制作好的模具中心对准标注的十字进行模具安装。待支完模板后,按要求在模板上锯出孔洞,将模具或套管钉牢或用钢丝绑在周围的钢筋上,并找平找正。
②在基础墙上预下套管时,按管道标高、位置,在瓦工砌砖或砌石时镶入,找平找正,用砂浆稳固,并应考虑到结构自由下沉时不会损伤管道。
③在混凝土或砖基础中,预下防水套管时,两端应根据需要露出墙面一定长度,但不得小于30mm。
4.施工总结
①施工中应准确预留槽洞位置,不得在已砌墙体上凿孔开洞;不得在墙体上留槽(水平槽)、斜槽或埋设水平暗管或斜暗管。
②墙体中的竖向暗管应预埋;无法预埋需留槽时,预留槽深度及宽度不得大于95mm×95mm。
③管道安装完毕后,应采用强度等级不低于C10的细石混凝土或M10的水泥砂浆填塞。在宽度小于500mm的承重小墙段及壁柱内,不应埋设竖向管线。
五、构造柱施工
1.示意图和现场照片
构造柱施工示意图和现场照片分别见图4-9和图4-10。

图4-9 构造柱施工示意图

图4-10 构造柱施工现场照片
2.注意事项
①设置构造柱的墙体,应先砌墙,后浇混凝土。砌砖时,与构造柱连接处应砌成马牙槎,每个马牙槎沿高度方向的尺寸不应超过300mm,马牙槎应先退后进,构造柱应有外露面。
②柱与墙拉结筋应按设计要求设置,设计无要求时,一般沿墙高500mm,每120mm厚墙设置一根ф6水平拉结筋,每边深入墙内不得小于1000mm。
3.施工做法详解
施工工艺流程:预留构造柱位置砌体施工→钢筋安装与拉结筋预埋→模板安装与混凝土浇筑。
(1)预留构造柱位置砌体施工
按规范规定,砌体与构造柱的连接处应砌成马牙槎,每个马牙槎的高度不宜超过300mm,马牙槎凹入深度宜为50~60mm。目前砌体砌块普遍使用蒸压加气混凝土砌块,加气混凝土砌块模数高度为250mm,刚好作为一个马牙。砌筑时第一块砖应为凹入,谓之咬脚,然后按顺数同进同退砌筑马牙槎(若底部采用灰砂砖砌筑也应视为一个马牙槎凹入咬脚)。无论马牙槎凹入凸出,同时都要用线坠掉垂直,马牙槎砌体界面应放整砖面,砌块切割面应放在里侧,确保马牙槎美观。
(2)构造柱钢筋安装与砌体拉结筋预埋
构造柱的截面尺寸和配筋应满足设计要求。当设计无要求时,构造柱截面最小宽度不得小于200mm,厚度同墙厚,纵向钢筋不得小于4ф10,箍筋可采用ф6@200。纵向钢筋顶部和底部应锚入混凝土梁或板中。浇筑主体混凝土时应准确测量构造柱纵筋位置,确保插筋位置准确。为保证钢筋位置准确,可采用后植筋法预埋构造柱纵筋。若采用后植筋法施工,钻孔深度为60mm,植筋前先用吹筒吹净孔内粉尘,然后注满结构胶液或环氧树脂液,再植入钢筋。
砌体与混凝土构造柱之间应设置拉结筋,拉结筋应沿砌筑全高设置,拉结筋间隔不得超过600mm设置2ф6拉结筋。蒸压加气混凝土砌块的拉结筋埋入深度宜为700mm,且拉结筋末端应为弯钩,防止拉结筋的砌体水平灰缝厚度应比拉结筋直径大4mm。
(3)构造柱模板安装与混凝土浇筑
为保证浇筑构造柱时有一定的操作空间,便于小型振动板插入,构造柱模板的对拉螺杆宜设置于构造柱两侧的砌体上,不宜设置于构造柱中。若对拉螺杆设置于构造柱中,会阻碍振动棒的插入。模板安装可分三种方式进行。
①构造柱顶部梁高≥800mm时,模板可以满封,端部一侧模板装成喇叭式进料口,进料口应比构造柱高出100mm,浇筑柱混凝土时应把进料口也浇满,拆模后将突出的混凝土打凿掉即可。
②构造柱顶部梁高<800mm的,模板一侧满封,另一侧模板应预留缺口作为进料口及小型插入式振动棒使用,即浇筑构造柱端部还剩一小截混凝土没浇,必须进行二次补浇,拆模时满封一侧的模板不宜拆除,作为二次补浇模板,有缺口一侧的模板应拆除。二次补浇混凝土应制成较干硬混凝土(如面团状),二次补浇混凝土塞满后再钉模板,拆模后混凝土二次浇注外观较为模糊,观感较好。
③对于顶部没梁的构造柱,施工方法比较简单,可在楼板开口浇注。
4.施工总结
墙体转角处和纵横墙交接处应设构造柱,门窗洞口两侧应设抱框柱。构造柱及抱框柱应留设马牙槎,支模时应加设海绵条防止漏浆。构造柱钢筋应伸至顶部混凝土结构内锚固。对于通孔砌块按图集要求设置灌芯柱。构造柱(芯柱)钢筋采用预埋或后锚固(植筋或胀栓固定)方式与混凝土结构连接。
六、混凝土小型空心砌块砌体工程
1.示意图和现场照片
混凝土小型空心砌块示意图和现场照片分别见图4-11和图4-12。

图4-11 混凝土小型空心砌块示意图

图4-12 混凝土小型空心砌块照片
2.注意事项
①装门窗框时,应注意保护好固定框的埋件,应参照相关图集施工,使门框固定牢固。
②砌体上的设备槽孔以预留为主,因漏埋或未预留时,应采取措施,不因剔凿而损坏砌体的完整性。
③砌筑施工应及时清除落地砂浆。
④拆除施工架子时,注意保护墙体及门窗口角。
⑤清水墙砌筑完毕后,宜从圈梁处向下用塑料薄膜覆盖墙体,以免墙体受到污染。
3.施工做法详解
施工工艺流程:墙体放线→砌块排列→拌制砂浆→砌筑→灌芯柱混凝土。
(1)墙体放线
砌体施工前,应将基础面或楼层结构面按标高找平,依据砌筑图放出一皮砌块的轴线、砌体边线和洞口线。
(2)砌块排列
①按砌块排列图在墙体线范围内分块定尺、画线,排列砌块的方法和要求如下。
小型空心砌块在砌筑前,应根据工程设计施工图,结合砌块的品种、规格、绘制砌体砌块的排列图。围护结构或二次结构,应预先设计好地导墙、混凝土带、接顶方法等,经审核无误,按图排列砌块。
小型空心砌块排列应从基础面开始,排列时尽可能采用主规格的砌块(390mm×190mm×190mm),砌体中主规格砌块应占总量的75%~80%。
外墙转角及纵横墙交接处,应将砌块分皮咬槎,交错搭砌,如果不能咬槎时,按设计要求采取其他的构造措施。
②小砌块墙内不得混砌其他墙体材料。镶砌时,应采用与小砌块材料强度同等级的预制混凝土块。
③施工洞口留设:洞口侧边离交接处墙面不应小于500mm,洞口净宽度不应超过1m。洞口两侧应沿墙高每3皮砌块设2ф4拉结钢筋网片,锚入墙内的长度不小于1000mm。
④样板墙砌筑:在正式施工前,应先砌筑样板墙,经各方验收合格后,方可正式砌筑。
(3)拌制砂浆
与前面所述砖砌体施工中拌制砂浆的要求相同。
(4)砌筑
①每层应从转角处或定位砌块处开始砌筑,应砌一皮,校正一皮,拉线控制砌体标高和墙面平整度。皮数杆应竖立在墙的转角处和交接处,间距宜不小于15m。
②在基础梁顶和楼面圈梁顶砌筑第一皮砌块时,应满铺砂浆。
③砌筑时,小砌块包括多排孔封底小砌块、带保温夹芯层的小砌块均应底面朝上反砌于墙上。
④小砌块墙体砌筑形式应每皮顺砌,上下皮应对孔错缝搭砌,竖缝应相互错开1/2主规格小砌块长度,搭接长度不应小于90mm,墙体的个别部位不能满足上述要求时,应在灰缝中设置拉结钢筋或采用4ф4钢筋点焊网片。网片两端与竖缝的距离不得小于400mm,但竖向通缝仍不能超过两皮小砌块。
⑤墙体转角处和纵横墙交接处应同时砌筑。临时间断处应砌成斜槎,斜槎水平投影长度不应小于斜槎高度。严禁留直槎。
⑥设置在水平灰缝内的钢筋网片和拉接筋应放置在小砌块的边肋上(水平墙梁、过梁钢筋应放在边肋内侧),且必须设置在水平灰缝的砂浆层中,不得有露筋现象。拉结筋的搭接长度不应小于55d(d为拉结筋的直径),单面焊接长度不小于10d(d为所焊钢筋的直径)。钢筋网片的纵横筋不得重叠点焊,应控制在同一平面内。
⑦砌筑小砌块的砂浆应随铺随砌,墙体灰缝应横平竖直。水平灰缝宜采用坐浆法满铺小砌块全部壁肋或多排孔小砌块的封底面;竖向灰缝应采取满铺端面法,即将小砌块端面朝上铺满砂浆再上墙挤紧,然后加浆插捣密实。墙体的水平灰缝厚度和竖向灰缝宽度宜为10min,但不应大于12mm,也不应小于5mm。
⑧砌体水平灰缝的砂浆饱满度,应按净面积计算不得低于90%;小砌块应采用双面碰头灰砌筑,竖向灰缝饱满度不得小于80%,不得出现瞎缝、透明缝。
⑨小砌块墙体孔洞中需填充隔热或隔声材料时,应砌一皮灌填一皮。应填满,不得捣实。充填材料必须干燥、洁净,品种、规格应符合设计要求。卫生间等有防水要求的房间,当设计选用灌孔方案时,应及时灌注混凝土。
⑩砌筑带保温夹芯层的小砌块墙体时,应将保温夹芯层一侧靠置室外,并应对孔错缝。左右相邻小砌块中的保温夹芯层应相互衔接,上下皮保温夹芯层之间的水平灰缝处应砌入同质保温材料。
11☛小砌块夹芯墙施工宜符合下列要求:
a.内外墙均应按皮数杆依次往上砌筑;
b.内外墙应按设计要求及时砌入拉结件;
c.砌筑时灰缝中挤出的砂浆与空腔槽内掉落的砂浆应在砌筑后及时清理。
12☛固定圈梁、挑梁等构件侧模的水平拉杆、扁铁或螺栓应从小砌块灰缝中预留的4ф10孔中穿入,不得在小砌块块体上凿安装洞。内墙可利用侧砌的小砌块孔洞进行支模,模板拆除后应采用C20混凝土将孔洞填实。
13☛墙体顶面(圈梁底)砌块孔洞应采取封堵措施(如铺细钢丝网、窗纱等),防止混凝土下漏。
[插图]顶层内粉刷必须待钢筋混凝土平屋面保温、隔热层施工完成后方可进行;对钢筋混凝土坡屋面,应在屋面工程完工后进行。
14☛墙面设有钢丝网的部位,应先采用有机胶拌制的水泥浆或界面剂等材料满涂后,方可进行抹灰施工。
(5)竖缝填实砂浆
每砌筑一皮,小砌块的竖凹槽部位应用砂浆填实。
(6)勒缝
混水墙面必须用原浆做勾缝处理。缺灰处应补浆压实,并宜做成凹缝,凹进墙面2mm。清水墙宜用1:1水泥砂浆勾缝,凹进墙面深度一般为3mm。
(7)灌芯柱混凝土
①芯柱所有孔洞均应灌实混凝土。每层墙体砌筑完后,砌筑砂浆强度达到指纹硬化时,方可浇灌芯柱混凝土;每一层的芯柱必须在一天内浇灌完毕。
②每个层高混凝土应分两次浇灌,浇灌到1.4m左右,采用钢筋插捣或振捣棒振捣密实,然后再继续浇灌,并插(振)捣密实。当过多的水被墙体吸收后应进行复振,但必须在混凝土初凝前进行。
③浇灌芯柱混凝土时,应设专人检查记录芯柱混凝土强度等级、坍落度、混凝土的灌入量和振捣情况,确保混凝土密实。
④在门窗洞口两侧的小砌块,应按设计要求浇灌芯柱混凝土;临时施工洞口两侧砌块的第一个孔洞应浇灌芯柱混凝土。
⑤芯柱混凝土在预制楼盖处应贯通,采用设置现浇混凝土板带的方法或预制板预留缺口的方法,实施芯柱贯通,确保不削弱芯柱断面尺寸。
⑥芯柱位置处的每层楼板应留缺口或浇一条现浇板带。芯柱与圈梁或现浇板带应浇筑成整体。
4.施工总结
①砌体容易开裂:原因是砌块龄期不足28d,使用了断裂的小砌块,与其他块材混砌,砂浆不饱满,砌块含水率过大(砌筑前一般不须浇水)等。
②第一皮砌块底铺砂浆厚度不均匀:原因是基底未事先用细石混凝土找平,必然造成砌筑时灰缝厚度不一,应注意砌筑基底找平。
③砌体错缝不符合设计和规范的规定:未按砌块排列组砌图施工,应注意砌块的规格并正确地组砌。
④砌体偏差超规定:控制每皮砌块高度不准确。应严格按皮数杆高度控制,掌握铺灰厚度。
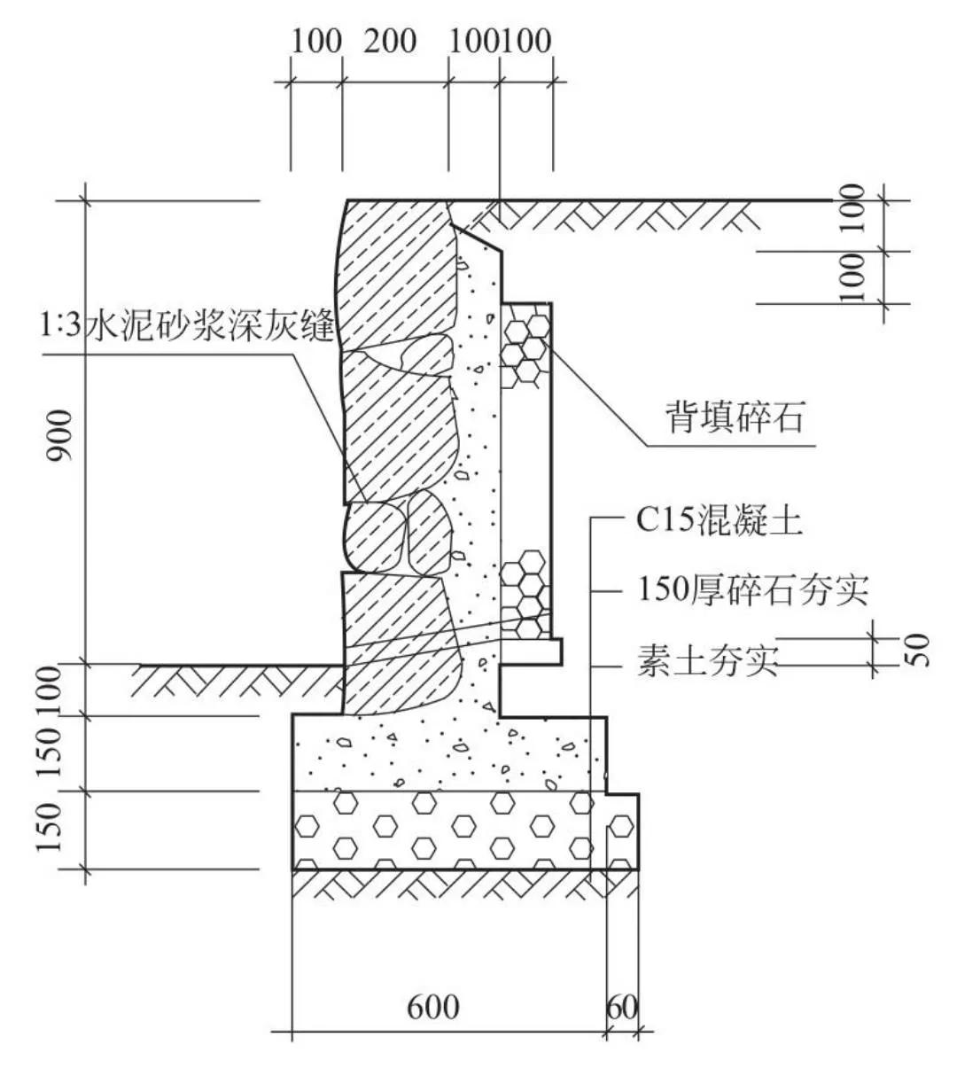
石砌体施工
一、石砌体现场作业
1.示意图和现场照片
石砌体施工示意图和现场照片分别见图4-13和图4-14。

图4-13 石砌体施工示意图

图4-14 石砌体施工现场照片
2.注意事项
①垫层已施工完毕,并办完隐检手续。回填完基础两侧及房心土方,安装好暖气盖板。
②根据图纸要求,做好测量放线工作,设置水准基点桩,立好皮数杆。有坡度要求的砌体,立好坡度门架。
3.施工做法详解
施工工艺流程:确定参数→检查轴线及墙身线。
①基础垫层已弹好轴线及墙身线,立好皮数杆,其间距约15m为宜。转角处应设皮数杆,皮数杆上应注明砌筑皮数及砌筑高度等。
②砌筑前拉线检查基础或垫层表面、标高尺寸是否符合设计要求。如第一皮水平灰缝厚度超过20mm时,应用细石混凝土找平,不得用砌筑砂浆掺石子代替。
4.施工总结
①砂浆配合比由实验室确定,计量设备经检验合格,砂浆试模已经备好。
②毛石应按砌筑的数量堆放于砌筑部位附近;料石应按规格和数量在砌筑前组织人员集中加工,按不同规格分类堆放、码齐,以备使用。
二、毛石砌筑
1.示意图和现场照片
毛石砌筑示意图和现场照片分别见图4-15和图4-16。

图4-15 毛石砌筑示意图

图4-16 毛石砌筑现场照片
2.注意事项
①毛料石砌体的第一皮及转角处、交接处和洞口处,应用较大的平毛石砌筑。砌体的最上一皮,宜选用较大的毛石砌筑。
②毛料石砌体应分皮卧砌,各皮石块间应利用自然形状经敲打修整使能与先砌石块基本吻合、搭砌密切;应上下错缝、内外搭砌,不得采用外面侧力石块中间填心的砌筑方法;中间不得有铲口石(尖石倾斜向外的石块)、斧刃石和过桥石(仅在两段搭砌的石块)。
3.施工做法详解
施工工艺流程:测量放线→砂浆拌制→砌筑。
基础的顶面宽度比墙厚大200mm,即每边宽出100mm,每阶高度一般为300~400mm,并至少砌两皮毛石。上级阶梯的石块应至少压砌下级阶梯的1/2,相邻阶梯的毛石应相互错缝搭砌。毛石基础必须设置拉结石。毛石基础同皮内每隔2m左右设置一块。拉结石长度:如基础宽度等于或小于400mm,应于基础宽度相等;如基础宽度大于400mm,可用两块拉结石内外搭接,搭接长度不应小于150mm,且其中一块拉结石长度不应小于基础宽度的2/3。
4.施工总结
①毛料石的砌体灰缝厚度宜为20~30mm,石块间不得有相互接触现象。石块间较大的空隙应先填塞砂浆,后用碎石块嵌实,不得采用先摆碎石块后塞砂浆或干填碎石块的方法。
②毛料石砌体必须设置拉结石。拉结石应均匀分布、相互错开,毛石基础同皮内每隔2m左右设置一块;毛石墙一般每0.7m2墙面至少应设置一块,且同皮内的中距不应大于2m。
拉结石的长度,如基础宽度或墙厚不大于400mm,应于宽度或厚度相等。
③在毛石和实心砖的组合墙中,毛料石砌体与砖砌体应同时砌筑,并每隔4~6皮砖用2~3皮丁砖与毛料石砌体拉结砌合。两种砌体间的空隙应用砂浆填满。
④毛石墙和砖墙相接的转角处和交接处应同时砌筑。转角处应自纵墙(或横墙)每隔4~6皮砖高度引出不小于120mm与横墙或纵墙相接;交接处应自纵墙每隔4~6皮砖高度引出不小于120mm与横墙相接。
三、挡土墙砌筑与泄水孔设置
1.示意图和现场照片
挡土墙施工示意图和现场照片分别见图4-17和图4-18。

图4-17 挡土墙施工示意图

图4-18 挡土墙施工现场照片
2.注意事项
①地基承载试验结果应与设计一致,坑底表面无松软岩土。
②墙趾处岩土层尽量少受施工扰动,斜面地基平整无补贴。
③基础周围大致平顺整齐或基坑壁贴紧。
④沉降缝、伸缩缝位置,缝的填塞应符合设计要求。
⑤泄水孔位置孔距应符合设计要求,孔内应通畅。
⑥墙面勾缝自然流畅,无暗缝、空缝、通缝。
3.施工做法详解
施工工艺流程:测量放线→砂浆拌制→砌筑。
毛石挡土墙外露面的灰缝厚度不得大于40mm,两个分层高度间分层处的错缝不得小于80mm。料石挡土墙宜采用丁顺组砌的砌筑形式。挡土墙的泄水孔当设计无规定时,施工应符合下列规定:泄水孔应均匀设置,在每米高度上间隔2m左右设置一个泄水孔;泄水孔与土体间铺长宽各为300mm、厚200mm的卵石或碎石作为疏水层。
4.施工总结
①每砌3~4皮为一个分层高度,每个分层高度应找平一次。
②当中间部分用毛石砌筑时,丁砌料石伸入毛石部分的长度不应小于200mm。
③挡土墙内侧回填土必须分层夯填,分层松土厚度应为300mm。墙顶土面应有适当坡度,使水流流向挡土墙外侧面。
四、墙体砌筑
1.示意图和现场照片
毛石墙体砌筑示意图和现场照片分别见图4-19和图4-20。

图4-19 毛石墙体砌筑示意图

图4-20 毛石墙体砌筑现场照片
2.注意事项
①砌筑毛石墙时,应经常检查校核墙体的轴线和边线,以保证墙体轴线准确,不发生位移。
②砌石应注意选石,石块大小搭配均匀。
③砌筑时应严格防止出现不坐浆砌筑或先填心后填塞砂浆,或采取铺石灌浆法施工。
④外露面的灰缝不得大于30mm。
3.施工做法详解
施工工艺流程:砌筑方法的选择与确定→砌筑→勾缝→养护。
①砌筑方法采用坐浆法。砌前先试摆,使石料大小搭配,大面平放朝下,应利用自然形状经修理使其能与先砌毛石基本吻合,砌筑时先砌转角处、交接处和洞口处。逐块卧砌坐浆,使砂浆饱满,每皮高约300~400mm。灰缝厚度一般控制在20mm左右,铺灰厚度30~40mm。
②砌筑时,避免出现通缝、干缝、空缝和孔洞,墙体中间不得有铲口石、斧刃石和过桥石,同时应注意合理摆放石块,以免出现承重后发生错位、劈裂外鼓等现象。
③在转角及两墙交接处应有较大和较规整的垛石相互搭砌,如不能同时砌筑,应留阶梯形斜槎,不得留直槎。
④毛石墙每日砌筑高度不得超过1.2m,正常气温下,停歇4h后可继续垒砌。每砌3~4层应大致找平一次。砌至楼层高度时,应不适用平整的大石块压顶并用水泥砂浆全部找平。
⑤石墙面的勾缝:石墙面或柱面的勾缝形式有平缝、平凹缝、平凸缝、半圆凹缝、半圆凸缝、三角凸缝等,一般毛石墙面多采用平缝或平凸缝。
⑥勾缝砂浆宜采用1:1.5水泥砂浆。毛石墙面勾缝按下列程序进行:
a.拆除墙面或柱面上临时装设的拦风绳、挂钩等物;
b.清除墙面或柱面上黏结的砂浆、泥浆、杂物和污渍等;
c.刷缝,即将灰缝刮深10~20mm,不整齐处加以修整;
d.用水喷洒墙面或柱面,使其湿润,然后进行勾缝。
⑦勾缝线条应顺石缝进行,且均匀一致,深浅及厚度相同,压实抹光,搭接平整。阳角勾缝要两面方整;阴角勾缝不能上下直通;勾缝不得有丢缝、开裂或黏结不牢的现象。勾缝完毕应清扫墙面或柱面,早期应洒水养护。
4.施工总结
①料石墙砌筑有两顺一丁、丁顺组砌、全顺叠砌。两顺一丁是两皮顺石与一皮丁石相间,宜用于墙厚等于两块料石宽度时。丁顺组砌是同皮内每1~3块顺石与一块丁石相隔砌筑,丁石中距不大于2m,上皮丁石坐中于下皮顺石,上下皮错缝相互错开至少1/2石宽,宜用于墙厚小于两块料石宽度时。全顺是每皮均为顺砌石,上下皮错缝相互错开1/2石长,宜用于墙厚度等于石宽时。
②砌料石墙面应双面挂线(除全顺砌筑形式外),第一皮可按所放墙边砌筑以上各皮均按准线砌筑,可先砌转角处和交接处,后砌中间部分。
③料石可与毛石或砖砌成组合墙。料石与毛石的组合墙,料石在外、毛石在里;料石与砖的组合墙,料石在里、砖在外,也可料石在外、砖在里。
④砌筑时,砂浆铺设厚度应略高于规定灰缝厚度,其高出厚度:细石料、半细石料宜为3~5mm;粗料石、毛料石宜为6~8mm。
⑤料石清水墙中不得留脚手眼。
配筋砌体施工
一、构造柱配筋设置与绑扎
1.示意图和现场照片
构造柱配筋示意图和现场照片分别见图4-21和图4-22。

图4-21 构造柱配筋示意图

图4-22 构造柱配筋现场照片
2.注意事项
①当构造柱钢筋采用预制骨架时,应在指定地点垫平码放整齐。往楼层上吊运钢筋存放时,应清理好存放地点,以免变形。
②构造柱钢筋绑扎完成后,不得攀爬或是用于搭设脚手架等。
③不得踩踏已绑好的圈梁钢筋或是在上行走,绑圈梁钢筋时不得将梁底砖碰松动。
④钢筋变形:钢筋骨架绑扎时应注意绑扣方法,宜采用十字扣或套扣绑扎。
⑤箍筋间距不符合要求:多为放置砖墙拉结筋时碰动所致,应在砌完后、合模前修整一次。
⑥构造柱伸出钢筋位置:除将构造柱伸出筋与圈梁钢筋绑牢外,并在伸出筋处绑一道定位箍筋,浇筑完混凝土后,应立即修整。
3.施工做法详解
施工工艺流程:钢筋绑扎→修整底层伸出的构造柱搭接筋→安装构造柱钢筋骨架。
(1)构造柱钢筋绑扎
①先将两根竖向受力钢筋平放在绑扎架上,并在钢筋上画出箍筋间距,自柱脚起始箍筋位置距竖筋端头为40mm。放置竖筋时,柱脚始终朝一个方向,若构造柱竖筋超过4根,竖筋应错开布置。
②在钢筋上画箍筋间距时,在柱顶、柱脚与圈梁钢筋交接的部位,应按设计和规范要求加密柱的箍筋,加密范围一般在圈梁上、下均不应小于1/6层高或450mm,箍筋间距不宜大于100mm(柱脚加密区箍筋待柱骨架立起搭接后再绑扎)。有抗震要求的工程,柱顶、柱脚箍筋加密,加密范围为1/6柱净高,同时不小于450mm,箍筋间距应按6d(d为箍筋直径)或100mm加密进行控制,取较小值。钢筋绑扎接头应避开箍筋加密区,同时接头范围的箍筋加密5d(d为所绑钢筋的直径),且≤100mm。
③根据画线位置,将箍筋套在主筋上逐个绑扎,要预留出搭接部位的长度。为防止骨架变形,宜采用反十字扣或套扣绑扎。箍筋应与受力钢筋保持垂直;箍筋弯钩叠合处,应沿受力钢筋方向错开放置。
④穿另外两根或更多受力钢筋,并与箍筋绑扎牢固,箍筋端头平直长度不小于10d(d为绑扎钢筋的直径),弯钩角度不小于135°。
(2)修整底层伸出的构造柱搭接筋
①根据已放好的构造柱位置线,检查搭接筋位置及搭接长度是否符合设计和规范的要求。若预留搭接筋位置偏差过大,应按1:6坡度进行矫正。
②底层构造柱竖筋应与基础圈梁锚固;无基础圈梁时,埋设在柱根部混凝土座内,当墙体附有管沟时,构造柱埋设深度应大于沟深。构造柱应伸入室外地面标高以下500mm。
(3)安装构造柱钢筋骨架
①先在搭接处的主筋处的套上箍筋,然后再将预制构造柱钢筋骨架立起来,对正伸出的搭接筋,搭接倍数按设计图纸和规范的要求,且不低于35d(d为绑扎钢筋的直径),对好标高线(柱脚钢筋端头距搭接筋上的500cm水平线的距离为490mm),在竖筋搭接部位各绑至少3个扣,两边绑扣距钢筋端头距离为50mm。
②绑扎搭接部位钢筋:骨架调整方正后,可以绑扎根部加密区箍筋。按骨架上的箍筋位置线从上往下依次进行绑扎,并保证箍筋绑扎水平、稳固。
③绑扎保护层垫块:构造柱绑扎完成后,在与模板接触的侧面及时进行保护层垫块绑扎,采用带绑丝的砂浆垫块,间距不大于800mm。
4.施工总结
①有抗震要求的工程,在构造柱上下端应加密箍筋,箍筋间距不得大于100mm。
②构造柱纵向钢筋的连接可采用焊接或绑扎搭接的方式。若构造柱纵向钢筋采用绑扎搭接时,在搭接长度范围内也应加密箍筋,箍筋间距不得大于100mm。
③构造柱纵向钢筋宜采用HPB300或HRB335级热轧钢筋。
④钢筋绑扎。
a.先将两根竖向受力钢筋平放在绑扎架上,并在钢筋上画上钢筋间距,自柱脚起始箍筋位置距竖筋端头40mm。放置竖筋时,柱脚始终朝一个方向,若构造柱竖筋超过4根,竖筋应错开分布。
b.在钢筋上画箍筋间距时,在柱顶、柱脚与圈梁钢筋交接的部位,应按设计和规范要求加密柱的箍筋,加密范围一般在圈梁上下均不应小于1/6层高或450mm,箍筋间距不宜大于100mm(柱脚加密区箍筋待柱骨架立起搭接后再绑扎)。
c.有抗震要求的工程,柱顶、柱脚箍筋加密,加密范围为1/6净高,同时不小于450mm,箍筋间距应按6d(d为箍筋直径)或100mm加密进行控制,取最小值。钢筋绑扎接头应避开箍筋加密区,同时接头范围的箍筋加密5d(d为箍筋直径),且不大于100mm。
d.根据画线位置,将箍筋套在主筋上逐个绑扎,要留出搭接部位的长度。为防止骨架变形,宜采用十字扣或套扣绑扎。箍筋应与受力钢筋保持垂直;箍筋弯钩叠合处,应沿受力钢筋方向错开放置。
e.箍筋端头平直长度不应小于10d(d为箍筋直径),弯钩角度为135°。
二、圈梁钢筋绑扎
1.示意图和现场照片
圈梁钢筋示意图和圈梁绑扎现场照片分别见图4-23和图4-24。

图4-23 圈梁钢筋示意图

图4-24 圈梁绑扎现场照片
2.注意事项
①圈梁及板缝钢筋如采用预制钢筋骨架时,应在现场指定地点垫平、堆放。
②往楼板上临时吊放钢筋时,应清理好存放地点,垫平放置,以免变形。
③钢筋在堆放过程中,要保持钢筋表面清洁,不允许有油渍、泥土或其他杂物污染钢筋;存放期不宜过久,以防钢筋锈蚀。
④避免踩踏、碰动已绑好的钢筋;绑扎圈梁钢筋时,不得将砖墙和梁底砖碰松动。
3.施工做法详解
施工工艺流程:划分箍筋位置线→放箍筋→穿圈梁主筋→绑扎箍筋→设置保护层垫块。
(1)划分箍筋位置线
支完圈梁模板并做完预检,即可绑扎圈梁钢筋,采用在模内直接绑扎的方法,按设计图纸要求间距,在模板侧帮上画出箍筋位置线。按每两根构造柱之间为一段,分段画线,箍筋起始位置距构造柱50mm。
(2)放箍筋
箍筋位置线画好后,数出每段箍筋数量,放置箍筋。箍筋弯钩叠合处,应沿圈梁主筋方向互相错开设置。
(3)穿圈梁主筋
穿圈梁主筋时,应从角部开始,分段进行。圈梁与构造柱钢筋交叉处,圈梁钢筋宜放在构造柱受力钢筋内侧。圈梁钢筋在构造柱部位搭接时,其搭接倍数或锚入柱内长度要符合设计和规范要求。主筋搭接部位应绑扎3个扣。
圈梁钢筋应互相交圈,在内外墙交接处、墙大角转角处的锚固长度,均要符合设计和规范要求。
(4)绑扎箍筋
圈梁受力筋穿好后,进行箍筋绑扎,应分段进行。在每段两端及中间部位先临时绑扎,将主筋架起来,以利于绑扎。绑扎时,要让箍筋与圈梁主筋保证垂直,将箍筋对正模板侧帮上的位置线,先将下部主筋与箍筋绑扎,再绑上部筋,上部角筋处宜采用套扣绑扎。
(5)设置保护层垫块
圈梁钢筋绑完后,应在圈梁底部和与模板接触的侧面加水泥砂浆垫块,以控制受力钢筋的保护层厚度。底部的垫块应加在箍筋下面,侧面应绑在箍筋外侧。
4.施工总结
①圈梁模板部分已支设完毕,并在模板上已弹好水平标高线。
②模板已经支设完毕,标高、尺寸及稳定性符合设计要求;模板与所在砖墙及板缝已堵严,并办完预检手续。搭设好必要的脚手架。
③圈梁及板缝模板已做完预检,并将灰尘清理干净。
三、拉结筋、抗震拉结筋措施
1.示意图和现场照片
拉结筋构造示意图和拉结筋现场照片分别见图4-25和图4-26。

图4-25 拉结筋构造示意图
注:L—拉结筋伸入墙内的长度

图4-26 拉结筋现场施工照片
2.注意事项
①拉结筋是通过植筋、预埋、绑扎等连接方式,使用HPB300、HRB335等钢筋按照一定的构造要求将后砌砌体与混凝土构件拉结在一起的钢筋。
②墙长大于5m时,墙顶与梁宜有拉结;墙长超过层高2倍时,宜设置钢筋混凝土构造柱;墙高超过4m时候,墙体半高宜设置与柱连接且沿墙长贯通的钢筋混凝土水平系梁。
3.施工做法详解
施工工艺流程:确定参数→拉结筋的安装及摆放。
砌块填充墙应沿框架柱全高每500mm设2ф6拉结筋(墙厚>240mm时为3ф6)。拉结筋伸入墙内的长度L:抗震设防烈度为6度、7度时不应小于墙长的1/5且不小于700mm;抗震设防烈度为8度、9度时宜沿墙全长通贯,其搭接长度为300mm。拉筋与混凝土结构连接可采用预埋或后锚固方式。
4.施工总结
拉结筋通常用直径为6.5mm的细钢筋制成,多用在砖墙的L转角和T字转角处,每隔500mm放一层,每层每125mm宽度范围内放一根,长度按照规范设置。在砌体留槎的地方必须按照规定设置拉结筋。