真正的栖居之境
风景自然不限于室外
室内更是重点打造
本案以现代自然为设计主题
为业主缔造理想栖居
让居住者尽情享受生活的美好
The First Floor
一 楼
原始结构&平面布置


考虑到原始的中厨位置尴尬,使用不方便,设计师在入户右侧设计了鞋帽间,鞋帽间旁边为中厨,将客厅设计为大横厅。
# 客厅展示 #


大横厅让公共区域更加开阔明亮,原木色作为点睛之笔,奠定了整个空间的色调。客厅区域,卡座是亮点,既增加了就座空间,也让空间富有简约大气的设计感。
The Second Floor
二 楼
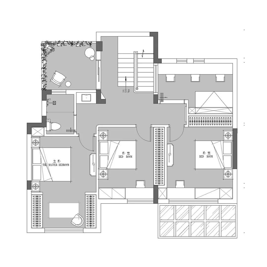
原始结构&平面布置


二楼为主卧、儿子房和女儿房,家庭阅读区。阅读区内的沙发床可以满足临时的客人居住需求。
# 主卧展示 #

主卧简洁大方,质感淳朴,自然舒适。大白墙搭配原木色家具,呈现出一派生机盎然的气息,也给生活带来简单的自然底蕴与舒适的生活体验。
#儿子房展示 #

儿子房摈弃传统的卡通风,富有质感的现代风,让房间更有魅力。动物头像装饰品,为空间增添趣味与活力。
# 女儿房展示 #

拼接多种色彩的女儿房,充满柔和的公主风童趣。书桌设计于靠窗的位置,让孩子读书写字时可以遥望窗外风景,让生活中充满自然舒适的体验。