逢山开路,遇水搭桥,这大概是人们对工兵这一兵种最直观的认识,但在战场上更受关注的往往是诸如步兵、炮兵、装甲兵这类战斗兵种,而对于工兵这类辅助兵种大众缺乏了解。殊不知对于机械化部队来说,高素质的专业工兵早已成为不可或缺的组成部分,在某些战役战斗中,工兵往往扮演着决定胜负乃至部队存亡的关键角色。在抗美援朝战争第二次战役的东线长津湖战役中,美军工兵和运输航空兵就共同充当了拯救美军陆战一师的“关键先生”,及时修复了至关重要的水门桥,从而确保美军摆脱志愿军的围追堵截,提供了展示现代工兵战斗效能的极佳例证。

■1950年12月初美军拍摄的水门桥现场照片,可见观察到桥梁南侧的缺口和周围的地势。
南逃之路
在长津湖战役的第一阶段,志愿军将陆战一师主力及陆军第7师第31团级战斗队分割包围在长津湖周边的柳潭里、新兴里、下碣隅里、古土里等孤立据点内,然而,由于兵力火力不足,未能加以歼灭,除了重创新兴里美军外,没能阻止各处美军突围南撤。至12月7日,陆战一师主力及陆军残部已全部撤退到古土里,接下来的计划就是经由16公里的崎岖山路退回真兴里,在那里陆战一师师长奥利弗·史密斯少将留有一个加强营驻守,以保护补给线。由真兴里再往南直到咸兴地势渐缓,便于美军机械化机动,并且将得到陆军第3师的接应,因此只要撤到真兴里,美军就能离开山区,逃出志愿军的包围圈,但在最后一段撤退道路上有一个致命的节点,那就是水门桥。

■古土里至真兴里的1:50000地图。这是一幅1951年的地图,与1950年使用的日本地图非常相似,用20米等高线展示了山区的复杂地形。
史密斯后来在回忆录中写道:“在这一点(水门桥)上,通过隧道从长津湖水库送来的水从山的一侧冒出来,被排入四个大型混凝土管道,沿着山腰陡然下降到下面山谷中水力发电厂的涡轮发电机中。在管道与公路交叉处,有一个混凝土变电站,没有地板,位于公路的上坡一侧,盖在管道之上。在变电站的下坡一侧是一座单车道的混凝土桥。这里的山体落差非常大,没有绕行的可能。这座桥对我们来说至关重要,没有它我们就无法带出车辆、坦克和其他重装备。”在12月8日,美军在古土里有将近1500辆坦克、车辆和火炮等待通过水门桥南撤。

■美军从一架轻型侦察机上拍摄的水门桥全景图,显示了变电站及输水管,可以看到这里的山势非常陡峭。
史密斯能看出水门桥的重要性,久经战阵的志愿军第9兵团司令员宋时轮更是洞若观火,他命令负责迂回穿插的第20军58师和60师破坏道路,炸毁桥梁,阻击美军。穿插到最南侧的第60师第180团早已盯上了水门桥,在12月1日首次将其炸断,但美军工兵随即搭建了一座木制便桥,恢复了交通。第180团再接再厉,于12月4日再次将便桥破坏,美军第58架桥连使用仅有的M2型钢制车辙桥组件第二次修复断桥。12月6日,第180团竭尽全力,组织突击队第三次将水门桥摧毁,在桥梁南侧炸出一个宽5米以上的缺口,志愿军料想美军不可能在短期内将其修复。然而,美军的战场工程修造能力远远超出中国军人当时的认知范畴。

■1950年12月9日,美国海军陆战队的士兵们正在查看被炸断的水门桥。这里如果不能修复,美军的重型装备都将无法撤离。
陆战一师的命运此时掌控在美军工兵部队的手中。在古土里的美军工兵单位并不少,陆战一师除了师直属工兵营外,每个团还配属一个战斗工兵连,此外还有陆军第185工兵营,该营从12月3日开始在当地修建简易机场,12月6日即投入使用,用于后送伤员。第58架桥连和第512自卸卡车连的一个排也在古土里,他们原本的任务是运送建筑材料,用于在下碣隅里修建第10军的前进司令部。第58架桥连原直属于第10军,在仁川登陆之后曾在洛东江上搭建了一座200多米长的浮桥,1950年11月被配属于陆战一师北上长津湖,该连拥有4辆载重6吨的布罗克威桥梁卡车,其中2辆可以使用,它们可以装运沉重的车辙桥组件,并将其吊运放置到需要的地方。

■1945年4月,美军第1139架桥连在德国雷根斯堡以南的多瑙河上建造的浮桥,桥上道路使用M2型车辙桥组件铺就。
车辙桥是美军开发的一种多节钢制桥梁构件,由两条轨道和中间的踏板组成,两个车辙桥组件并排放置,形成一条道路。美军M2型车辙桥原本作为浮桥组件设计,固定在浮船上使用,但也可以搭设陆上便桥,可供火炮、重型卡车和坦克通过。但是,第58架桥梁已经将携带的车辙桥组件消耗一空,在古土里只有桥梁卡车,却无建桥材料。
天降钢桥
在古土里的美军工兵部队统一由陆战一师工兵指挥官约翰·帕特里奇中校指挥,他和史密斯师长在志愿军初次攻击水门桥时就开始筹划对策。12月6日,帕特里奇亲自对水门桥进行了空中侦察,通过目测判断修复断桥缺口需要4个车辙桥组件,于是他向师长提出一个大胆的想法:请求空军紧急将所需是车辙桥组件空投到古土里,问题是每个桥梁构件长5.5米,重达1.3吨,此前战争史上从未有过这样的行动!史密斯对帕特里奇的提议疑虑重重,反复询问行动细节,他在回忆录中称,帕特里奇“对盘问感到很恼火,最后,他爆发了,恼怒地说:‘我让你渡过汉江,我给你建了一座机场,我当然还会给你架一座桥!’”随后,史密斯向美国空军远东作战货运司令部发出这个特殊的请求。

■1951年1月,陆战一师师长史密斯与师工兵指挥官帕特里奇中校握手,后者因为在长津湖战役中的出色表现而获得第二枚铜星勋章。
帕特里奇和陆战一师工兵营营长乔治·巴伯和第185工兵营营长休·麦高进行了研究,虽然只需4个组件,但保险起见,他们要求空军空投8个组件。美国空军对前线的诉求反应积极,紧急从日本调运桥梁组件并安排空投事宜。驻日本芦屋基地的美国空军第314部队空运联队第61运输机中队负责此项任务,派出C-119运输机前往东京附近的立川机场,将准备好的桥梁组件运回芦屋,之后再运往兴南港附近的永浦机场。费尔柴尔德公司的C-119运输机由C-82运输机发展而来,1947年首飞,到1955年停产时已交付了1183架,因奇特的外形和不寻常的装载能力而被称为“飞行闷罐车”,是当时世界上最好的双发中型运输机之一。

■1950年代,一架正在飞行中的美国空军C-119运输机。
为了验证空投的可行性,第61中队在永浦机场进行了一次试投,在一节桥梁组件上固定了6具直径7.32米的G-1型货用降落伞,飞机在140节(260千米/小时)速度下从240米高度投放。结果令人失望,6具降落伞有5具未能打开,第6具也没有完全开伞,桥梁组件像石头一样砸向地面,遭到无法修复的损坏。经过检查后,索具师认为失败原因在于伞绳相互缠绕拉扯以致断裂。陆军第2348军需空降供应包装连指挥官塞西尔·霍斯派尔霍恩建议使用2具直径14.64米的G-5型货用降落伞代替6具小型降落伞。由于时间紧迫,不能再行试投,只好直接上马,成功与否全凭运气了。第2348连和来自第1两栖牵引营的100人忙了个通宵,将从日本紧急运来的G-5降落伞连接到桥梁组件上,并装入C-119的货舱内。

■1950年12月7日,在古土里上空,一个M2车辙桥段正从第314部队空运联队第61中队的C-119运输机的尾部滑出。C-119的后部蚌壳式舱门已被拆除,以容纳超长的桥梁组件。
12月7日上午,第61中队的8架C-119各自搭载一个桥梁组件,以5分钟间隔从永浦机场起飞前往古土里,由于货物超长,同时也为了便于投放,机尾的蚌壳式舱门都已被拆掉。9时30分,第一架飞机抵达目标空域,将飞行高度降至240米,减速至120节(220千米/小时),沿着山谷进入空投航线,此时飞机已经低于周围的山峰。为了避免误伤,美军在古土里外围划定了两个空投区,一个在北面1千米处,一个在西南1.6千米处,每个空投区长约300米。当C-119飞越空投区时,飞行员加油拉起,在机首上仰的同时,货舱人员砍断桥梁组件的固定索,使其在重力作用下滑出货舱,开伞着陆。有3架飞机选择了北侧空投区,另外5架则在南侧卸货,期间不时遭到来自地面的轻*器武**攻击,部分飞机受伤,缺乏防空*器武**的志愿军眼看美军飞机飞过,却只能仰天长叹。前5架飞机都成功投放了组件,但第6个组件偏离目标,落入志愿军阵地上,而第7个组件着陆失败,受到损坏,最后一架C-119在第一次通过空投区时出现失误,组件未能出舱,只能冒着撞山的危险做180度转向再次投放才告成功,美军最后回收了6个完整的组件,架桥计划完成了一半。

■每个空投的车辙桥组件由两具直径为14.64米的G-5大型货物降落伞进行减速。
火线架桥
空军已经干完了他们的活,剩下就看工兵们的神通了。第58架桥连的桥梁排长查尔斯·沃德和他的士兵们将回收的桥段装上布罗克威桥梁卡车,等待命令前往水门桥。12月7日晚间,阴云笼罩大地,一场暴风雪席卷战场,气温降至零下35度,直到12月8日天明依然大雪纷飞,能见度只有15米,意味着美军无法得到空中掩护。古土里的美军顶风冒雪开始继续向南突围,交替掩护打开逃命的通道。跟随步兵前进的桥梁卡车一度开到水门桥附近,但由于志愿军的奋力阻击,无法保证架桥作业的安全,美军不得不让宝贵的桥梁卡车退回古土里,等待第二天再行架桥,现在对于美军而言桥梁卡车不能有半点闪失。

■图中所摄可能是二战时期美军第989架桥连的布罗克威桥梁卡车。
12月9日,天空放晴但寒冷无比,美军飞机的轰鸣声再度回响在险峰深谷间。帕特里奇命令陆战一师工兵营D连的沃姆·奥德带领一个工兵排前往水门桥,准备施工。工兵们在重兵护卫下抵达桥址,意外发现桥上的缺口比帕特里奇估算得更大,现有桥段差了2米多,而且缺乏支撑。幸运的是,陆战队工兵们早有准备,之前从新兴里的一家锯木厂里偷来了一卡车预切好的木料,现在派上了用场。后来,81岁的奥德在内华达州里诺的家中接受采访时回忆说:“(当时)考虑到我们有可能会需要这些东西,我让工兵们拖走一卡车的木料……我们总是偷走我们能偷到的一切,而且没人付钱。”工兵们卸下木料,着手在被炸断的桥头搭建起一个桥台。他们将木料交替堆叠起来,并用沙袋把中间的空隙填满,使桥台“看起来很结实”。

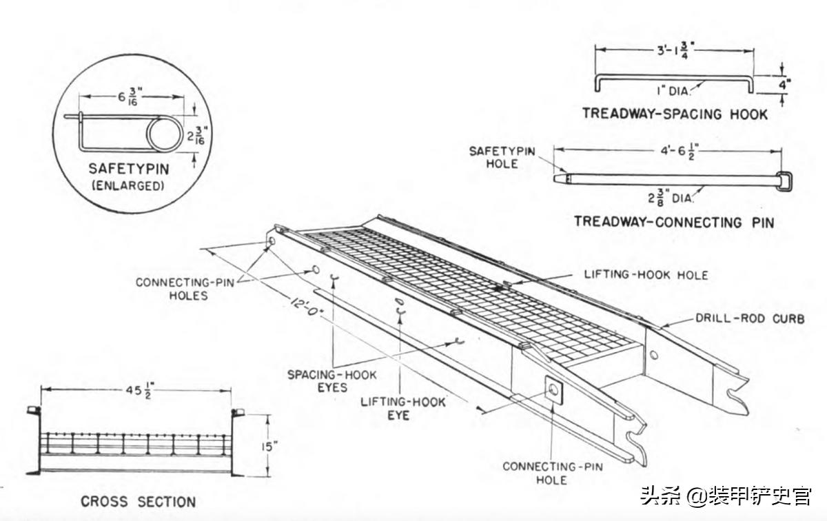
■一节钢制车辙桥组件示意图,带有踏板间距钩、踏板连接销以及安全装置。
12月9日中午,美第10军军长阿尔蒙德中将乘坐自己的“蓝鹅”专机飞临水门桥上空,亲眼目睹工兵们紧张施工的场面,一切似乎进展顺利。中午时分,2辆桥梁卡车将桥段运到水门桥,由于道路狭窄,没有可供车辆掉头的空间,他们只能在合适的路段调转车头,之后在引导下一路倒车来到桥头,将车辙桥组件安放在缺口处。陆军和陆战队的工兵们通力合作,用了三个小时将四个桥段组装完成,每侧两个,彼此平行,使水门桥恢复了车辆通行能力。帕特里奇于15时30分通知师部桥梁修复,美军车辆成群结队地排成长蛇阵,沿着山路蜿蜒而行,第一台美军车辆于18时通过水门桥,向南奔行,于12月10日凌晨2时45分抵达真兴里,通往咸兴的大门终于彻底打开了。

■一辆美军卡车正小心翼翼地通过水门桥缺口处的车辙桥。
奔涌车流
从12月9日下午到11日中午,由陆战一师的上万人马和千余台车辆组成的行军纵队在古土里到真兴里的山路上持续地蠕动着,期间只出现过一次短暂的停顿。虽然车辙桥的钢梁部分能够承受50吨的重量,但中间的桥板承重只有20吨,这个重量对大部分车辆是足够的,但还是出现了意外,一辆拖着挖土机的拖拉机把一块桥板压塌了,两台车挂在桥上岌岌可危。陆战队工兵威尔弗雷德·普罗索是一位拖拉机驾驶专家,他爬上拖拉机,小心翼翼地将受困车辆从桥上退下来。现在的情况是桥面出现漏洞,坦克还能继续从钢梁上通过,但对于轮距较窄的其他车辆则存在难以克服的障碍。

■美军步兵和车辆通过水门桥向真兴里撤退。
帕特里奇立即组织人手进行抢修,将两列桥段尽可能拉开,使桥面总宽度达到4米,使所有车辆都能沿着钢梁过桥,对于M26“潘兴”坦克的履带而言,大约有5厘米左右的余量,而轮距最窄的吉普车只要偏离1厘米就可能从钢梁上跌落,现在是考验美军司机的驾驶技巧的时候了。夜幕降临后,美军车辆只能打开最低照明度的“猫眼”车灯行驶,因此在过桥时司机基本上看不到桥上的钢梁,只能依靠工兵们的手电筒来引导通过,就如同在黑夜里进行驾校的“双边桥”考试一般。撤退纵队的组织方式是每个车队之间相隔400米,车辆之间相隔50米,以免在遭遇突然袭击或精确火力时损失过大。在道路两侧,沿着山脊移动的步兵为车辆提供掩护,来自陆战队和陆军的40辆坦克在一个乘坐吉普车的侦察连伴随下在纵队末尾压阵,一方面阻止志愿军的尾随追击,另一方面防止这些沉重的大家伙半路抛锚而阻塞道路。美军纵队在真兴里不做停留,马不停蹄地向咸兴撤退。

■陆战一师第1坦克营的M4A3“谢尔曼”坦克在雪地上等待着向南移动的消息。
值得注意的是,美军从古土里到真兴里撤退的全程都得到了空中和地面火力的有力掩护。部署在真兴里的美军155毫米榴弹炮可以把炮弹直接打到古土里,公路沿线两侧的山峰都处在美军炮兵的射程之内,只要有良好的观通条件,撤退的美军可以随时得到炮火支援。同时,只要天气状况允许,陆战队第1航空联队在昼间都会在撤退部队上空保持24架飞机,提供即时火力支援,而在夜间也会出动夜间战斗机保持一定的空中威慑。陆战队航空队派出资深人员担任空地引导员随地面部队行动,陆战一师每个营都配有2名引导员,随时为空中战机指引目标,在部队3.2公里范围内由引导员指挥空中支援,超出这一距离由战机自主决定行动。此外,美军还能得到兴南港外海军航母舰载机的支援,以及来自永浦机场甚至日本伊丹空军基地的空军飞机的支援。

■1950年12月10日,在真兴里附近的山口处于射击位置的美国陆军第3师道格特遣部队的155毫米自行榴弹炮。
12月11日午夜刚过,在最后一辆坦克和侦察连的车辆通过水门桥后,工兵们将车辙桥彻底炸毁。帕特里奇后来回忆:“当所有人都过去,我把桥炸了以后,终于长出一口气。”凌晨3时,守卫在桥南1081高地的美军接到了撤退命令。下午13时,最后一支美军部队离开真兴里。晚间21时30分,从长津湖地区撤退的美军部队全部抵达咸兴附近的集结地域,至此陆战一师这次“奇迹般的转进”宣告落幕。

■陆战一师的坦克和步兵沿着积雪的公路向咸兴撤退。
结语
在长津湖战役中,美军三修水门桥,特别是最后一次空投组件、火线架桥可算是一大亮点,就美军而言也算一次超常规操作,展示了美军作为现代化*队军**所具备的灵活应变能力和强有力的战场保障能力。美军工兵的作用当然不仅限于修复水门桥,其实在整个战役过程中始终为作战部队提供密切的支援,比如为了让40多吨重的M26“潘兴”坦克和5辆大型推土机开到下碣隅里,工兵们从11月16日便开始加宽改造道路,到11月19日基本完成。在此次战役中美军工兵最大的成就是在13天内在下碣隅里修建了一座长约900米、可起降运输机的*战野**机场,其中最后四天的工程是在战役打响后在志愿军的炮火袭扰下完成的,此外还在古土里修建了一条525米长的简易跑道。这两座前线机场不仅利于空运给养装备,更在陆战一师突围前通过空运后送了超过5000名伤员,极大减轻了美军撤退的负担,降低了人员损失数量。可以说,如果没有美军工兵的出色表现,纵使陆战一师能够逃脱志愿军的包围,其损失也将大幅增加,极可能被迫丢弃全部重装备和重伤员。

■下碣隅里和古土里之间被称为“地狱之火谷”的道路上,被负责阻击的志愿军20军60师击毁的车辆被美军工兵推到路边。