上海前滩国际商务区,是继外滩和陆家嘴之后的“3.0版本”城市模板,将以综合开发创新模式被打造成上海新的世界级中央商务区,成为集总部商务、文化传媒、体育休闲等功能于一体的上海城市副中心。天华作为“引领生活方式,助力城市发展”的践行者,参与了前滩信德文化中心、前滩九宫格等多个前滩建设项目。其中大悦城控股前滩壹号写字楼与前滩海景壹号住宅项目(以下简称前滩壹号项目)作为前滩企业天地的重要组成部分,构建了宜居宜业的立体社区。
| People & City |
——人与城市的共融——
▼前滩鸟瞰

作为前滩总体规划的先期开发项目,前滩壹号项目为前滩这个充满活力的城市新区带来了生活与工作一体化的创新社区,诠释了富有创意、创新、可持续的前滩开发理念,倡导了鼓励步行、蓬勃向上的现代生活方式。


建筑师遵循以“步行城市”理念为主导的前滩总体规划,采用高贴线率的街墙布置,通过匀质的界面布局与向心的庭院界定,将两种空间特质以合理交融的方式介入现代城市规划网格。



左右滑动查看更多
采用人行为主导的街道尺度,为理想社区的打造创新性设计了一系列联接建筑和景观的视觉景框。
| Office & Residence |
——办公与居住的融合——
传统城市规划理念中办公区域与居住区域是相互独立存在的,建筑师在此项目中尝试去营造居住空间与办公空间共享共融、架空联动的新关系。





| Integration |
——建筑、景观、室内一体化整合体验——
建筑师创造了多层次贯穿的趣味体验,促进建筑、景观与室内的共享交融,统筹营造了一体化整合体验。
建筑通过围合式布局,在地块核心形成一个清晰的开放“庭院”,沿庭院的休闲商业,景观小品,和南向充裕的阳光使得这个庭院充满艺术活力,点亮了每天的城市生活。
▼大花园延伸出多层次公共空间,景观向水平和竖向延伸

办公项目采用了底层架空和采光中庭设计。
▼强调交流共享的平面组织

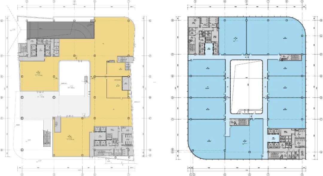
▼办公一层平面、标准层平面

共享、交互的艺术庭院成为社交生活的核心,向建筑内部延伸、渗透。


▼采光中庭


玻璃穿插其中将内外空间映射于立面之上,树影,草坪,景观构筑等与之交相辉映,当代住区的理想范式悄然而至。
| With the Times |
——与时代的共享共融——
为了打造品质社区的现代国际化形象,建筑师采用了纯粹明确的现代建筑风格,通过精确的比例推敲,精准的建造方式以及合理的材料选择,使建筑经得起时间的考验。
▼体量生成

▼精确的比例推敲




▼精准的建造方式

▼办公幕墙节点

▼纯粹明确的现代建筑风格

办公项目渗透性的立面轻盈地介入城市空间,随着视点移动而变化的立面语汇与经过的人群形成有趣的互动。住宅项目采用原创的细节设计,构造精工打磨,表达克制而精准。
▼大小体量的穿插与变化的白色竖向线条

▼与泛光结合形成优雅的节奏韵律



前滩壹号项目倡导工作与生活、城市与自然、出行与休闲紧密结合,提供多样性城市功能和空间体验,成功打造了一个生态型、综合性、多功能的复合型社区,致力于实现共享共融的城市理想。
项目信息:
项目名称丨大悦城控股前滩壹号写字楼,前滩海景壹号住宅
业主单位丨大悦城控股上海大区公司
建筑面积丨129393㎡
项目位置丨上海市浦东新区东育路95弄
设计时间丨2015年-2016年
建成时间丨2019年11月
建筑负责人丨吴欣,姚霁,敬亿,王垟
建筑丨张如磊,金嘉晟,刘虎,覃楚涵
结构丨曲宏,李明菲,沈杰, 彭普维,王惠平
水专业丨王榕梅,包涵,纪文龙,王晓宁,叶际诚,朱文俊,丁文强
电气丨陈涛,王关越,林军,曾峭,王恒之,郑珂岩
暖通丨杨军,王峻强,*华清刘**,李志英,董磊
合作公司:
景观设计丨 汇张思建筑设计咨询(上海)有限公司
住宅室内设计丨 KLID达观国际建筑设计事务所
办公室内设计丨 AICO
幕墙顾问丨上海科进咨询有限公司
装配式设计丨上海兴邦建筑技术有限公司
施工总包丨上海建工五建集团有限公司
幕墙施工丨中星联丰建设集团有限公司
建筑摄影 | 是然建筑摄影
文章中文字与图片均为设计阶段成果,仅供读者参考。