作为设计师,其实我们和业主都有一个共同的目标,就是希望这个家能够装成自己喜欢的模样,是放松的、治愈的;既有纯粹的自然,又有简约的质朴,还要有生活的精致。在现代文明拔起的钢筋丛林中,我们试图打造自然、关怀、艺术与生活融为一体的沉浸式体验居住空间。
本案例是泰湖新城125m²两房两厅的户型,设计的是简约原木风格,空间内没有过多的修饰,却有回归本真的自然美!
入户空间采用纯白色搭配原木色打造了精致的鞋柜,满足业主四季鞋子的收纳。

鞋柜镂空格
满足收纳的同时充分考虑了晾挂包包、放置小物品的空间,让人一进门即可放下烦扰,轻轻松松步入温馨的家。

入户鞋柜
入户即步入客餐厅,方正的空间,采用大面积留白,以原木家具、绿植、简洁的软装搭配出文艺、清新、温馨的环境。打开窗享受微风的自然体验,夜晚关上窗,享受另一种灯光下的纯净空间。

留白的投影墙

沙发
午后,置一条长餐桌,介入起居室与厨房之间,原木的质感呈现。对视而坐,泡两杯咖啡,将手机丢开,打开纸质的阅读方式。安静享受,这个秋天的午后。

餐厅

餐桌

餐边柜
开放式的厨房与餐厅相邻,将原本的餐厨空间扩大,创造了开阔的空间视野,通过花砖与木纹砖两种材质的划分,界定空间的功能属性。

开放式厨房

橱柜


小吧台
主卧墙顶面一体清浅的大白色调,馨暖的灯光,室内材质自然的纹路,以及恰到好处的植物点缀,共同组合为轻松惬意且自由开放包容的居住空间。

主卧衣柜

主卧梳妆台
次卧作为功能房,一边做定制衣柜,另外一边则用原木板打造整齐简单的书架、书桌,作为办公、阅读的空间。去繁从简,云淡风轻。

大面积衣柜收纳

飘窗

次卧书架
推开卫生间的门,原本很小的空间,在整体白色面包砖与花砖材质、白色洁具、白色龙头的点缀下,瞬间放大,不再逼仄。

卫生间

浴室柜

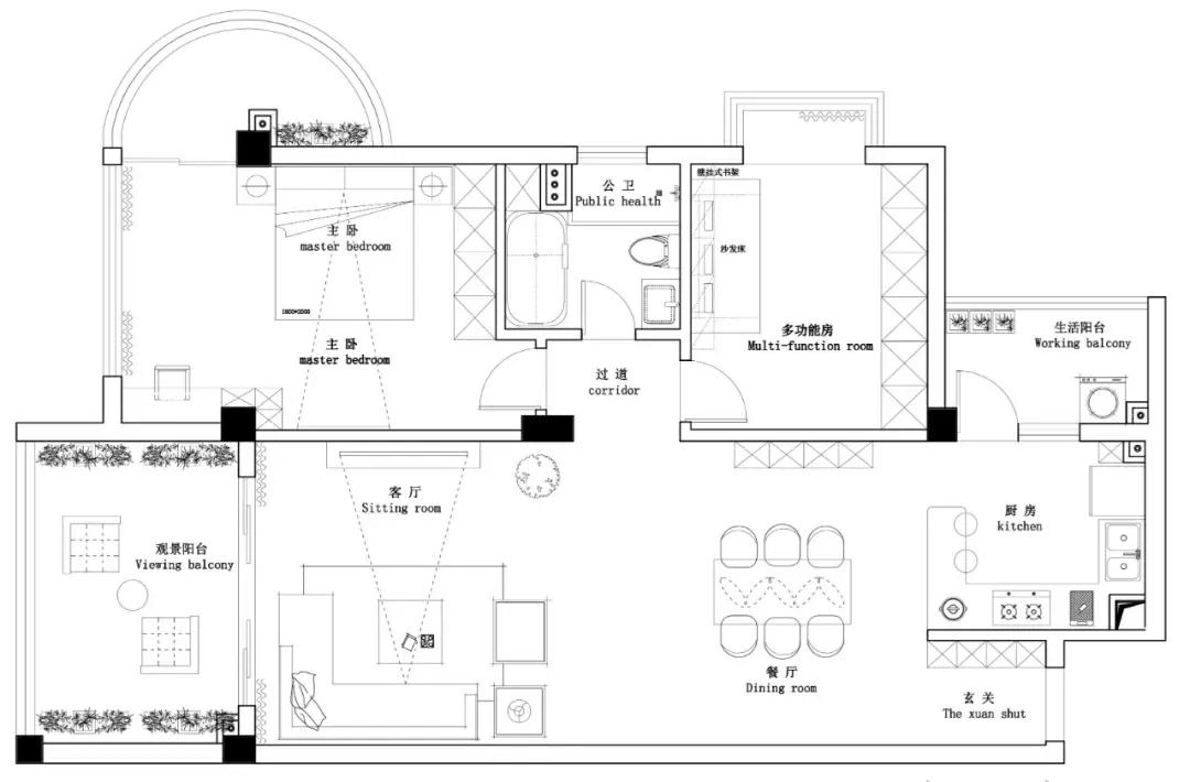
平面图
好的私宅设计是有生命的,它随着主人的入住和使用,才开始延续和生长。