新加坡·科学园大道5号旗舰大楼

科学园大道5号是新加坡科学园的最新建筑,也是亚洲领先的研发和技术基地。由副总理王瑞杰主持的5SPD项目重新构想了科技大楼的模型,以反映新兴电子商务和研究机构的需求。这座旗舰建筑将成为科学园重新开发的基础。

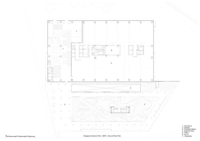
思锐建筑事务所的创始人Christopher Lee解释说:“1990年代的科学园模型,其建筑被未利用的景观彼此隔离,已不再适合当今更具社交性的工作空间。 在集群中,科学园大道5号的设计旨在确保公共空间清晰可见,便于访问,且配套各种便利设施”。这座建筑有一个三层大堂或“城市客房”,其中包含一系列层叠平台,包括咖啡厅、休息区和小礼堂。该空间专注于协作,谈论和联网。

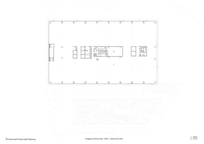
平面的设计旨在最大限度地发挥灵活性。标准层面积有超过4000平方米的开放式空间,无柱跨度为20米。中央循环系统采用高效的双层走廊,允许建筑被配置成单户或多租户使用。

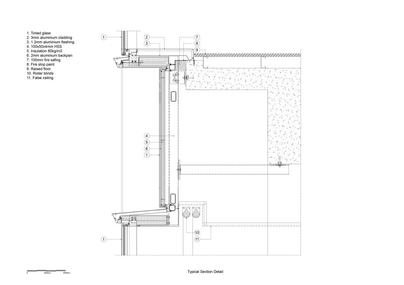
外立面采用了高性能玻璃,并镶嵌成交替的“手风琴”设计,在夜晚通过可重新编程的LED照明系统进行动画处理。 该设计将视觉和天窗玻璃结合在一起,以最大限度地扩大视野,同时减少太阳能增益。

相邻的停车场已被广泛的绿化和设施覆盖,包括运动馆。 最终将形成一个由六座大型新科技建筑群组成的共享园区。

这座大楼已全部租赁给初创企业Shopee电商公司,空间面积为2.6万平方米,将容纳3000名员工。







平面图


剖面图

典型平面详图

典型剖面详图

内容转自:梅吟雪飞凤
©版权声明:平台尊重作品版权,精选作品均已注明作者和来源,网友分享作品属于原作者所有。
若涉及版权问题,请及时联系我们删除或修改。如需转载、链接、转贴或以其它方式使用本稿,须注明来源作者。