户型:平层 | 面积:160㎡ | 风格:北欧 | 设计师:汪稼维

原始结构图

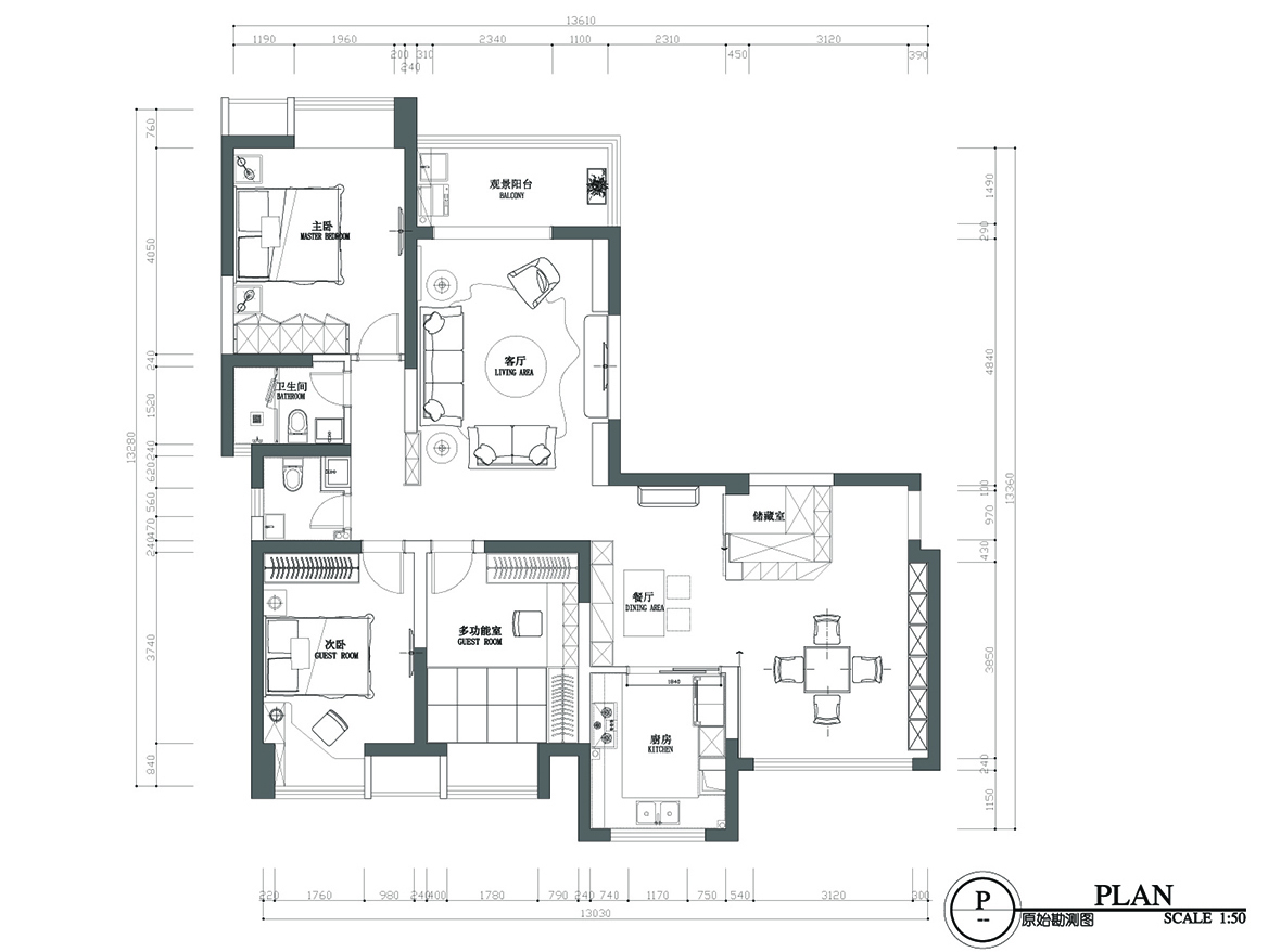
平面布置图
设计说明:这个空间没有过多的装饰,给人就是要简约而大气,平静大方,干净整洁,随性自由,却不是贵气!拥有自己独特的品味!本案在有限的预算的基础上,充分提炼出北欧工业风的精华,大面积深似海洋的蓝色与米色枪迷昂形成鲜明视觉对比, 经过抛光打磨上色后的地板重新焕发生机, 使空间几大基础材质相得益彰,恰到好处的软装与配饰起到画龙点睛作用,使整个空间营造出不落俗套,简约有型的国际风范。
▼装修效果图

业主说:
初次和设计师见面时,直接说明了我们夫妻不喜欢麻烦,想找一家靠谱的公司一次性搞定,我们比较喜欢简单温馨一些的风格。现场测量尺寸沟通了需求后就让设计师开始了平面设计,两天后到装修公司了解了方案现场确定了主材的选款,全屋的配色是设计中最重要的,一周时间多次的沟通终于把最终的方案确定下来了。等我们蜜月旅行回来,已经能看到自己新家的设计效果图。

本套面积为160平米,定位为“像北欧人一样去生活”,简房子以灰白作为主色调,地面选择灰色放块砖,打造视觉上的空间感,墙面采用白色,使视觉上具有层次感!米色的布艺沙发,木质的圆形茶几,错落的装饰画,细节处的点缀,充满了精致的北欧元素。
沙发是我在家具展定制的,随沙发赠送了抱枕。当初选沙发的时候,我婆婆希望选择皮沙发,觉得好打理,但我们夫妻二人都喜欢软软的布沙发,觉得会更舒适。最后二人在家具展上看中了这款米色布艺沙发,软硬适中。窝在里面看电视、看电影都很棒呢!几何形的地毯非常有特点,是在网上淘来的,另外旁边黄色的椅子也很养眼。

沙发背后,是一个开放式书房兼工作间,为了不枯燥同时又保持些私密,用了透明玻璃做屏风,没有完全设计成密闭空间。

装修前,业主与设计师沟通,就希望玄关能用鞋柜、换鞋凳和穿衣镜,全部都得到了满足,玄关墙上的挂钩可以很好地收纳衣服和包包。为了充分利用空间,设计师建议我们定制了穿衣镜谷仓门,背后是衣帽间,美观大方,也非常实用。

餐厅的设计非常简约,简简单单的三盏吊灯,餐桌椅和客厅的是同一款,窗帘用了黄色和白色两种颜色,整个餐厅一下子就生动了起来。餐厅和厨房之间进行了轻质隔断,因为老公比较喜欢,我不得不放弃了一直很喜欢的中岛设计,也算是一个遗憾。
▼施工现场图
装修是个麻烦活儿,大家都知道。问题在于不是每个人都懂,所以大多数人会选择全权交给装修公司负责,因为他们是专家。但这就不代表我们可以放手什么都不管,该把关的还是要把关。


我们要尽量选择知名品牌的公司,不要找小公司,更不要找游击队。设计师很重要,找一个能够沟通,愿意倾听你的想法,并懂得妥协的设计师。很多设计师把自己当艺术家,不愿听取客户的意见,可能方案是漂亮的,但由于不是他们自己住,一般很少有设计师会认真考虑实用性;作为住户,我们一住就是5-10年,中看不中用的房子会为你的生活带来诸多不便。