本案例的屋主喜欢美式风格的温馨自然,因为是两居室,空间有限,所以设计起来比较麻烦一些。但是为了屋主能够很好的了解屋内的设计情况,设计师设计了三维立体草图供参考,这样每个空间的细节怎样设计的就一目了然,如果你感兴趣,也来看下吧!
项目地址:望湖湾
项目面积:80㎡
项目户型:两居室
装修风格:美式风格

3D草图

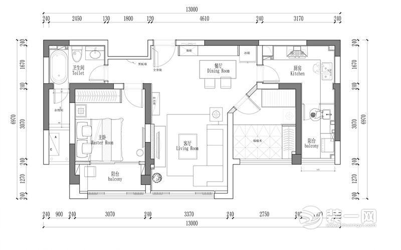
平面布置图

苏州望湖湾80平二居装修实景图,仿酒店美式风

苏州望湖湾80平二居装修实景图,仿酒店美式风

苏州望湖湾80平二居装修实景图,仿酒店美式风

苏州望湖湾80平二居装修实景图,仿酒店美式风

苏州望湖湾80平二居装修实景图,仿酒店美式风

苏州望湖湾80平二居装修实景图,仿酒店美式风

苏州望湖湾80平二居装修实景图,仿酒店美式风

苏州望湖湾80平二居装修实景图,仿酒店美式风

苏州望湖湾80平二居装修实景图,仿酒店美式风

苏州望湖湾80平二居装修实景图,仿酒店美式风

苏州望湖湾80平二居装修实景图,仿酒店美式风

苏州望湖湾80平二居装修实景图,仿酒店美式风
(联系我,可点头像、发私信哦~)
手机用户:如果您准备装修,可点开作者头像进主页,点击下方“免费设计”,即可直接预约设计师!
或者点击下方红*图色**片:免费报价计算器,看看您家毛坯房装修需要多少钱?