
一 起 设 计
一 起 品 味 生 活

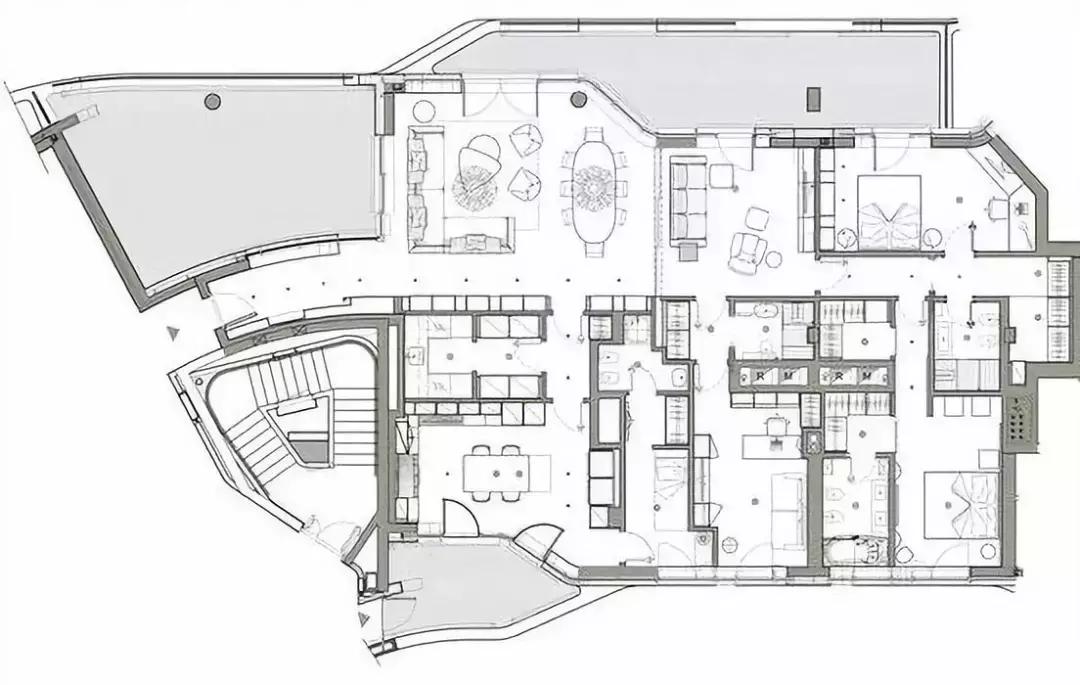
Citylife位于米兰繁华地区Fiera,由扎哈(Zaha Hadid)和里伯斯金(Daniel Libeskind)两位大师携手打造,作为意大利米兰新型现代公寓建筑的代表,其天际线被设计为一条曲折的流体线。住宅由7个不同高度的弯曲建筑组成,高度由5层到13层。

扎哈(Zaha)独特的建筑元素——蛇形弧度,运用在阳台和屋顶的轮廓,使顶层阁楼拥有供柔和优雅的形状,并配有大面积的露台。

Marco Piva负责综合楼中的一间公寓室内设计。Piva不仅着重功能性,丰富细节,还突出了其独特性和深入感。 特别是在家具的选择上,具有强烈的现代符号,将新元素与新设计结合在一起,没有了那些传统的过度装饰,大量选择运用了没有侵略性的当代中性颜色。
1
阳台
关键词:户外生活、绿色、曲线

阳台在这个公寓中扮演着非常重要的角色,在外观上决定着建筑物的整体造型。两个阳台从中间隔开。第一个主阳台作为交流空间,面向客厅,设计师选择攀爬的茉莉花,使中断露台(轴承)的柱子完全被绿色覆盖。
阳台还有一个设计小心机,灯具变为花盆,放在生长的绿色里,生机盎然。

第二个露台,作为用餐区,Marco运用植物做了分隔和遮挡,使该区域更亲密和私密。在这里,除了两把躺椅和一张咖啡桌之外,还放置了抽屉柜,以便在户外活动。
甚至晚餐也可以在室外进行,为了补充建筑天花板的照明,还曾添了装饰灯。


Summerset poltroncina的网格扶手椅


2
主客厅
关键词:光线、对比、几何

入口由背光定制的石膏板围成,通向大型的起居室。Marco Piva创造了与一个与自然光源形成对比的人造背光。墙壁的水平切割,给灯具和植物的垂直度带来更大的视觉影响。

客厅非常大,可通往两个露台,旨在接待客人或与家人一起放松。一套灰色沙发和三角形茶几,勾勒出高级的舒适感。

沙发后方的书架很长,它的几何设计,可以回忆起蒙德里安,通过封闭和开放的游戏组合,创造出丰富和空白的和谐对比。里面还放置了装饰灯,灯罩作为整个隔间,就好像它们是博物馆展出的元素一样,与书架的严谨性形成鲜明对比。


Rodolfo Dordoni 设计的Sullivan的三角形茶几,其设计氛围,建筑细节和各种饰面让Sullivan表现出舞台的效果,小小的茶几成为真正的主角。


KTribe F2落地灯

简单的白色纱质窗帘,稍微打破了光线,让整个室内建筑空间变得柔和,窗帘在每个方向都可打开。

同样是 Rodolfo Dordoni 设计的单人沙发Martin,如同一个倾斜的篮子椅,让座椅和经典设计的金属底座配合地非常舒适。 为了增加舒适度,鹅绒被添加到结构内部。

2
小客厅
关键词:材料、空间划分、中性色

椭圆形长桌放置在中央,连接着大客厅和小客厅,桌子表层涂上了一种锈色的聚酯漆,其反光质感与浅色织物的椅子形成相比。即使是室内装饰品,它也采用了中性的现代色彩,在座椅的舒适性方面也发挥了作用,让人浮想到从时尚界借来的织物质地和设计元素。



Bulles的泡泡灯,高低不同的透明玻璃球,配上亮晶晶的灯芯,为客厅营造出梦幻般的家庭氛围。

小客厅与主客厅之间安置了一个滑动隔板,完全吸音,在必要时划分空间,创造留出听音乐或看电视的空间。滑动隔板是一个反射式玻璃门,部分透明且反光,创造了一个视觉游戏。

3
厨房&洗衣房
关键词:干净、简约、功能

从大客厅可进入大型衣帽间/洗衣房,现代生活需要拥有一个非常干净,功能齐全,无菌,技术先进的空间,致力于房屋清洁和衣柜功能的系统。 里面容纳了隔间,烘干机,洗衣机,熨衣板等。


穿过洗衣房便进入了厨房,公寓的厨房在设计中发挥了基础性作用,这些设备都来自专业的食品和餐饮业,无论是在功能尺寸上还是设计美感方面,都为家庭带来了令人欣喜的创新。
除了普通的微波炉外,还有非常见的家用电器,例如鼓风机,蒸汽炉,酒窖,非常大的双门冰箱,都作为一个表面光滑的整体橱柜,小而精致。

Marco Piva在技术灯光和装饰灯的轨道上进行了很多设计。一方面,技术照明保证了空间使用的一系列特定需求,另一方面,装饰照明给人一种个性的舒适氛围。对于桌子和椅子,在业主的要求下,选择了高功能性的可拉伸餐桌。

4
卧室
关键词:柔软、私密、光照

从小客厅便可到达书房,以及两个主要卧室。卧室的设计就像是一间酒店套房,设有独立的衣柜和私人浴室。
双人卧室布置着两个衣橱,一个供男士使用,另一个供女士使用。而女士衣帽间改为放置在更衣室里,这样女士们可以在需要的时候关闭它,为自己留下私密空间,化妆和打扮自己。

由Marco Piva设计的床头板为皮革覆盖,并提供了柔软的衬垫,旁边搭配了涂漆衬垫。对于女士和男士两个抽屉柜,设计师使用了光亮漆门和不透明漆质结构元素进行对比,这种对比元素勾起了日本装饰的记忆设计,深受客户的喜爱。
同样在这个房间里,我们也可以看到技术灯和装饰灯光的双重搭配。

Philippe Starck设计的KTribe S2吊灯和KTribe W台灯,拉丝金属质感的暖色调为卧室环境带来温馨的时尚气息。


5
卫浴
关键词:透亮、几何对比、效率

双人间的浴室空间Marco Piva创造了一个“融入”式的架构,进一步强调了窗口的几何特性,选择形状相似的浴缸使得对比更加和谐。
另外,对洗手池进行拉伸,可为两人使用,两个水龙头使空间和功能更加有效。长长的橱柜即为镜面,充分满足了现代生活和爱美的需求。

单人间的浴室是一间花洒房,没有窗户,墙面选用了一种特殊的瓷砖,可创造出色调柔和的光面或哑光效果,在灯光的照射下,仿佛一层层的波浪。

Falper的Shape洗手池

书房的浴室则选择了温润的木材,创造出独特的卫浴环境。

Artemide的Talo Led Wall照明灯

Citylife公寓部分遵循了传统的庭院式布局,结构上的分隔和重组创造出了一个开放的空间,使每一幢楼与其它幢楼以及与整个环境和谐结合在一起。室内空间与露台既相通又有所延展,构成了一个完美实用的居家空间。
因此它既是欧洲城市复兴的典范,又很好地表达了新型年轻时尚的生活方式!