160㎡现代轻奢丨兰亭国际&居家“无边界”
深圳美迪设计院
户型:四居
风格:轻奢风
面积:160㎡
位置:深圳市
方式:半包
预算:24万
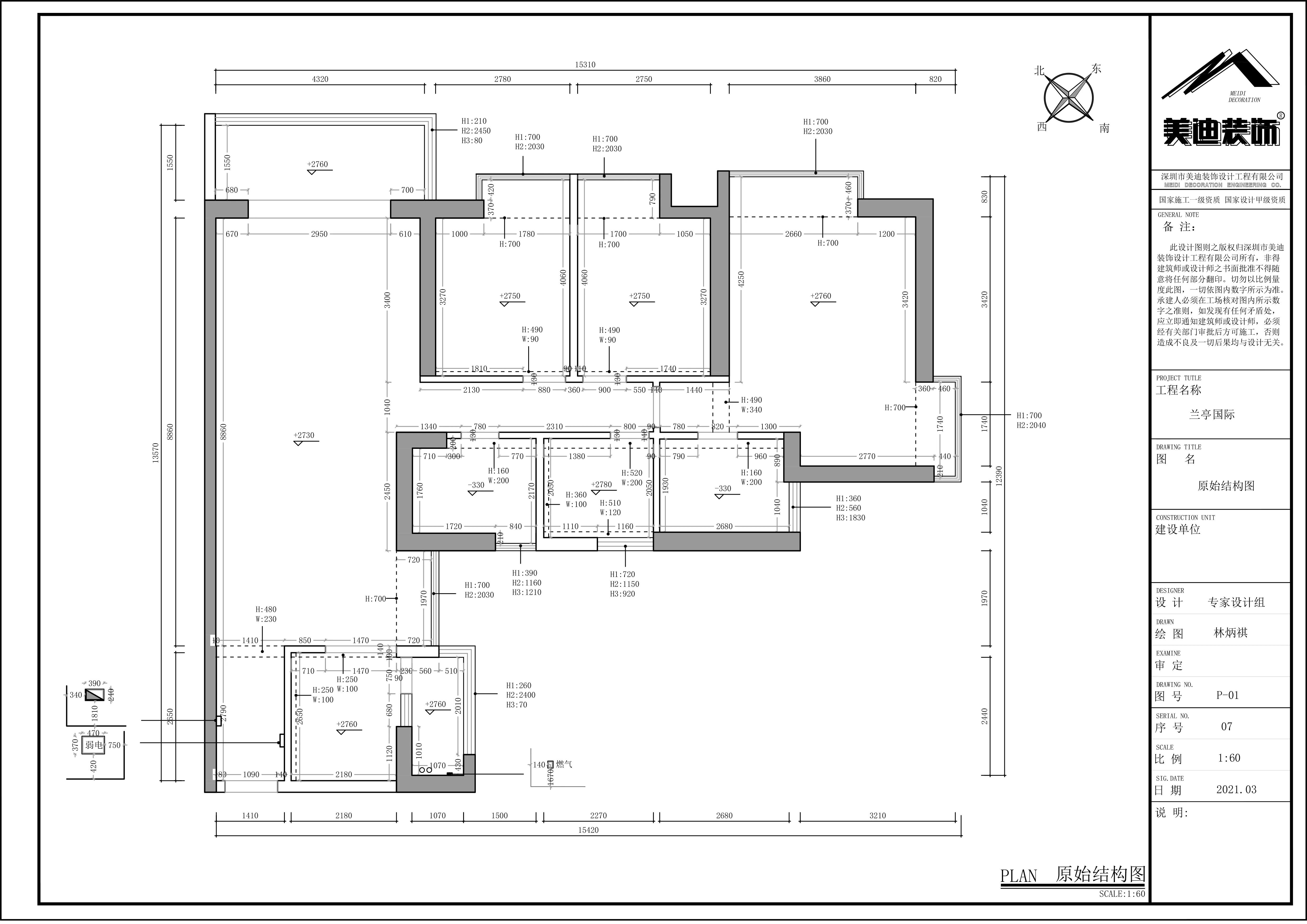
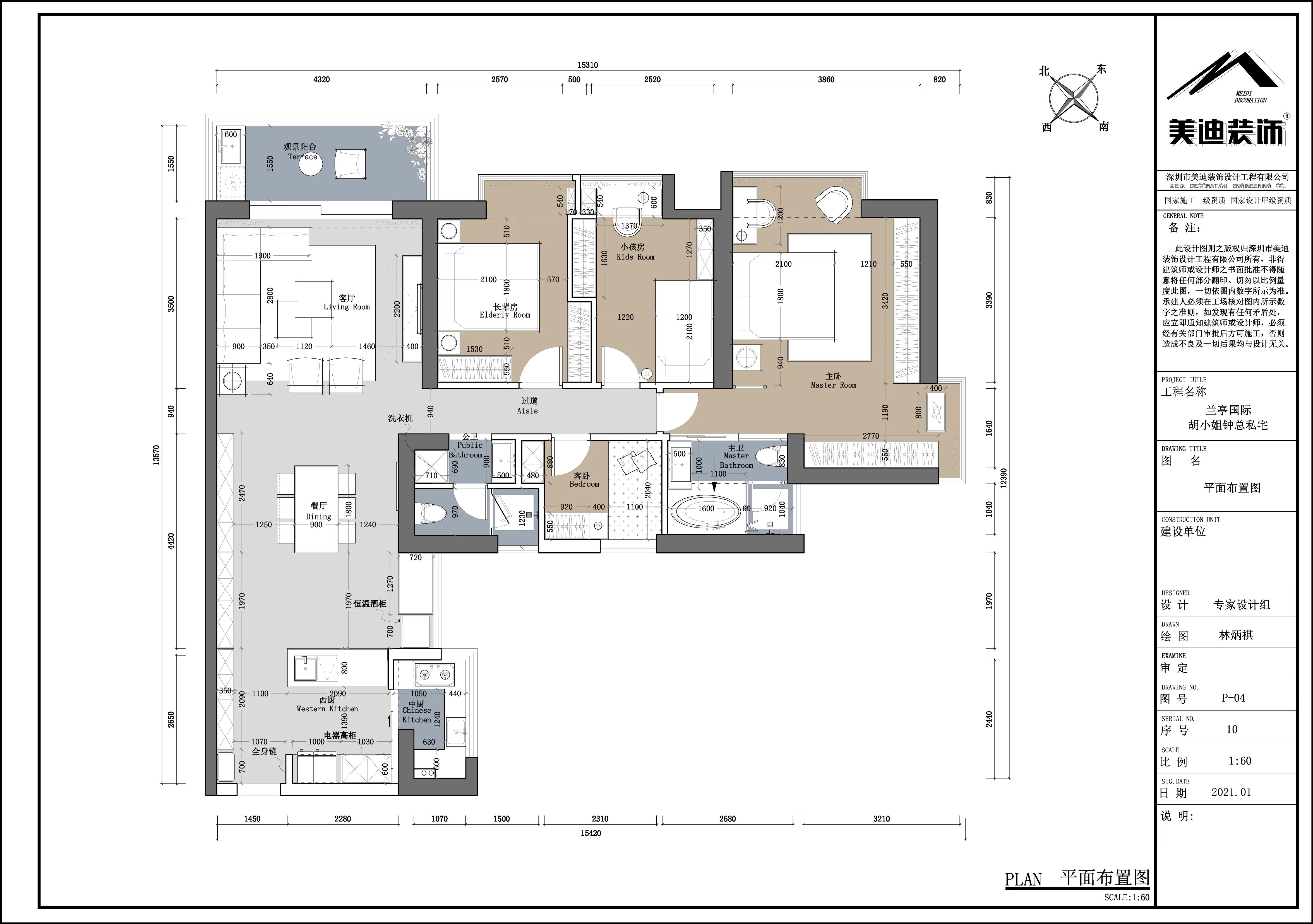
户型解析
业主需求:五口之家,四房配置,要求多储物,解决洗漱冲突,最主要是进门有大开间,客餐厅通透感好。

设计思路: 1.将中厨移向生活阳台,原厨房位置作为西厨,进门的视觉空间感与客餐厅相连接,实现大开间,通透感好。
2.公卫实现三分离,解决洗漱冲突
3.次卧巧妙利用墙体,做连体衣柜
4.主卧合理利用空间,做男女主人大衣柜,储物量增加

家的设计,不仅要满足当下的生活方式,更要留出一些弹性空间,去应对未来的更多需求。因此,设计师应站在更高的角度考量更多的可能性,从而才能做到,每一个细节背后,都有深远的意义。
设计师

姓名:林胜忠
职位:设计总监
从业时间:8年
作品:港铁天颂(荟港尊邸),卓能雅苑,金御半山,中海天钻(鹿丹名苑),山语清辉,宝生in town,半山悦海,星河银湖谷,银湖蓝山等擅长风格:现代简约、轻奢、欧式、中式设计理念:通过轻松随意的沟通过程,挖掘出客户深层次精神文化需求,实现作品落地

周秋林「周讛」
设计经历:八年
设计概念: 空间设计不是金钱堆砌
设计理念:艺术并不超越空间,不过会使空间更加美化。
擅长风格:设计风格多样化,也客户达到共鸣的设计才是好风格。
样板房案例:化州绿景国际花城-重庆丽都洋房 叠墅 会所-中海宁波等餐饮
案例:江西黄记煌-深圳龙岗万科大渔-珠海日日香-厦门芭堤心椰子鸡等
样板房案例:香山美墅-壹城中心-纯水案-山语清晖-半岛城邦-天麓别墅等
客餐厅

人间烟火气,最抚凡人心。香气馥郁的餐厅里,满足的是味蕾、照顾的是感情。开放式客餐厅空间中,流畅自如的洄游动线给生活加入更为温馨的互动模式,两代人、甚至三代人之间的情感,会在这里更上一层楼。

多层次灯光营造出静谧优雅的氛围,大理石和木质元素令空间质感升级。看似简单平静的客厅中,却蕴含着无穷魅力,赋予居者广阔的想象空间和生活态度。
主卧

郑板桥说过:室雅何须大,花香不在多。卧室因人而有了灵魂,因设计而有了高雅情趣。
儿童房

这是儿子的小天地,设计根据人的行动、坐、卧的习惯和尺度,充分利用的每一个空间,规划出学习区、休闲区、储物区、睡眠区。整个空间运用画面和灯光营造强烈的视觉冲击力,培养孩子探索钻研的志趣。
次卧

快节奏生活之下,也要留出片刻闲暇来放松自我。寻一舒适角落,看城市车马喧嚣,也赏人间灯火璀璨。