随着沌口近些年城市的发展扩张
区域人气高涨,人口迅速聚集
生活配套的配比情况自然成为大家关注焦点
特别是有小孩的家庭
对教育资源的关注度和期待值很高~
纵观沌口,开发区已经有神龙小学、实验小学、三角湖小学、一初中等优质教育资源,万家湖片区引进了经开外校,二中校区改造工作也在推进中...
但还有一个区域的备受关注,那就是后官湖大道沿线了。
永久薛峰片区目前只有一个薛峰小学,一个开发区四中,附近却有永久社区,薛峰社区两大社区,还有MOMA满庭春、中冶枫树湾、经开官湖澜岸(已售馨)等等大大小小的十几个新小区,近些年新增几万居民,无论是小学资源或者是初中资源都相当紧张。

据@武汉城市留言板的信息了解到,薛峰地块新建中学现已下达立项批复,正在进行初步设计,预计2020年底进场,2022年建设完成。薛峰地块新建小学现已下达立项批复,计划2023年开工建设。
(学校设立等信息以有关部门最终核准及审批文件为准)

//薛峰中学项目效果图
薛峰地块新建中学投入使用后,将现在的开发区四中改造还原为一所公办小学。
随着教育资源逐步兑现,后官湖片区的就学压力在很大程度上得到缓解,那么新引进的公办小学是什么来头呢?
规划中的经开实验小学后官湖校区(暂定名)为后官湖片区强势赋能
小编了解到,2020年8月,武汉怡置明鸿房地产开发有限公司(印湖云著)与武汉经济技术开发区(汉南区)教育局经过多次协商考察后,本着平等合作、共同发展的原则,就捐资助学经开实验小学后官湖校区(暂定名)事宜达成一致,并完成了1500万元的签约仪式。(学校设立、名称及就学等信息以学校官方发布和政府主管部门批准为准)

众所周知,武汉经济技术开发区实验小学是一所高起点、高标准的现代化全日制公办学校,学校师资力量雄厚,办学环境一流。现如今实验小学后官湖校区(暂定名)在武汉怡置明鸿房地产开发有限公司(印湖云著)的大力支持下,即将规划落地后官湖片区,为后官湖原本薄弱的教育资源强势赋能。


//印湖云著项目捐资助学1500万元签约仪式
薛峰学校初中部听闻也将于今年年底开建,如此一来,不仅能有效的弥补了后官湖教育资源学位紧的教育痛点,而且升级后的办学规格也让后官湖片区的教育资源有一个质的飞跃,该区域未来的发展也会越来越好。

//网络图
小编还注意到,武汉怡置明鸿房地产开发有限公司不仅助力推进实验小学后官湖校区(暂定名)顺利落地后官湖片区,在其背后的百年企业香港置地和海派国企光明地产,联手开发了——印湖云著。

//意境图
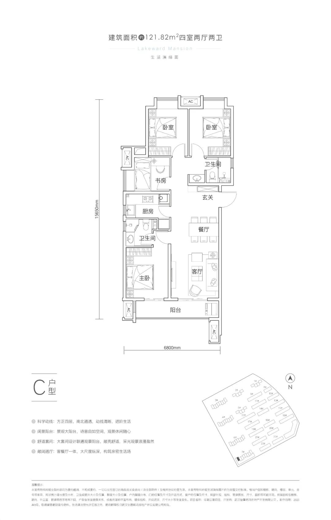
印湖云著项目地处枫树三路,背靠后官湖南岸,项目毗邻上述规划中的经开实验小学后官湖校区(暂定名)优质学府,高层交付新风地暖,建面约97.22平米和建面约121.82平米的户型是后官湖片区功能型较强的瞰湖(部分房源)3-4房产品。
据小编了解到,一般开发商参与投资引进的学校,对小区业主来说有一定的先发优势。未来,按照规划后官湖板块不仅拥有优质的教育资源,这里的居住价值也大大提升。
目前
印湖云著大美实景示范区现已开放
首推建面约97.22平米性价比之王
功能型方正三居室两卫,南北通透
以及建面约121.82平米功能型4房
四居室两卫,空间阔绰
欢迎大家前来品鉴!

▲建面约97.22平户型图

▲建面约121.82平户型图
〖地址〗
武汉经开后官湖大道与枫树三路交汇处