
在室内设计领域,为什么大家越来越多的使用彩平图?是单纯为了好看,还是能更多体现设计上的优点?当然是二者皆有。

彩平图相较于单纯线稿图,能让设计师在为客户讲解平面布局设计方案时,对空间功能划分一目了然,甚至还能在平面图中有风格的体现。那今天我们就一起看看几种较为常用的彩平表现形式吧。

01-基础色彩平

最基础的彩平,一般就是简单填充色块,家具部分基本留白或是进行单色填充,操作快捷简单,但是比单纯的线稿更丰富直观。






此类基础彩平的要点是首先确定主色调,一般选择饱和度低的高级灰或者同色系的不同灰色来进行色块的填充,同样也可适当使用不同的颜色来进行点缀,让画面更加丰富,但在家具上基本没有投影的体现,立体感不强。
02-仿真彩平

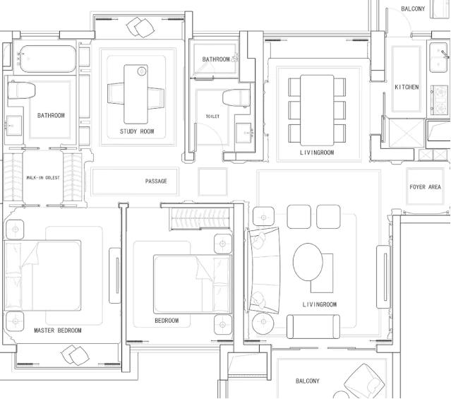
仿真类彩平在房地产行业中非常常见,面向所有人群,这类彩平简单易懂。整体颜色较重,家具是实体的表现,立体感强烈,是能直观体现平面布置的一种彩平。地面材质质感较强,更显真实,与家具呼应。




但室内设计不同于房地产行业,仿真类的彩平会显得重点太多而让人找不到重点,无法凸显设计且没有高级感。
03-质感彩平

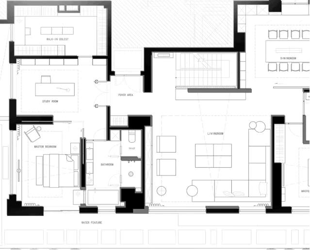
将基础色彩平和仿真彩平二者适当结合,做出既强调整体统一、画面简单利落,又注重真实感、立体感的彩平图。首先确定一个整体的冷暖色调偏向,用适当的颜色来加以点缀。地面可选择材质铺贴增加质感,适当选用一些实体家具更增添真实感。给家具和墙体加上投影,让平面图更加立体,同样这类彩平图也更能直接展现风格设计,是一种非常精致且具有优势的彩平表现形式。





看到这里你是不是对彩平图的不同表现形式有了一定的了解呢,这里小编为你准备了一套室内彩平素材大全,快来抱走为你的彩平图库添砖加瓦吧。
室内彩平素材大全
其中包含各类家具图块和地面铺贴贴图哦
资料总预览
【01】桌椅类PSD图块
【02】床PSD图块
【03】风格家具类PSD图块
【04】沙发PSD图块
【05】厨房设施、花卉电器PSD图块
【06】手绘类PSD图块
【07】工装类PSD图块
【08】卫浴洁具PSD图块
【09】中式家具、衣柜电视柜PSD图块
【10】JPG铺装贴图
【11】铺装类PSD图块
【12】其他类PSD图块
展示一:桌椅类PSD图块






展示二:床PSD图块




展示三:风格家具类PSD图块



展示四:沙发PSD图块





展示五:厨房设施、花卉电器PSD图块




展示六:手绘类PSD图块



展示七:工装类PSD图块




展示八:卫浴洁具PSD图块




展示九:中式家具、衣柜电视柜PSD图块




展示十:JPG铺装贴图









展示十一:铺装类PSD图块





展示十二:其他类PSD图块



▲以上仅为部分展示
全套资源 如何获取?
【免费领取】关注+转发 后私信“素材”
版权声明:我们尊重原创。文字美图素材,版权属于原作者。部分文章推送时因种种原因未能与原作者联系上,若涉及版权问题,敬请原作者联系我们,立即处理。