8月听说就要发发发,城东双地铁口楼盘大降价,但是,这回赚得真“实惠”的,却不一定是买家。

早在上周就听到南二环东延占地面积五万三千多平米的大盘富力城大降价,一次性放出了50套特价房,价格只要12500元上下。
但经过石门楼市探盘小队调查后才得知,这50套房并不是你想要就能要的上的。
【一】
50套特价房咋样?
相信很多朋友看到12500元的价格,心里多少都会有疑问:特价房怎么来的?靠谱吗?能买上吗?
首先,据内部人员透露,这次的特价房全部来源于销售代理公司的存货。当时代理公司负责对富力城二期C1、C2两栋楼的销售,最后双方委托合同到期,剩下了约50套住宅并未售出,又赶上8月份房企行业的“期中”大考,为了报表更加“丰盈”,所以推出了这一大力度的优惠。

乍一听,理由似乎合情合理,但细一想似乎哪里又有些端倪。关键点就在于为什么代理公司最后会剩下约50套房?事实的真相也许只有一个——行情不好。
一方面石家庄楼市的确受今年疫情与楼市调控的影响,有些低迷。另一方面就不得不提今年五月份,富力城业主质疑房屋精装修质量的维权活动所带来的负面影响,其实早在去年石门楼市就富力城“造梦”问题也进行过报道,所以精装质量到底如何,多少让人有些忧虑。
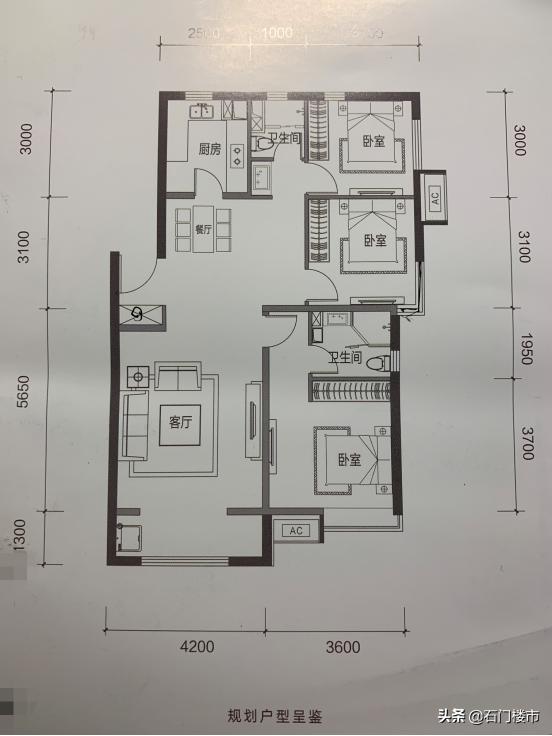
那具体产品如何呢?我们拿到了特价房中一张C1楼130㎡户型图,该户型位于东西楼头,整体来看户型较为较为狭长,南侧阳台加主卧开间只有7.8米,采光较为一般。当然中间的次卧为了采光,专门将拐角的墙体换成了玻璃窗,但效果差强人意。

要知道在石家庄同面积的户型,有不少房企都做的更好,不只南向阳台能做到6米以上,双阳卧室也必须安排。
因此就特价房产品户型来看,虽然其也做了东西两侧的动静分离,但整体产品设计还是较为落后。
从整体楼栋位置来看,购买了C1楼的业主,可能要略微更具优势。南侧的C2楼因为临近项目内置学校,可能正常开学后将来会受到一定的噪音干扰。
价格来看虽然单价号称12500元左右,但是总价最后还要再加3万的优惠购买费用。
如此,每平米还要增加几百元,至于为什么要购买优惠,你懂得。
据悉,本次50套特价房,早早就已经放出风声,当被市场购房者大范围知晓时,排卡早已排满,一经开售即告罄。
虽然价格确实诱人,不过没买上的朋友也不要太遗憾,毕竟这是入门的“坑”,还是低门槛的“漏”目前还未曾可知。那不如我们先回过头来看看富力城这个项目。
【二】
富力城咋样?
提到富力品牌大家并不陌生,全国知名大房企。而富力城的最大天然优势,就是他最大的卖点双地铁口,从位置上来看,绝对也算一手不错的牌。
地铁三号线南豆站与正在规划的地铁六号线换乘站就在项目的西北角,假以时日,必能通达全城,价值大增。

北有珠江大道南有南二环东延,都是将来通达市区的畅通大道。
周边配套琳琅满目,项目斜对角就有北国、永辉两大商超,未来还有富力自己的商业配套,满足日常生活绰绰有余。
项目隔街相望,就是瀚林学校,北边更有私立一中、开发区第一二小学,学习氛围足够浓厚,项目内有建有幼儿园、小学、初中,孩子上学问题不大。

想运动,没问题,富力更给业主建设了文体活动中心,一楼游泳二楼篮球,想锻炼什么应有尽有。

往里走园林绿化环境优美,塑胶跑道脚感舒适,更贴心的设计了儿童游乐区,甚至给爱宠铲便便的塑料袋都有准备,楼间距50米左右,直接观感非常舒畅。
看到这里,诸位看官也许也开始“入梦”,觉得这一切不都挺好吗?但不知您是否发现,最关键的一项还未提及,那就是产品。
房子不是用来炒的,当然也不是用来看的,最终要落实在住。产品好才能住的好,毋庸置疑。
本次探盘我们有机会进入了已经交房入住的一期项目107㎡户型,但房屋质量知微见著,总觉得在心里并不那么舒服。
首先在走进单元门的路上,要经过花园小路,而这条路上使用的地砖,竟然是最为常见的灰色砖块,没错就是下雨天走在人行道随时会一踩溅出水花的同一款。对于一个精装交房的小区,是否有些敷衍?

再吹毛求疵一点,本周的两场大雨好像让刚刚交房的墙体也更脏了一点,甚至外立面有些小脱落,而入户大堂的大理石地砖也有的地方参差不齐,逼死强迫症。

好了,以上毕竟只是一些细节,我们再上去看看。每栋楼都是两梯四户,上下楼较为方便,进入电梯间,还需要推开一扇较为厚重的消防通达大门才能进入到家门口。东侧则是链接连廊的大门,一拧即开。

门锁为密码加指纹,安全归家,进入到室内,在没放置任何家具的客厅里,我的第一感觉是:为什么层高这么矮?据介绍是因为精装做了吊顶,但这让本来就不太宽敞的客厅,变得更为压抑。

107㎡做成3室,每个卧室的大小起初是有心理准备的。虽然南侧有双阳卧。但真正进入其中,再加上厚厚的吊顶,真实体感更为狭小局促,三个卧室仿佛变成了两个大点的书房和一个小点的书房。

接下来我们说说一直被报道吐槽最多的连廊。首先从次卧看向连廊,15层的高度看上去还比较正常,并没有非常挡视线,但是如果邻居经常在连廊上晒被子就另当别论了。再者对于次卧的隐秘性确实存有一定的影响。最后,作为资深恐高份子,180CM的身高站在连廊上,扶着较低的栏杆真心觉得不太安全。当然如果是低楼层的连廊影响就另当别论了。

总体来看,富力城的优势是有的,但是产品的设计以质量还是有待商榷的。

【三】
项目未来咋样?
虽然目前在售或者已售完的项目产品差强人意,但富力城项目的双地铁口位置优势,从未来发展来看毋庸置疑的。

在本次探盘中,我们还了解到。9月份,富力城项目还会有新动作,二期项目南北两侧地块,即将开拍。如果富力顺利拿下,将打造富力最新产品项目。据说会比目前在售的项目高出一个档次,同时价格也将有所提升。
但说一千道一万,梦造的再好,最好还要落于实处。房子是用来住的,也请外地来的大房企,能起好带头作用,是骡子是马真正拉出来溜溜,让咱庄里人真正打心眼里挑起大拇哥,而不是最后落下一个店大欺客的名声。