真没想到集装箱还能改成这样!
集装箱大变身
在美国有个公司名叫
工业僵尸(Industrial Zombie)
一家集成设计、工程、制造为一体的公司

工业僵尸,不光名字酷,做的事情也很酷,专门针对工业废弃厂房和集装箱的再利用,不仅有完美的结构更能达到很高的设计美学。
1
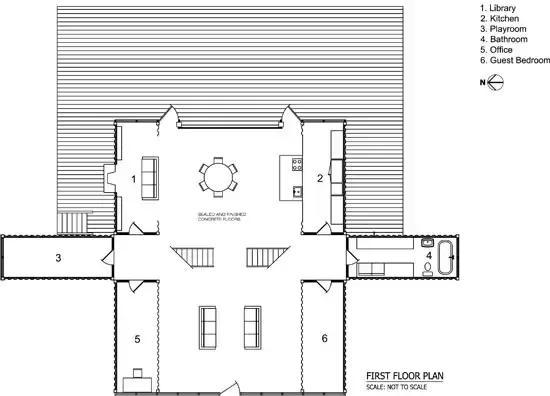
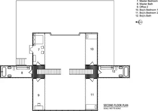
12个集装箱变身大宅

通过一个玻璃幕墙和钢结构将12个集装箱罩在里面,内部采用双直跑楼梯,内部的客餐厅在一个大的共享空间中。

一楼布置了有壁炉的起居室、开放式的厨房等。


二楼卧室的壁炉与一楼的起居室在同一轴线,室外满是就是葱葱的绿色。




2
集装箱改成9室一厅

工业集装箱将一个19世纪的小屋装在里面,现代工业和传统建筑的对撞。

设计师将9个小屋像蜂巢一样布置向上世纪50年代的工业标准化住房致敬。

房间里的小屋是19世纪时由一个来自京都的日本园艺师建造而成,有着特别的东方风格。



室外的壁炉可以让人们在傍晚聚在一起谈天说地。


3
6个集装箱组合大宅

6个集装箱,根据地形建造在山上,两个体块中间自然形成一个院落。房间有着大大的落地窗。









4
集装箱LOFT

通过几个集装箱的叠摞,房屋中间空出一个可开放的餐厅,挑出的屋檐用帘子围合形成一个露台。







5
集装箱内的汽车影院

把车停在家里,看一场汽车电影是怎样的一种感受,在这样家里的车库合房子连接在一起。集装箱上有一个大屏幕。会客的区域就在“影院屏幕”的下方。



超大的主卧卫生间里面看到的是屏幕的正面,小时候想看到露天电影的反面,现在汽车里就可以看到了!




