2020年,谁将打响狮山板块的第一枪,大概率上在仁恒运河时代和滨河四季云庭之间产生。滨河四季云庭的即将开盘从2019年喊到了2020年,仁恒运河时代在近期也被爆即将首次开盘。
据小胖看房团群友爆料,狮山地王项目仁恒运河时代马上要取证了,其备案均价在4W以下,可能在3.99W。当然,这个备案均价还是要看最后的官宣,不过限价之下,对于购房者来说,很是友善了。
对于仁恒运河时代而言,熬了3年多,压低成本,狮山地王恐怕还是要面对自己“亏本”卖的命运。

苦熬三年多!又一“骨折盘”
2016年9月23日,仁恒以16.36亿竞得苏地2016-WG-63号地块(即为现在的仁恒运河时代),成交楼面价31050元/平,一举成为新区地王。10天后,苏州限购升级,苏州楼市急速冷冻。从2016年等到2020年,仁恒没有等来限购的松绑,反而在今年迎来了更为严格的7.24新政。

苦熬三年,仁恒运河时代至今仍是狮山板块地王,高位站岗的仁恒在新的一年终于熬不下去了。据小道消息,仁恒运河时代已在申请预售证,预计近期就会开盘,备案价预计在3.99W,毛坯交付。3.1W的地价成本+3年多的时间,这一价格算得上是“骨折价”了,苏州的地王真不好当!

狮山的地王,能成标杆吗?
对于仁恒,苏州人总是有很高的期待,有着“地王”光环的仁恒运河时代自然期待更高。新区顶豪、狮山标杆,真的是这样吗?
从地块自身条件来看,仁恒运河时代并不是当下顶豪常见的低容积率低密度项目,地块本身要求容积率小于等于2.1,建筑密度大于等于30%,绿化率大于等于30%,算是普通高层住区的配置。

从产品类型上来看,仁恒运河时代类似于中海上华琚,两者同样是高层,建筑面积都是大面积,但不同的是中海上华琚为装修交付,仁恒运河时代为毛坯交付。

目前,仁恒运河时代已经处于准现房状态,项目已经基本处于实景状态。从外立面看,仁恒运河时代的颜色类似于高级灰,整体来看这一色调非常显眼,非常与众不同。

从地理位置上来看仁恒运河时代也并不属于传统狮山核心圈,项目位于高新区狮山(横塘)街道环山河绿化地北、运河路西,我们可以对比狮山板块其他新盘来看:

而仁恒运河时代更为人诟病的一点是项目的未来对口学校。

与仁恒运河时代一路之隔(横山路)的为仁恒棠悦湾,其小学为苏州高新区成大实验小学。


板块二手房:差异较大
限价盘之所以广受追捧,除了价格原因,也是因为限价盘升值潜力空间的想象比较高。但苏州新房目前限售3年,未来的升值如何,还需市场走势判断。
从目前二手房价格来看,狮山板块均价在39067元/平左右,这一价格基本与仁恒运河时代爆料价格持平,当然狮山板块各区域有所差异。

目前狮山板块价格的第一梯队是龙湖狮山天街和荷澜庭,学区为新区实验小学珠江路小学和新区实验初中金山路校区。

而仁恒运河时代所处区域二手房目前最高挂牌价为仁恒棠悦湾,挂牌价在4.2W左右,且该小区为装修交付。以仁恒运河时代3.99W的爆料价来看,该项目只能算是限价盘,至于倒挂与否,则仁者见仁智者见智。
仅从当前二手房来看,仁恒运河时代所处板块竞争力与狮山“龙头”存在着不小的差距。

从未来升值潜力来看,仁恒运河时代或许够呛!
一方面该项目的户型均为大户型,升值空间小,速度慢,另一方面从目前该区域新房上有仁恒运河时代和滨河四季云庭两大项目,未来二手房会有3大仁恒楼盘(仁恒运河时代、仁恒棠悦湾、滨河四季云庭),而且对口学校的不确定性也可能会限制未来项目的竞争力。

不愁卖!狮山不缺客户
当然仁恒运河时代大概率是不缺客户的,2019年以来,狮山板块新房基本开一次清盘一次,实打实的热销。上瑞阁首推,中海上贤府、保利月映庭,狮山板块新盘根本不缺客户。
当然狮山板块的置业门槛也较高,以仁恒运河时代来看,项目打造的都是大户型,分为平层和复式两种。分别为建筑面积约142平,165平、168平、195平、203平,其中建筑面积142平仅有16套。
如果按照4万计算,项目142平总价在568万,但是这个价格在顶级豪宅市场,算是便宜的了。因为是毛坯交付,所以我们看看项目的户型。
建筑面积约142平

建筑面积约142平为三房两卫户型,南北双阳台设计。需要注意的是客卫部分做的是“类套房”设计,但略显得有点鸡肋。比较有特点的是,该户型内卫浴缸处有270°环景窗。

建筑面积约165平户型与142的户型整体相差不大,只是多了一个横厅设计。

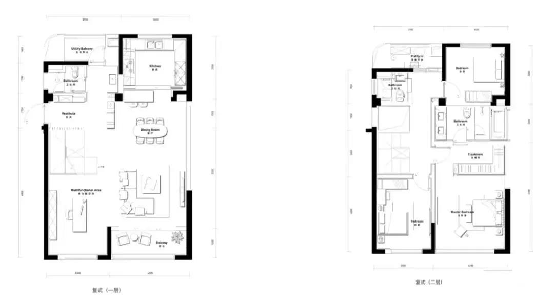
建筑面积约195平做的是复式设计,动静分区明显。同样是南北双阳台,二楼主卧为套房设计。

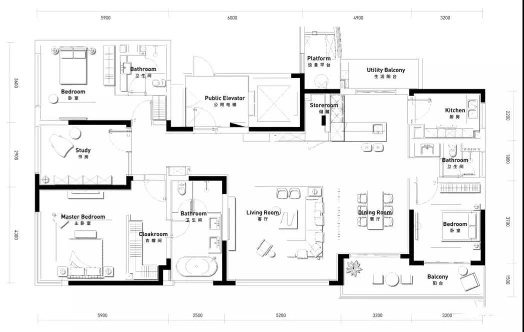
建筑面积约203平为四房,双套房设计,大平层的尊贵感。
整体来看,仁恒运河时代的户型算是中规中矩,并没有什么大的缺点,毕竟是3年前拿的地,比较遗憾的是不是装修交付,毕竟装修算是仁恒的王牌之一。
- End -