裕华区东南南二环板块改善住房,沉浸城市文化,88㎡-136㎡户型即将开售。本期乐居聚焦万科·翡翠四季,对项目进行全面的解析。
区域概述
项目位于裕华区南二环东延线与仙台街交口南,是裕华区目前重点开发的地区。裕华区位于石家庄主城区东南部,有裕华万达、欢乐汇等商业配套,各大商圈互相呼应,且商业体系较为完善,氛围浓厚,生活品质较高。
裕华区的地理位置在石家庄相对较好,近三年均价在1.5w元/㎡-1.7w元/㎡区间,与石家庄近三年整体均价1.4w元/㎡-1.6w元/㎡元相比,价格较高,且价格波动较大。
与石家庄其他行政区相比,裕华区约有60个左右在售楼盘,而新华区、长安区和桥西区有30-40个左右在售楼盘,由数据可见,裕华区新房的供应量相对较大,相对而言人口密度较大。

板块概述
项目位于裕华区东南二环板块,板块内配有石家庄市人民医院、石家庄市第四医院东院等为居民的健康、医疗带来便利。
与之相邻的宋营板块内有北人旗下的益新购物中心,人流量大,场内店面齐全,可以满足相邻板块间的购物需求。
该板块内南二环连接翟营大街、建华大街、体育大街等多条主干道,沿线可到达儿童医院、裕华万达广场、怀特商业中心等多个地点,且南二环西通鹿泉区,交通通达性较好。
产品特色
项目总占地141亩左右,总建面约28万方,容积率2.48,绿地率35%,车位比1:1.2,有洋房、小高层、高层三类产品。项目分为四个地块,目前B地块产品即将开售。
该地块设计花园主题园林,洋房穿插其中,各地块之间持卡互通,业主可活动范围较大。现代简约式风格,打造艺术归家大道,道路拐角十字街区处设计街心公园,营造归家仪式感。酒店式归家大堂,“财积福聚”的设计理念,引水入宅,绿树环绕。
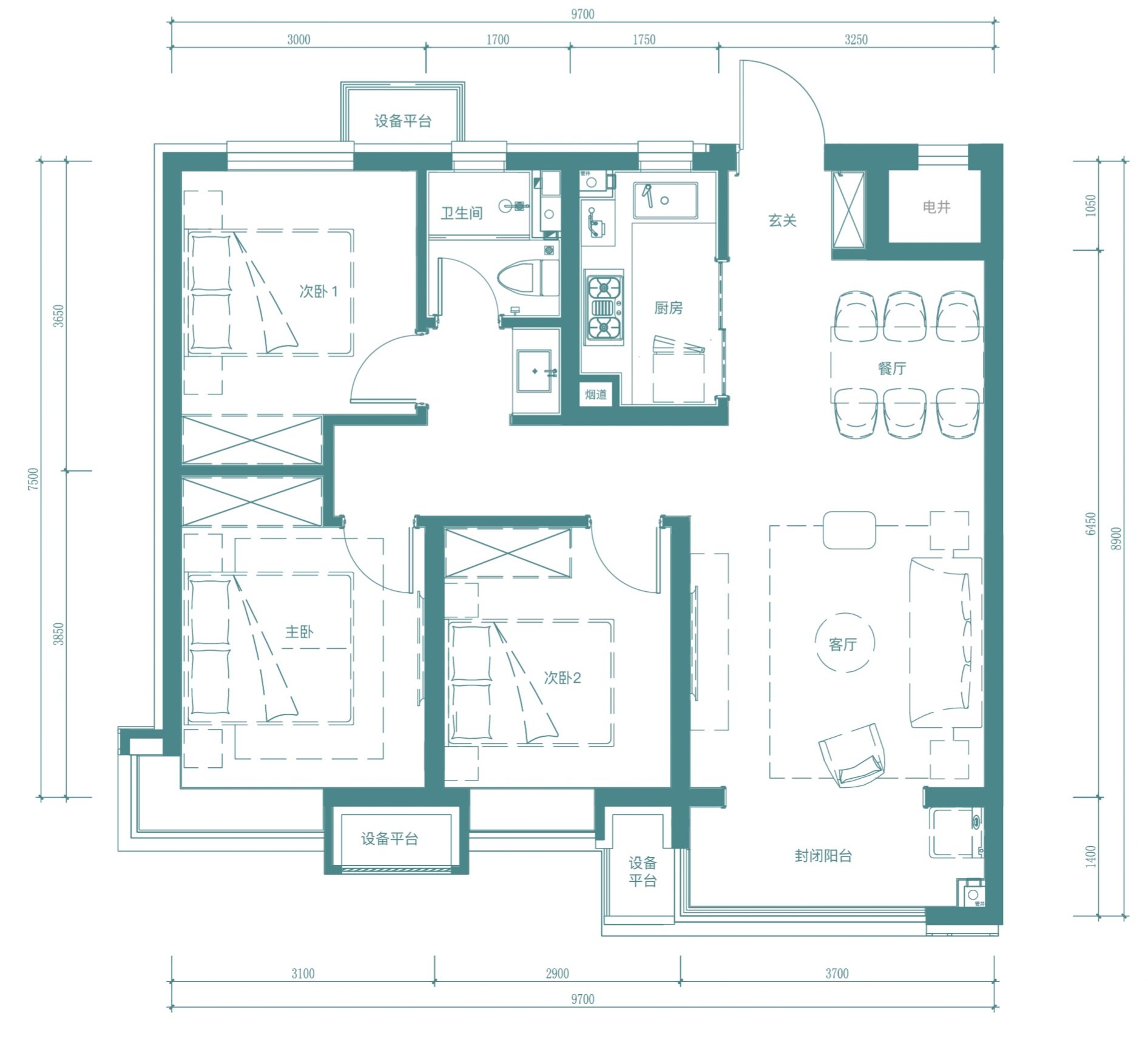
户型
户型一:104㎡

104㎡三居,面宽约10米,进深9左右。规划为三室两厅一卫,动静分区。适合一家三口在此置业。
客厅约8㎡,可放置沙发、电视柜等,基本满足待客需求。封闭式阳台与客厅相连,安装上下水,家务动线流畅,私密性相对较好,但采光稍显不足。
厨房面积约6㎡,独立设计,保证居住空间的卫生。L型厨房设计,可安置冰箱,操作方便。餐厅与过道相接,面积9㎡左右,空间相对充足,可容纳4-6人同时就餐。
南向两间卧室,北向一间卧室,分布相对集中,动静分区,主、次卧面积相差不多,约为12㎡,居住更加舒适。卧室外侧皆搭载设备平台,方便空调安装。独立明卫,三段式分离,独立水池,环境较为卫生,有效防止细菌滋生。
总体来说,户型方正,动静分区,私密性较好。
户型二:136㎡

136㎡三居洋房,面宽约10米,进深11米左右。规划为三室两厅两卫,来客动线流畅。适合本地中阶改善购房者置业。
客厅15㎡左右,活动空间较为充足。阳台连接次卧与客厅,主客分区,私密性较好,同时满足采光需求。
封闭式厨房,面积8㎡左右,L型设计,可根据需求添置吧台,中西合璧,可选择性强。餐厅约7㎡,相对独立,可放置圆桌或方桌,可容纳人数在6-8之间,待客空间较为充足。
分离式卧室,南向主卧套房设计,明卫,干湿分离,但相对封闭,通风效果欠佳,且正对主卧房间,建议添加隔断。
北侧卧室12㎡左右,可分作儿童房或老人房,与主卧相对,方便照顾家人。南向次卧与客卫相连,访客动线流畅,保证业主空间的私密。
总体来说,户型功能丰富,主客分明,互不干扰。
自驾
项目位于南二环与仙台街交口南,南二环贯穿石家庄主城区,西至鹿泉,东达藁城,串联翟营大街、建华大街、建设大街等多条城市主干道,途经裕华万达广场、省儿童医院、空中花园等地点,但城市干道早晚高峰易堵车,需要提前或错峰出行,交通通达性较好,出行相对便捷。
轨道交通
项目距离地铁3号线的西仰陵站约3公里,直达到达南王、塔谈等地,可在石家庄站换乘2号线、新百广场站换乘1号线,轨道交通出行较为方便。

公共交通
项目距离西京北公交站约400米,可乘坐56路到达医大一院、二十二中、跃进路小学等地,发车间隔约12分钟;乘坐83路可到达中科驾校、信誉楼裕华店、省杂技团等地,发车间隔约20分钟;乘坐290路可到达赵卜口、世纪公园、东明家具商城等地,发车间隔约50分钟。早晚高峰乘车人数较多,需提前出行。

商业配套
项目自身配备商业广场,36524便利店、湘宴餐厅、黄二烧烤等店面将入驻,满足居民餐饮、购物需求;4公里左右有益新购物中心,内有麦当劳、名创优品、北国超市等店面,满足居民休闲需求。

教育资源
项目周边医疗配套较为健全,距离项目3公里左右有石家庄市妇产医院东院区,可以保证业主的生产安全;距离4公里左右有宋营镇卫生院,综合性诊疗能满足居民的日常疾病治疗。

教育资源
项目距离石家庄高新区西仰陵小学2公里左右,距离精英中学、石家庄翰林学校4公里左右,涵盖小学、初中、高中,教育资源较为充足。

价格现状
万科·翡翠四季目前预估价格在1.5w元/㎡,与竞品翡翠书院1.9 w元/㎡相比价格较低,与五合锦江府1.4 w元/㎡相比价格较高,和裕华区9月均价1.5w元/㎡相比价格相当,处于中间水平,价格优势不太明显。
价格潜力
项目位于裕华区东南二环板块,是裕华区目前重点开发的区域,是裕华区未来发展中心,有较大的发展前景。
项目位于南二环东延,连接鹿泉区与市区,贯穿石家庄,交通较为便利;与之相邻的宋营板块内有北人旗下的益新购物中心,人流量大,场内店面齐全,可以满足相邻板块间的购物需求,周边配套能满足居民日常生活所需。总体来说该项目的价格浮动相对稳定。
项目亮点
一、生活配套齐全 未来有待发展
项目自身配备商业广场,且周边医疗配置能够满足日常疾病救治,项目周边涵盖小、初、高三阶段学校,教育资源较为充足。
二、户型方正 主客分区
户型空间相对充足,满足待客需求;动静分区,来客动线流畅。卫生间三段式分离,有效防止细菌滋生,户型设计灵活性较强,业主可发挥空间大。
三、紧邻城市快速路 交通较便捷
项目板块中南二环贯穿石家庄主城区,西至鹿泉,东达藁城,串联翟营大街、建华大街、建设大街等多条城市主干道,交通通达性较好,出行相对便捷。
四、城市文化主题园区
该地块设计花园主题园林,现代简约式风格,打造艺术归家大道,道路拐角十字街区处设计街心公园,营造归家仪式感。酒店式归家大堂,“财积福聚”的设计理念,引水入宅,绿树环绕。