
注:第 1—18 条为强制执行的施工技术标准;
第 19—24 条为推荐执行的施工技术标准。
1、 砼吊板、墙、版一次浇筑砼模板处理技术措施




压板成型照片


地库外墙未使用压板砼成型效果


地库外墙使用压板砼成型效果
2、 地库外墙止水钢板处施工缝浇筑砼技术措施

3、 后浇带浇筑砼技术措施


后浇带模板

后浇带处砼
4、 屋面浇筑砼技术措施

5、 外填充墙与挑板(造型处)的技术措施

6、 硬景防裂分仓技术措施

7、外墙对拉螺栓洞口(架子及悬挑槽钢孔)封堵的技术措施


▲一、塑料套管清除(用杆件工具冲出或电钻钻出)


▲二、分内外两次采用干硬性防水砂浆塞实螺栓孔 、两侧压平抹光
注:外墙架子孔、悬挑槽钢洞口等封堵执行此步骤。


▲三、外墙外侧涂刷 1.5mm 厚 JS 防水涂膜,覆盖半径≥孔外边的 30mm。
注:外墙架子孔、悬挑槽钢洞口等封堵防水执行此步骤。
8、 现浇结构楼板裂缝预控施工技术标准
一、 建筑材料的质量控制:
1、砼:按图纸约定的砼标号(骨料粒径)进行施工,粗骨料粒径应为 5—30mm连续级配,严禁使用针片状粗骨料骨料,砼用水泥需采用水化热较小的普通硅酸盐水泥以减少砼收缩裂缝的产生;
2、钢筋:按图纸约定的钢筋规格、型号进行施工,施工过程中当钢筋的截面积不变时,不得擅自使用直径较大的钢筋代替直径较小的钢筋,人为减少钢筋的表面积,确实需要钢筋代换时,尽可能采取以小代大的代换方式。
二、 施工过程质量控制
1、保证钢筋砼楼板上层钢筋网(负弯矩钢筋)的砼保护层厚度,楼板钢筋及分布筋间距应不大于 200mm,最好控制在 150—200mm 之间;
2、≥300mm 预留洞口需按相关图纸及规范要求设置加强钢筋,砌筑墙体下无梁时,应在楼板内设置加强钢筋;
3、砼浇筑时,振捣时间要掌握好,不得造成过振或漏振,楼板尽可能采用平板振捣器;
4、禁止砼加水浇筑(尤其禁止司机加水,现场需严控,前后台必须全过程旁站监督);
5、须严格做好浇筑砼后的养护工作,14 天;
6、应根据工程结构形式和有关规定合理确定混凝土浇筑方案,保证混凝土密实,不得随意留置施工缝;
7、合理安排各工种交叉作业,减少后期施工人员对钢筋的踩踏,在人员必须行走和浇筑进行的部位,需铺设临时简易通道,并尽可能设置在框架梁部位;
8、楼板内敷设电线管宜避免交叉,必须交叉时宜采用接线盒形式进行过渡。
严禁三层及三层以上管线交错叠放;必要时宜在管线处增设钢丝网等加强措施;
9、禁止提前拆除悬挑构件及楼板的支撑系统及模板;
10、混凝土强度达到 1.2N/mm2 前(砼浇筑完成 12 小时内),不得在其上踩
踏、堆载或安装钢筋、模板及支架;
11、应将钢筋等建筑材料放在距墙边 600mm 或 800mm 的位置处(门架、模板体系支撑处及楼板负弯矩钢筋范围内),以避免堆放材料超过模板设计荷载和施工荷载对楼面板产生较大的撞击作用;
12、禁止将搭设脚手架用的管材及扣件直接放在楼板上。
三、 裂缝的修复补强
1、采用灌注环氧树脂结构胶修复楼板裂缝;
2、对于厨房、卫生间等湿度较大的房间在楼面砼完成终凝之前刮一遍 1:1水泥 801 胶胶浆,排架施工之前,严禁堆放任何材料、上人及其它施工荷载,采用灌注环氧树脂结构胶修复楼板裂缝。
9、 地暖工程细石砼楼地面施工技术标准
一、 原材料
(一)、砼配合比
1、水泥:楼地面施工宜选用水化热低的普通硅酸盐水泥(各种水泥性能见下表)。
C20 砼其最大水泥用量一般不宜超过 350kg。当采用现场搅拌混凝土时,塌落度一般控制在 40-80mm;商品混凝土塌落度一般控制在 100-120mm。
常用水泥性能比较表

2、细骨料:选用Ⅱ区中砂。
3、粗骨料:在泵送条件下选用连续级配细石,以减少混凝土收缩变形。
4、含泥量:石子的含泥量控制在 1%以内,沙的含泥量控制在 2%以内,不符合要求的材料严禁进场。
5、水灰比控制:楼地面施工砼配合比设计其水灰比宜控制在 0.5 以下。
6、商品砼粉煤灰掺量控制:试验证明,砼中掺加粉煤灰后其抗剪强度、粘结强度有所降低,这对楼地面施工不利。同时掺加粉煤灰的砼其抗冻性能有所降低,此项性能对楼地面冬期施工提出了更高的冬期保温和养护要求。
(二)、防裂钢筋网:应设置间距不大于 200mm 的焊接钢筋网片,钢筋规格控制在Φ4-Φ6,保护层厚度不小于 15mm。
二、特殊部位处理
1、门口位置应设置伸缩缝。

2、墙体根部设置伸缩缝。

3、集分水器部位防裂网加强设置。

4、墙角部应力集中处防裂网加强设置。

5、分仓缝或伸缩缝设置一般最大不超过 6m×6m 分格。
三、基层处理
1、施工前,楼层地面基层需机械凿毛处理,将砂浆、浮浆、杂物及松动的混凝土清除,并用清水冲洗干净。
2、浇筑楼地面混凝土前一天基层表面洒水湿润,且无明水,浇筑混凝土时基层表面先扫一遍掺加 801 胶的水泥浆或涂刷界面处理剂,以确保垫层混凝土与结构基层结合牢固。
3、墙根部设高度与混凝土厚度一致,10mm 厚苯板或贴塑料布隔离层,以避免混凝土因温度收缩在墙、柱边出现不规则裂缝。
四、楼地面砼养护
1、楼地面在最终收光 5h(夏天一般为 2h)后可在表面涂覆养护剂或覆盖塑料薄膜进行养护。覆盖养护期不低于 7 天,7 天后可除去薄膜。楼地面冬期养护措施应根据现场实际情况和温度情况确定适宜的保湿保温养护措施。
2、养护周期须严格控制,养护期前三天严禁上人,养护周期内严禁上振动型机械设备及重型设备。
3、养护期不到,应严禁专业工种上人施工。
五、楼地面成品保护
1、楼地面完成后,养护周期应在周边设置醒目的警示牌及警示绳。养护7天内严禁在完成面堆放材料及人员通行。其它工种工序施工应按照楼地面完成的时间先后顺序提前或混凝土达到强度后在统一协调下进行。
2、各专业施工人员在楼地面上施工作业应铺盖塑料布或板材保护。所有机具下应垫木垫板,所用的操作架和钢梯脚应用多层柔性材料包扎,避免完成面强度不够造成人为破坏。
地暖工程细石砼楼地面施工技术标准(补充)——重要施工控制要点
一、 楼地面基层砼浮浆、落地灰、垃圾清理,施工前一天清水冲洗干净;
二、 水灰比控制(0.5-0.6);
三、 防裂钢板网:距细石砼楼面上平 15-20mm 设置单层网,网孔间距50X50;
四、 标高控制:地暖管距细石砼上表面保护层大于 15mm;
五、 界格条按照每个房间布局及不大于规范要求数值设置;
六、 细石砼保护层收浆压实;
七、 严格控制细石砼保护层养护周期(7-14 天);
八、 运送细石砼施工建议选择吊斗、大泵(不要使用细石砼及砂浆运送泵)、或者施工电梯等机械。
10、 外墙保温质量通病预控施工技术标准
一、 原材料要求:
1、聚苯板:密度在 18.0~22.0kg/m3、尺寸稳定性≤0.30%的阻燃型
膨胀聚苯板(模塑聚苯板);
2、陈化时间:聚苯板应经自然条件下陈化 42d 或在 60℃蒸气中陈化
5d;
3、禁止材料粉化:由于工期长或隔年施工等原因,造成聚苯板表面粉
化;
4、所用的胶粘剂应达到外保温技术对产品的质量要求。并与罩面砂
浆、填缝剂成系统配套。
二、施工措施
施工方面应确保作业环境满足规程要求,按施工操作规程分层作业,
尽量避开冬期、雨天施工,施工环境温度不应低于 5°C,风力不大于
5 级。做好中间工序的检查,不合格工序应及时返工。
(一)、基层处理
1、基层表面应清洁,无油污、脱模剂等妨碍粘结的附着物。凸起、空鼓和疏松部位应剔除并找平。找平层必须与墙体粘结牢固,不得有脱层、空鼓、裂缝。
2、基层与胶粘剂的拉伸粘结强度应不低于 0.3Mpa,并且粘结界面脱开面积应不大于 50%。
3、采用界面剂进行界面处理可增强粘结剂与基层的粘结强度。
(二)、保温层施工
1、粘贴聚苯板时,首先将墙体基层找平,基层平整度控制在 3mm 内,在聚苯板背面满抹胶粘剂再用齿型抹子刮抹后,粘于墙体。外装饰面为涂料时,采用点框粘时实际粘结面积不得小于 40%。外装饰面为面砖时,实际粘接面积不得小于 60%。
2、聚苯板应按顺砌方式粘贴,竖缝应逐行错缝。保温板面应平整,相邻苯板粘贴时不出现通缝;聚苯板应粘贴牢固,不得有松动和空鼓;聚苯板之间接缝用优质聚氨脂发泡剂进行填充,板缝填充密实。
3、墙角处聚苯板缝应交错互锁。门窗洞口四角处聚苯板不得拼接,应采用整块聚苯板切割成形,聚苯板接缝应离开角部至少 200mm。
4、聚苯板安装上墙后应及时做抹面层,裸露时间不应过长。否则聚苯板将以每年 1mm~1.5mm 的速度粉化,粉化界面将严重影响抹面砂浆与聚苯板的粘结。
5、应采用两道抹面做法,保证玻纤网布的正确位置。玻纤网布应在规定部位进行翻包并保证必要的搭接长度。
6、宜采用胶粉聚苯板颗粒保温浆料进行局部找平和修补。采用 15mm~20mm 胶粉聚苯板颗粒保温浆料进行整体找平可显著提高体系综合性能。
7、保温底层施工时应做保护墙,保温板底部做金属托架,阳角部位用专用护角保护,底层保温板挂两层增强耐碱网格布。
8、锚钉数量:涂料面层不少于 4 个,面砖面层时不少于 6 个。
(三)、抗裂防护层施工
1、应按设计要求做好体系檐口、勒脚的包边和装饰缝、门窗四角、阴阳角等处局部加强网 施工以及变形缝处的防水和保温构造。
2、抗裂剂中严禁加水,应采用两道抹面做法,保证玻纤网布的正确
位置;
3、窗角、阴阳角等部位的加强网格布应先用抗裂砂浆贴好,接着连
续施工大面,掌握先施工细部,后施工整体,整片的耐碱网格布压住
分散的加强网格布的原则;
4、耐碱网格布搭接宽度不应小于 100mm,耐碱网格布的边缘严禁干搭
接,必须嵌在抗裂砂浆中。抗裂砂浆保护层厚度宜控制在 5mm 内;
5、网格布铺设在抗裂砂浆中靠近外饰面一侧,以见纹不见色为宜;
6、首层必须铺贴双层网格布,第一遍网格布搭接处可采用对接,第
二遍做法同一般做法。
三、预控墙体保温工程裂缝应采取的技术措施 :
1、抗裂防护层必须采用专用的抗裂砂浆并辅以合理的增强网,在砂浆中加入适量的聚合物和纤维对控制裂缝的产生是有效的;
2、严禁现场配制的普通水泥砂浆抹在保温层上;
3、基层墙面不平整的宜采用胶粉聚苯板颗粒保温浆料进行局部找平和修补;
4、外墙外保温体系中所采用的玻纤网格布必须是由耐碱玻纤机织而成并经耐碱高分子材料涂塑的网格布;
5、装修层的材料最好选择弹性外墙涂料。
6、其他界面层、保温层、粘接加固等材料也应该有专业厂家配套供应,以提高质量问题的可追溯性。
7、保温板与非保温部位的结合部容易产生裂缝。在保温系统的截止部位应进行防水处理;
四、内墙表面长霉、结露防治措施:
1、根本防治方法是阻断热桥,改善室内湿度死角,保持良好的新风条件;采用苯板条完成对线条的表面处理等。
2、窗的设计位置:尽量使保温层与窗连接成一个系统以减少保温层与窗体间的保温断点,避免窗洞周边的热桥效应。
3、窗的设计中还应该考虑窗根部上口的滴水处理和窗下口窗根部的防水设计处理,防止水从保温层与窗根部的连接部位进入保温系统的内部。
五、克服墙体饰面砖层出现脱落和开裂的措施:
1、为了减少温度变形造成的应力集中,分散温度应力,应在与墙体连接的聚合物水泥砂浆结合层中引入镀锌四角网,网格尺寸不应大于面砖长度的 1/2;
2、面砖的选择和排砖的间缝会影响面砖的稳定性。面砖的吸水率对面砖粘结砂浆的粘结性能有很大影响,面砖吸水率不同,粘结砂浆的粘结效果也不同。应该采用带有燕尾槽的面砖;
3、面砖勾缝胶粉的性能设定,也要满足柔韧性方面的指标要求,目的在于有效释放面砖及粘结材料的热应力变形,避免饰面层面砖的脱落。同时勾缝材料亦应具有良好的防水透汽性。 面砖的排序不应挤得
太紧,每 16~18 米(六层)留有不小于 20mm 的伸缩缝。
4、在外围护结构封闭外保温的墙体,能有效地减少墙体温差变形,
防止饰面砖部分出现应力集中,如外墙女儿墙、挑出部分全封闭外保
温层。同样起到防止面砖脱落的作用。
5、不能采用密缝粘接,砖缝不应小于 5mm。
六、外墙聚苯板熟化期控制措施
(一)、要求施工单位在生产厂家指定库房位置,专门存放用于本工程的聚苯块,甲方、监理不定期到聚苯板的生产厂家抽检,主要检查以下项目:
1、检查厂区指定库房内所存的聚苯块的数量、生产日期;
2、检查核对厂家将聚苯块加工切割成聚苯板的生产台帐;
3、检查厂家的聚苯板成品的发货台帐及出厂去向;
根据以上检查项目,推算出到达工地现场的聚苯板是否符合熟化期的要求;
(二)、严格控制聚苯板进入工地现场的验收环节,主要有以下几点:
1、检查随车的聚苯板出厂合格证、检测报告;
2、检查施工单位建立的聚苯板进场台帐,详细记录每批进场聚苯板的数量、生产日期、进场日期、使用日期、使用部位,甲方、监理人员核对进货单据无误后,及时在台帐记录上签字;
3、及时见证取样送检测中心复试。
11、 楼座阳角、线条、窗定位放线方案
根据门窗施工规范及测量规范,对外窗洞口、大角线、外墙线条特制订如下测量方案:
放线原则:内、外、水平线统一由一层的基准线引出,每隔 5 层重新至一层基准线进行引线,避免因误差累加过多造成的放线偏差。
外窗洞口测量:
洞口上下控制:在房间内侧投测闭合建筑 1m 线,根据建筑 1m 先确定外窗洞口上皮线。外窗安装时,可以根据建筑 1m 线确定上、下框边位置。
洞口侧面控制:以测量窗洞口边线为准,在外窗洞口一侧从顶层吊通线至底层,外窗洞口另一侧面采用相同吊线做法。外窗洞口控制线如下图。
窗框安装进深控制:窗框安装以窗洞口进深轴线为准,在内外墙抹灰后,放出窗洞口进深轴线。





大角线等测量:
依据主体结构施工中墙控制线在平面楼层位置确定外墙大角轴线,并投测在立面位置,对室外空调机位位置两侧突墙轴线可从相邻位置算出尺寸关系,然后用钢卷尺、吊线测量。在楼层施工过程中,可根据此控制线随时调整墙体两侧模板,以便于达到上下墙体顺直。
大角线测量如下图:


12、 电梯成品保护及运行方案
为保证对电梯进行有效的成品保护及安全正常的运行,特制定本方案。
一、电梯安装前准备
1、机房设备安装前,电梯机房屋面防水应施工完毕;
2、电梯工程正式安装前,土建施工单位应将电梯井道清理干净,包括井道垂直度修整、对拉螺栓清理及螺栓孔封堵、垃圾清理等;
3、机房设备安装前,电梯机房内的土建工作应施工完毕,门窗安装完毕,严禁电梯设备安装完毕后机房内进行湿作业施工;
4、电梯基坑设备安装前,应提前 30 天对基坑进行渗漏观察,如有渗漏情况应在基坑设备安装前处理完毕;
5、电梯机房门洞口外侧砌临时挡水门槛,门槛高度不小于 100mm;电梯呼唤按钮采用大芯板外包覆盖保护;
6、电梯工程正式安装前,电梯安装单位需按照经批准的脚手架搭设方案在井道内搭设施工用脚手架,并铺设脚手板;
7、电梯工程正式安装前,电梯安装单位应逐层检查电梯门洞口防护门的安全防护情况,必要时应采取加固措施;
8、电梯工程正式安装前,电梯安装单位需做好井道施工照明工作。
二、电梯安装及临时使用时成品保护方案
1、电梯施工单位应根据作业班组数量配置足够安全督导人员,负责井道内
立体交叉安装作业时的信号传递、指挥及督导工作;
2、电梯施工单位应配置专职电工,确保用电安全;
3、电梯施工单位应配置专人负责材料设备存放及运输过程中的成品和半成品的看护工作;
4、梯门安装完毕后应进行覆膜处理,防止砂浆、涂料等污染;
5、轿厢内侧四周及上下均采用大芯板牢固覆盖,防止轿厢污染及碰伤;
6、电梯严禁运输砂浆、混凝土等易撒漏、易污染材料;
7、电梯呼唤按钮采用大芯板外包覆盖保护;
8、轿厢内侧及每层电梯门应在明处悬挂限载标识牌;严禁电梯过载运行。
三、电梯运行方案
1、电梯的使用条件
1.1、电梯应在取得当地主管部门颁发的合格证后方可使用;
1.2、配备电梯专职安全管理人员(根据合约由上海三菱电梯有限公司配
备);
1.3、每部电梯配备专门的操作人员,操作工应持证上岗,操作工由总包单
位配备,上岗前由上海三菱电梯有限公司进行集中培训;
1.3、建立并严格执行电梯安全运行管理制度,建立完整的电梯安全技术档
案;
1.4、保证电梯紧急报警装置能够有效应答紧急呼救;
1.5、在电梯轿厢内或者出入口的明显位置张贴安全注意事项、警示标志和
有效的《安全检验合格》标志;
1.6、制定电梯事故应急措施与救援预案,并定期组织演练。
2、电梯安全管理人员应履行的职责
2.1、进行电梯运行的日常巡视,做好电梯日常使用状况记录,落实电梯的
定期检验计划;
2.2、妥善保管电梯层门钥匙、机房钥匙和电源钥匙;
2.3、监督电梯日常维护保养单位定期检修、保养电梯;
2.4、发现电梯存在安全隐患需要停止使用的,有权作出停止使用的决定,并立即报告项目部负责人员;
2.5、遇有火灾、地震等影响电梯运行和电梯乘客人身安全的突发性事件时,应当迅速采取措施,停止电梯运行。
3、电梯乘客的注意事项
3.1、电梯乘客应当按照电梯安全注意事项、警示标志正确使用电梯;
3.2、不得使用明示处于非正常状态下的电梯;
3.3、不得强行扒撬电梯层门、轿门;
3.4、不得在电梯内蹦跳、打闹;
3.5、不得携带易燃易爆物品或者危险化学品搭乘电梯;
3.6、不得拆除、毁坏电梯的部件或者标志、标识;
3.7、不得运载超过电梯额定载荷的货物;
3.8、电梯操作人员对上述行为进行监督,如有乘客违反,应进行制止;
3.9、乘坐的电梯发生故障时,电梯操作人员应当通过报警装置与电梯安全管理人员取得联系,服从指挥。
4、电梯运行的其他注意事项
4.1、发生电梯乘客被困故障时,迅速采取措施对被困人员组织救援;
4.2、电梯出现故障或者发生异常情况时,应当组织进行全面检查,消除电梯事故隐患后,方可重新投入使用;
4.3、至少每 15 日进行一次日常维护保养工作;
4.4、根据工地施工时间制定相应的电梯运行时间。
5、电梯非运行时间,应将电梯停放在楼座顶层。
电梯成品保护(强条)











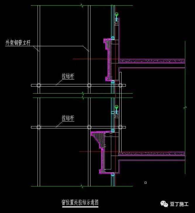
13、 装饰阶段改脚手架拉结点示意图


14、 地暖地面楼层悬挑槽钢固定示意图

15、 脚手架硬防护搭设、分层施工硬防护示意图



16、 施工临时用水位置示意图

17、 地库顶板排水盲沟做法


温馨提示:如你想咨询建筑施工、装修装修等问题,请添加微信公众号豆丁施工,这里都是专业人士