设计机构:JORYA玖雅
设计师:景森
设计面积:90㎡
房屋位置:天鹅湾
户型:2室一厅
装修花费:48W(施工12万+主材36万)

设计师:景森 / 工长:方根明
监理:刘增 /主材:苑丞
步入这个奶白色的家,浓烈而温暖的阳光迎面而来。这套90㎡的南向两居室,拥有帝都罕见的5.5米超高落地窗。女屋主说:“看房的时候一下子就被这绝好的采光吸引了!”
这次装修,她希望能够尽量发挥出房子本身的层高和采光优势,在风格上,她希望自己的家是简洁耐看,而又温暖舒适的。

改造前
交房时整体装修是欧式风,臃肿的欧式家具占满了整个客厅,再加上略显“浮夸”的背景墙和吊顶。这样的风格,早已被当代年轻人摒弃,堪称是时代的眼泪。
户型图

原始平面图
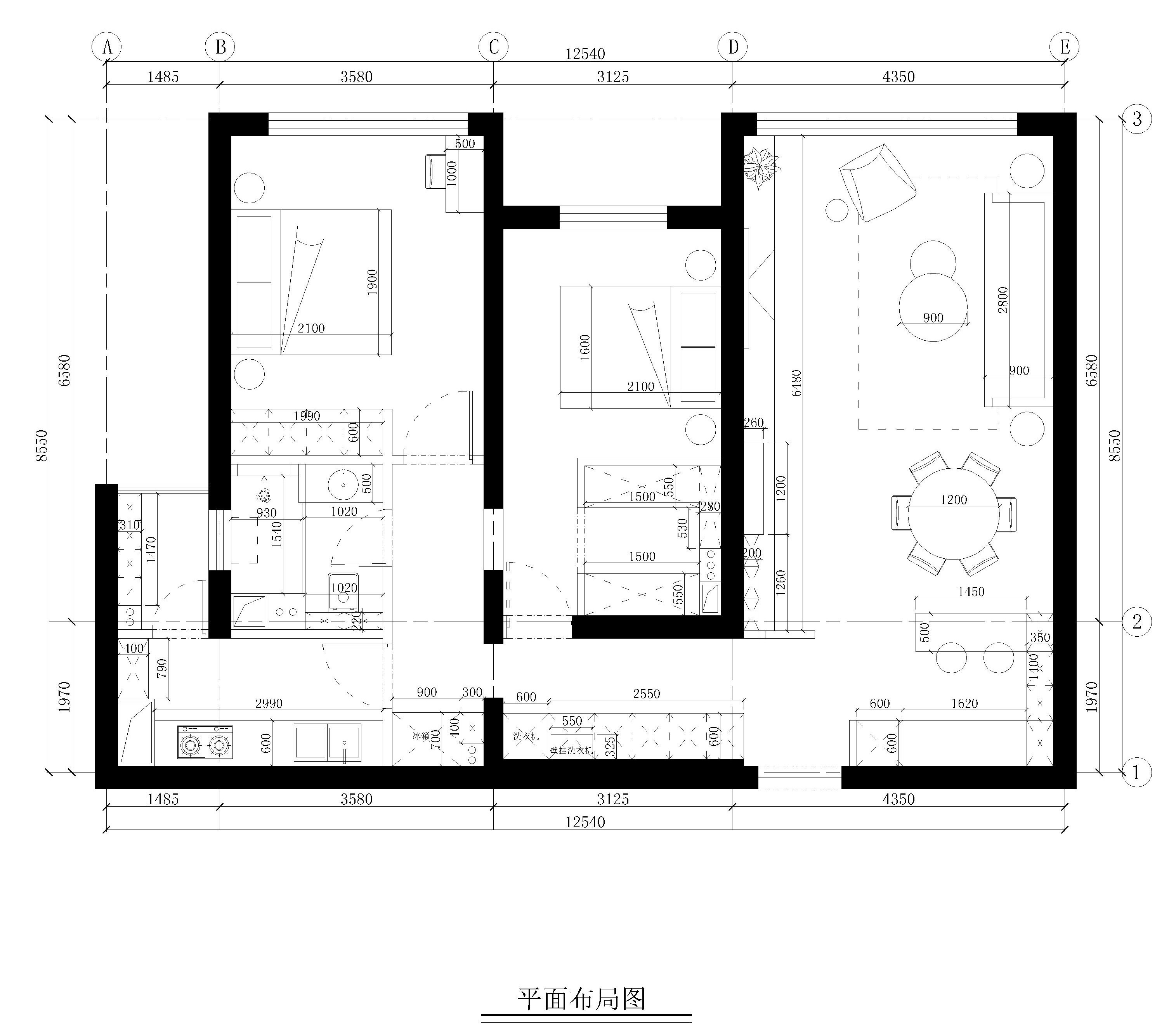
户型分析:
1、玄关无遮挡,缺乏私密性。
2、客餐厅区域面积36㎡,对于屋主和父母三口之家来说偏大。
3、厨房距餐厅较远,有将近8米的距离。
4、主卧、次卧、次卫三扇门都在同一个走廊,容易产生噪音,私密性不佳。
5、次卧面积较小,比起鸡肋的次卫,更需要的是储物空间。

最终平面图
实景图
玄关

以前玄关没有遮挡,取快递拿外卖时,外人站在门口就能看到整个客厅,很没有安全感。

改造后增设了一堵墙体,起到阻隔视线、划分区域的作用。 墙体中还留出了一小段空隙,这种隔而不绝的状态,让空间充满了趣味。
起居室

玄关的右侧以前是餐厅,现在改为了西厨。

西厨区域设置了橱柜和吧台,平时可以用烤箱烤点东西,简单的吃个早餐,弥补厨房和餐厅距离较远的不足。

因为层高较高,吊完顶还有4.7米,远超普通厨房的高度,所以设计师在设计吊柜时,在右侧吊柜采用了分段式设计,上面的吊柜进深是600,下面的吊柜相对要薄一些,这样使用时不会碰头,同时也便于翻找。

西厨上的吊顶主要是为了遮挡中央空调的机器和管道,整体需要往下吊80cm。也就是说西厨区域与客厅区域的天花板之间会形成80cm的高差,在视觉上会显得十分突兀。
怎样尽可能的保留相对完整的层高,同时又满足功能,成为了本次设计中最大的难点。

效果图
设计师在做设计方案的时候考虑了很久,画了无数稿的方案,终于想到了用斜坡吊顶的方式,将3个区域连接起来。
1、门厅的西厨区域,吊顶为80cm,暗藏中央空调出风口和管道;
2、餐厅区作为中间的过渡衔接,做斜坡顶。
3、客厅区域吊10cm平顶,便于预埋灯具。

最后设计师在沙发背景墙做了宽8cm的单眼皮吊顶,吊顶内嵌灯带,用于洗墙,同时把客厅和西厨部分的吊顶连接起来,让整个顶面在视觉上浑然一体,不对居住者产生“视觉噪音”。

吊顶照明采用了磁吸轨道灯和射灯,无主灯的设计干净利落。

解决完棘手的吊顶,起居室的好采光得以最大程度的保留。

整个起居室由客、餐、西厨三个区域组成,形成一个互动性极强的家庭核心区。

设计师在这个空间运用了大面积的中性色,更显宽敞明亮。

奶白色系的墙和沙发搭配浅棕色木地板,营造出温暖的格调,再用少量黑色勾勒出线条,最后加入跳跃的橙色呼应这满屋的阳光。
墙漆色号:佐敦4071

屋主说,这样好的阳光可以一直持续到下午4点,给全家人都带来好心情。

毛绒绒的乳白色面包组合沙发,柔软又舒服。窝在上面晒晒太阳睡个午觉,想想都很惬意。


南瓜造型的单人沙发和野口勇茶几,围合出亲密无间的氛围。周五的晚上,坐在这里陪着爸爸妈妈看会电视聊聊天,开启愉快的周末。

效果图

实景图
电视背景墙完美的复原了效果图,简约的岩板地柜内嵌雾化壁炉,左侧墙面还壁挂了一组三门收纳柜,用于整个客厅的收纳。

设计师在壁炉上方做了“烟囱”,把火光“围拢”住。一方面是为了仿真,把壁炉的味道做出来,还有就是避免火光冲天造成不好的观感。

日本建筑师中村好文曾经写道:自远古时代以来,火就是一个家的中心,虽然我们不可能有什么远古的记忆,但是在我们大脑皮层的某处,却深深的烙印着这个印象——住宅就是有火的地方。
雾化壁炉背后的原理是水雾与灯光的共同作用,并没有实际的取暖功能,但在心理上起到的温暖感觉是一样的。

餐厅采用圆形的餐桌中和空间的线条感,更加柔和。

餐厅灯也是由大大小小的圆形构成,整体错落有致,十分灵动。



走道

玄关到厨房的这个走道区域没有自然光,设计师在天花板安装了筒灯和灯带辅助照明。
筒灯的光线明亮直接,做家务时很实用,但是到了晚上就会显得有些刺眼。设计师很贴心的给筒灯和灯带分别设置开关,晚上只需要打开灯带,氛围照明即可。

玄关柜采用和西厨、客厅一致的白色柜体,因为全屋白色是主角,设计师为了避免“五颜六色的白”,所有定制柜的颜色都是让厂家根据墙漆颜色来做的调色,踢脚线的颜色也是先通过小样先确定好颜色,最后出来的效果非常完美。

这组实用的玄关柜,包含了收纳和家务柜的两部分,离厨房、卫生间、衣帽间都很近,整个家务动线省时省力。

玄关柜详细尺寸图

冰箱旁边原先是一组管道,前面还剩下了一段空间,设计师也没有忽略,在这里装了一组储物柜,屋主的妈妈表示很喜欢这组柜子,里面可以分门别类的放清洁用品,用起来特别方便。

冰箱定制柜详细尺寸图
厨房

厨房干净整洁,总长度3米,设计师在台面上根据洗菜——切菜——炒菜的顺序合理布局,使用起来顺手高效。
底下柜体的设计也有讲究,按照水槽——洗碗机——碗柜抽屉的方式排布。水槽旁放洗碗机,先去除掉食物残渣,再把碗放进洗碗机里,干净卫生。洗碗机工作完毕,打开旁边的碗柜抽屉就可以直接收纳,避免手抖的“悲剧”。

父母在家,厨房里总是充满了熟悉的烟火气息。阳台置物架上的泡菜坛子,就是屋主爸爸妈妈专门从四川带过来的。
卫生间

卫生间沿用了淡灰色的水泥砖,设计师用深色浴室柜拉开层次感,整体干净利落。
主卧

主卧是屋主父母居住,素雅的淡绿色搭配宁静的木色,营造出静谧的氛围。
次卧

原始户型中次卧空间十分狭小。

设计师将原来主卧门的位置封闭,新砌的墙体特意留出厚度,方便后期放展示架。

次卧储物空间较少,设计师将原始的客卫改成了U型衣帽间,屋主的四季衣物,出差用的行李箱统统都能放下。衣帽间采用玻璃门,视线更通透。

女屋主的卧室同样采用了温馨的豆绿色+木色组合。
合影

从左至右:设计师景森、屋主爸妈、方根明工长
编辑:Alice
本期案例介绍完毕
感谢观看~
带尺寸平面布局图:

版权归作者JORYA玖雅所有
如需转载本文请联系“JORYA玖雅”账号