说在前面
业主在找到我们的时候就很明确自己的需求,开放式厨房,不喜欢复杂的造型和浓烈的颜色,喜欢自然复古的东西。所以我们定调为复古北欧。
男业主喜欢游戏,在新家里设置了一个自己的小天地。女业主审美很高,后期给我们提供了很多软装上的意见。
房屋信息
设计团队 · 重庆琢信装饰有限公司
楼盘名称 · 盘龙花园
户型面积 · 67㎡
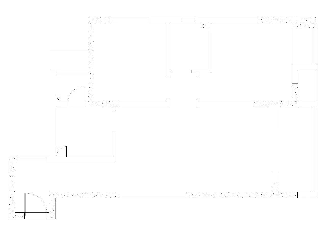
格局分布 · 两室两厅一厨一卫
整体费用 ·24W
硬装设计 · 何金霞
软装设计 · 罗 满
户型解析

这套案例两位设计师依照业主的需求保留两室,阳台增加了休闲区域,玄关区的位置较少,入户门对着窗户,在硬装上,设计师将它封起来作为大壁鞋柜,扩大玄关处鞋柜的空间。把厨房做开放式,打开了视野,缩短入户了过道,将它变成厨房的一部分。
软装上每个空间都采用舒缓轻盈的色调邂逅简约自由的形式,用自然真诚的笔触,在空间里细腻描绘居住者的故事,让家成为储存温暖记忆的盒子。

色彩分析

在以纯净的白色调为主色调,电视墙的深灰把整个空间的重色体现在一点,让整个空间达成一种制约与平衡的关系。金色作为点缀色增添一丝精致感,橙黄色用作提亮色,让原本单一的空间有多了几分时髦与洒脱。
软装搭配

黑色布艺,黑色、胡桃色木质家具,两种材质的碰撞,舒适且有质感。采用复古元素,整个空间别具一格。
入户

忙碌的一天结束后,回到家是最舒服的时刻,卸下一身的疲惫,脱下公文包,顺手挂在墙上,入户处准备了沙发,
餐厅

因为整个空间的“复古”,设计师因此也着重于整个软装的搭配,一个优秀的软装方案应当是融合于整个空间的,因此无论是一点点金属装饰的餐边柜,或是上个世纪的装饰画。都是贯穿整个空间的。


白墙似乎是木制餐桌的最佳搭档,两盏吊线暖光灯,让餐厅的气氛恰到好处,开放式的厨房更是充满了乐趣,早上在吧台来一份营养早餐,新的一天开始了……年轻的小两口很爱生活,在他们看来,生活是需要仪式感的,在不同的节日,他们会在家一起庆祝,这正是生活的本质。

客厅


整个空间以黑白灰为主,深色沙发给人一种稳重的感觉,因电视墙也是深色,在软装上面,搭配了木质茶几,让客厅不会一味的沉重,使空间达到冷暖平衡看上去更加和谐,更容易得到现代人的喜爱。




主卧

家里最让人放松下来的便是卧室,这里可以隐藏和包容我们的一切。在主卧,设计师为他们选择的深色床头,有助于睡眠。深灰色墙面呈现出细腻柔和的光泽,床头吊灯给黑夜带来了一丝温暖。


儿童房

房间衣柜拉手是自己单独配的原木色,和床的材质有个呼应,虽然儿子还很小,但是在布置上还是没有以一个小朋友的视角去打造,墙面是用的灰色,软装可以根据小朋友的年纪和喜好随时更换。
