家里厨房装修安装油烟,大家都会选择大品牌而且质量较可靠的产品,可最近有网友反映,买回来的油烟机使用一段时间后,感觉吸力不大了家里的油烟也抽不干净了,可自己明明卖的是名牌的,价格也并不便宜,究竟是怎么回事呢?

事实上,油烟机不吸烟或者抽不干净等问题,会让大家条件反射第一时间怀疑到肯定是产品质量问题,那么遇到这些问题该怎么办呢,今天就给大家分享一下:
一、烟道小或堵塞

对于住在单元楼的用户来说,一般厨房都会留有公共烟道,安装油烟机时都会把排烟管插在公共烟道内,时间久了公共烟道堵塞也会导致油烟倒灌,油烟也自然不能快速从室内排出,特别是对于老旧小区公共烟道直径小,多年来油烟积聚,烟道几乎是处于堵塞状态的。
二、安装高度的问题
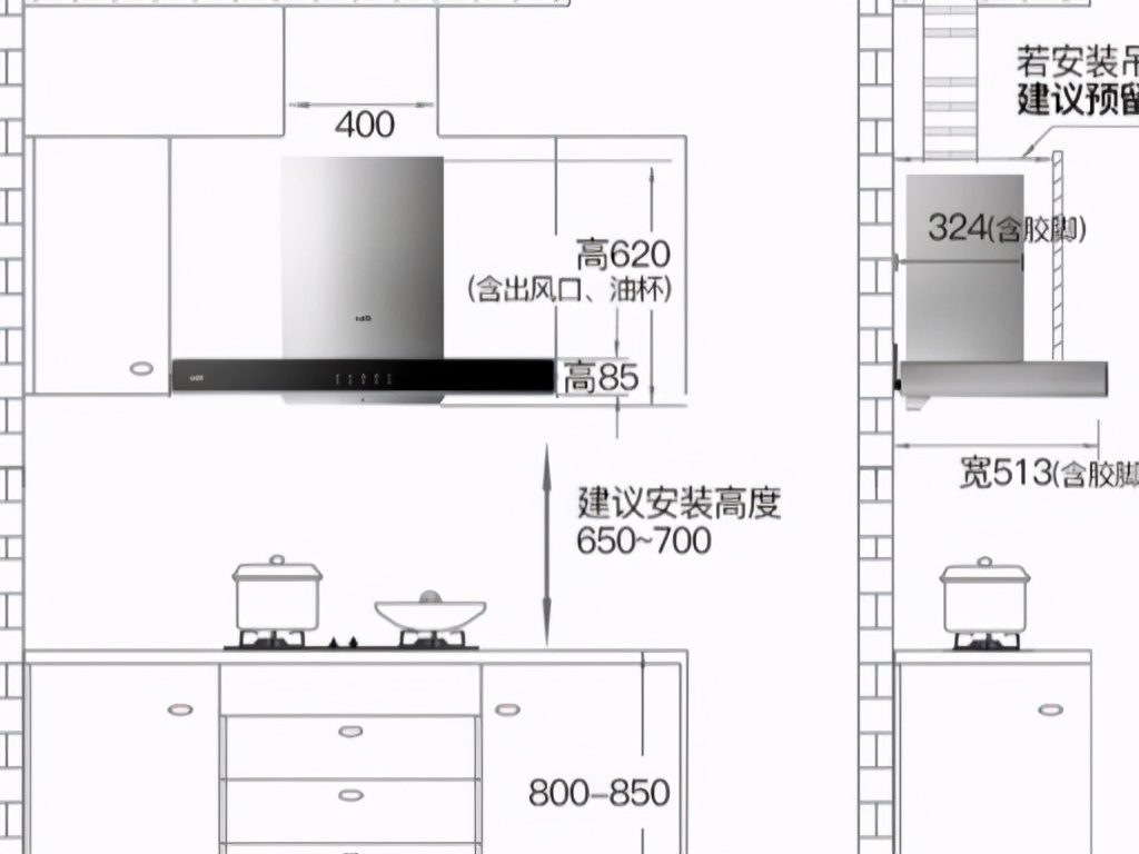
01、侧吸抽油烟机安装高度

为保证家里的油烟被抽干净,安装侧吸油烟机时高度要适当,一般正常安装高度是烟机的底部与炉具上方的距离最好在350mm至450mm为最佳。
02、欧式抽油烟机安装高度

欧式抽油烟机底部距离灶具台面安装参考高度650mm至750mm。功率大的可以安装高一些,功率小的可以安装低一些。
03、顶吸式抽油烟机安装高度

顶吸式(欧式)抽油烟机,高度一般离台面为650mm至700 mm。
04、中式抽油烟机的安装高度

中式抽油烟机,高度一般离台面650mm至750mm。
注意:吸油烟机安装在燃气灶的上方,距离至少为65厘米。如果吸油烟机的安装得过低,会导致使用不方便有时还会出现碰头的现象,如安装距离过高,吸油烟机的吸油效果会降低,导致吸油烟吸不干净。
三、止逆阀没打开

吸油烟机上面都有一个止回阀,止回阀中间有两个叶片。一般情况下,为了避免风机叶片出厂时抖动,吸油烟机会用胶带等物品固定。在安装过程中,很多时候由于安装工人的疏忽,没有打胶带撕开,导致止回阀无法打开,另外还有就是油渍过多或其它物体把止回阀的叶片给卡住了,从而导致家中的油净排不出去。
四.长时间未清洗导致吸力差

吸油烟机长期不清洗,会造成油渍过多,导致吸油烟机性能差,吸烟效果差。
五、油烟排放路径不畅

吸油烟机排气管一般只允许有一个弯管,如果弯道太多,油烟排放效果就会不好,此外,吸油烟机的烟管标准长度为1.5米,如果长度过长,特别是超过3米,也是会影响吸烟效果。
六、空间对流太大或空间太密闭

吸油烟机工作时也是需要室内有空气流动的,做饭时关上厨房的门窗,吸油烟机叶转动时空气阻力会增大,会导致吸烟效果不佳,因此,使用吸油烟机时正确的方法是要打开5-10厘米的门窗。
小结:以上就是关于吸油烟机非质量原因而存在的不吸烟原因,那么遇到这些原因时该怎么来判断呢?可以用以下几个小办法测试一下:

01、听风声。把吸油烟机的风量调到最大,然后仔细听声音,如果听见“呼”的声音,说明这是正常的,对于有不同的声音,说明出风口已堵塞。
02、看风轮。观察吸油烟机的风轮是否逆时针旋转的,如果反转是不会有风的,对于风轮有损坏,要及时更换风轮。
03、试吸力。将吸油烟机的风量调到最大,然后在出风口上贴一张报纸,看看报纸是否能吸进去,然后拔出吸油烟机的排烟管,看看风力是否和上次一样。如果差别很大,可以断定排气管堵塞。
04、电机损坏,这样的话应该机器停止工作了,没有嗡嗡响的声音,很容易判断 。
05、检查止逆阀是否被胶带封住,如果安装师傅忘记撕掉胶带,自己撕掉即可。
总结:以上就是给大家介绍的抽油烟机不吸烟除了质量问题还可能导致的其他原因。还有一点要说明的就是,现在的大多数品牌油烟机质量都很好,很少会出现吸油烟机不吸烟这种情况,所以我们要经常对油烟机进行日常护理,保证油烟机的清洁和安全。