家是归宿
幸福和快乐都在这里面
让心灵在这里放松
让这里的一切元素都是自己最喜欢的
今天小艺为大家带来和泰国际134m²户型解析,一起来看看吧。
【面积】:134 m²
【户型】:3室2厅1厨2卫2阳台
【设计风格】:现代风格
【设计师】:秦伟

他
心思缜密
走心DE设计
源自于对我们性格准确的定位
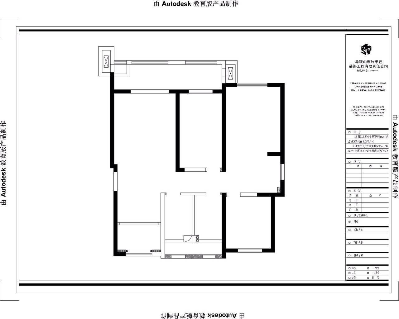
原始结构图
优点:
1、户型比较方正,南北通透
2、双阳台,整个户型采光和通风非常好。
缺点:
1、厨房空间太小。
2、入户门正对厕所。
平面设计图
户型改造建议:
1、户型最大的亮点就是超大超宽的阳台,观光角度极佳,设计师大胆的把阳台划分成两个区域,一半生活一半休闲,客厅角度的阳台作为休闲,隐藏的角度作为生活,保留业主一定的私密性,把阳台纳入客厅让整体的空间更为的通透。
2、把卫生间的区域改成厨房,扩大使用面积。
平面效果图

在窗边的两侧做了酒柜,中间的窗户正好连接着吧台,在吧台上用餐的时候,可以将小区的景色尽收眼底!如此一来餐厅的空间里又多了一个休闲的功能,在整个家的空间利用上没有一丝的浪费!

镜面的设计是为了增加餐厅的延伸感,视觉上显得更加宽敞大气,整体空间感觉更为大胆。餐厅大面积留白的地方用壁纸处理,配合着射灯的运用,让空间更有现代的气息!
以上就是小艺今天对和泰国际户型的解析,喜欢的话就关注小艺吧,小艺会不定时更新更多户型解析哦!