
新中式别墅
尺 寸面宽 20.7米 进深 22.2米
建筑面积477.0㎡
项目概况

△总平面示意图
基地情况:
东:村内道路
西:邻家住宅
南:村内道路
北:自家老房子
项目简介:
设计师充分尊重业主的意愿,建筑风格采用新中式,并于地下一层设计了多种活动空间,营造出宁静致远的生活氛围的同时,增加了用户的生活体验。
平面布局
户型概况:
2层+地下室/ 7室 2厅 4卫 1厨 1设备 3露台 1阳光房 1休闲室 1影音室

△地下一层平面图
地下室部分设计出别墅的特色空间,KTV、影音室和休闲厅,提供用户多彩的生活空间,阳光于南侧采光井倾泻而下,阳光房中,你我相视而坐,感受时光正好。

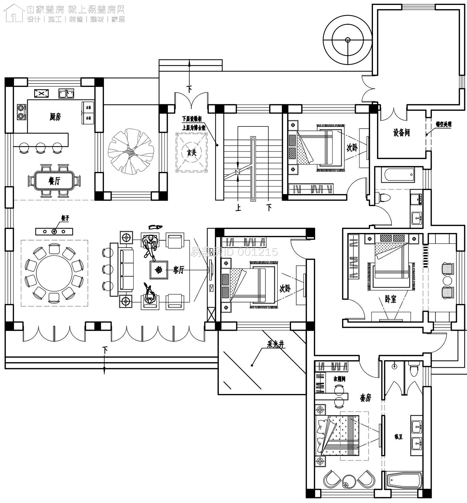
△一层平面图
选址北侧是自家的老房子,现保留下来且供老人居住,为方便新旧之间建筑的交流,设计师将建筑主入口选在北侧。
在户型的设计中有很多精妙之处,一是在主入口和开放式餐厅厨房之间所作的内凹庭院处理,三面围合墙体开设圆形窗用作取景框,以此丰富室内的景观,缓解玄关过长产生的枯燥乏味之感;二是在楼梯与玄关之间不设墙体,后期通过博古架进行软隔,削弱入口的围合感;三是客厅和大餐厅采用一体化设计并充分利用南向采光,餐厅和开放厨房直接相同,并于内配备早餐台,于此,尽管生活繁忙,亦可与家人尽情分享用餐的快乐时光。四是室内的实用居住部分,居住部分主要集中在东半侧,由于储物需求比较大,所以于居住区单独配备了储物间。

△二层平面图
为存放设备的室内机和室外机,平面布局一、二层均独立设计了设备间,并对其做了镂空处理。除了通过室内双跑楼梯进行垂直交通之外,使用者还可通过室外旋转楼梯来到二层露台,此旋转楼梯也是园内极佳的造景元素之一。
造型设计

△南侧鸟瞰图

△鸟瞰图
建筑整体为新中式风格,粉墙黛瓦,典雅的对称式坡屋顶以及挑檐的搭配,丰富了屋顶造型。

△南侧庭院鸟瞰图
建筑外观由室内空间限定为不同高度,部分空间为一层高度,如公共的餐厨和客厅,而居住部分则是两层高度,由此拉伸了建筑的纵向建筑体量关系。

△南侧庭院局部透视图
在立面细节的处理上可以看出,设计师采用深灰木色的门窗并搭配窗格处理,在提升中式元素的占比的同时丰富建筑立面。客厅和餐厅的双开门形式,在全部打开之后,将室内外联通,最大限度的将院内的景色引入建筑中。

△北侧鸟瞰图

△东北侧鸟瞰图

△西北侧鸟瞰图
设计师在均衡考虑空间和立面效果之间的关系后,于部分位置退出露台空间,在增加户外活动空间、丰富使用者行为的同时,调和了建筑的立面凹凸效果。

△东侧鸟瞰图

△西侧鸟瞰图
建筑体量高低错落,配合屋脊线起承转合,整座建筑像是一幅素雅的山水画,又像是一首脍炙人口的散文诗。

△北入口效果图

△北入口透视图
素白的砖墙,用青黑色的线脚勾勒,平直的外墙于中心向内凹进,并向上凸起,青黑色的大门于此矗立,入口的地位由此显现出来。

△北入口透视图
谈笑有鸿儒,往来迎白丁,青瓦堆砌,白墙粉刷,让走近大门的人,内心变得些许淡雅从容,于这一处简朴优雅中,感受户主的包容,随和、气质和内涵。

△东立面图

△西立面图

△南立面图

△北立面图